Unbeendet Küchenplanung in der Endlosschleife

oFeilner

Mitglied
Beiträge
6
Ich stecke bei der Küchenplanung fest.

Die Fragen sind:
  • 90er Eck Karusell weglassen und dafür die Schränge größer machen 30er neben Kochfeld -> 60er und 90er zum 120er?
  • Oberschränke links neben hochgesetzter Dunstabzugshaube weglassen und lieber eine Kaminhaube?
  • Gibt es noch eine Lösung ohne den Geschirrspüler unter den Backofen zu packen. Dadurch wird nämlich die Mikrowelle hinter der Klappe schon sehr hoch.
  • Was meint Ihr so? Verbesserungen/Änderrungen

Viele Grüße

Oliver

Checkliste zur Küchenplanung

Anzahl Personen im Haushalt: 2
Davon Kinder?:
Art des Gebäudes?: Bestandsbau, (kleinere) Umbauten möglich
Körpergrössen aller Hauptbenutzer (wegen Arbeitshöhe ) in cm: 179 und 165
Brüstungshöhe des Fensters (in cm): 72
Fensterhöhe (in cm): 140
Raumhöhe in cm: 253
Heizung: Heizkörper wie im Grundriss
Sanitäranschlüsse: fix
Ausführung Kühlgerät: Integriert im Hochschrank (60cm)
Kühlgerät Größe: bis 178 cm Höhe
Ausführung Tiefkühl (TK)-Gerät: Nicht erforderlich bzw. steht woanders
Dunstabzugshaube: Abluft
Backofen etc. hochgebaut?: Wenn möglich
Hochgebauter Geschirrspüler ?: Nein
Kochfeldart: Induktion
Kochfeldbreite ca. (in cm)?: 60
Spülenform: 1 Becken mit Abtropffläche
Geplante Heißgeräte: Standmikrowelle, Dampfbackofen (DGC) ohne Wasseranschluß
Küchenstil:
Sitzmöglichkeit in der Küche / im Küchenbereich: Keine
Sitzmöglichkeit: Für wieviel Personen?: Nein
Sitzmöglichkeit: Tisch - wenn gesonderter Tisch oder offene Küche: Vorhandener Tisch
Gewünschte o. vorhandene Tischgröße: 125
Wofür soll der Sitzplatz in der Küche genutzt werden? Wie häufig?:
Welche Arbeitshöhe ist angedacht (in cm)?: 91
Was steht auf der Arbeitsplatte oder soll dort stehen?: Wasserkocher, Messerblock
Welche weiteren Küchenmaschinen müssen in der Küche untergebracht werden?: Toaster, Handrührgerät
Was soll in der Küche außer den Standards untergebracht werden?: ALLE Vorräte, Geschirr komplett (nichts in Ess-/Wohnzimmer)
Welchen Stauraum gibt es sonst noch?: Keller
Was/wie wird gekocht? (Alltagsküche, Menüs, Snacks usw): Alltagsküche
Wie häufig wird gekocht?: (fast) täglich 1x warm
Wird alleine gekocht? Oder auch gemeinsam? Mit und für Gäste?: Alleine oder Gemeinsam
Was stört an der bisherigen Küche und was soll die neue Küche unbedingt können? Warum?:
Welche Mülltrennung soll in der Küche vorgehalten werden?: Altpapier, Gelber Sack Müll, Restmüll
Steht schon ein Küchenhersteller fest oder wird bevorzugt?: Schüller 78 Korkus, oder Häcker
Steht schon ein Gerätehersteller fest oder wird bevorzugt?:
Preisvorstellung (Budget): bis 15.000,-
 

Anhänge

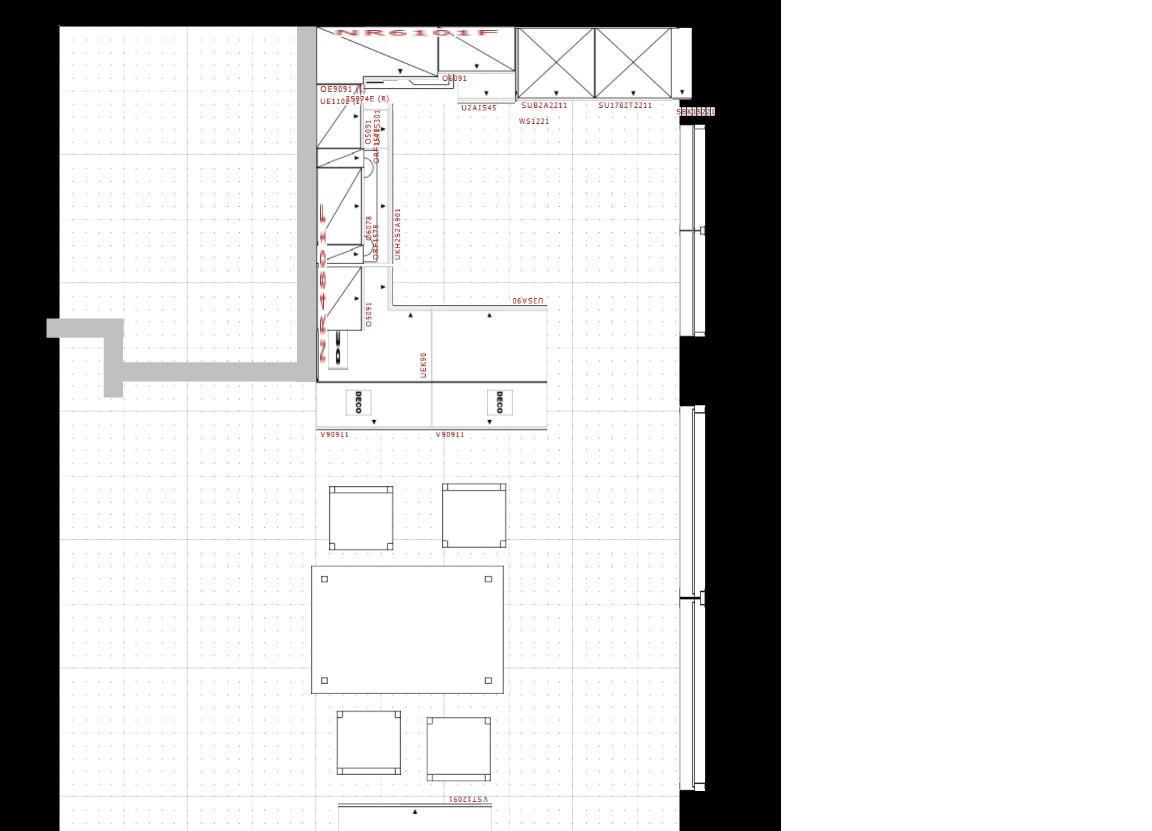
  • Planung.png
    Planung.png
    122 KB · Aufrufe: 254
  • Planung3D.jpg
    Planung3D.jpg
    126,5 KB · Aufrufe: 257
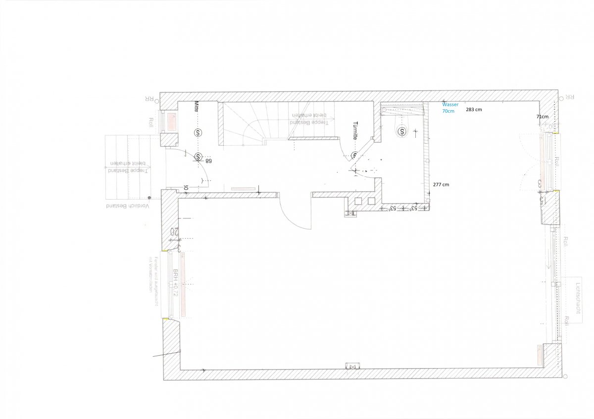
  • Grundriss.jpg
    Grundriss.jpg
    62,3 KB · Aufrufe: 440
  • Oliver.KPL
    3,7 KB · Aufrufe: 153
  • Oliver.POS
    8,5 KB · Aufrufe: 156
Hi. Irgendwie ist dein Thread schon auf Seite 3, also hoffentlich nicht eh zu spät mit der Antwort.

Auf den ersten Blick nur via Handy würde ich sagen, dass Herd und Spüle zu eng beieinander liegen. Der aufgesetzte Sichtschutz (?) raubt dir auch Arbeitsfläche. Eck-Karussell raus ist immer sinnvoll, aber ein 120er Schrank zu breit. Da wäre an der Stelle vielleicht ein 30er MUPL praktisch - schon mal damit beschäftigt?
 
Hmm ja @oFeilner ... leider ist der Thread wohl hängengeblieben, weil der Plan
grundriss-jpg.228417


nicht vollständig vermaßt ist. Gut wäre es, die komplette rechte Seite zu vermaßen, Fensterund Wandbreiten. Heizkörper ist auch nicht eingezeichnet, vermutlich unter dem Fenster. Breite, Position, wie weit steht er in den Raum.

Ist da auch in der Raummitte ein Kamin eingebaut?

Ist die Brüstungshöhe am Fenster da tatsächlich nur 72 cm? Keine Option, da am Fenster etwas zu ändern?
Ein Foto von der Fenstersituation wäre vielleicht auch sinnvoll.

Inhaltlich unterschreibe ich sonst zu 100% bei nörgli.
 

Ähnliche Beiträge

Neff Hausgeräte Ballerina Küchen Blum Bewegungstechnologie Weibel - Intelligente Küchenlüftung

Neff Spezial

Blum Zonenplaner

Weibel Abluft-Tuning

Weibel Abluft-Tuning
Zurück
Oben