m&m
Mitglied
- Beiträge
- 6
- Wohnort
- Wiesbaden
Küchenplanung im Neubau
Hallo zusammen,
wir haben gerade unser Hauskauf beim Notar abgeschlossen.
Wir kaufen ein Reihenmittelhaus von einem Bauträger. Die Erschließungsarbeiten haben aktuell begonnen und die Fertigstellung ist für Sommer 2021 (Juni / Juli) geplant. Neben den Maler- und Bodenleistungen (in Eigenleistung) hat die Küche die höchste Priorität und wir machen uns dazu schon einige Gedanken.
Im Anhang habe ich folgende Dokumente hochgeladen, um einen besseren Überblick zu bekommen:
Unsere erste Idee war eine U-Küchenform zu verwenden. Unser Wunsch ist eine braune Arbeitsplatte mit weißen Schränken:
Es ist wie gesagt unsere erste Idee und wir sind Laien, haben es nach bestem Wissen und Gewissen die letzten Tage vorbereitet. Wir sind komplett offen für andere Vorschläge. Ist die Planung/Anordnung so sinnvoll und praktisch?
Wir bedanken uns bereits vielmals im Voraus und freuen uns konstruktive Kritik und Feedback
Beste Grüße
Checkliste zur Küchenplanung
Personenkriterien und Ergonomie
Anzahl Personen im Haushalt: 2
Davon Kinder: keine; aber Nachwuchs geplant
Körpergrößen aller Hauptbenutzer in cm (wegen Arbeitshöhe): 180 und 172
Welche Arbeitshöhe ist angedacht (in cm)?: Aktuell ist diese auf 90cm, meine Frau mit 172cm ist sehr anfällig für Rückenprobleme und wünscht sich eine höhere Arbeitshöhe. Ich denke mal eine Höhe zwischen 95 und 100cm wird uns besser gefallen.
Gebäudekriterien
Art des Gebäudes: Neubau Reihenmittelhaus vom Bauträger; Planänderungen hinsichtlich Anschlüsse nicht möglich
Brüstungshöhe des Fensters (in cm): nicht bekannt, aber gehe von ca. 100cm Höhe aus (siehe auch Bilder aus Musterhaus)
Fensterhöhe (in cm): 120cm
Raumhöhe in cm: 240
Heizung: Heizkörper am Eingang der Küche; siehe Bilder sowie Planung
Sanitäranschlüsse: nicht variabel; vorgegeben vom Bauträger
Einbaugerätekriterien
Ausführung Kühlgerät: Side by Side Kühlschrank bis 100cm Breite; gerne auch integriert
Einbaukühlgerät Größe: Noch unbekannt; Tendenz um die 170 – 180cm
Ausführung Tiefkühl (TK)-Gerät: Integriert in Syde by Side Kühlschrank; ein separates TK-Gerät aus der aktuellen Wohnung kommt in den Keller.
Dunstabzugshaube: Abluft
Hochgebauter Backofen : ja
Geplante Heißgeräte: Backofen
Hochgebauter Geschirrspüler : wohl nicht möglich durch die Anschlussposition und derzeitige Küchenplanung?
Art des Kochfeldes: Induktion
Kochfeldbreite (ca. in cm): 60-80cm
Sitzmöglichkeiten
Vor der Küche haben wir einen gesonderten Essbereich mit einem Esstisch für bis zu 6 Personen. In der Küche selber brauchen wir daher keine Sitzmöglichkeiten. Wir hatten überlegt, eine kleine Bar am Ende der Küche einzurichten für 2 Personen, aber dann würde der Eingangsbereich zur Küche zu schmal werden.
Sitzmöglichkeit in der Küche / im Küchenbereich:
Sitzmöglichkeit: Für wieviel Personen?:
Sitzmöglichkeit: Tisch - wenn gesonderter Tisch oder offene Küche:
Gewünschte oder vorhandene Tischgröße:
Wofür soll der Sitzplatz in der Küche genutzt werden und wie häufig:
Stauraumplanung
Was steht auf der Arbeitsplatte oder soll dort stehen?: Mikrowelle (falls nicht integriert), Kaffeemaschine, Toaster, Obstschale, Wasserkocher, Küchenmaschine, Olivenöl, Gewürze
Welche weiteren Küchenmaschinen müssen in der Küche untergebracht werden: Küchenmaschine, Wasserkocher, Handrührgerät, Mixer, gängigen Backutensilien und -formen
Was soll in der Küche außer den Standards untergebracht werden: n/a.
Welchen Stauraum gibt es sonst noch: Wir werden noch einige Aufbewahrungsschränke im Keller aufbauen.
Kochgewohnheiten
Was/wie wird gekocht? (Alltagsküche, Menüs, Snacks usw): Alltagsküche; meine Frau backt sehr gerne.
Wie häufig wird gekocht: täglich 1x warm
Wird alleine gekocht? Oder auch gemeinsam? Mit und für Gäste? Wir kochen meist zu zweit; selten mehr.
Spülen und Müll
Spülenform: 1 Becken mit Abtropffläche
Welche Mülltrennung soll in der Küche vorgehalten werden: Biomüll, Restmüll
Sonstiges
Steht schon ein Küchenhersteller fest oder wird bevorzugt: Nein.
Steht schon ein Gerätehersteller fest oder wird bevorzugt: Nein.
Küchenstil: noch offen
Was stört an der bisherigen Küche und was soll die neue Küche unbedingt können? Warum? In unserer Mietwohnung ist der Stauraum zu gering.
Preisvorstellung (Budget): ca. 10.000€ inkl. Aufbau und Lieferung
Angehängte Dateien
Hallo zusammen,
wir haben gerade unser Hauskauf beim Notar abgeschlossen.
Wir kaufen ein Reihenmittelhaus von einem Bauträger. Die Erschließungsarbeiten haben aktuell begonnen und die Fertigstellung ist für Sommer 2021 (Juni / Juli) geplant. Neben den Maler- und Bodenleistungen (in Eigenleistung) hat die Küche die höchste Priorität und wir machen uns dazu schon einige Gedanken.
Im Anhang habe ich folgende Dokumente hochgeladen, um einen besseren Überblick zu bekommen:
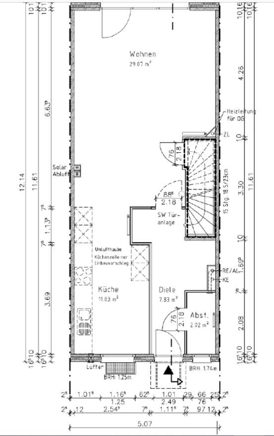
- A1: Grundriss mit Maßangaben und Elektroplan
- A2: Plan Nr. 1
- A3: Plan Nr. 2 (siehe ersten Kommentar)
- A4 bis A6: Bilder aus dem Musterhaus
- A7 Screenshots zum Plan 1
- A8 Screenshots zum Plan 2 (siehe ersten Kommentar)
Unsere erste Idee war eine U-Küchenform zu verwenden. Unser Wunsch ist eine braune Arbeitsplatte mit weißen Schränken:
- Die Spüle hätte meine Frau gerne unter dem Fenster – hier muss man den Wasserablauf verlängern, da die Wasseranschlüsse an der rechten Seite sind. Falls möglich gerne mittig / zentral unterm Fenster, ansonsten näher am Wasseranschluss. Gibt es hierzu Probleme / Bedenken in der Praxis?
- Die Spüle würde wir rechts am Wasseranschluss platzieren – eine hochgebaute Version daher passt nicht ins aktuelle Layout, oder?
- Beide Ecken würden wir dann mit Eckschränken versehen.
- Ein Backofen ist auf Arbeitshöhe (hochgebaut) gewünscht – rechts vom Herd.
- Wir möchten ein Side-by-Side Kühlschrank kaufen. Derzeit haben wir 2 verschiedene Positionen – entweder zu Beginn der Küche rechts oder am linken Ende der U-Form. Gerne kann dieser in die Küchenschränke integriert werden, aber nicht zwingend erforderlich. Die Tiefe der side-by-side Kühlschränke überscheitet bei beiden Plänen die Tiefe der Schränke (65cm) und wird am Ende etwas herausragen. Optisch ist die Variante 1 passender, da er in der Ecke versteckt ist. Wenn mal aber was defekt ist bzw. ausgetauscht werden müsste, ist es zu rechts besser aufgehoben.
- Sofern das Budget ausreicht, wäre eine ausziehbarer Regalboden für die Kaffeemaschine gewünscht (in Plan Nr. 1 neben dem hochgebauten Herd und in Plan Nr. 2 auf der linken Seite). Ansonsten könnte man dieses Regal ohne Tür versehen.
- Das Budget liegt bei maximal 10.000€ (inkl. Lieferung und Montage)
Es ist wie gesagt unsere erste Idee und wir sind Laien, haben es nach bestem Wissen und Gewissen die letzten Tage vorbereitet. Wir sind komplett offen für andere Vorschläge. Ist die Planung/Anordnung so sinnvoll und praktisch?
Wir bedanken uns bereits vielmals im Voraus und freuen uns konstruktive Kritik und Feedback
Beste Grüße
Checkliste zur Küchenplanung
Personenkriterien und Ergonomie
Anzahl Personen im Haushalt: 2
Davon Kinder: keine; aber Nachwuchs geplant
Körpergrößen aller Hauptbenutzer in cm (wegen Arbeitshöhe): 180 und 172
Welche Arbeitshöhe ist angedacht (in cm)?: Aktuell ist diese auf 90cm, meine Frau mit 172cm ist sehr anfällig für Rückenprobleme und wünscht sich eine höhere Arbeitshöhe. Ich denke mal eine Höhe zwischen 95 und 100cm wird uns besser gefallen.
Gebäudekriterien
Art des Gebäudes: Neubau Reihenmittelhaus vom Bauträger; Planänderungen hinsichtlich Anschlüsse nicht möglich
Brüstungshöhe des Fensters (in cm): nicht bekannt, aber gehe von ca. 100cm Höhe aus (siehe auch Bilder aus Musterhaus)
Fensterhöhe (in cm): 120cm
Raumhöhe in cm: 240
Heizung: Heizkörper am Eingang der Küche; siehe Bilder sowie Planung
Sanitäranschlüsse: nicht variabel; vorgegeben vom Bauträger
Einbaugerätekriterien
Ausführung Kühlgerät: Side by Side Kühlschrank bis 100cm Breite; gerne auch integriert
Einbaukühlgerät Größe: Noch unbekannt; Tendenz um die 170 – 180cm
Ausführung Tiefkühl (TK)-Gerät: Integriert in Syde by Side Kühlschrank; ein separates TK-Gerät aus der aktuellen Wohnung kommt in den Keller.
Dunstabzugshaube: Abluft
Hochgebauter Backofen : ja
Geplante Heißgeräte: Backofen
Hochgebauter Geschirrspüler : wohl nicht möglich durch die Anschlussposition und derzeitige Küchenplanung?
Art des Kochfeldes: Induktion
Kochfeldbreite (ca. in cm): 60-80cm
Sitzmöglichkeiten
Vor der Küche haben wir einen gesonderten Essbereich mit einem Esstisch für bis zu 6 Personen. In der Küche selber brauchen wir daher keine Sitzmöglichkeiten. Wir hatten überlegt, eine kleine Bar am Ende der Küche einzurichten für 2 Personen, aber dann würde der Eingangsbereich zur Küche zu schmal werden.
Sitzmöglichkeit in der Küche / im Küchenbereich:
Sitzmöglichkeit: Für wieviel Personen?:
Sitzmöglichkeit: Tisch - wenn gesonderter Tisch oder offene Küche:
Gewünschte oder vorhandene Tischgröße:
Wofür soll der Sitzplatz in der Küche genutzt werden und wie häufig:
Stauraumplanung
Was steht auf der Arbeitsplatte oder soll dort stehen?: Mikrowelle (falls nicht integriert), Kaffeemaschine, Toaster, Obstschale, Wasserkocher, Küchenmaschine, Olivenöl, Gewürze
Welche weiteren Küchenmaschinen müssen in der Küche untergebracht werden: Küchenmaschine, Wasserkocher, Handrührgerät, Mixer, gängigen Backutensilien und -formen
Was soll in der Küche außer den Standards untergebracht werden: n/a.
Welchen Stauraum gibt es sonst noch: Wir werden noch einige Aufbewahrungsschränke im Keller aufbauen.
Kochgewohnheiten
Was/wie wird gekocht? (Alltagsküche, Menüs, Snacks usw): Alltagsküche; meine Frau backt sehr gerne.
Wie häufig wird gekocht: täglich 1x warm
Wird alleine gekocht? Oder auch gemeinsam? Mit und für Gäste? Wir kochen meist zu zweit; selten mehr.
Spülen und Müll
Spülenform: 1 Becken mit Abtropffläche
Welche Mülltrennung soll in der Küche vorgehalten werden: Biomüll, Restmüll
Sonstiges
Steht schon ein Küchenhersteller fest oder wird bevorzugt: Nein.
Steht schon ein Gerätehersteller fest oder wird bevorzugt: Nein.
Küchenstil: noch offen
Was stört an der bisherigen Küche und was soll die neue Küche unbedingt können? Warum? In unserer Mietwohnung ist der Stauraum zu gering.
Preisvorstellung (Budget): ca. 10.000€ inkl. Aufbau und Lieferung
Angehängte Dateien
Anhänge
-
A1 Grundriss mit Maßangaben.pdf160,8 KB · Aufrufe: 419
-
A2a PLAN1.KPL3,6 KB · Aufrufe: 324
-
A2b PLAN1.POS7,5 KB · Aufrufe: 316
-
A4 IMG_0250.JPG100,1 KB · Aufrufe: 466 -
A5 IMG_0249.JPG65,7 KB · Aufrufe: 469 -
A6 IMG_0251.JPG103,1 KB · Aufrufe: 465 -
A7a Anmerkung 2020-04-30 130336.png96,3 KB · Aufrufe: 464 -
A7b Anmerkung 2020-04-30 130336.png667,2 KB · Aufrufe: 456 -
A7c Anmerkung 2020-04-30 130336.png617,6 KB · Aufrufe: 423 -
A7d Anmerkung 2020-04-30 130649.png842,6 KB · Aufrufe: 422
Zuletzt bearbeitet:






