NikEton
Mitglied
- Beiträge
- 4
Hallo zusammen,
Seit einiger Zeit verfolgen wir schon intensiv die Diskussionen hier im Forum und sind begeistert von der Aktivität und der Ideenvielfalt von allen Mitgliedern. Dies hat uns Mut gemacht, auch unser Projekt hier zur Diskussion zu stellen. Wir hoffen, dass wir viele spannende Ideen entwickeln können.
Hintergrundinformationen:
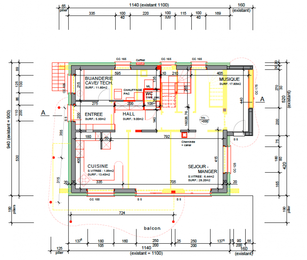
Wir haben ein Haus gekauft, das wir vollständig renovieren. Die Küche wird hierbei neu erstellt. Unser Favorit aktuell ist eine Rempp -Küche (Arno Wildeiche Honig, in weiss mit Holzelementen). Der Fussboden wird mit Parkett sein.
Das Haus ist recht klein (Grundfläche auf einer Ebene ca. 90m2). Daher haben wir das Erdgeschoss offen gestaltet. Der Wohnbereich geht nach Süden hinaus auf eine großzügige Terrasse, die auch in den Wohnraum aktiv mit einbezogen werden kann.
Der Wohnraum soll wie folgt aufgeteilt werden:
Küche Esszimmer Wohnzimmer (im Plan ist die "leere" Fläche zwischen Küche und Wohnzimmer nicht beschriftet -> da kommt das Esszimmer mit einem runden Tisch hinein). Ach ja, wir mögen lieber runde Formen, wie man am geschwungenen Balkon sieht
Das Haus hat keinen Keller und sehr wenig Stauraum. Daher müssten wir ggf. überlegen, Vorräte in die Küche zu integrieren. Dagegen haben wir wenig Geschirr.
Zu den Farben:
Gelb: Das sind die alten Wände, die eingerissen werden.
Rot: Das sind neue Wände.
Grün: Das ist die Aussenisolation.
Zum Charakter:
Für uns ist es wichtig, das Haus gemütlich zu gestalten. Daher sind tendenziell eher warme Holztöne für uns interessant. Wenn möglich sollte die Küche, das Parkett und die Holzelemente (etwa Treppe) aus dem gleichen Holz sein.
Zu 3D Plänen:
Wir haben nur einen Mac und können leider den Alno Planer nicht nutzen. Wir versuchen uns gerade am Ikea -Planer oder ähnlichen. Wenn Ihr noch Tipps habt,... jederzeit gerne.
Da wir Französisch sprechen, eine kleine Übersetzung der Begriffe im Plan:
Entree - Eingang
Buanderie/Cave/Tech - Waschraum/Keller/Technologie
Chauffage - Heizung
Cuisine - Küche
Musique - Musikzimmer
Sejour - Wohnzimmer
Manger - Esszimmer
Surf. - Fläche
Vitrée - Fensterfläche
Zum Anhang:
- Einen Plan des Erdgeschosses, aus dem die Laufwege hervorgehen sollten.
- Eine Vergrösserung des Plans für die Küche.
Vielen Dank vorab für Euer Feedback.
Herzliche Grüsse!
Checkliste zur Küchenplanung
Anzahl Personen im Haushalt: 4
Davon Kinder?: 2
Art des Gebäudes?: Neu-/Umbau, Planänderungen möglich
Körpergrössen aller Hauptbenutzer (wegen Arbeitshöhe ) in cm: 184cm und 176cm
Brüstungshöhe des Fensters (in cm): 70cm (variabel)
Fensterhöhe (in cm): 130cm
Raumhöhe in cm: 250 (exkl. Fussbodenheizung)
Heizung: Fussbodenheizung
Sanitäranschlüsse: vollkommen variabel
Ausführung Kühlgerät: Side by Side ca. 90cm breit
Kühlgerät Größe: noch unbekannt
Ausführung Tiefkühl (TK)-Gerät: Eigenständiges Gerät bis 88 cm Höhe
Dunstabzugshaube: Umluft
Backofen etc. hochgebaut?: Ja
Hochgebauter Geschirrspüler ?: Wenn möglich
Kochfeldart: Ceran (herkömmlich)
Kochfeldbreite ca. (in cm)?: 90
Spülenform: 1,5 Becken mit Abtropffläche
Geplante Heißgeräte: Dampfgarer mit Wasseranschluß, Backofen
Küchenstil: Modern
Sitzmöglichkeit in der Küche / im Küchenbereich: Arbeitsplatte in Tischhöhe
Sitzmöglichkeit: Für wieviel Personen?: für 4 Personen
Sitzmöglichkeit: Tisch - wenn gesonderter Tisch oder offene Küche: Wird nach Bedarf neu gekauft
Gewünschte o. vorhandene Tischgröße: ?
Wofür soll der Sitzplatz in der Küche genutzt werden? Wie häufig?: Frühstück, Abendsnack
Welche Arbeitshöhe ist angedacht (in cm)?: auszutesten
Was steht auf der Arbeitsplatte oder soll dort stehen?: Kaffeevollautomat, Wasserkocher, Küchenmaschine, Sonstiges (evtl. im Beitragstext benennen)
Welche weiteren Küchenmaschinen müssen in der Küche untergebracht werden?: Toaster, Allesschneider (z. B. in Schublade), Handrührgerät, Mixer, Pürierstab
Was soll in der Küche außer den Standards untergebracht werden?: Geschirr komplett (nichts in Ess-/Wohnzimmer)
Welchen Stauraum gibt es sonst noch?: Keller
Was/wie wird gekocht? (Alltagsküche, Menüs, Snacks usw): Alles
Wie häufig wird gekocht?: (fast) täglich 2x warm
Wird alleine gekocht? Oder auch gemeinsam? Mit und für Gäste?: Allein oder zu zweit und häufig in der Familie
Was stört an der bisherigen Küche und was soll die neue Küche unbedingt können? Warum?: Wir brauchen viel Arbeitsfläche, guter Dunstabzug, Backofen und Geschirrspüler evtl. hoch gelegt, viele Schubladen, eher Schubladen als tiefe Schränke (gute Erreichbarkeit), hochwertige Auszüge, Gemütlichkeit, Bewegungsspielraum, kein Durchgang zwischen Spüle, Herd und Arbeitsfläche
Welche Mülltrennung soll in der Küche vorgehalten werden?: Altglas, Altpapier, Biomüll, Restmüll
Steht schon ein Küchenhersteller fest oder wird bevorzugt?: ggf. Rempp
Steht schon ein Gerätehersteller fest oder wird bevorzugt?: Nein, Favoriten: Liebherr , Miele , ggf. Berbel
Preisvorstellung (Budget): mehr als 25.000,-
Seit einiger Zeit verfolgen wir schon intensiv die Diskussionen hier im Forum und sind begeistert von der Aktivität und der Ideenvielfalt von allen Mitgliedern. Dies hat uns Mut gemacht, auch unser Projekt hier zur Diskussion zu stellen. Wir hoffen, dass wir viele spannende Ideen entwickeln können.
Hintergrundinformationen:
Wir haben ein Haus gekauft, das wir vollständig renovieren. Die Küche wird hierbei neu erstellt. Unser Favorit aktuell ist eine Rempp -Küche (Arno Wildeiche Honig, in weiss mit Holzelementen). Der Fussboden wird mit Parkett sein.
Das Haus ist recht klein (Grundfläche auf einer Ebene ca. 90m2). Daher haben wir das Erdgeschoss offen gestaltet. Der Wohnbereich geht nach Süden hinaus auf eine großzügige Terrasse, die auch in den Wohnraum aktiv mit einbezogen werden kann.
Der Wohnraum soll wie folgt aufgeteilt werden:
Küche Esszimmer Wohnzimmer (im Plan ist die "leere" Fläche zwischen Küche und Wohnzimmer nicht beschriftet -> da kommt das Esszimmer mit einem runden Tisch hinein). Ach ja, wir mögen lieber runde Formen, wie man am geschwungenen Balkon sieht
Das Haus hat keinen Keller und sehr wenig Stauraum. Daher müssten wir ggf. überlegen, Vorräte in die Küche zu integrieren. Dagegen haben wir wenig Geschirr.
Zu den Farben:
Gelb: Das sind die alten Wände, die eingerissen werden.
Rot: Das sind neue Wände.
Grün: Das ist die Aussenisolation.
Zum Charakter:
Für uns ist es wichtig, das Haus gemütlich zu gestalten. Daher sind tendenziell eher warme Holztöne für uns interessant. Wenn möglich sollte die Küche, das Parkett und die Holzelemente (etwa Treppe) aus dem gleichen Holz sein.
Zu 3D Plänen:
Wir haben nur einen Mac und können leider den Alno Planer nicht nutzen. Wir versuchen uns gerade am Ikea -Planer oder ähnlichen. Wenn Ihr noch Tipps habt,... jederzeit gerne.
Da wir Französisch sprechen, eine kleine Übersetzung der Begriffe im Plan:
Entree - Eingang
Buanderie/Cave/Tech - Waschraum/Keller/Technologie
Chauffage - Heizung
Cuisine - Küche
Musique - Musikzimmer
Sejour - Wohnzimmer
Manger - Esszimmer
Surf. - Fläche
Vitrée - Fensterfläche
Zum Anhang:
- Einen Plan des Erdgeschosses, aus dem die Laufwege hervorgehen sollten.
- Eine Vergrösserung des Plans für die Küche.
Vielen Dank vorab für Euer Feedback.
Herzliche Grüsse!
Checkliste zur Küchenplanung
Anzahl Personen im Haushalt: 4
Davon Kinder?: 2
Art des Gebäudes?: Neu-/Umbau, Planänderungen möglich
Körpergrössen aller Hauptbenutzer (wegen Arbeitshöhe ) in cm: 184cm und 176cm
Brüstungshöhe des Fensters (in cm): 70cm (variabel)
Fensterhöhe (in cm): 130cm
Raumhöhe in cm: 250 (exkl. Fussbodenheizung)
Heizung: Fussbodenheizung
Sanitäranschlüsse: vollkommen variabel
Ausführung Kühlgerät: Side by Side ca. 90cm breit
Kühlgerät Größe: noch unbekannt
Ausführung Tiefkühl (TK)-Gerät: Eigenständiges Gerät bis 88 cm Höhe
Dunstabzugshaube: Umluft
Backofen etc. hochgebaut?: Ja
Hochgebauter Geschirrspüler ?: Wenn möglich
Kochfeldart: Ceran (herkömmlich)
Kochfeldbreite ca. (in cm)?: 90
Spülenform: 1,5 Becken mit Abtropffläche
Geplante Heißgeräte: Dampfgarer mit Wasseranschluß, Backofen
Küchenstil: Modern
Sitzmöglichkeit in der Küche / im Küchenbereich: Arbeitsplatte in Tischhöhe
Sitzmöglichkeit: Für wieviel Personen?: für 4 Personen
Sitzmöglichkeit: Tisch - wenn gesonderter Tisch oder offene Küche: Wird nach Bedarf neu gekauft
Gewünschte o. vorhandene Tischgröße: ?
Wofür soll der Sitzplatz in der Küche genutzt werden? Wie häufig?: Frühstück, Abendsnack
Welche Arbeitshöhe ist angedacht (in cm)?: auszutesten
Was steht auf der Arbeitsplatte oder soll dort stehen?: Kaffeevollautomat, Wasserkocher, Küchenmaschine, Sonstiges (evtl. im Beitragstext benennen)
Welche weiteren Küchenmaschinen müssen in der Küche untergebracht werden?: Toaster, Allesschneider (z. B. in Schublade), Handrührgerät, Mixer, Pürierstab
Was soll in der Küche außer den Standards untergebracht werden?: Geschirr komplett (nichts in Ess-/Wohnzimmer)
Welchen Stauraum gibt es sonst noch?: Keller
Was/wie wird gekocht? (Alltagsküche, Menüs, Snacks usw): Alles
Wie häufig wird gekocht?: (fast) täglich 2x warm
Wird alleine gekocht? Oder auch gemeinsam? Mit und für Gäste?: Allein oder zu zweit und häufig in der Familie
Was stört an der bisherigen Küche und was soll die neue Küche unbedingt können? Warum?: Wir brauchen viel Arbeitsfläche, guter Dunstabzug, Backofen und Geschirrspüler evtl. hoch gelegt, viele Schubladen, eher Schubladen als tiefe Schränke (gute Erreichbarkeit), hochwertige Auszüge, Gemütlichkeit, Bewegungsspielraum, kein Durchgang zwischen Spüle, Herd und Arbeitsfläche
Welche Mülltrennung soll in der Küche vorgehalten werden?: Altglas, Altpapier, Biomüll, Restmüll
Steht schon ein Küchenhersteller fest oder wird bevorzugt?: ggf. Rempp
Steht schon ein Gerätehersteller fest oder wird bevorzugt?: Nein, Favoriten: Liebherr , Miele , ggf. Berbel
Preisvorstellung (Budget): mehr als 25.000,-
Anhänge
