Küche Neubau Junggeselle

Lile08

Mitglied
Beiträge
138
Hallo,
da die Küchenplanung hier so viel Spaß macht, habe ich einem Freund angeboten, ihn bei seiner Planung zu unterstützen.
Er ist alleinstehend und fängt gerade an zu bauen.
Trotzdem soll das Haus und die Küche natürlich so ausgelegt sein, dass dort auch eine Familie wohnen kann.

Anbei mal der Plan der Küche.
Ich habe eine Tür vom Flur zur Küche schon gestrichen und dafür in den Abstellraum nebenan gelegt.
Sonst gibt es eigentlich kaum Möglichkeiten, die Küche vernünftig zu stellen. Oder sehe ich das falsch?

In den 1. Plan habe ich die Maße reingeschrieben und die umgelegte Tür eingezeichnet.
Im 2. Plan habe ich mal grob eingezeichnet, wie die Einteilung ungefähr möglich wäre.
An der Wand planlinks komplett Hochschränke, mit Kühlschrank und hohem Backofen .
Und planrechts Arbeitsfläche, Kochfeld und Spüle.
Evtl. neben der Spüle hochgesetzt die Spülmaschine?
Oder ist sie blöd an der Stelle?

Wir sind für alle Tipps und Ideen offen, und ich hoffe, wir kriegen für den Junggesellen eine schöne Küche hin ; )

upload_2016-9-9_9-25-50.png


Checkliste zur Küchenplanung

Anzahl Personen im Haushalt: 1
Davon Kinder?:
Art des Gebäudes?:
Neu-/Umbau, Planänderungen möglich
Körpergrössen aller Hauptbenutzer (wegen Arbeitshöhe ) in cm: 185
Brüstungshöhe des Fensters (in cm): 895
Fensterhöhe (in cm): 138
Raumhöhe in cm: 255
Heizung: Fussbodenheizung
Sanitäranschlüsse: vollkommen variabel
Ausführung Kühlgerät: Integriert im Hochschrank (60cm)
Kühlgerät Größe: noch unbekannt
Ausführung Tiefkühl (TK)-Gerät: Im Kühlschrank als kleines Fach oben
Dunstabzugshaube: Abluft
Backofen etc. hochgebaut?: Ja
Hochgebauter Geschirrspüler ?: Wenn möglich
Kochfeldart: Induktion
Kochfeldbreite ca. (in cm)?: 80
Spülenform: Noch nicht festgelegt
Geplante Heißgeräte: Einbaumikrowelle, Backofen
Küchenstil: Modern
Sitzmöglichkeit in der Küche / im Küchenbereich: Keine
Sitzmöglichkeit: Für wieviel Personen?:
Sitzmöglichkeit: Tisch - wenn gesonderter Tisch oder offene Küche:
Gewünschte o. vorhandene Tischgröße:
Wofür soll der Sitzplatz in der Küche genutzt werden? Wie häufig?:
Welche Arbeitshöhe ist angedacht (in cm)?:
Was steht auf der Arbeitsplatte oder soll dort stehen?:
Kaffeemaschine, Toaster, Brotbehälter
Welche weiteren Küchenmaschinen müssen in der Küche untergebracht werden?:
Was soll in der Küche außer den Standards untergebracht werden?:
Geschirr komplett (nichts in Ess-/Wohnzimmer)
Welchen Stauraum gibt es sonst noch?: Speisekammer
Was/wie wird gekocht? (Alltagsküche, Menüs, Snacks usw):
Wie häufig wird gekocht?:
ab und zu
Wird alleine gekocht? Oder auch gemeinsam? Mit und für Gäste?: Alleine
Was stört an der bisherigen Küche und was soll die neue Küche unbedingt können? Warum?:
Welche Mülltrennung soll in der Küche vorgehalten werden?:
Biomüll, Gelber Sack Müll, Restmüll
Steht schon ein Küchenhersteller fest oder wird bevorzugt?:
Steht schon ein Gerätehersteller fest oder wird bevorzugt?:
Preisvorstellung (Budget):
 

Anhänge

  • upload_2016-9-9_9-25-6.png
    upload_2016-9-9_9-25-6.png
    417 KB · Aufrufe: 254
Sorry, ich hab gerade gesehen, dass die Zeichnung mit den Maßen fehlt.
Hier ist sie.
upload_2016-9-9_10-26-25.png
 
Also die Küchentüre würde ich tunlichst da lassen, wo sie ist. Höchstens noch ein bischen nach planoben schieben. Das wäre doch total nervig, wenn man jedesmal diesen Slalom laufen müsste, wenn man von der Treppe kommt. Die beginnt ja scheints planunten links und gegenüber der Küchentüre ist nur der Kellerabgang.

Man könnte die Hochschrankwand in die Abstellkammer rein versenken, sofern das keine tragende Wand ist. Mit Trockenbau ummantelt. Ginge leider nur so, denn für Türe und Schränke ist sonst zu wenig Platz.

Also dunkleres Blau = 4 Hochschränke planunten.
Geld = Trockenbau
Orange = Installationsschacht, irgendwo müssen ja auch die Leitungen durchs Haus gehen.
Hellblau = Unterschränke
Türkis = zwei Sitzplätze am der Arbeitsinsel

Am Ende der langen Zeile könnte eine schöne Vitrine stehen, so bischen als Blickfang vom Essbereich aus. Oder ein Bild, Pflanze etc...

lile.jpg
 
Das ist natürlich auch eine gute Idee.
Wir hatten irgendwie immer gedacht, die Tür vom Abstellraum zur Küche muss bleiben, aber muss sie ja gar nicht.
Und jedes Mal durch den Abstellraum zu laufen, um in die Küche zu kommen, ist auch wirklich nicht so toll.
Aber mit dem einsenken geht leider nicht, es ist eine tragende Wand...
 
Eine Schiebetür macht auf jeden Fall Sinn.
Aber da die Wand zum Abstellraum eine tragende Wand ist, geht das mit dem einsenken, wie tantchen es vorgeschlagen hat, ja leider gar nicht. Oder sehe ich das falsch?
Die komplette Wand verschieben geht ja auch nicht, weil das Fenster vom Abstellraum dann im Weg wäre...

Ich überlege gerade, ob es wirklich so blöd wäre, die Küchentür weg zu lassen?
Wenn man z.B. vom einkaufen kommt, kann man ja direkt in den Abstellraum gehen (wo auch Vorräte, Getränke und ein 2. Kühlschrank mit Gefrierschrank stehen sollen), alles auspacken, was dort hingehört, und dann weiter in die Küche.
Und sonst hält man sich ja meistens im Wohn- oder Esszimmer auf, und geht dann von dort aus in die Küche.
Oder sehe ich das falsch??
 
Naja, das kommt auf die Gewohnheiten an. Kann man sich auch dran gewöhnen mit dem Slalom durchs Esszimmer.
Aber so Schlurfis, die morgens als Erstes mal noch ganz verpennt in die Küche an den Kaffeeautomat müssen, ist der direkte Weg sicher besser ;-)
Oder wenn man heimlich vom Flur schnell mal an den Kühli will, ohne Leuten im Esszimmer zu begegnen. Trifft dann aber nur Familien, wo z.B. Teenie schon im Pyjama ist...
Man könnte schon über den Abstellraum rein. Dann fallen halt 80cm Hochschrank weg, die man mit einer versteckten Türe auch "integrieren" kann.
Aber dann wird es auch mit der Halbinsel zu eng, weil zu wenig Abstand zu den Hochschränken.
Bedeutet also etwa 40cm schmaleren Esszimmer-Durchgang und somit 40cm mehr Slalom...

Alternativ könnte man den Esszimmereingang ein bißchen nach Planoben schieben mit links halt einem 20cm Wandstummelchen und den Durchgang zum Essbereich tatsächlich paar cm verschmälern. Dann könnten ca. 270 cm Wandlänge planlinks ausreichen für 60cm HS, 110cm Abstand mit Türe, 90cm Insel.
 
Zuletzt bearbeitet:
kannst du mal den kompletten Etagenplan einstellen?

Der Raum hat sehr ungünstige Masse und ist schwierig, sinnvoll zu möblieren.
 
Oh, da fällt mir noch was Wichtiges auf: die BRH des Fensters ist mit 89,5 cm angegeben. Was genau bedeutet das? Fetigmaß von Fußboden bis Oberkante Fensterbrett? Wenn ja, dann muss das unbedingt geändert werden. Bei ner Größe von 185 sollten das mindestens ca. 96cm Arbeitshöhe werden oder mehr.
Da muss er sich entscheiden. Küche für sich planen und passend einrichten oder für eine imaginäre Frau mit imaginären max. 170cm... und dann lernt er doch ne 180er Blondine kennen, die ständig in Highheels rumläuft. ;D

Wenn die 89,5 bis Unterkante Fensterbrett sind, dann kann man mit ein wenig Rahmenverbreiterung am Fenster unten weit genug hochkommen, dass es reicht knd man die AP schön in die Fensterlaibung reinlaufen lassen kann.

Bei meinem Plan könnten ggf. auch zwei unterschiedliche Höhen realisiert werden. Insel und Zeile.
 
Guten Morgen!
Hier einmal der komplette Etagenplan.

Die BRH werde ich auf jeden Fall schon mal mit ihm besprechen (die 180er Blondine mit Highheels würde ihm bestimmt gut gefallen :cool:)

Und die Gewohnheiten... das ist ja wirklich Ansichtssache, ob der Slalom stört oder nicht...
 

Anhänge

  • Erdgeschoss M.pdf
    66,2 KB · Aufrufe: 244
Hallo! Wie weit ist denn der Bau schon? Die Spannweite der Decke ist ja nicht so weit; könnte an hier nicht noch mit einem Unterzug oder so arbeiten?
Ich fände tantchens Idee aus #3 nämlich auch super und würde da wegen einer tragenden Wand nicht gleich aufgeben. Da gibts heute schon viele viele leistbare Varianten...
 
Er fängt jetzt erst mit den Erarbeiten an, noch wäre also vieles möglich.
Aber eigentlich möchte er am liebsten nicht mehr viel ändern, außer Kleinigkeiten
 
Ich finde ja, ein Unterzug statt einer tragenden Mauer fällt unter Kleinigkeit... Vor allem, wenn ich dafür so eine praktische und schicke Küche haben kann! Immerhin ändert man das später sicher nicht. Sprich doch noch mal mit ihm, ja? :2daumenhoch:;-):2daumenhoch:
 
Was genau ist denn ein Unterzug??
Ich muss es ihm ja auch plausibel erklären können ;-)
 
Und fändet ihr denn alternativ meinen 1. Vorschlag ohne Küchentür ganz daneben?
Wenn es für ihn weiterhin ok wäre, die Küchentür weg zu lassen?
 
meinst du den? wenn dieser Plan, dann stelle dir vor, du etwas etwas Möbel links, etwas Möbel rechts und dazwischen 200 x 468cm nichts (die planrechte Seite vielleicht 10cm tiefer, aber das war's schon). Das gehört in die Rubrik Raumverschwendung.

Dazu kommt, es ist ein mehr oder weniger offener Raum, man steht aber immer mit dem Rücken zum Wohnraum. Macht irgendwie keinen Sinn.

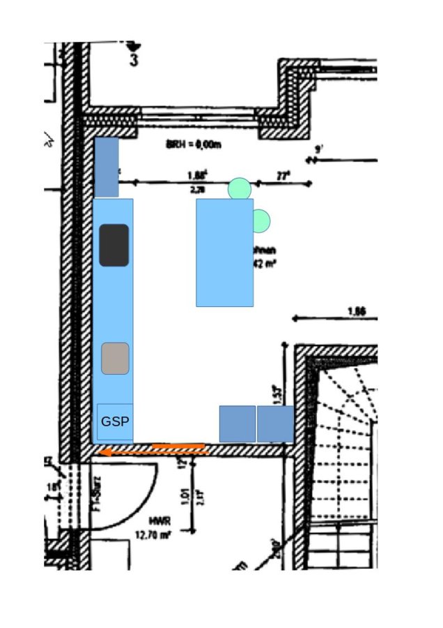
Die Fensterzeile, wie in deinem Plan, würde ich dann von planoben so machen
60
80
80 mit Kochfeld
80
40 mit MUPL
60 mit Spüle
60 GSP

upload_2016-9-9_9-25-50-png.222325
 
wenn mal die beiden Zeilen so belassen würde, aber die HS + Wand 45-50cm nach planrechts schiebt, könnte man eine Gardarobennische einplanen. Wo ist denn eine Garderobe eingeplant?
 
wenn es diese tragende Wand nicht gäbe, dann könnte man es so machen. Die insel ist ist 3.2 x 1.2 m gross, wobei 1.1m Inseltiefe auch reichen.

Lile1.JPG
 
Hmm, also mir drängt sich da eher ein Raumtausch auf. Die Räume außen sind ja genau gleich breit. Nur hat Wohnen links halt kein Fenster mehr. Mit der Raumtiefe von etwas mehr als 4,50m wäre das aber net sooo tragisch. In der Wohnung meiner Mutter waren es 6,75m und draußen über der Terrasse noch ein Balkon. Selbst da ging es mit dem Licht noch.

Da fände ich es auch hinsichtlich Einkäufen vom Auto her wesentlich besser, wenn die Küche nach links käme und man von der Garage durch den HWR direkt da reinlaufen könnte.

Und dann würde ich Essen und Küche "zusammen" lassen und stattdessen den Wohnbereich durch eine Schiebetüre abtrennbar machen. Also einfach Wohnzimmer nach rechts, so wie es ist mit den Wänden. Falls mal jemand seine Ruhe möchte und der andere Teil der Familie noch am Esstisch sitzt oder jemand in der Küche werkelt.

So hätte man auch einen Slalom vom Flur aus, aber nicht mehr um ein Mauerstück drumrum, sondern ein wenig direkter *find*
Alternativ von der Treppe aus durch den HWR. Dann könnte ja der Abstellraum z.B. auch die Haustechnik aufnehmen, falls möglich. Weiß ja jetzt nichtm wie das alles gedacht ist. Aber eigentlich sind im Stadium Erdarbeiten alle solchen Sachen schon fix.
Kommt also drauf an, wie "wohnlich" man sich den HWR einrichtet und wie gern man dann später da evtl auch durch läuft, wenn man den kurzen Weg möchte.

Also hier mal ein Beispiel mit langer Wandzeile, freistehender Insel mit Sitzplätzen und zwei Hochschränken. Wobei man auch hochgebauten GSP und Kühli nach links neben die Spüle stellen könnte. Dann wäre zumindest der Weg zum Kühli etwas kürzer.
Bei 312 cm Raumbreite (sind wohl eh noch Rohbaumaße) hat man eben einfach nicht genug Platz für eine Insel und Laufwege. Aber mit offenem Durchgang klappt das.
lile.jpg
Oder eben alternativ meinen ersten Vorschlag gespiegelt. Aber dann ohne Versenkte Schränke, das wäre ja dann wegen fehlender Türe nicht mehr nötig. Dann halt ne versteckte Türe in der Hochschrankwand vom HWR zur Küche. Und die Zeile auch nicht unbedingt an einer Toten Ecke angeschlossen, sondern separat mit etwa 70-80cm Abstand und den hochgebauten GSP dann ganz in die Ecke planlinks.
 

Ähnliche Beiträge

Neff Hausgeräte Ballerina Küchen Blum Bewegungstechnologie Weibel - Intelligente Küchenlüftung

Neff Spezial

Blum Zonenplaner

Weibel Abluft-Tuning

Weibel Abluft-Tuning
Zurück
Oben