Unbeendet Küche im Neubau

Stauraum

Mitglied
Beiträge
8
Hallo liebe Forumsmitglieder,


wir bauen gerade unser Haus. Aktuell steht bereits der Rohbau und macht seinen verdienten Winterschlaf.

Darum haben wir auch wieder mehr Zeit uns mit den richtig wichtigen Dingen zu beschäftigen, wie zum Beispiel der Küchenplanung .

Leider haben wir den Fehler gemacht und etwas voreilig bei einem Küchenangebot zugeschlagen, als wir die Anschlüsse und Details für den Neubau geplant haben.

Jedoch können wir trotzdem recht flexibel noch um planen und derzeitige Mängel der Planung beheben.


Und zum Glück bin ich noch rechtzeitig auf dieses Forum und euch Küchenexperten gestoßen. Großartig wie ihr uns Küchenanfängern helft und euch für die Planungen Zeit nehmt.


Nach kurzer Recherche im Forum kenne ich nun auch die klassischen Fehler der Küchenplanung. Le Mans Schrank und Apothekerschrank . Und natürlich haben wir beides in unserer eigenen davor gemachten Küchenplanung dabei. :(


Daher habe ich versucht mit dem Alno -Planer unsere Küchenplanung nachzustellen. Leider habe ich es nicht geschafft eine grifflose Variante zu erstellen, obwohl ich es extra nachgelesen habe. Vielleicht könnte mir hier jemand helfen.


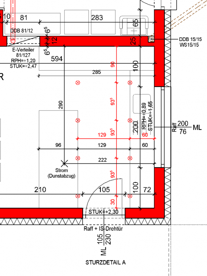
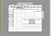
Zum Küchenplan:


Seitenschränke: Höhe 195cm mit 15cm Sockel

- 60 Einbaukühlschrank mit kl. Gefrierfach und Bio Fresh (Im HWR großer Gefrierschrank)

- 60 Dampfbackofen

- 30 Apotheker

-60 hochgestellter Geschirrspüler

- Ecknische Platz für Geräte


Unterschränke: 75cm mit 15cm Sockel

- Le Mans

- 60 Spülschrank mit Müllsystem

- 80 Auszugschrank

- 80 Auszugschrank (mit 2 Schubladen)

- 60 Auszugschrank


Insel:

- 60 2 Schubladen 1 Auszug + 60 mit 35 Tiefe

- 90 mit 80er Induktion darüber Inselabzugshaube+ 90 mit 35 Tiefe

- 60 2 Schubladen 1 Auszug+ 60 mit 35 Tiefe



Ich würde mich über eure Meinungen und Verbesserungsvorschläge sehr freuen und hoffe alle wichtigen Informationen beigefügt zu haben.


Lg Boris




Checkliste zur Küchenplanung

Anzahl Personen im Haushalt: 4
Davon Kinder?: 2
Art des Gebäudes?: Neu-/Umbau, Planänderungen möglich
Körpergrössen aller Hauptbenutzer (wegen Arbeitshöhe ) in cm: 190 und 175
Brüstungshöhe des Fensters (in cm): 89,0
Fensterhöhe (in cm): 76, 230
Raumhöhe in cm: 255
Heizung: Fussbodenheizung
Sanitäranschlüsse: variabel an aktueller Wand
Ausführung Kühlgerät: Integriert im Hochschrank (60cm)
Kühlgerät Größe: bis 178 cm Höhe
Ausführung Tiefkühl (TK)-Gerät: Eigenständiges Gerät bis 178 cm Höhe
Dunstabzugshaube: Umluft
Backofen etc. hochgebaut?: Ja
Hochgebauter Geschirrspüler ?: Ja
Kochfeldart: Induktion
Kochfeldbreite ca. (in cm)?: 80
Spülenform: 1 Becken mit Abtropffläche
Geplante Heißgeräte: Dampfbackofen (DGC) mit Wasseranschluß
Küchenstil: Grifflos
Sitzmöglichkeit in der Küche / im Küchenbereich: Gesonderter Tisch
Sitzmöglichkeit: Für wieviel Personen?:
Sitzmöglichkeit: Tisch - wenn gesonderter Tisch oder offene Küche: Wird nach Bedarf neu gekauft
Gewünschte o. vorhandene Tischgröße: 220
Wofür soll der Sitzplatz in der Küche genutzt werden? Wie häufig?:
Welche Arbeitshöhe ist angedacht (in cm)?: 94
Was steht auf der Arbeitsplatte oder soll dort stehen?: Kaffeemaschine, Küchenmaschine, Obstschale
Welche weiteren Küchenmaschinen müssen in der Küche untergebracht werden?: Toaster, Allesschneider (z. B. in Schublade), Handrührgerät
Was soll in der Küche außer den Standards untergebracht werden?: ALLE Vorräte, Geschirr komplett (nichts in Ess-/Wohnzimmer)
Welchen Stauraum gibt es sonst noch?: Hauswirtschaftsraum
Was/wie wird gekocht? (Alltagsküche, Menüs, Snacks usw): Alltagsküche
Wie häufig wird gekocht?: (fast) täglich 1x warm
Wird alleine gekocht? Oder auch gemeinsam? Mit und für Gäste?: Am Wochenende gemeinsam. Ja auch für Gäste
Was stört an der bisherigen Küche und was soll die neue Küche unbedingt können? Warum?: zu klein und zu altmodisch. Viel Stauraum bieten und schön sein :-)
Welche Mülltrennung soll in der Küche vorgehalten werden?: Altpapier, Biomüll, Gelber Sack Müll, Restmüll
Steht schon ein Küchenhersteller fest oder wird bevorzugt?: Dieter Knoll
Steht schon ein Gerätehersteller fest oder wird bevorzugt?: Liebherr , Neff
Preisvorstellung (Budget): bis 15.000,-
 

Anhänge

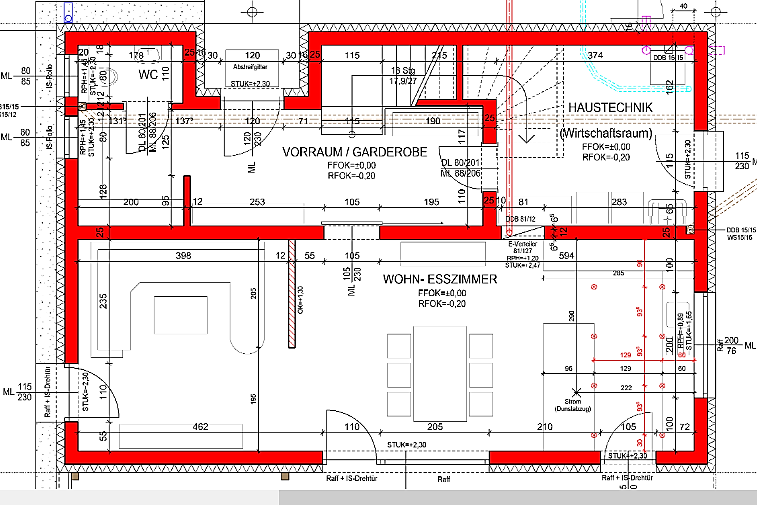
  • Grundriss EG.png
    Grundriss EG.png
    134,8 KB · Aufrufe: 298
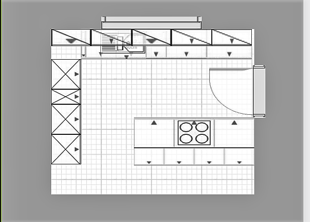
  • Grundriss Küche.PNG
    Grundriss Küche.PNG
    295,7 KB · Aufrufe: 312
  • Küche Grafik.png
    Küche Grafik.png
    188,3 KB · Aufrufe: 330
  • Plan Alno.png
    Plan Alno.png
    76,9 KB · Aufrufe: 304
Zuletzt bearbeitet von einem Moderator:
Hallo und herzlich willkommen! :welcome:

Mit dem Alno kann ich dir leider nicht helfen, da ich an einem Mac arbeite. Aber da kommen noch andere. Ansonsten denken wir sie und grifflos.

Die Planung sieht doch auch ganz gut aus. Die unpraktischen und auch teuren Varianten Le Mans und Apotheker sind dir schon selbst aufgefallen, also raus damit.

Dann fehlt da noch der MUPL . Den liebt man einfach, sobald man ihn hat.

Rein optisch bin ich der Ansicht, dass so ein Fenster keine Oberschränke in der Form verträgt. So ein schmales breites Fenster sieht sehr schön aus, wenn es durch Hochschränke und Oberschränke eingerahmt wird. In dem Fall hier würde ich auf die Oberschränke verzichten.
Falls es dadurch zu einem Stauraumproblem kommen sollte, frage ich mich, ob die Tür zum HWR sein muss?
 
Guten Morgen,

danke für deine rasche Antwort und dein Feedback zu unserer Planung.
Ja, der Le Mans und der Apotheker werden rauskommen, jedoch weiß ich nicht so wirklich wie hier die besten Alternativen ausschauen. Hier hoffe ich, dass ich später Hilfe dafür bekomme.

Also ein Müllsystem des Küchenherstellers ist eingeplant, gibt es da einen Unterschied zum MUPL aus dem Forum?

Zu den Oberschränken: Der Stauraum ist natürlich schon wichtig für uns und gerade Gläser haben hier einen guten Platz denk ich.
Die eingezeichnete Tür geht zur Terrasse und zum Garten hinaus und nicht in den HWR . Vielleicht meinst du aber auch den E-Verteiler bei den Seitenschränken.
Die Optik gefällt uns mit den Oberschränken eigentlich schon. Ich denke ohne diese würde das Fenster auch irgendwie verloren wirken durch die Schlitzoptik.
Trotzdem danke für den Hinweis, wir werden auf jeden Fall darüber nachdenken.

Anbei noch die Alno -Planung.

Freu mich auf weitere Meinungen.
 

Anhänge

  • PLAN16.KPL
    4,1 KB · Aufrufe: 171
  • PLAN16.POS
    5,1 KB · Aufrufe: 165
Hi,
ich würde auch die Hängeschränke weg lassen, sehe das wie Anke.
Die Insel würde ich auch länger gestalten, ca. 40-50cm, so einen breiten Durchgang braucht man nicht und es hätte einen Vorteil ---> mehr Platz neben Kochfeld.
Die Schränke auf der Rückseite der Insel würde ich mit Drehtüren statt der Auszüge, ausstatten. Bei Auszügen in dieser Tiefe passt nicht viel rein.
Mir ist auch aufgefallen, dass ihr die Aufteilung auf der Rückseite der Insel der Frontseite angepasst hat, das ist meiner Meinung nach nicht nötig. Meiner Meinung nach würden einheitlich breite Drehtüren besser aussehen.
 
Es kommt darauf an, welches Müllsystem verplant wurde.

Der Mupl sind einfach Abfalleimer(z.B. auch die von Ikea ), die in einem oberen Auszug stehen, ideal ist ein Schrank von 40cm Breite. Ein schmalerer Schrank deshalb, weil wenn man ihn mal offen lässt, nimmt er weniger Platz weg. Im oberen Auszug, weil man direkt von der Arbeitsplatte den Abfall in den Eimer wischen kann – treffsicher. Deshalb ist er optimal dort, wo man auch künftig schnippeln wird.

Das gibt es auch von Küchenherstellern, die nennen es anders. Ein Unterschied ist auch der Preis. Du kaufst kein Müllsystem beim KFB, sondern einfach einen Schrank mit zwei Auszügen. Die Eimer kannst du separat kaufen.
 
Hier mal ein Vorschlag zur Aufteilung:

Die Hochschränke wie bei dir, dann
tote Ecke
60er US
60er US mit Spüle
40er US mit MUPL
80er US
80er US
Blende

Hier nur Sicherheitshalber eine Nachfrage: Du hast zwei Wasseranschlüsse oder musst du den hinter der Spüle auf Putz ums Eck ziehen?

Die Insel finde ich so gut aufgeteilt, würde auf der Rückseite aber auch Drehtüren nehmen, weil tiefungekürzte Auszüge teuer und nicht notwendig sind, man kann ja nicht so tief rein stapeln. Hier wären 30er Türen für eine einheitliche Aufteilung denkbar.
Der Durchgang ist 1,3m, was ich gut finde. Man könnte aber auch 3x80er planen, dann wäre der Durchgang 1m. Das müsstet ihr mal ausprobieren, durch Stellen von anderen Möbeln oder Kisten, ob das für euch passt. Und dann Abwägen zwischen mehr Stauraum (der Unterschied von 60 auf 80 ist schon enorm) oder dem breiteren Durchgang.

Wenn ihr die Oberschränke so wollt, dann würde ich auf HS-Seite keinen Schrank über der toten Ecke planen, sondern die Oberschränke über dem Fenster von Wand zu Wand planen. Wenn es keinen Beschlag gibt, mit dem sich der OS in der toten Ecke sich nicht öffnen ließe, würde ich dann dort ein offenes Regal für Kochbücher machen.
 
Danke Anke und Espressobohne für eure Hilfe und Erklärungen.

Ich werd mir morgen oder übermorgen die Hängeschränke noch einmal genau anschauen und im Planer die Idee HS von einer Wand zur anderen Wand umsetzten. klingt sehr gut.
Ganz ohne kann ich mir eine Küche schwer vorstellen, gerade weil ich nicht wirklich eine Idee hätte, wo Tassen und Glässer gut untergebracht wären.

Ihr habt recht der Durchgang gibt auf jeden Fall noch etwas her, darum möchten wir die Insel so wie ihr vorgeschlagen habt vergrößern. Bei der Variante 80–80–80 ist der Einbau von einem 80er Induktionsfeld ohne Probleme möglich, oder braucht man einen 90er?
Außerdem gefällt uns eure Empfehlung die hinteren Schränke der Insel als Drehtüren auszuführen. Auch überlegen wir diese auf eine Tiefe von 60cm zu erweitern um noch mehr Stauraum zu bekommen und dieser Platz sonst eher unbenutzt sein wird.

Unterschränke Vorschlag gefällt uns auch gut. Werden wir auch in Ruhe besprechen und uns im Planer anschauen.

– hinsichtlich Spüle. Würdet ihr die Abtropffläche so lassen oder auf die linke Seite setzen?Irgendwie finde ich es komisch, dass sie genau in der Mitte des Raumes ist. Gedreht gebe es auch den Vorteil näher beim Geschirrspüler zu sein.

– Hochschräke: würdet ihr die Anordnung so lassen? Vielleicht Backofen und Kühlschrank tauschen, damit der Weg zum Kühlschrank kürzer wird?
Und dann zum Apotheker? Ersatzlos streichen oder welche Alternativen gebe es mit einer Breite von 30cm?

– wir möchten einen Allesschneider. Jedoch soll der nicht immer sichtbar auf der Arbeitsplatte stehen. Was sagt ihr zu den System der in einer Schublade verschwindet? Wie löst ihr dieses Problem?

Danke im vorab für eure Meinungen.
 
Ich versuche mal auf alles zu antworten:

  • Wenn du die Schränke auf der Rückseite der Insel tief machst, dann schlage ich vor, entweder doch Auszüge zu nehmen oder wegen der ruhigeren Optik Drehtüren und Innenauszüge. Idee war ja, dass Drehtüren günstiger sind und reichen, wenn der Schrank nicht so tief ist. Wenn er normal tief ist, dann sind Auszüge besser und hier muss man dann entscheiden, ob mit oder ohne Drehtür.
  • Ich würde gar keine Abtropffläche nehmen, heißt ich habe auch keine. Ich habe eine mobile Abtropffläche von Joseph (quasi eine graue Gummimatte), die ich nutze und wenn ich sie nicht brauche, kann man sie super in der GSP verstauen. Es fällt ja auch nicht so viel an, was abtropfen muss, wenn man eine GSP hat.
  • Ich würde die HS so lassen, da ich es immer praktisch finde, den KS schnell vom Essplatz aus zu erreichen.
  • Alternative zum Apotheker ist ein 30er Schrank mit Innenauszügen, ein Space Tower .
    Space Tower.png
  • Ich habe keinen Alleeschneider. Aber es gibt hier einige im Forum, die in der Schublade haben. Gib das einfach mal in die Suchfunktion ein.
 
Dankeschön für deine Hilfe. hab jetzt versucht die Hängeschränke von Wand zu Wand zu planen. Entspricht das deinem angedachten Lösungsvorschlag.
Außerdem hab ich auch wie vorgeschlagen die Insel vergrößert auf 3x 80, gefällt mir sehr gut. (Wobei mir die hinteren unbeabsichtigt höher geraden sind, bitte ignorieren)

Gar keine Abtropffläche kann ich mir im Moment nicht so recht vorstellen, werde ich mir aber auch noch überlegen. Wenn eine Abtropffläche kommt, sollte ich sie noch auf die andere Seite planen oder so lassen??

Beim MUPL bräuchte ich eher einen 60er Schrank, weil wir Papier-, REst-, Plastik-, und Biomüll gerne hätten. Dann hätte ich an der Stelle des Le-Mans einen 40iger Schrank. Ist das eine gute Idee?

40er US
60er US mit Spüle
60er US mit MUPL
80er US
80er US
Blende


Danke fürs Helfen.
Screenshot (14).png
 
Bitte füge von deiner Planung mindestens ein Bild der Grundrissansicht von oben ein, damit man alle Schrankgrößen und Abstände erkennen kann. Weitere 3D-Ansichten kannst du gern zusätzlich beisteuern. ;-)

Im MUPL kannst du Bio- und Rest Müll unterbringen, Papier und Plastik dann in größer Eimer unter der Spüle. Dann richtig der MUPL in 30-40cm Breite.
 
Genau der MUPL ist für Rest- und Biomüll und wird gerne kleiner geplant, damit man ihn auch mal offen stehen lassen kann. Der Auszug muss ja auch nicht ganz offen stehen, sondern nur ein Stück und behindert dann kaum. Im Aufzug darunter kann man den gelben Sack ansiedeln oder aber nutzt es anderweitig (Ich habe z.B. Kartoffel, Zwiebeln, Knoblauch und Brot dort.) Und man nimmt dann einen anderen Auszug für den anderen Müll.
 
Ach so, Abtropfe NICHT Richtung MUPL, sondern wegzeigend von der Arbeitsfläche (damit Geschirr nicht im Weg ist, wenn du an die Spüle musst).

Vorschlag:
tote Ecke
80er US mit Spüle, Abtropfe nach links
80er US * Samy-Schrank * mit 40 MUPL
80er US
80er US
Blende
 
Danke wieder für die Tipps.
HAb jetzt einmal im Planer etwas herum gespielt und eure Inputs versucht umzusetzen.

-->Hängeschränke durchgezogen und in der Ecke ein Regal für Bücher.

-->Bei den Unterschränken hab ich folgende Variante gewählt:
-tote Ecke mit Blende (muss diese eine gewisse Größe haben, damit das Öffnen der Schränke gut funktioniert?)
-60 US (hier möchte ich unter anderem den eingebauten Allesschneider unterbringen)
-60 Spüle (Abtropffläche gedreht)
-40 MUPL
-80 US
-80 oder 90 US (was möglich ist)

-->Insel
- Beim Kochfeld 3x 80 US
- die hinteren 4x 60 US (35 Tiefe) mit Drehtüren

WAs haltet ihr von dieser Anordnung??
DAnke lg
Screenshot (27).png Screenshot (53).png
 
Die tote Ecke solltest mit 65x65 planen.
Die Anordnung ist ok, ich hab nicht alles nochmal durchgelesen, das Kochfeld muss auf die Insel?
 
Ich würde auf der Rückseite der Insel auch 3x80cm stellen, sind von der Fläche besser zu nutzen als 60cm breite Schränke. Dann mit je 2 40cm breiten Türen.

Den schmalen Vorratsschrank würde ich einen Schrank weiter nach unten setzen, das macht die Arbeitsabläufe in meinen Augen noch flüssiger.

Auf die offenen Regale in der OS Reihe würde ich verzichten, diese verschmutzen schnell und machen das ganze Bild unruhig. Noch besser: Auf die OS ganz verzichten und lieber die Insel 10-20cm tiefer planen und Auszüge auf die Rückseite setzen.
 
: Auf die OS ganz verzichten und lieber die Insel 10-20cm tiefer planen und Auszüge auf die Rückseite setzen.

Wenn du normaltiefe und 50cm tiefe Schränke Rücken an Rücken planst bekommst du bequemen Stauraum auf der Inselrückseite mit 3 x 80 cm Auszugschrank.
Die Inseltiefe wäre dann mit Frontbündiger Arbeitsplatte (grifflose Küche)106-107cm Tief.
Bei vorstehenden Griffen und 1,5cm Arbeitsplattenüberstand 110cm.

Die angedachten Hängeschränke über dem schmalen Fenster beeinträchtigen, auch aus meiner Sicht, die
elegante und großzügige Optik.
Nicht überall wo ein Stück freie Wand ist muss auch ein Schrank hängen.
 
Also die Hängeschränke kommen nicht wirklich gut an.

Wenn keine HS, wo bringt man alternativ Gläser, Tassen unsw. gut unter?

Wirkt das Fenster ohne HS nicht etwas komisch aufgrund der geringen Höhe? Ohne HS wäre ja eine „normal“ großes Fenster schöner gewesen.

Lg
 
Ja, so ein Fenster verlangt eigentlich rechts und links Hochschränke und dazwischen über dem Fenster Oberschränke. Man baut es eigentlich ein... Aber dafür ist bei dir der Platz links und rechts vom Fenster nicht genug...
 
Hallo Stauraum,

du kannst auch auf der Fensterseite übertiefe Schränke, ca. 70cm mit einer übertiefen Arbeitsplatte von ca. 75cm planen. Das gibt dir ca. 10cm mehr Innenraum-Nutzraum in jedem Auszug und dazu noch mehr Arbeitsfläche.

Bei mir stehen Gläser auch im Auszug, ausser Weingläser, die stehen im Wohnzimmer.

Wenn du meinst immer noch nicht genug Nutzraum zu haben, kannst du auch in der Hochschrankteile einen zusätzlichen Schrank, quasi als Aufsatzschrank aber in Hochschranktiefe nehmen.
 

Ähnliche Beiträge

Neff Hausgeräte Ballerina Küchen Blum Bewegungstechnologie Weibel - Intelligente Küchenlüftung

Neff Spezial

Blum Zonenplaner

Weibel Abluft-Tuning

Weibel Abluft-Tuning
Zurück
Oben