Unbeendet Küche im Neubau - wie anordnen?

Ringelblümchen

Mitglied
Beiträge
13
Hallo zusammen,

derzeit planen wir den Neubau unseres EFH. Da wir im Grundriss theoretisch noch alles ändern können (auch, wenn wir das eigentlich nicht wollen ;-)), beschäftigt mich derzeit die Aufteilung unserer möglichen Küche sehr.

Unbedingt rein muss ein Tresen und eine Stellmöglichkeit für Kaffeemaschine und Thermomix (Wünsche vom Freund ;D). Ich möchte gerne Backofen und Spülmaschine hochgestellt und eine Terrassentür, da die Küche zur Südseite liegt.

Die reinen Raummaße sind derzeit 3,8 m x 4,26 - in meiner Planung habe ich für alle Fälle großzügig Puffer eingeplant. Die Architektin prüft gerade, ob der Schornstein aus der Küche raus kann. Türen/Fenster sind noch flexibel, da der Kamin aber an der geplanten Stelle bleiben soll, kann die Schiebetür (! hab ich Programm leider nur normale Türen gefunden) nicht allzu weit nach Norden.

Schräg gegenüber wird es noch eine kleine Speis geben, in die Kuchenformen /-Glocken, ggf. gelber Sack, Brotschneidemaschine und ein Großteil der Vorräte kommen soll. Bei Bedarf kann da auch noch mehr vom Elektrokleinzeug (Mixer usw.) hin.

Ich brauche jetzt eigentlich noch gar keine konkrete Planung, was Geräte und Hersteller angeht - es geht erst mal nur darum, ob die Aufteilung, wie ich sie mir vortelle, sinnvoll ist oder ob ich besser auf hochgestellte Spüle/ Terrassentür verzichte, und doch eine U-Küche vorsehe.

Es wäre super, wenn ich dazu ein paar Rückmeldungen bekommen könnte! Vielen Dank schon mal! :kiss:

PS: geplant sind mal zwei Kinder, in ein paar Jahren
PPS: hab leider auch keinen Tresen gefunden - das sollen die seltsamen Anbauten an der Insel (Breite möglichst 90 cm) symbolisieren :-[

Checkliste zur Küchenplanung

Anzahl Personen im Haushalt: 2
Davon Kinder?:
Art des Gebäudes?:
Neu-/Umbau, Planänderungen möglich
Körpergrössen aller Hauptbenutzer (wegen Arbeitshöhe ) in cm: 162 (und 183)
Brüstungshöhe des Fensters (in cm): noch offen!
Fensterhöhe (in cm): noch offen
Raumhöhe in cm: ca. 250 cm
Heizung: Fussbodenheizung
Sanitäranschlüsse: vollkommen variabel
Ausführung Kühlgerät: Integriert im Hochschrank (60cm)
Kühlgerät Größe: noch unbekannt
Ausführung Tiefkühl (TK)-Gerät: Nicht erforderlich bzw. steht woanders
Dunstabzugshaube: keine
Backofen etc. hochgebaut?: Ja
Hochgebauter Geschirrspüler ?: Ja
Kochfeldart:
Kochfeldbreite ca. (in cm)?:
Spülenform:
1 Becken mit Abtropffläche
Geplante Heißgeräte: Einbaumikrowelle, Backofen
Küchenstil: Modern
Sitzmöglichkeit in der Küche / im Küchenbereich: Tresen in Barhöhe
Sitzmöglichkeit: Für wieviel Personen?: für 2 Personen
Sitzmöglichkeit: Tisch - wenn gesonderter Tisch oder offene Küche:
Gewünschte o. vorhandene Tischgröße:
Wofür soll der Sitzplatz in der Küche genutzt werden? Wie häufig?:
Frühstück am Wochenende, ggf. Unterhaltung während Kochen
Welche Arbeitshöhe ist angedacht (in cm)?: ?
Was steht auf der Arbeitsplatte oder soll dort stehen?: Kaffeevollautomat, Küchenmaschine, Obstschale
Welche weiteren Küchenmaschinen müssen in der Küche untergebracht werden?: Wasserkocher, Toaster, Handrührgerät, Pürierstab
Was soll in der Küche außer den Standards untergebracht werden?: Geschirr komplett (nichts in Ess-/Wohnzimmer)
Welchen Stauraum gibt es sonst noch?: Speisekammer, Keller
Was/wie wird gekocht? (Alltagsküche, Menüs, Snacks usw): Alltagsküche.
Wie häufig wird gekocht?: (fast) täglich 1x warm
Wird alleine gekocht? Oder auch gemeinsam? Mit und für Gäste?: Meist alleine, zu zweit soll aber möglich sein!
Was stört an der bisherigen Küche und was soll die neue Küche unbedingt können? Warum?:
Welche Mülltrennung soll in der Küche vorgehalten werden?:
Biomüll, Restmüll
Steht schon ein Küchenhersteller fest oder wird bevorzugt?: nein
Steht schon ein Gerätehersteller fest oder wird bevorzugt?: nein
Preisvorstellung (Budget): bis 15.000,-
--------------------------
Im Threadverlauf hinzugekommen:
07.05.2017 Küchenbereich neu vermaßt:
grundriss-auszug-jpg.242627

12.08.2016 Gesamtgrundriss als Bilddatei:

ringelbluemchen_201608GesamtgrundrissEG.jpg
 

Anhänge

  • PLAN1.KPL
    3,4 KB · Aufrufe: 228
  • PLAN1.POS
    6,4 KB · Aufrufe: 211
  • Unbenannt-4.pdf
    145,1 KB · Aufrufe: 256
Zuletzt bearbeitet von einem Moderator:
Hallo Ringelblümchen,

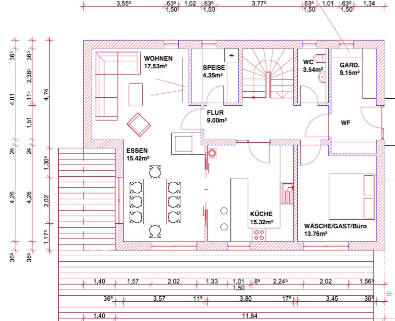
willkommen im Forum. Schöne Eröffnung, eigentlich alles da. Ich hab den Grundriss der Küche aus dem pdf nochmals als Bild angehängt (@KerstinB könntest du es entsprechend verschieben? Danke). Könntest du noch einen Grundriss der gesamten Etage hochladen, damit man auch andere Laufwege, z.B. zur Speisekammer sieht? Auch wäre ein Screenshot vom Grundriss der Alno -Planung hilfreich, da nicht jeder den Planer nutzt oder die Zeit hat, die Planung zu öffnen.

Generell ist eine U-Planung eher unpraktisch, da man zwei unnütze Ecken hat, Auszüge selten die optimalen Breiten haben können und sich immer gegenseitig blockieren. Gleiches gilt für Leute beim Arbeiten. Ergonomisch und stauraum-techisch sinnvoller wäre eine Halbinsel (oder Insel) und eine Zeile an der rechten Wand. Johaenes Küche ist ein schönes Beispiel, wie so etwas aussehen kann.

Persönlich würde ich die Spüle auf die Insel legen, da man dort mit Abstand die meiste Zeit in der Küche verbirgt (Vorbereitungen, kalte Speisen, etc.). Entsprechend würde ich dort einen Wasseranschluss und einen zweiten an der rechten Wand für einen hochgestellten GSP planen. Dort wäre auch genug Platz für TM usw. sodass man eine schöne freie Insel zum Arbeiten hat.

Da ihr recht unterschiedlich groß seid, würde ich zudem über zwei unterschiedliche Arbeitshöhen nachdenken (auch das ist bei zwei Zeilen deutlich einfacher und hübscher zu realisieren). Hier dazu etwas zu lesen.

Viele Grüße
 

Anhänge

  • RB Grundriss.jpg
    RB Grundriss.jpg
    130,3 KB · Aufrufe: 318
Danke für die Rückmeldung.

Jaaa, ich hab ja schon verschiedene Beiträge durchstöbert und bin auf die Diskussion Herd/ Spüle auf der Insel schon öfter gestoßen. *Eigentlich* wäre mit der Herd an der Wand auch lieber. Allerdings hätte ich auch gerne die Fenster runter bis zur Arbeitsplatte . Da ich nicht zu den ordentlichen Leuten gehöre, die immer alles sofort spülen, würde das Zeug damit aber länger quasi auf dem Präsentierteller und mitten im Raum stehen. :(

Die Küche von Johannes schaut wirklich gut aus!

Leider bekommt ich mit meinem Laptop eine Umwandlung in .jpg nicht hin.
 

Anhänge

  • 0 EG 1a.pdf
    42,5 KB · Aufrufe: 268
Der Unordnung kann man durch mehrere Dinge vorbeugen: Zum einen durch eine sinnvoll geplante GSP Position und Höhe, sodass dieser während der Küchenarbeit gleich beladen werden kann. Zum anderen ist in meinen Augen ein Doppelbecken immer hilfreich, da man Dreckiges in einem Becken "verstecken" kann. Nicht zuletzt hilft natürlich auch etwas Disziplin.
Bei mir persönlich ist es so, dass ich die Küche während der Arbeit schon immer etwas aufräume, nur beim Aufgeben/Anrichten/Servieren komme ich nichtmehr dazu, sodass bei mir der unordentlichste Bereich eigentlich das Kochfeld ist.

Ist die Position des Fensters fix? Sonst könnte man es einfach bodentief gestalten und etwas weiter nach rechts schieben. Oder das Fenster dort lassen und eine freistehende Insel planen oder die Halbinsel an der oberen Wand andocken.

Die Tür zur Küche würde ich auf jeden Fall als Schiebetür ausführen, da sie bei allen Planungen im Weg sein wird.

Und kein Problem, dafür gibt es Leute mit einem Mac ;-)
 

Anhänge

  • RB Grundriss Gesamt.jpg
    RB Grundriss Gesamt.jpg
    158,5 KB · Aufrufe: 348
Vielleicht ist es nicht deutlich genug rübergekommen, aber zwischen Kochen und Essen soll es eine Schiebetür geben (hab ich im Planer nicht gefunden); an der südl. Außenwand sind die Fenster noch flexibel, da möchte ich am liebsten eine Terrassentür, auf jeden Fall aber mehr Fensterfläche.

Die Idee mit reiner Insel hatte ich schon mal probiert. Dann wird mir aber entweder die Insel zu klein oder die Durchgangsbreiten zu Fensterfront bzw. Flurwand. Außerdem wäre sie dann immer "im Weg" zum Esstisch, da wir zum Essbereich rüber eine Schiebetür mit 1,5 - 2 m Breite möchten. Die Schiebetür kann deshalb nicht zu nah an Fensterfront oder Flurwand.

Die Idee mit Insel an der Flurwand werd ich aber gleich mal basteln.

Meinst du mit Schiebetür zum Esstisch rüber oder auch zum Flur?
 
Ich meinte eine Schiebetür zum Flur, weil die jetzige Tür immer vor die Zeile öffnen wird und somit den Schrank dort immer blockiert.

Bei einer freistehenden Insel können die Durchgänge 80cm breit sein, da es schließlich zwei gibt. Somit könnte die Insel 260cm lang sein. Von der Breite der Küche könnte die Insel durchaus 120cm tief sein. Insgesamt also eine ordentliche Größe.

Bei einer Halbinsel würde ich max. mit 320cm Länge planen, da es nur einen Durchgang gibt und der sollte entsprechend etwas größer sein. Mir persönlich würde aber in diesem Raum eine freistehende Insel deutlich besser gefallen, die Halbinsel wäre mir zu wuchtig. Auch wärst du mit der Gestaltung der Fenster deutlich freier.
 
Hier mal ein konkreter Vorschlag für die Küche:

Zeile an der rechten Wand (von oben nach unten):
Blende
60er HS mit Kühlschrank
60er HS mit Backofen
40er US
80er US mit Kochfeld
80er US
40er US
60er US mit hochgebautem GSP und Mikrowelle
Blende
Insel (von oben nach unten):
80er US
40er US mit MUPL
80er US mit Doppelspüle
60er US

Rückseitig
120er US
140er Theke mit zwei Sitzplätzen
Insgesamt massig Stauraum, Backofen , GSP und Mikro auf Idealhöhe, drei Arbeitsplätze mit mehr als 120cm Fläche, Doppelspüle, Platz für Kaffeemaschine und TM. Dazu gute Arbeitsabläufe, ob allein oder zu zweit.
 
hier mein Vorschlag.

Wandzeile von Planoben

60er HS mit BO und Mikro
80er US
90er US mit Kochfeld
60er US
60er HS mit hochgebauten GSP
60er HS mit KS

über den US 80-90(mit DAH)-60er OS.

Insel von planoben

30er Theke
80er US 1-1-2-2
40er US 3--3 mit MUPL oben
80er US mit Spüle

rückseitig entweder 2 x 100er, 60cm tief oder 2 x 100er, 40cm tief mit Türen.

wollt ihr Griffe oder aufgesetzte Griffleisten?

Ringel1.JPG Ringel11.JPG Ringel111.JPG Ringel2.JPG Ringel3.JPG
 

Anhänge

  • Ringel_Evelin_PLAN1.KPL
    3,9 KB · Aufrufe: 207
  • Ringel_Evelin_PLAN1.POS
    10,2 KB · Aufrufe: 212
Guten Morgen!

Vielen lieben Dank für eure Vorschläge! So viel Mühe braucht es doch noch gar nicht. :kiss::-[

Dank euch ist zumindest mir schon mal klar, dass es auf jeden Fall ohne eine U-förmige Zeile geht. Und ich glaub, mein Freund hat mittlerweile auch eingesehen, dass er mir eine Terrassentür nicht mehr ausreden kann. ;D

Die Idee, die Halbinsel an der Flurwand anzudocken, habe ich gestern noch nachgestellt. Sie gefällt uns aber beiden nicht, da wir befürchten, das Reinkommen in die Küche könnte arg seltsam werden, so gefangen zwischen zwei Küchenzeilen.

Evelin, vielen Dank für die Bilder! Ich bekomm's leider immer noch nicht hin mit dem Planer (bei mir hängt gerne was einfach in der Luft, und "aus dem Raum raustreten" kann ich auch nicht, um die Küche mit etwas mehr Abstand zu betrachten :-\)

Warum genau hast du den Kühlschrank ans Fenster gesetzt?
Wir sind beide Rechtshänder und ich bin es auch von meinen Eltern gewohnt, die Tür mit der linken Hand zu öffnen und mit rechts die Sachen reinzustellen. Dafür muss der Kühlschrank eher zum Flur orientiert sein, denke ich? Ansonsten müsste man ja immer um die offene Tür rumlaufen? (mit der rechten Hand öffnen möchte ich in Zukunft nicht mehr - das hab ich gerade in der Wohnung und nervt mich jedes mal wieder).

Die Idee, die Arbeitsplatte als Theke überstehen zu lassen, hat mein Freund schon vor Tagen abgelehnt. Am liebsten hätte er einen aufgeständerten Tresen oder "zur Not" eine dickere Arbeitsplatte, die auf der normalen Arbeitsplatte aufliegt. (Mit letzterer Lösung liebäugle ich, um gleichzeitig das Problem zu lösen, dass er eigentlich eine höhere Arbeitsfläche bräuchte als ich.)

Für einen höher gebauten Tresen an der gleichen Stelle bräuchte es aber insgesamt mehr Platz, oder?

Ihr habt jetzt beide mit einer reinen Insel geplant. Haltet ihr es nicht für zu umständlich, immer um die Insel rumlaufen zu müssen?
Wir kochen sehr viel mit TM - da kommt es schon öfter vor, dass man in der Küche arbeitet, dann 10 - 20 Min Pause hat während der TM rührt, dann wieder zum TM muss zum Nachlegen, dann wieder Pause... In den Pausen wechsle ich sehr oft ins Wohnzimmer zu meinem Freund... drum stell ich mir das als ziemliches Gerenne vor, wenn immer die Insel komplett im Weg ist.

(entschuldigt den vielen Text! :-[)
 
über Aussagen "ich bin Rechtshänder" muss ich mich immer etwas wundern. Du brauchst "nur" eine Tür, in dem Fall die KS Tür öffnen, mehr macht man mit einem KS nicht. Dieses Argument ist etwas weit hergeholt. Ich bin auch Rehtshänderin und habe mir darüber in meinem ganzem Leben (bin Oma) noch nicht ein einziges Mal Gedanken gemacht.

Um vom Wohnzimmer in die Küche zu laufen, würde ich durch den Flur gehen, anstatt um den Kamin/Tisch herum.

Der KS ist unten, weil wir versuchen, die wichtigsten Funktionen in einer Küche in eine einigermassen sinnvolle Position zueinander zu stellen, um Laufwege innerhalb der Küche zu vermeiden. Meist muss man aber einen Kompromis eingehen.

KS planunten
  • wegen Terassenzugang
  • damit die Spüle in der Nähe ist
KS Planoben
  • die Spüle müsste nach planoben
  • die Thekenplätze wären dann vor dem Fenster und man hat dadurch weniger Licht, wenn da jemand sitzt. Und wenn ich an der Theke sitzte, wollte ich nach draussen schauen, ins Licht.
  • das Kaminrohr/-schacht ist im Weg (bei freistehender Insel)
Wenn ich die Wahl habe, würde ich immer eine freistehende Insel einer angedockten vorziehen. Es gibt dadurch 2 Eingänge in die Küche, man kommt sich weniger in die Quere bei einem Mehrpersonenhaushalt und es sieht "moderner" aus. Ich mach dir aber noch einen Vorschlag mit angedockter Insel planunten.

Das Thema "aufgesetzte Theke" Wunsch von Männern zieht sich wie ein roter Faden duch's Forum. Ich habe an meiner Insel noch nie eine Theke vermisst (hab keine Kinder im Haushalt lebend). Ein dickes Thekenbrett ist ok, wenn die Insel gross genug ist.

Ich habe mir eben deinen Etagenplan noch mal angeschaut. Warum hat die Toilette keine Dusche, wenn gegenüber ein Gästezimmer ist?
 
hier die angedockte Insel, 3m lang. Der Ks ist planoben, die grüne Fläche ist die GSp Tür.

Ringel21.JPG Ringel22.JPG Ringel23.JPG
 

Anhänge

  • Ringel_Evelin_PLAN2.KPL
    3,9 KB · Aufrufe: 208
  • Ringel_Evelin_PLAN2.POS
    11,6 KB · Aufrufe: 211
@Evelin, mir gefällt die letzte Planung gut, nur würde ich die Halbinsel kürzer machen, da im Eck planoben noch ein Kamin ist, dann wäre auch ein Durchgang zum Essbereich breiter.

Zwischen den Zeilen eine Drehtür nach Draußen als direkten Ausgang zur Terrasse, eine Schiebetür finde ich hier nicht nötig. Höchstens noch ein weitere Tür nach dem Tresen oder Fenster über der Halbinsel wegen zusätzlichen Tageslicht.

Zum Grundriss: ich finde auch, es sollte ein Duschbad statt Gäste WC geplant werden und im Schlafzimmer so planen, dass man es im Alter auch als Schlafzimmer benutzen kann.
Bis zum Alter kann es ja wie euch beliebt genutzt werden, obs als Gästezimmer, Arbeitszimmer oder später auch für größeres Kind, dass nachts heim kommt und niemanden oben stört ;-)
 
Bei einer komplett neuen Küche muss ich jetzt ja nicht unbedingt Dinge einplanen, von denen ich aus Erfahrung weiß, dass sie mich nerven oder bei meinem Freund oder mir nicht funktionieren. ;-)
Dazu zählt der Anschlag vom Kühlschrank, genauso die Reihenfolge beim Spülbecken. Da *muss* die Abtopffläche links vom Wasserhahn sein. Rechts davon kommt nicht in Frage...

Wir werden so gut wie nie Übernachtungsgäste haben, die Raumbezeichnung stammt noch aus der allerersten Ideensuche mit der Architektin. Drum wird es keine Dusche im EG geben.

Morgen haben wir wieder eine Besprechung, dann wird hoffentlich absehbar, ob der Schornstein aus der Küche raus kann.

Spricht denn irgendwas gegen die Spülmaschine direkt planunten? Bei Spüle auf der Insel könnte man sie mit der Abtropffläche schon eher nach planunten orientieren und wäre damit nicht mehr weit von der Spülmaschine weg.
 
du meinst den GSP ganz planunten im HS und das Spülbecken belassen, wo es ist? ist halt dann > 1m vom Becken. Wenn dich die Tropferei nicht stört und dass jeder um die Insel rum muss (3m), um den Teller einzuwerfen, kannst du das machen. Bedenke, wo dein Geschirr und Besteck verstaut wird.

Wenn du genaue Vorstellungen von deiner Küche hast, erstelle eine Handskizze mit Schrankbreiten oder eine ALNO Planung. Ansonsten machen wir unnötige layouts.

Zur ALNO Planung gehören
  • ein parr Ansichtsbilder deiner Planung und wichtig
  • ein Grundrissbild deiner Planung (snipping tool von windows)
  • kpl+pos Datei
Nicht jeder hat den Planer auf dem laptop, nicht jeder will sich erst eine Planung runterladen, nur um zu kommentieren. Ich kann deine Planung nicht öffnen.
 
in welchem Format kann ich Screenshots denn hochladen? hab's mit ner Worddatei versucht, die wird aber nicht akzeptiert. so viel Auswahl bietet mein Laptop leider nicht, da ich ihn ansonsten nur fürs Lesen im Internet benutze...

meine ursprüngliche Überlegung für die Zeile war mal von planoben nach planunten
60er HS Kühlschrank
60er HS BO+ Micro
90er US (ggf hier mehr US zu Lasten vom US nach der Spüle)
90er US mit Spüle
60er US
60er hochgestellte Spülmaschine (halbhoher Schrank, damit es nicht so drückend wird)

über der Arbeitsplatte noch Hängeschränke bis fast zur Spülmaschine

die Insel hatte ich an die Südseite anschließend gedacht, insgesamt. 2,4 m lang mit 90er Kochfeld etwa in der Mitte.

planoben, an der Wand zum Flur hätte ich eine Vitrine o.ä. mit Ca. 40cm Tiefe für Kaffee vorgesehen- da wäre es im Zweifelsfall egal, falls wir den Kamin doch nicht aus der Küche rausbekommen.

Dank Nilsblau überlege ich die ganze Zeit schon, ob auf die (Halb)Insel besser die Spüle oder der Herd kommt. Bin da aber immer noch unentschlossen, was von den Arbeitsabläufen her besser ist. Das hängt für mich auch damit zusammen, wie sehr die Insel "im Weg" zum Esstisch ist und ob es praktischer wäre, auf der Insel anzurichten und die Sache. von der Rückseite der Insel aufzunehmen/ zum Tisch zu tragen - oder ob ich lieber die dreckigen Sachen vom Tisch auf der Insel abstellen mag, bevor ich sie Spüle. letztendlich hänge ich aber vor allem an der Frage, wie sehr die Insel im Weg stehen wird und ob ich wirklich eine reine Insel möchte, die den Raum absolut dominiert und nur noch Durchlässe an der Seite mit je 1 m übrig lässt. Bei einer Halbinsel sehe ich allein schon mehr Möglichkeiten, die gesamte Arbeits- und Stellfläche zu erhöhen und trotzdem beim Durchgang mehr Luft zu haben. in zwei schmäleren Durchgängen sehe ich gerade einfach keinen Vorteil im Veggleich zu einem breiteren, in dem zwei Leute auch super aneinander vorbeikommen?
 
Evelin, meinst du .jpeg ?

die archi hat noch ein paar neue Ideen gehabt, die evtl. die Küche länger machen. die neuen Pläne müssen wir bis Ende der Woche erst mal abwarten. :rolleyes:
 
Guten Morgen.

Eigentlich wollte ich dieses WE ja eine neue Planung einstellen, da unsere Architektin ein paar Änderungen vorgeschlagen hat, die "nur" die Raumlänge betroffen hätten. Die letzten Tage haben aber leider gezeigt, dass wir vielleicht noch viel mehr neu überdenken müssen wegen der gewünschten Treppe und Problemen mit den Abstandsflächen. :-(

Fürs Erste ist die Küchenplanung damit wieder zum allerkleinsten Problem geworden und muss erst mal noch länger warten. :-(

Danke für eure Mühe und ich hoffe, bald was aktuelles einstellen zu können.
 

Ähnliche Beiträge

Neff Hausgeräte Ballerina Küchen Blum Bewegungstechnologie Weibel - Intelligente Küchenlüftung

Neff Spezial

Blum Zonenplaner

Weibel Abluft-Tuning

Weibel Abluft-Tuning
Zurück
Oben