Küche im Neubau - Blockhaus

Ich lese noch Kochfeld: Gas ... gibt es einen festen Gasanschluß oder soll das per Flasche realisiert werden? Und warum ausgerechnet Gas? Schon mal alternativ über Induktion nachgedacht?
 
Hallo Kerstin,
Gas weil ich das angenehmer als Ceran finde und bei Induktion mag ich nicht, das es einen fast schon religiösen Krieg darum gibt. Keine Ahnung was stimmt: Schädlich oder nicht schädlich. Ich werde es nicht raus finden. Aber ich werde es nicht probieren. Daher Gas. Wir haben einen Gasanschluss... Das Kochfeld hatte ich übrigens auch schon. Es ist ein Oranier GKM 2497.

Wir haben unsere Planung nun fertig gestellt und die Küche bestellt. Eine riesige Insel und dazu eine Zeile mit 3 Hochschränken. Passt inkl. massiven Eichen-Arbeitsplatten und guten Siemens bzw. Neff Geräten, genau ins Budget und die Qualität ist auch nicht super schlecht (Nobilia mit PG4 Lack Matt Fronten). Gekauft haben wir sie bei einer ASMO Schwester, bei einem sehr bemühten und findigen Verkäufer. Der hat uns am Ende sogar bei der Blockverrechnung geholfen, Teile in die Küche zu bauen, die wie aus Spargründen gar nicht benannt haben (zusätzl. Auszüge, Mülltrenner, etc.).

Also danke auch Euch noch mal. Durch Euch konnte ich immerhin beurteilen, dass das Angebot nicht schlecht war und der Verkäufer sich wirklich bemüht hat :-)
 
Zuletzt bearbeitet:
Schade, dass du die Planung nicht hier einstellst.

Und auch schade, dass dich die hiesigen Argumente nicht überzeugen konnten. 240 cm breite Insel mit 120 Auszügen und einem 90er Kochfeld sowie Spüle mit Abtropfe lassen euch praktisch keinen Platz zwischen Spüle und Kochfeld für Vorbereitungsarbeiten. Auch kein ..MUPL etc. na ja.. wünsche euch viel Spaß.
 
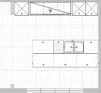
Hier ist unsere Planung...
Bildschirmfoto-2015-02-26-um-14.02.15.png


Bildschirmfoto-2015-02-26-um-14.42.01.png

Bildschirmfoto-2015-02-28-um-08.16.27.png


Zu Euren Ratschlägen: Klar habe ich darüber nachgedacht. Aber im Studio stand unsere Küche mit ziemlich ähnlichen Maßen und ehrlich gesagt, ist die Arbeitsfläche mehr als ausreichend. Eine Einschränkung sehe ich nicht. Und was uns sehr entgegenkommt, ist der Stauraum. Ist ja auch nicht so, dass ich noch nie in der Küche gestanden hätte und gar nicht wüsste, was ich für Bewegungsabläufe hab :-)

Unsere letzte Küche haben wir bei Ikea selbst geplant und da haben wir relativ schnell gemerkt, was nicht so schlau war.
 
Dann sag mal an, wo du hier die Vorbereitungsarbeiten erledigst. Würde mich wirklich interessieren.
 
z.B. auf der anderen seite von der insel? oder gegenüber vom herd an der zeile?
 
Praktisch ist aber anders .. Gemüse waschen, dann erstmal um die Ecke ziehen und dann den Müll wieder um die Ecke zurück in den Auszug unter der Spüle ;-)
 
Da sollte man zumindest Kochfeld und Spüle tauschen, also Kochfeld nach planoben und Spüle etc. nach planunten. Da kollidiert dann aber vermutlich das Fenster wieder mit der DAH ;-)
 
Ich hab als Zivi in einer Großküche gearbeitet, da lernt man Wege zu optimieren, ohne dass alles in direkter Griffnähe sein kann. Sogenannte Workarounds.

Und klar, wenn ich ganz viel Budget und noch mehr Raum hätte, würde ich noch mal alles anders machen. Aber für unser Budget, finde ich ist das ein guter Mittelweg :-)
 
Na ja .. Kochfeld könnte genausogut auf den Unterschränken an der Wandzeile sein, dann hätte man kurzen Weg Kochfeld/Spüle .. nämlich einfach eine Drehung und auch genügend Platz direkt neben der Spüle für Vorbereitungsarbeiten. Und das dürfte nicht teurer werden und für die Effizienz der DAH ein Plus sein.
 
man könnte ja auch noch den Herd vor Kopf packen: Der Durchgang ist breit genug... Wir probieren das mal, wenn die Küche aufgestellt wird.

Die Idee mit dem Herd in der Zeile gefällt mir nicht, denn das geht zu Lasten des Platzes. Mir ist der Platz wichtiger, als das letzte 1000-tel Arbeitseffizienz. Küche muss für uns nicht nur praktisch, sondern auch schön sein...
 
Womit verlierst du denn da Platz?

Und, Kochfeld am Kopf der Insel, dann hast du keine 15 cm Platz rechts und links vom Kochfeld.
 
Ich müsste ja einen Hängeschrank gegen die Haube tauschen. Oder eine Unterbauhaube nehmen aber auch da geht Platz im Schrank verloren. Außerdem verliere ich als alter Authist die Symmetrie der Zeile.

Ich wasch einfach mein Gemüse, dreh mich, schneide es an der Zeile und sammle den Müll in einer Schale Dann geh ich zum Herd und mach da, was ich muss. Ist nicht schlimm denke ich :-P
 
...du könntest auch die Spüle in die Wandzeile nehmen, wenn dir Kochen auf der Insel so wichtig ist. Dann würden die Hängeschränke ihre Funktion behalten.
Mit deiner Planung, wirst du leider die meiste Zeit, mit dem Gesicht zur Wand arbeiten. Schade, denn gerade das Arbeiten auf einer Insel ist toll! Ich würde das in meiner Küche nicht missen wollen. Die Insel ist mein Hauptarbeitsplatz, auch mit der Spüle an der Wand und ausreichend Arbeitsfläche neben der Spüle. :kiss:
 
Zuletzt bearbeitet:
Wie kommt denn eigentlich die Abluft zur Außenwand?

Und warum soll unbedingt diese etwas sinnfreie Lücke zur Fensterwand bestehen?
 
Hey Leute, danke für Eure Anregungen. Ich denke wir können jetzt mal aufhören :-)
Küche ist bestellt und ich suche gar nicht nach Bestätigung, ob ich es richtig gemacht hab.

Küchenplanung ist wie Autokauf. Da hat jeder andere Vorlieben und Ideale. Ich weiß Eure Einschätzungen zu würdigen und ob Ihr es glaubt oder nicht, viele der Fragen haben wir auch diskutiert und (für uns) gute Antworten gefunden.
 
Zuletzt bearbeitet:
Nun ja, dann wünschen wir die viel Spaß mit deiner neuen Küche! :2daumenhoch:
 
Und hier mal gedreht, wie von Vanessa weiter vorne schon angeregt.

Spüleninsel, Kochfeldzeile könnte dann wie in Johaenes Küche .. die schöne Wandkochzeile, sein.

Hätte den Vorteil, die Abluftführung kann ganz unauffällig zur planrechten Außenseite geführt werden und die DAH hat nur mit wenigen Querströmungen zu kämpfen.

Und dazu dann noch jede Menge Platz.
 

Anhänge

  • danielmuc_20150228_kb1-alt.kpl
    4,1 KB · Aufrufe: 121
  • danielmuc_20150228_kb1-alt.POS
    12 KB · Aufrufe: 141
  • danielmuc_20150228_kb1-alt_Grundriss.jpg
    danielmuc_20150228_kb1-alt_Grundriss.jpg
    27,4 KB · Aufrufe: 101
  • danielmuc_20150228_kb1-alt_Ansicht5.jpg
    danielmuc_20150228_kb1-alt_Ansicht5.jpg
    26 KB · Aufrufe: 92
  • danielmuc_20150228_kb1-alt_Ansicht4.jpg
    danielmuc_20150228_kb1-alt_Ansicht4.jpg
    18,2 KB · Aufrufe: 105
  • danielmuc_20150228_kb1-alt_Ansicht3.jpg
    danielmuc_20150228_kb1-alt_Ansicht3.jpg
    25,1 KB · Aufrufe: 105
  • danielmuc_20150228_kb1-alt_Ansicht2.jpg
    danielmuc_20150228_kb1-alt_Ansicht2.jpg
    21,5 KB · Aufrufe: 100
  • danielmuc_20150228_kb1-alt_Ansicht1.jpg
    danielmuc_20150228_kb1-alt_Ansicht1.jpg
    25,9 KB · Aufrufe: 97
Naja, wir haben halt den Eindruck, dass der Plan nicht in allen Konsequenzen durchdacht ist. Siehe auch Fragen zur Abluftführung usw. Es soll lt. deinem Eingangspost irgendwie stylisch sein, aber, für die Abluftführung ist keine Lösung eingezeichnet ... na ja, kann man ja unter der Decke laufen lassen. Sieht halt ... hmm aus.

Bei Entscheidungen, die da von Montag bis Freitag im Schnelldurchgang stattfinden, drängt sich das halt auf. Und hier sitzen eben die Küchenenthusiasten, die eben nicht die erste Küche planen.
 

Ähnliche Beiträge

Neff Hausgeräte Ballerina Küchen Blum Bewegungstechnologie Weibel - Intelligente Küchenlüftung

Neff Spezial

Blum Zonenplaner

Weibel Abluft-Tuning

Weibel Abluft-Tuning
Zurück
Oben