- Beiträge
- 56
Also ich komme auf eine Höhe von ca 102 cm, meine Freundin 97. Sie hat z.Z. eine Höhe von 92 cm und meint, es könnte etwas höher sein. Meine jetzige Küche hat ebenfalls eine Höhe von 92 cm.
Der Heizkörper kann im Prinzip frei positioniert werden, da sich die Wohnung im EG befindet
Die Höhe der Fenster kann ich gerade nicht ausmessen, da ich keinen Zugang zur Wohnung habe. Übergang Nutzen / Lasten ist zum 01.12. Mir liegt also nur der Grundriss vor. Ich möchte die Küche halt möglichst schnell bestellen, da ich eine Lieferzeit von ca 8 Wochen einplane.
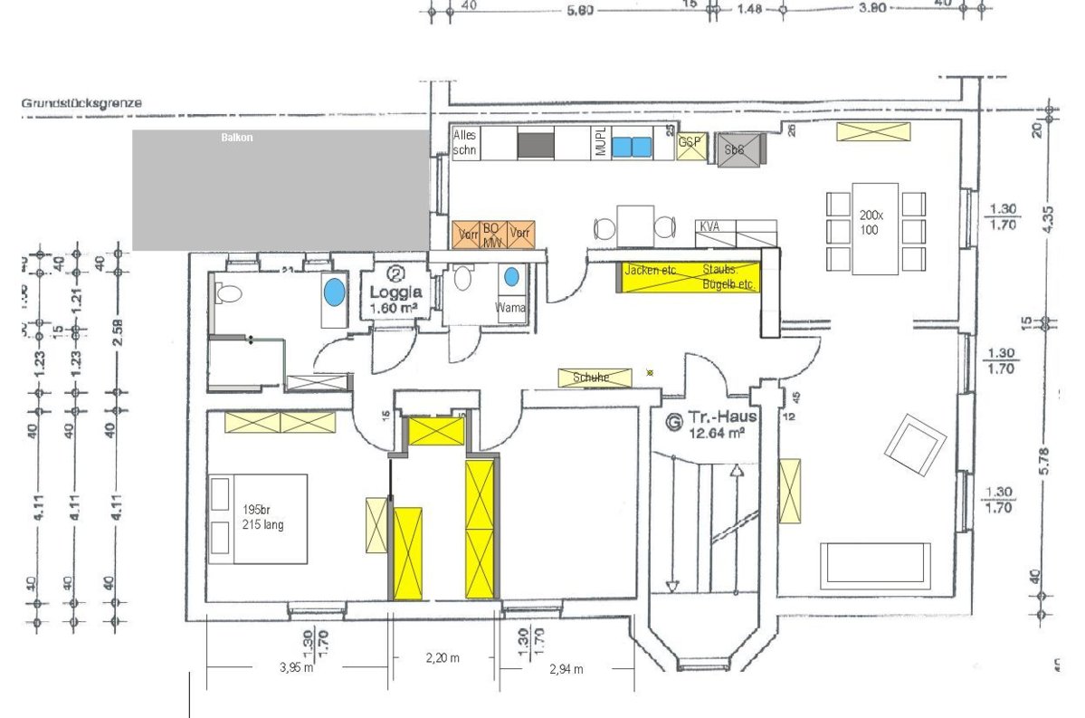
Balkone habe ich mal in den Grundriss eingezeichnet, in der Hoffnung das Bild diesmal hochladen zu können
Der Heizkörper kann im Prinzip frei positioniert werden, da sich die Wohnung im EG befindet
Balkone habe ich mal in den Grundriss eingezeichnet, in der Hoffnung das Bild diesmal hochladen zu können
