kleine schwierige küche!

AW: kleine schwierige küche!

Zum Holzofen wollt ich auch was fragen: Ist das ein Beistellherd, der zumindest theoretisch in eine Küchenzeile eingebaut werden könnte, oder ein Kaminofen, der rundum gut Abstand zu Möbeln braucht?
 
AW: kleine schwierige küche!

nice-nofret: glaube nicht das man den ofen dorthin setzten kann, da die seite des kamins nur 20cm breit ist und daher zu schmal für eine bohrung von min. 18cm durchmesser.

taylor:das ist ein holzofen den man nicht in eine küche einbauen kann da er zu heiss wird. er wird mit holz befeuert.

kerstin: ich versuche heute abend einen grundriss mit alno zu machen:-[, bin seid halb fünf auf:sleep:, frühschicht, jetzt kids holen gehen von der schule.... hoffe das meine augen noch auf bleiben heute abend;-)
 
AW: kleine schwierige küche!

taylor: der jetzige ofen ist ein küchenherd und wird durch einen schmaleren ersetzt, da dieser jetzige noch über einen backofen verfügt und das nicht mehr erforderlich ist.
hab eben nochmal rücksprache gehalten und der neue herd wird vorraussichtlich 30-35cm breit sein.

meine schwiegermutter hat auch so einen xxl küchenherd und dieser steht 2cm neben der küche, also müsste das ja von der hitze her gehen.
 
AW: kleine schwierige küche!

Hallo superpuschi,

ich würde gerne etwas anderes vorschlagen, aber mit all diesen Eckdaten, die berücksichtigt werden wollen, fällt mir nichts anderes ein als die Lösung, die du anfangs vorgestellt hast.

Wenn es platzmäßig auch ohne den Vorratsschrank neben dem Kühlschrank ginge, dann wäre es in der Ecke nicht ganz so gequetscht.
 
AW: kleine schwierige küche!

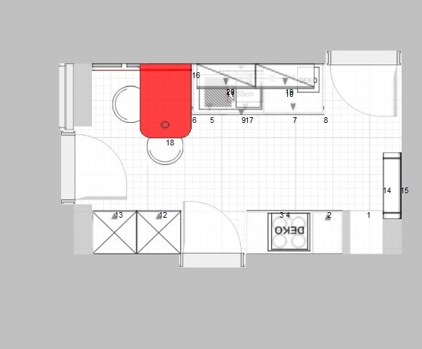
grundriss richard.jpg

so, das ist doch mal en grundriss:clap:ich lach mich tod.

hab das mal probiert provisorisch hin zu bekommen.

also k- küche
ez- esszimmer
wz- wohnzimmer
w-wc
kt-kellertreppe
a- abstellraum
f-flur

ich hoffe man wird schlau daraus.

hab noch neue infos,

die kochzeile soll nun doch wegen der gefahr des gases im keller neben dem küchenherd bleiben.


meiner mutter gefiel die variante gut, wo der kühlschrank nicht ganz so hoch ist, wie der andere schrank.

so jetzt bin ich mal gespannt auf eure meinung
 

Anhänge

  • richard andersrum.POS
    8,6 KB · Aufrufe: 138
  • richard anderrum.JPG2.jpg
    richard anderrum.JPG2.jpg
    44,4 KB · Aufrufe: 210
  • richard anderrum.JPG1.jpg
    richard anderrum.JPG1.jpg
    47,8 KB · Aufrufe: 194
  • richard anderrum.jpg
    richard anderrum.jpg
    24,3 KB · Aufrufe: 185
  • richard anderrum.JPG3.jpg
    richard anderrum.JPG3.jpg
    43,6 KB · Aufrufe: 209
AW: kleine schwierige küche!

Ist die Terrassentür gewandert? In deinem ersten Plan hätten keine zwei 60er-Hochschränke dort Platz gehabt.

Und ich frag nochmal - warum keinen Beistellherd statt Kaminofen? Grad wenn das Kochfeld daneben soll, wärs doch praktischer, eine durchgehende Fläche zu haben, statt Abstand zum Ofen halten zu müssen (und bloß eine Handbreit würden zumindest hiesige Schornsteinfeger nicht abnicken).
 
AW: kleine schwierige küche!

hätte auch noch diese variante zur auswahl, ist vielleicht nicht grad so wuchtig
 

Anhänge

  • richard anderrum.JPG4.JPG1.jpg
    richard anderrum.JPG4.JPG1.jpg
    24,4 KB · Aufrufe: 190
  • richard anderrum.JPG4.jpg
    richard anderrum.JPG4.jpg
    43,5 KB · Aufrufe: 148
  • richard.POS
    8,1 KB · Aufrufe: 137
  • richard.KPL
    4,1 KB · Aufrufe: 143
AW: kleine schwierige küche!

wir haben eben nochmals genau gemessen un die zwei 60er schränke passen wenn wir zwei cm von der türblende abmachen. ist die garagentür.

es wird ja ein küchenherd-beistellherd in ca 35cm breite.
wie gesagt meine schwiegermutter hat so einen 2cm neben der küche stehen und da passiert nichts.

ist sowas ähnliches wie deine bilder.
 
AW: kleine schwierige küche!

Nachmittags schriebst du noch, der Ofen wäre nicht einbaufähig und würde äußerst heiß - und nun reichen 2 cm Abstand? *verwirrtbin*
Und abgesehen von der Frage, ob das sicherheitstechnisch reicht: So eine schmale Lücke ist doch eine Schmutzfalle.

Hast du bei den Hochschränken auch ein bisschen Abstand zur Wand einkalkuliert?
 
AW: kleine schwierige küche!

ich glaub wir sprechen da aneinander vorbei.
was bedeutet für dich einbaufähig?
also,es wird ein küchenherd den man mit holz befeuern kann und zur not auch mal drauf kochen kann. man kann doch so ein hitzeschutz an die seitenwand der küchenmöbel anbringen zum schutz, oder seh ich das falsch.

ja an der wand befinden sich noch fliesen und diese kommen weg und somit wäre noch platz für einpassstüch von 1-1.5 cm das müsste doch reichen oder?

die türblende ist 10cm breit, da kommt es auf einen cm nicht an
 
AW: kleine schwierige küche!

sorry, aber muss jetzt mal schlafen gehen, bin seid halb fünf heut morgen auf den beinen und bin echt platt.:sleep::sleep::sleep:

bin gespannt, was sich morge noch so ergibt;-)

gut nacht euch allen
 
AW: kleine schwierige küche!

Puschi, du hattest geschrieben, "das ist ein holzofen den man nicht in eine küche einbauen kann da er zu heiss wird". Daraus habe ich geschlossen, dass du einen Kaminofen meinst, der wenigstens 20 cm Abstand zu Wänden&Co braucht. Aber offenbar meinst du doch einen Beistell-/Sparherd, und sowas kann ja in eine Küchenzeile integriert werden, mit durchgehender Arbeitsfläche, so wie in diesem Beispiel, oder wie hier, mit Gasherd daneben. Alle Klarheiten beseitigt? ;D

Und wenn Beistellherd, dann wärs doch praktischer, du würdest die Gaskochstelle nicht als beidseitig abgeschrägten Einzelblock planen, sondern als Einheit mit dem Holzofen. Da könnte man evt sogar um die Ecke weitermachen.
 
AW: kleine schwierige küche!

so, hab noch ein bisschen gespielt.
 

Anhänge

  • richard variante.jpg
    richard variante.jpg
    42,5 KB · Aufrufe: 147
  • richard.KPL
    4,1 KB · Aufrufe: 159
  • richard variante.JPG2.jpg
    richard variante.JPG2.jpg
    47,7 KB · Aufrufe: 155
  • richard.POS
    8,2 KB · Aufrufe: 154
  • richard variante.JPG1.jpg
    richard variante.JPG1.jpg
    43,7 KB · Aufrufe: 155
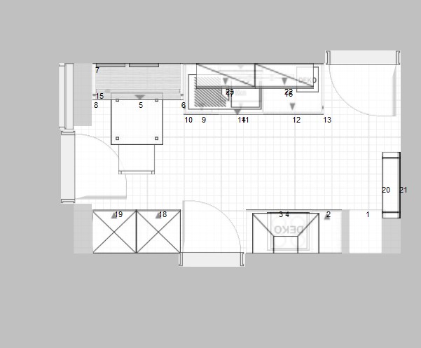
AW: kleine schwierige küche!

So, ich hab in deinem Plan mal ein bisschen geschoben. ;D

Wenn der Wasseranschluss 40 cm von der Fensterwand weg ist, kannst du da nicht die Spülmaschine hinstellen. Ich hab ihn (auf Putz) verlegt, den ganzen Spülenblock Richtung Tür geschoben und 10 cm tiefer gemacht, fürs Wasser. Das hat auch den Vorteil, dass die Spüle nicht so weit vom Herd weg ist. Dafür den Tisch ans Fenster, wo es sich auch netter sitzt, am besten auf einer maßgeschneiderten Bank, hinter der die Anschlüsse verschwinden. Und wenn kein extrem schwerer Tisch gewählt wird, sodass er sich leicht ein Stück verrutschen lässt, ist auch das Öffnen der Terrassentür kein Problem.

Gegenüber dann die beiden Hochschränke, und das Kochfeld als gemeinsamen Block mit dem Holzofen. Den hab ich inklusive Hitzeschutzseiten mal mit 60 cm angesetzt, dann passt noch ein 90er und ein 40er für Gewürze&Co daneben.
 

Anhänge

  • kf_richard_vonterrasse.jpg
    kf_richard_vonterrasse.jpg
    40,9 KB · Aufrufe: 164
  • kf_richard_gesamt.jpg
    kf_richard_gesamt.jpg
    42,9 KB · Aufrufe: 177
  • kf_richard_vongarage.jpg
    kf_richard_vongarage.jpg
    48,5 KB · Aufrufe: 188
  • kf_richard_draufsicht.jpg
    kf_richard_draufsicht.jpg
    51,9 KB · Aufrufe: 170
  • kf_richard_t01.POS
    10,5 KB · Aufrufe: 153
  • kf_richard_t01.KPL
    4,1 KB · Aufrufe: 148
  • kf_richard_grundriss.JPG
    kf_richard_grundriss.JPG
    34,6 KB · Aufrufe: 164
AW: kleine schwierige küche!

hallo taylor, das sieht ja gut aus!

aber das spülbecken kann nicht so weit rüber da der abfluss nur 10 cm weit von der ecke ist und es meinen meinung nach schwer ist auf so langem weg gefälle hinzubekommen.

der tisch an der fenster ist glaub ich nicht so gut, das wir ein bisschen eng dort mit der türe. ausserdem beide habenschwere rückenprobleme und dann kommt tisch rücken und bank nicht so infrage.
 
AW: kleine schwierige küche!

:2daumenhoch: gefällt mir Taylor :kiss:.

Puschi: Gefälle ist 1% d.h. Pro Meter 1cm ;-)
 
AW: kleine schwierige küche!

Wie Vanessa sagt - Gefälle sollte kein Problem sein, geht doch nur um knappe 2 Meter maximal. Und die Tischlösung könnte ja auch anders aussehen, eventuell sogar in Arbeitsplattenhöhe - höhere Stühle werden bei Rückenproblemen oft angenehm empfunden, man kommt leichter hoch. Spülenschrank als 50er, dann ist vorm Fenster ausreichend Platz zum Hinsetzen.
 

Anhänge

  • kf_richard_stuehle.jpg
    kf_richard_stuehle.jpg
    45,8 KB · Aufrufe: 176
  • kf_richard_grundriss_stuehle.JPG
    kf_richard_grundriss_stuehle.JPG
    34,4 KB · Aufrufe: 278
AW: kleine schwierige küche!

taylor, danke für deine mühe, wer das heute abend mal besprechen.
finde den plan wirklich sehr gelungen so!:2daumenhoch:

meint ihr denn das das so für um die 5000 euro zu realisieren ist; das heisst mit e-geräten und möbel
 

Ähnliche Beiträge

Neff Hausgeräte Ballerina Küchen Blum Bewegungstechnologie Weibel - Intelligente Küchenlüftung

Neff Spezial

Blum Zonenplaner

Weibel Abluft-Tuning

Weibel Abluft-Tuning
Zurück
Oben