Tremuser
Mitglied
- Beiträge
- 16
Liebe Küchen-Community,
ich stehe vor einem Dilemma. Der Einzug in die erste eigene Wohnung ist mit viel Freude und Erwartungen verbunden, gleichzeitig fühle ich mich vorallem im Küchenbereich etwas überfordert. Seit ca. 3 Wochen beschäftige ich mich intensiv damit und komme einfach nicht so recht voran. Daher wende ich mich hilfe- und ratsuchend an Euch, da Eure Erfahrung und Weitsicht mir helfen wird, viele Fehler zu vermeiden.
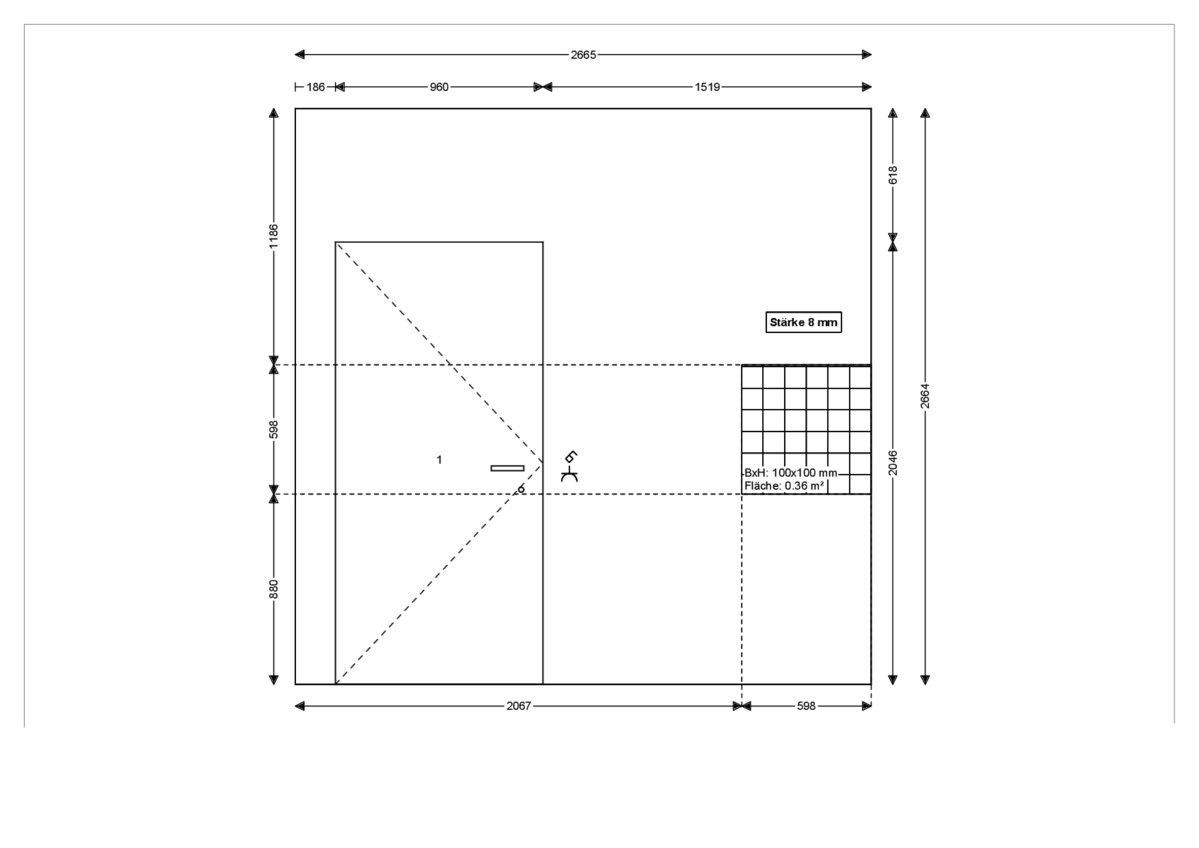
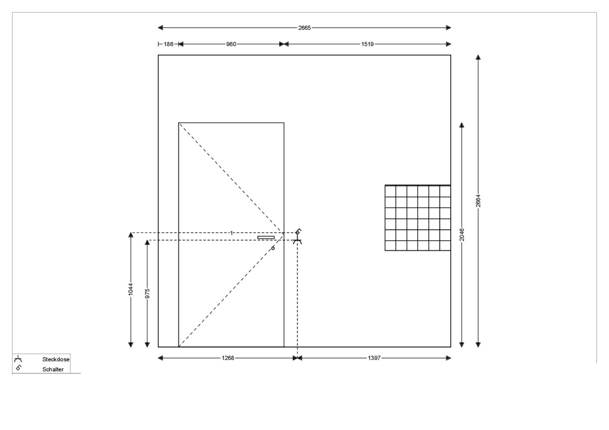
Wie Ihr dem Grundriss entnehmen könnt ist die Küche 9,5 qm groß. Wünschen würde ich mir eine Küchenzeile, die Vormieter hatten eine L-Küche, welche auch nicht schlecht aussah, aber insgesamt den Raum sehr eng wirken ließ. Einen Essplatz möchte ich auch verwirklichen. Ich war bereits bei IKEA und habe mir die METOD Küchen angeschaut, wovon mir auch ein, zwei Exemplare gut gefielen. 2 Beratungen im Küchenstudio liefen sehr frustran - hier hatte ich oft das Gefühl, dass man mir nur mein Geld aus der Taschen ziehen wollte und wenig an einer Umsetzung meiner Vorstellungen interessiert war. Nicht zuletzt daher fühle ich mich auch überfordert und ein wenig allein gelassen. Meine Anforderungen an eine Küche waren:
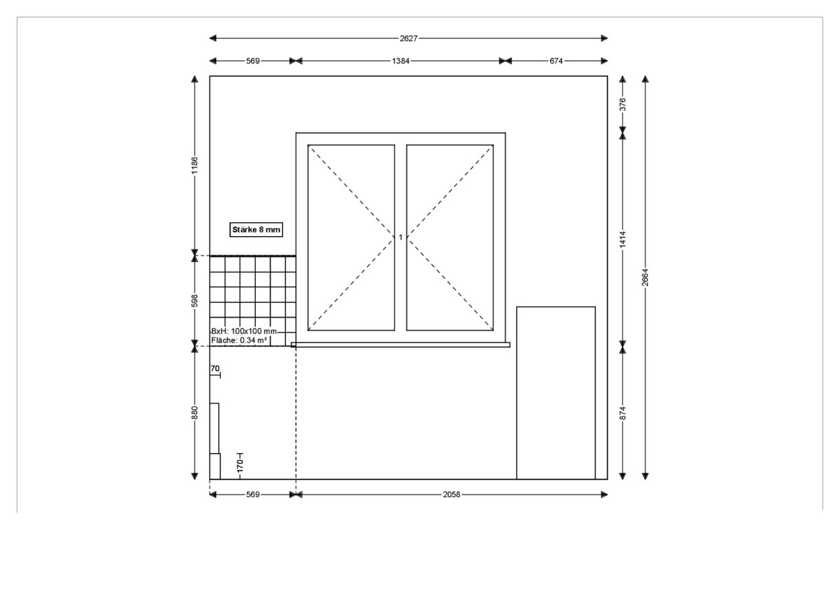
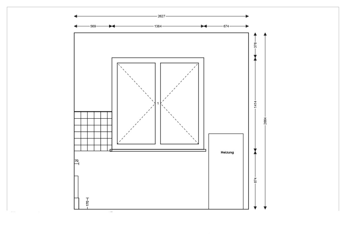
modernes Design, vielleicht Hochglanz (Die gelb-graue METOD Küche bei IKEA sagte mir sehr zu), den Küchenfußboden habe ich durch graues Vinyl ersetzt; ich benötige eine Kühl-Gefrierkombi, da ich gerne auf Vorrat koche und einfriere (integriert passt sicher besser in die Küche, obwohl ich auch mit freistehend kein Problem hätte), ob Backofen und Herd ganz klassisch zusammen oder Backofen lieber in einem Hochschrank weiß ich ehrlich gesagt nicht einzuschätzen, in die Küche möchte ich auch den Staubsauger und Putzmittel unterbringen (daher imponierte auch hier die IKEA Lösung mit dem "Putzschrank"), Mikrowelle separat oder integriert, Wasserkocher und Toaster sind vorhanden und benötigen einen Stellplatz, Geschirr und Töpfe für einen 1-Personenhaushalt (muss ich aber alles noch kaufen), Getränke möchte ich auch im Schrank verstauen. Den hässlichen Fließenspiegel möchte ich mit solchen WandPanels verdecken - Problem ist, wie auf den Bildern erkennbar, dass der Fließenspiegel bis an das Fenster heran reicht...
Die Auswahl und Unübersichtlichkeit erschlägt mich.
Für Eure Ideen, Ratschläge, Erfahrungen bin ich sehr dankbar.
Andreas
Checkliste zur Küchenplanung
Anzahl Personen im Haushalt: 1
Davon Kinder?:
Art des Gebäudes?: Bestandsbau, Umbauten ausgeschlossen
Körpergrössen aller Hauptbenutzer (wegen Arbeitshöhe ) in cm: 177cm
Brüstungshöhe des Fensters (in cm): 95cm korrigiert: 89cm
Fensterhöhe (in cm):
Raumhöhe in cm: 260cm
Heizung: Heizkörper wie im Grundriss
Sanitäranschlüsse: fix
Ausführung Kühlgerät: Integriert im Hochschrank (60cm)
Kühlgerät Größe: noch unbekannt
Ausführung Tiefkühl (TK)-Gerät: Im Kühlschrank ab 3 Schubladen unten
Dunstabzugshaube: Umluft
Backofen etc. hochgebaut?: Wenn möglich
Hochgebauter Geschirrspüler ?: Nein
Kochfeldart: Ceran (herkömmlich)
Kochfeldbreite ca. (in cm)?: 60cm sollten meiner Meinung nach ausreichen
Spülenform: Noch nicht festgelegt
Geplante Heißgeräte: Standmikrowelle, Einbaumikrowelle, Backofen
Küchenstil: Modern
Sitzmöglichkeit in der Küche / im Küchenbereich: Gesonderter Tisch
Sitzmöglichkeit: Für wieviel Personen?: für 2 Personen
Sitzmöglichkeit: Tisch - wenn gesonderter Tisch oder offene Küche: Wird nach Bedarf neu gekauft
Gewünschte o. vorhandene Tischgröße:
Wofür soll der Sitzplatz in der Küche genutzt werden? Wie häufig?: in der Freizeit für Frühstück, Mittag und Abendbrot, ansonsten zum Abendbrot essen
Welche Arbeitshöhe ist angedacht (in cm)?: noch unbekannt
Was steht auf der Arbeitsplatte oder soll dort stehen?: Kaffeevollautomat, Wasserkocher, Toaster
Welche weiteren Küchenmaschinen müssen in der Küche untergebracht werden?: Handrührgerät, Pürierstab
Was soll in der Küche außer den Standards untergebracht werden?: ALLE Vorräte, Getränkekisten, Staubsauger/Wischer etc., Geschirr komplett (nichts in Ess-/Wohnzimmer)
Welchen Stauraum gibt es sonst noch?: Keller
Was/wie wird gekocht? (Alltagsküche, Menüs, Snacks usw):
Wie häufig wird gekocht?: (fast) täglich 1x warm
Wird alleine gekocht? Oder auch gemeinsam? Mit und für Gäste?: ich koche oft allein, manchmal auch zu zweit oder für Gäste. Dies ist jedoch die Ausnahme
Was stört an der bisherigen Küche und was soll die neue Küche unbedingt können? Warum?:
Welche Mülltrennung soll in der Küche vorgehalten werden?: Biomüll, Gelber Sack Müll, Restmüll
Steht schon ein Küchenhersteller fest oder wird bevorzugt?: Präferenz bis jetzt IKEA, da mir andere Küchenhersteller durch Beratung im Küchenstudio nicht näher gebracht werden konnten
Steht schon ein Gerätehersteller fest oder wird bevorzugt?: NEFF , Siemens wären die bevorzugten, aber ich könnte auch mit den IKEA GEräten leben trotz einiger negativer Meinungen im Bekanntenkreis
Preisvorstellung (Budget): bis 5.000,-
ich stehe vor einem Dilemma. Der Einzug in die erste eigene Wohnung ist mit viel Freude und Erwartungen verbunden, gleichzeitig fühle ich mich vorallem im Küchenbereich etwas überfordert. Seit ca. 3 Wochen beschäftige ich mich intensiv damit und komme einfach nicht so recht voran. Daher wende ich mich hilfe- und ratsuchend an Euch, da Eure Erfahrung und Weitsicht mir helfen wird, viele Fehler zu vermeiden.
Wie Ihr dem Grundriss entnehmen könnt ist die Küche 9,5 qm groß. Wünschen würde ich mir eine Küchenzeile, die Vormieter hatten eine L-Küche, welche auch nicht schlecht aussah, aber insgesamt den Raum sehr eng wirken ließ. Einen Essplatz möchte ich auch verwirklichen. Ich war bereits bei IKEA und habe mir die METOD Küchen angeschaut, wovon mir auch ein, zwei Exemplare gut gefielen. 2 Beratungen im Küchenstudio liefen sehr frustran - hier hatte ich oft das Gefühl, dass man mir nur mein Geld aus der Taschen ziehen wollte und wenig an einer Umsetzung meiner Vorstellungen interessiert war. Nicht zuletzt daher fühle ich mich auch überfordert und ein wenig allein gelassen. Meine Anforderungen an eine Küche waren:
modernes Design, vielleicht Hochglanz (Die gelb-graue METOD Küche bei IKEA sagte mir sehr zu), den Küchenfußboden habe ich durch graues Vinyl ersetzt; ich benötige eine Kühl-Gefrierkombi, da ich gerne auf Vorrat koche und einfriere (integriert passt sicher besser in die Küche, obwohl ich auch mit freistehend kein Problem hätte), ob Backofen und Herd ganz klassisch zusammen oder Backofen lieber in einem Hochschrank weiß ich ehrlich gesagt nicht einzuschätzen, in die Küche möchte ich auch den Staubsauger und Putzmittel unterbringen (daher imponierte auch hier die IKEA Lösung mit dem "Putzschrank"), Mikrowelle separat oder integriert, Wasserkocher und Toaster sind vorhanden und benötigen einen Stellplatz, Geschirr und Töpfe für einen 1-Personenhaushalt (muss ich aber alles noch kaufen), Getränke möchte ich auch im Schrank verstauen. Den hässlichen Fließenspiegel möchte ich mit solchen WandPanels verdecken - Problem ist, wie auf den Bildern erkennbar, dass der Fließenspiegel bis an das Fenster heran reicht...
Die Auswahl und Unübersichtlichkeit erschlägt mich.
Für Eure Ideen, Ratschläge, Erfahrungen bin ich sehr dankbar.
Andreas
Checkliste zur Küchenplanung
Anzahl Personen im Haushalt: 1
Davon Kinder?:
Art des Gebäudes?: Bestandsbau, Umbauten ausgeschlossen
Körpergrössen aller Hauptbenutzer (wegen Arbeitshöhe ) in cm: 177cm
Brüstungshöhe des Fensters (in cm): 95cm korrigiert: 89cm
Fensterhöhe (in cm):
Raumhöhe in cm: 260cm
Heizung: Heizkörper wie im Grundriss
Sanitäranschlüsse: fix
Ausführung Kühlgerät: Integriert im Hochschrank (60cm)
Kühlgerät Größe: noch unbekannt
Ausführung Tiefkühl (TK)-Gerät: Im Kühlschrank ab 3 Schubladen unten
Dunstabzugshaube: Umluft
Backofen etc. hochgebaut?: Wenn möglich
Hochgebauter Geschirrspüler ?: Nein
Kochfeldart: Ceran (herkömmlich)
Kochfeldbreite ca. (in cm)?: 60cm sollten meiner Meinung nach ausreichen
Spülenform: Noch nicht festgelegt
Geplante Heißgeräte: Standmikrowelle, Einbaumikrowelle, Backofen
Küchenstil: Modern
Sitzmöglichkeit in der Küche / im Küchenbereich: Gesonderter Tisch
Sitzmöglichkeit: Für wieviel Personen?: für 2 Personen
Sitzmöglichkeit: Tisch - wenn gesonderter Tisch oder offene Küche: Wird nach Bedarf neu gekauft
Gewünschte o. vorhandene Tischgröße:
Wofür soll der Sitzplatz in der Küche genutzt werden? Wie häufig?: in der Freizeit für Frühstück, Mittag und Abendbrot, ansonsten zum Abendbrot essen
Welche Arbeitshöhe ist angedacht (in cm)?: noch unbekannt
Was steht auf der Arbeitsplatte oder soll dort stehen?: Kaffeevollautomat, Wasserkocher, Toaster
Welche weiteren Küchenmaschinen müssen in der Küche untergebracht werden?: Handrührgerät, Pürierstab
Was soll in der Küche außer den Standards untergebracht werden?: ALLE Vorräte, Getränkekisten, Staubsauger/Wischer etc., Geschirr komplett (nichts in Ess-/Wohnzimmer)
Welchen Stauraum gibt es sonst noch?: Keller
Was/wie wird gekocht? (Alltagsküche, Menüs, Snacks usw):
Wie häufig wird gekocht?: (fast) täglich 1x warm
Wird alleine gekocht? Oder auch gemeinsam? Mit und für Gäste?: ich koche oft allein, manchmal auch zu zweit oder für Gäste. Dies ist jedoch die Ausnahme
Was stört an der bisherigen Küche und was soll die neue Küche unbedingt können? Warum?:
Welche Mülltrennung soll in der Küche vorgehalten werden?: Biomüll, Gelber Sack Müll, Restmüll
Steht schon ein Küchenhersteller fest oder wird bevorzugt?: Präferenz bis jetzt IKEA, da mir andere Küchenhersteller durch Beratung im Küchenstudio nicht näher gebracht werden konnten
Steht schon ein Gerätehersteller fest oder wird bevorzugt?: NEFF , Siemens wären die bevorzugten, aber ich könnte auch mit den IKEA GEräten leben trotz einiger negativer Meinungen im Bekanntenkreis
Preisvorstellung (Budget): bis 5.000,-
Anhänge
-
GR.jpg237 KB · Aufrufe: 374 -
Küche (10).jpg465,6 KB · Aufrufe: 297 -
Küche (9).jpg479,2 KB · Aufrufe: 293 -
Küche (8).jpg424 KB · Aufrufe: 301 -
Küche (7).jpg461,1 KB · Aufrufe: 345 -
Küche (4).jpg97,7 KB · Aufrufe: 275 -
Küche (2).jpg65,4 KB · Aufrufe: 263 -
Küche (1).jpg94,2 KB · Aufrufe: 264 -
20150530_151821_HDR.jpg556,4 KB · Aufrufe: 279 -
Küche (11).jpg66,8 KB · Aufrufe: 278
Zuletzt bearbeitet von einem Moderator:




