MartinM
Mitglied
- Beiträge
- 8
Hallo!
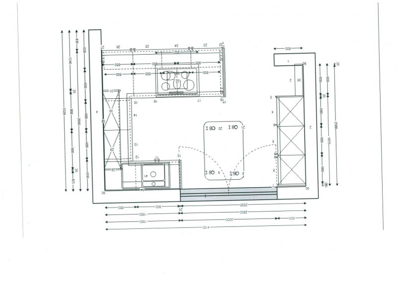
Schönen Gruß an die Gemeinde! Lange Zeit schon plane ich unsere Küche, natürlich auch mit Anregungen aus diesem Forum. Insofern haben da schon einige mitgewirkt. Dies ist jetzt fast der Plan nach dem wir unsere Küche bestellen werden. Es handelt sich um eine Schüller Küche von einem kleinen Küchenstudio hier bei uns in Castrop-Rauxel. Die einzelnen Funktionen der Küche sind meiner Ansicht nach (den Umständen entsprechend) ziemlich optimiert.
Vorab: Wir werden die Wand zwischen Küche und Esszimmer herausnehmen lassen, das Fenster kommt heraus und wird durch eine 2-flügelige "Terassentür" ohne Mittelholm nach außen öffnend ersetzt. Fliesen (Fußboden und die beiden an der Wand) kommen heraus, für den Boden kommen dann wohl sieht-aus-wie-Holz-Fliesen (Optik muss Frau noch auswählen), an der Wand Nischenverkleidung wie Arbeitsplatte in Ulme. Elektro mache ich komplett neu. Heizkörper kommt von unter dem Fenster hochkant an die Wand linker Hand zur ehemaligen Tür rein. Die bereits vorhandene Induktionsplatte wandert von der Wand planrechts zur neuen Kochhalbinsel.
Vorräte und große Sachen wie Wok, Fritteuse, Fondue, etc. stehen hinten im Abstellraum, Da befindet sich auch ein Kühl-/Gefrierschrank.
Es wird eine Schüller C 2013 Mora Mattlack Magnolia mit Edelfarbenen Stangengriffen und APL und Nischenverkleidung in Ulme.
Vorhandene Geräte:
Kühlschrank Liebherr IKB2420
Bosch Induktion 80cm Typ habe ich 'grad nicht zur Hand
Neue Geräte:
Backofen Bosch HBG73 B550
Geschirrspüler Bosch SBV69N00EU
Spüle Blancostatura 6 S-IF
Armatur Blancotivo-S für Niederdruck
Dunstesse Berbel Inselhaube Smartline
(Beim Preis habe ich a weng Bauchschmerzen, aber meine Wahl bei Siemens lag bei Google auch schon bei 1,3 tEURO und da wir ja nun quasi im Esszimmer kochen, dachte ich mir wenn-schon-denn-schon.)
Als Raster habe ich mich auch schon schnell von 1-1-2-2 überzeugen lassen. Mein KFB hatte noch die 360 cm Schubladen hinterfragt, aber die bekomme ich schon voll mit Besteck, Gewürzen, Kram, Kochutensilien die nicht mehr an Haken hängen, Messerklotz kommt auch in Rente.
Der Bio Müll kommt natürlich direkt unter die APL Naber 8012431
Die Sockelbeleuchtung Naber Lumica Cosi will ich auch haben 2x3 St und 1x6 St.
So einen Kabeldurchlass brauche ich auch noch. Alternativ.
Am Anfang der Kochinsel steht an der Wand die Espressomaschine und die Kaffemühle, da die Steckdosen dann nur 20cm weit weg sind liegt dann etwa noch 2x 15, mtr Kabel so rum. Das will ich in dem Kabeldurchlass verstecken.
Ansonsten möchte ich nichts rumstehen haben (Wasserkocher, Messerklotz, Kochutensilien kommt alles in die Auszüge).
Als Deckenleuchten wollte ich eigentlich einen Kasten an der Decke an der Wand entlang mit LED Einbau-Downlights, aber der Kasten kollidiert mit dem Rolladenkasten und dem Auslass der Haube. Jetzt sind einzelne Downlights geplant.
2 über dem Tisch in der Küche , einer über der Spüle und je einer links und rechts von der Haube (in den 3 Gruppen schaltbar und die über dem Tisch idealerweise dimmbar). Als Leuchtmittel habe ich mir LED Spots (wie 50W Halogen) oder als E27 vorgestellt.
Als Arbeitsplatzbeleuchtung unter den Oberschränken ist für mich die bereits vorhandene 150cm 58W Leuchtstoffröhre die 1. Wahl. Keine andere Lösung bietet mir so eine ideal ausgeleuchtete Arbeitsfläche. Das ist auch der Grund für den Blendrahmen um die Oberschränke. Vielleicht gibt es das Teil ja mittlerweile ein wenig filigraner.
Schalter und Steckdosen sollen Busch-Jäger edelstahl pur sein.
Mein Budget hatte ich dann mal schnell korrigiert von 15t EURO für alles zusammen auf 15t EURO nur für die Küche
+Maurer
+Fenster
+Heizung
+Fliesen
+Elektro/Schalter/Lampen
In der Nische bei der Heizung befindet sich hinter der Verkleidung übrigens noch ein Schacht. Von da kommen die Versorgungsrohre. Der sollte zugänglich sein. Das hat mein KFB mit einer Nischenverkleidung gelöst, die unsichtbar bei den Regalhaltern an der Wand fixiert wird und zerstörungsfrei durch lösen einer Schraube bei Bedarf wieder abgenommen werden kann. So ist der Plan.
Jetzt möchte ich gerne Eure Meinung zu unserer Planung hören, habe ich etwas wichtiges vergessen?
Bitte ein wenig Nachsicht, alle Feinheiten des Alnoplaners sind mir nicht so geläufig. Ich denke man sieht was mein Plan ist und was vom KFB kommt.
cu, Martin
Checkliste zur Küchenplanung von MartinM
Anzahl Personen im Haushalt : 3
Davon Kinder? : 1
Körpergrössen aller Hauptbenutzer (wegen Arbeitshöhe ) in cm : 173, 181, 125
Art des Gebäudes? : Bestandsbau, (kleinere) Umbauten möglich
Brüstungshöhe des Fensters (in cm) : nicht relevant
Fensterhöhe (in cm) : vom Boden bis zur Decke
Raumhöhe in cm: : 235 cm
Heizung : Heizkörper wie im Grundriss
Sanitäranschlüsse : fix
Ausführung Kühlgerät? : Integriert im Hochschrank (60cm)
Kühlgerät Größe : bis 122 cm Höhe
Ausführung Tiefkühl (TK)-Gerät : Nicht erforderlich bzw. steht woanders
Dunstabzugshaube? : Umluft
Hochgebauter Backofen ? : Ja
Hochgebauter Geschirrspüler ? : nein
Kochfeldart? : Induktion
Kochfeldbreite ca. (in cm)? : 80
Spülenform: : 1 Becken mit Abtropffläche
Weitere geplante Heißgeräte :
Küchenstil? : modern
Sitzmöglichkeit in der Küche / im Küchenbereich als : Gesonderter Tisch
Sitzmöglichkeit: Für wieviel Personen? : für 3 Personen
Sitzmöglichkeit: Tisch - wenn gesonderter Tisch oder offene Küche : Vorhandener Tisch
Gewünschte o. vorhandene Tischgröße : 120x80
Wofür soll der Sitzplatz in der Küche genutzt werden? Wie häufig? : Für Alles (Essen, Vorbereiten, Malen, Hausaufgaben), täglich
Welche Arbeitshöhe ist angedacht (in cm)? : 92
Was steht auf der Arbeitsplatte oder soll dort stehen? : Kaffeemaschine, Obstschale
Welche weiteren Küchenmaschinen müssen in der Küche untergebracht werden? : Küchenmaschine, Wasserkocher, Toaster, Schneidemaschine (z. B. in Schublade), Handrührgerät, Pürierstab, Eierkocher
Was soll in der Küche außer den Standards untergebracht werden? : Sonstiges (evtl. im Beitragstext benennen)
Welchen Stauraum gibt es sonst noch? : Geschirr/Gläserschrank im Wohn-/Esszimmer, Speisekammer
Was/wie wird gekocht? (Alltagsküche, Menüs, Snacks usw) : Alltag
Wie häufig wird gekocht? : (fast) täglich 1x warm
Wird alleine gekocht? Oder auch gemeinsam? Mit und für Gäste? : i.d.R. alleine oder zu zweit
Was stört an der bisherigen Küche und was soll die neue Küche unbedingt können? Warum? : Ist nicht "unsere" Küche, von Schwiegereltern und neu. Neue Küche soll schön und modern sein.
Steht schon ein Küchenhersteller fest oder wird bevorzugt? : Schüller
Steht schon ein Gerätehersteller fest oder wird bevorzugt? : Bosch war die Wahl unseres KFB
Preisvorstellung (Budget) : bis 15.000,-
Schönen Gruß an die Gemeinde! Lange Zeit schon plane ich unsere Küche, natürlich auch mit Anregungen aus diesem Forum. Insofern haben da schon einige mitgewirkt. Dies ist jetzt fast der Plan nach dem wir unsere Küche bestellen werden. Es handelt sich um eine Schüller Küche von einem kleinen Küchenstudio hier bei uns in Castrop-Rauxel. Die einzelnen Funktionen der Küche sind meiner Ansicht nach (den Umständen entsprechend) ziemlich optimiert.
Vorab: Wir werden die Wand zwischen Küche und Esszimmer herausnehmen lassen, das Fenster kommt heraus und wird durch eine 2-flügelige "Terassentür" ohne Mittelholm nach außen öffnend ersetzt. Fliesen (Fußboden und die beiden an der Wand) kommen heraus, für den Boden kommen dann wohl sieht-aus-wie-Holz-Fliesen (Optik muss Frau noch auswählen), an der Wand Nischenverkleidung wie Arbeitsplatte in Ulme. Elektro mache ich komplett neu. Heizkörper kommt von unter dem Fenster hochkant an die Wand linker Hand zur ehemaligen Tür rein. Die bereits vorhandene Induktionsplatte wandert von der Wand planrechts zur neuen Kochhalbinsel.
Vorräte und große Sachen wie Wok, Fritteuse, Fondue, etc. stehen hinten im Abstellraum, Da befindet sich auch ein Kühl-/Gefrierschrank.
Es wird eine Schüller C 2013 Mora Mattlack Magnolia mit Edelfarbenen Stangengriffen und APL und Nischenverkleidung in Ulme.
Vorhandene Geräte:
Kühlschrank Liebherr IKB2420
Bosch Induktion 80cm Typ habe ich 'grad nicht zur Hand
Neue Geräte:
Backofen Bosch HBG73 B550
Geschirrspüler Bosch SBV69N00EU
Spüle Blancostatura 6 S-IF
Armatur Blancotivo-S für Niederdruck
Dunstesse Berbel Inselhaube Smartline
(Beim Preis habe ich a weng Bauchschmerzen, aber meine Wahl bei Siemens lag bei Google auch schon bei 1,3 tEURO und da wir ja nun quasi im Esszimmer kochen, dachte ich mir wenn-schon-denn-schon.)
Als Raster habe ich mich auch schon schnell von 1-1-2-2 überzeugen lassen. Mein KFB hatte noch die 360 cm Schubladen hinterfragt, aber die bekomme ich schon voll mit Besteck, Gewürzen, Kram, Kochutensilien die nicht mehr an Haken hängen, Messerklotz kommt auch in Rente.
Der Bio Müll kommt natürlich direkt unter die APL Naber 8012431
Die Sockelbeleuchtung Naber Lumica Cosi will ich auch haben 2x3 St und 1x6 St.
So einen Kabeldurchlass brauche ich auch noch. Alternativ.
Am Anfang der Kochinsel steht an der Wand die Espressomaschine und die Kaffemühle, da die Steckdosen dann nur 20cm weit weg sind liegt dann etwa noch 2x 15, mtr Kabel so rum. Das will ich in dem Kabeldurchlass verstecken.
Ansonsten möchte ich nichts rumstehen haben (Wasserkocher, Messerklotz, Kochutensilien kommt alles in die Auszüge).
Als Deckenleuchten wollte ich eigentlich einen Kasten an der Decke an der Wand entlang mit LED Einbau-Downlights, aber der Kasten kollidiert mit dem Rolladenkasten und dem Auslass der Haube. Jetzt sind einzelne Downlights geplant.
2 über dem Tisch in der Küche , einer über der Spüle und je einer links und rechts von der Haube (in den 3 Gruppen schaltbar und die über dem Tisch idealerweise dimmbar). Als Leuchtmittel habe ich mir LED Spots (wie 50W Halogen) oder als E27 vorgestellt.
Als Arbeitsplatzbeleuchtung unter den Oberschränken ist für mich die bereits vorhandene 150cm 58W Leuchtstoffröhre die 1. Wahl. Keine andere Lösung bietet mir so eine ideal ausgeleuchtete Arbeitsfläche. Das ist auch der Grund für den Blendrahmen um die Oberschränke. Vielleicht gibt es das Teil ja mittlerweile ein wenig filigraner.
Schalter und Steckdosen sollen Busch-Jäger edelstahl pur sein.
Mein Budget hatte ich dann mal schnell korrigiert von 15t EURO für alles zusammen auf 15t EURO nur für die Küche
+Maurer
+Fenster
+Heizung
+Fliesen
+Elektro/Schalter/Lampen
In der Nische bei der Heizung befindet sich hinter der Verkleidung übrigens noch ein Schacht. Von da kommen die Versorgungsrohre. Der sollte zugänglich sein. Das hat mein KFB mit einer Nischenverkleidung gelöst, die unsichtbar bei den Regalhaltern an der Wand fixiert wird und zerstörungsfrei durch lösen einer Schraube bei Bedarf wieder abgenommen werden kann. So ist der Plan.
Jetzt möchte ich gerne Eure Meinung zu unserer Planung hören, habe ich etwas wichtiges vergessen?
Bitte ein wenig Nachsicht, alle Feinheiten des Alnoplaners sind mir nicht so geläufig. Ich denke man sieht was mein Plan ist und was vom KFB kommt.
cu, Martin
Checkliste zur Küchenplanung von MartinM
Anzahl Personen im Haushalt : 3
Davon Kinder? : 1
Körpergrössen aller Hauptbenutzer (wegen Arbeitshöhe ) in cm : 173, 181, 125
Art des Gebäudes? : Bestandsbau, (kleinere) Umbauten möglich
Brüstungshöhe des Fensters (in cm) : nicht relevant
Fensterhöhe (in cm) : vom Boden bis zur Decke
Raumhöhe in cm: : 235 cm
Heizung : Heizkörper wie im Grundriss
Sanitäranschlüsse : fix
Ausführung Kühlgerät? : Integriert im Hochschrank (60cm)
Kühlgerät Größe : bis 122 cm Höhe
Ausführung Tiefkühl (TK)-Gerät : Nicht erforderlich bzw. steht woanders
Dunstabzugshaube? : Umluft
Hochgebauter Backofen ? : Ja
Hochgebauter Geschirrspüler ? : nein
Kochfeldart? : Induktion
Kochfeldbreite ca. (in cm)? : 80
Spülenform: : 1 Becken mit Abtropffläche
Weitere geplante Heißgeräte :
Küchenstil? : modern
Sitzmöglichkeit in der Küche / im Küchenbereich als : Gesonderter Tisch
Sitzmöglichkeit: Für wieviel Personen? : für 3 Personen
Sitzmöglichkeit: Tisch - wenn gesonderter Tisch oder offene Küche : Vorhandener Tisch
Gewünschte o. vorhandene Tischgröße : 120x80
Wofür soll der Sitzplatz in der Küche genutzt werden? Wie häufig? : Für Alles (Essen, Vorbereiten, Malen, Hausaufgaben), täglich
Welche Arbeitshöhe ist angedacht (in cm)? : 92
Was steht auf der Arbeitsplatte oder soll dort stehen? : Kaffeemaschine, Obstschale
Welche weiteren Küchenmaschinen müssen in der Küche untergebracht werden? : Küchenmaschine, Wasserkocher, Toaster, Schneidemaschine (z. B. in Schublade), Handrührgerät, Pürierstab, Eierkocher
Was soll in der Küche außer den Standards untergebracht werden? : Sonstiges (evtl. im Beitragstext benennen)
Welchen Stauraum gibt es sonst noch? : Geschirr/Gläserschrank im Wohn-/Esszimmer, Speisekammer
Was/wie wird gekocht? (Alltagsküche, Menüs, Snacks usw) : Alltag
Wie häufig wird gekocht? : (fast) täglich 1x warm
Wird alleine gekocht? Oder auch gemeinsam? Mit und für Gäste? : i.d.R. alleine oder zu zweit
Was stört an der bisherigen Küche und was soll die neue Küche unbedingt können? Warum? : Ist nicht "unsere" Küche, von Schwiegereltern und neu. Neue Küche soll schön und modern sein.
Steht schon ein Küchenhersteller fest oder wird bevorzugt? : Schüller
Steht schon ein Gerätehersteller fest oder wird bevorzugt? : Bosch war die Wahl unseres KFB
Preisvorstellung (Budget) : bis 15.000,-
Anhänge
-
1338-13.jpg48,7 KB · Aufrufe: 218 -
1338-13.JPG 2.jpg62,6 KB · Aufrufe: 197 -
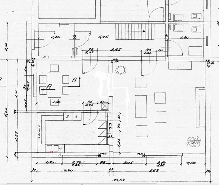
grundriss-EG.jpg86,3 KB · Aufrufe: 205 -
grundriss-kueche.jpg159,7 KB · Aufrufe: 198 -
Martin-ansicht01.jpg55,8 KB · Aufrufe: 205 -
Martin-ansicht02.jpg44,2 KB · Aufrufe: 184 -
Martin-Plan.KPL4,1 KB · Aufrufe: 168
-
Martin-Plan.POS9,6 KB · Aufrufe: 207
-
plan.jpg48,4 KB · Aufrufe: 196
Zuletzt bearbeitet von einem Moderator:









