roxana2021
Mitglied
- Beiträge
- 4
Liebe Mitglieder,
bisher dachte ich, mit unserer Planung ganz gut zurecht zu kommen. Nicht zuletzt aufgrund der vielen hilfreichen Beiträge hier.
Leider komme ich jetzt mit dem Kauf des Kochfeldes an meine Grenzen.
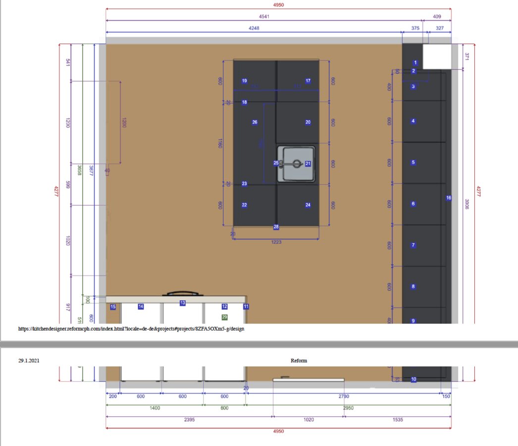
Die Küche ist bereits bestellt, aber ohne Elektrogeräte. Daher ist das Kochfeld in den Bildern nicht zu sehen. Es soll gegenüber der Spüle über die beiden 60er-Unterschränke 3 & 4 aufgesetzt werden. Die Korpusse haben wir von IKEA gekauft, die Fronten (Linoleum) sowie die Arbeitsplatte (Spannplatte mit FENIX -Beschichtung) werden von Reform Cph. geliefert. Leider stand die finale Planung nicht, als die Sole gegossen wurde. Sonst hätten wir das Rohr für die Abluft besser positioniert. (Es läuft innerhalb der Sohle nach draußen und kommt der hoch.)
So stellt sich jetzt die Frage, ob der gewünschte Muldenlüfter überhaupt möglich ist und falls ja, wie der Abluftkanal verlegt werden könnte.
(Die Entscheidung für den Muldenlüfter wurde aufgrund der Optik getroffen. Wir hätten die Rückwand gern komplett frei.)
Die Sockelhöhe beträgt 11 cm. Die Arbeitsplatte ist tiefer als die Unterschränke, sodass sich zwischen Schrank und Wand ebenfalls 11 cm Platz ergeben. Bis vor kurzem dachte ich, das wäre genug Raum für die Abluft. Hatte mir aber keine Gedanken über Winkel etc gemacht.
Jetzt habe bereits mit mehreren Bora -Händlern gesprochen (gewünscht wäre das Bora X Pure), eine konkrete Antwort habe ich leider nicht erhalten. Es scheint kompliziert zu sein.
Ich setzte also alle Hoffnung auf eure Expertise! Oder fehlen noch Informationen?
Es wäre toll, wenn mir jemand Rückmeldung geben könnte!
Herzlichen Dank!
Roxana
Checkliste zur Küchenplanung - entfernt, da ja keine Planung erwünscht
Angehängte Dateien
bisher dachte ich, mit unserer Planung ganz gut zurecht zu kommen. Nicht zuletzt aufgrund der vielen hilfreichen Beiträge hier.
Leider komme ich jetzt mit dem Kauf des Kochfeldes an meine Grenzen.
Die Küche ist bereits bestellt, aber ohne Elektrogeräte. Daher ist das Kochfeld in den Bildern nicht zu sehen. Es soll gegenüber der Spüle über die beiden 60er-Unterschränke 3 & 4 aufgesetzt werden. Die Korpusse haben wir von IKEA gekauft, die Fronten (Linoleum) sowie die Arbeitsplatte (Spannplatte mit FENIX -Beschichtung) werden von Reform Cph. geliefert. Leider stand die finale Planung nicht, als die Sole gegossen wurde. Sonst hätten wir das Rohr für die Abluft besser positioniert. (Es läuft innerhalb der Sohle nach draußen und kommt der hoch.)
So stellt sich jetzt die Frage, ob der gewünschte Muldenlüfter überhaupt möglich ist und falls ja, wie der Abluftkanal verlegt werden könnte.
(Die Entscheidung für den Muldenlüfter wurde aufgrund der Optik getroffen. Wir hätten die Rückwand gern komplett frei.)
Die Sockelhöhe beträgt 11 cm. Die Arbeitsplatte ist tiefer als die Unterschränke, sodass sich zwischen Schrank und Wand ebenfalls 11 cm Platz ergeben. Bis vor kurzem dachte ich, das wäre genug Raum für die Abluft. Hatte mir aber keine Gedanken über Winkel etc gemacht.
Jetzt habe bereits mit mehreren Bora -Händlern gesprochen (gewünscht wäre das Bora X Pure), eine konkrete Antwort habe ich leider nicht erhalten. Es scheint kompliziert zu sein.
Ich setzte also alle Hoffnung auf eure Expertise! Oder fehlen noch Informationen?
Es wäre toll, wenn mir jemand Rückmeldung geben könnte!
Herzlichen Dank!
Roxana
Checkliste zur Küchenplanung - entfernt, da ja keine Planung erwünscht
Angehängte Dateien
Anhänge
Zuletzt bearbeitet von einem Moderator:
