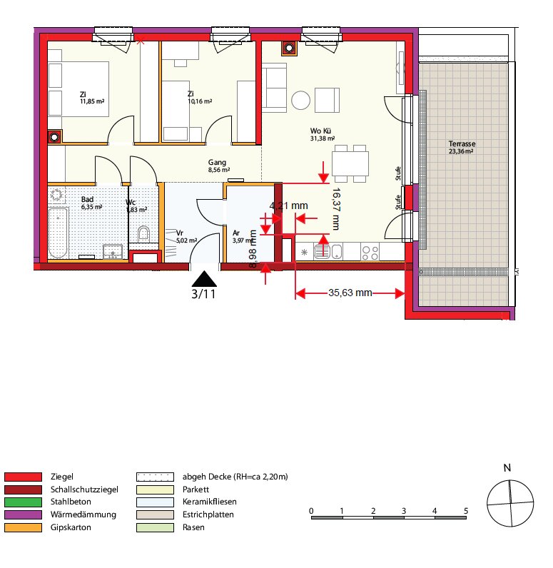
Unbeendet Wohnung, 1. Küche mit Mauervorsprung

Danke für deine Antwort, ich glaube ich bin sowieso schon zu spät, sind nur noch 3 Wochen bis zur Auslieferung
 
Hat vielleicht sonst noch jemand Erfahrungen mit so späten Änderungen kurz vor Auslieferung ? Besteht da überhaupt noch eine Chance ?
 
Ja, 3 Wochen könnte noch klappen.

Aber warum ömmelst Du hier rum, anstatt mit Deinem KFB zu reden?
 
Das wird aber sehr knapp.Wenn ihr die Küche in 3 Wochen bekommt,wird der Händler eher in 14 Tagen beliefert.
Und Frontänderung bedeutet meistens auch Sockel ,Kopusseiten Wangen.Da sind Fehler vorprogrammiert.
Frag deinen KFB.
 
Liebes Forum,

ich habe mittlerweile nun über 1 Jahr meine Küche und leider wird mir der Arbeitsplatz zum Schneiden, Vorbereiten etc. zu eng. Deshalb spiele ich mit der Überlegung, mir eine Kücheninsel (sprich ohne Spüle + Herd) nachträglich zwischen Küchenzeile und Tisch im Plan zu realisieren.

Welche Schrankkombinationen + Maße für die Insel könntet ihr mir hierfür empfehlen?

Liebe Grüße
 

Anhänge

  • küche1.jpg
    küche1.jpg
    80 KB · Aufrufe: 120
Ich denke, hierfür wäre ein Foto deiner aktuellen Küche und ein Plan, welche Möbel sonst noch in dem Raum stehen, sehr hilfreich. Die Größe der Arbeitsinsel muss ja so geplant werden, dass alles andere auch noch Platz hat.
 
Küche wurde damals so wie im angefügten Bild realisiert, da sie leider nicht mehr verändert werden konnte.

Weiters steht noch ein Tisch 160x95 im Raum. Live Fotos kann ich gerade leider nicht machen, da ich noch 1 Woche unterwegs bin.

Vielen Dank an allen vorab für eure Hilfe :-)
 

Anhänge

  • küche_2.jpg
    küche_2.jpg
    72,1 KB · Aufrufe: 98
Zuletzt bearbeitet:
Wie weit könnte der Tisch maximal Richtung Wohnzimmer geschoben werden? Somit wie groß wäre der Abstand zwischen der bestehenden Küchenzeile und dem Tisch maximal?
 
Vielen Dank für deine Antwort :-)

Der maximale Abstand zwischen Küchenzeile und Tisch wäre maximal in etwa 2,1 m - 2,2 m.
 
Ich hab mich mal selbst ein bisschen ans Planen probiert und folgende Konstellation entworfen.

3x Unterschrank 100 cm Breite, 60 cm Tiefe
6x Hängeschrank 50 cm Breite, 37 cm Tiefe

Demnach würde es dann in etwa so aussehen wie im Anhang.

Könnte mir hier vielleicht jemand in etwa sagen, was so etwas von Nobilia in Stoneart schiefergrau kosten würde? Damit hätte ich zwischen Kühlschrank und Korpusseite (heißt das so?) ca. 80 cm Platz. Abstand zwischen Küchenzeile und Kücheninsel wären etwa 100 cm. Wäre das noch genug?

Vielen herzlichen Dank vorab,
 

Anhänge

  • kueche3.JPG
    kueche3.JPG
    49,4 KB · Aufrufe: 89
Hallo, ich nehme anhand der Visualisierung an, der GS steht an Position 3, oder? Die offene GS Klappe steht damit sehr ungünstig im Weg. Miss doch mal, wie weit die Klappe deines GS geöffnet vorsteht, bitte. Du wirst die Auszüge gegenüber so nicht ganz aufziehen können.
Mir wären die 100 cm zur Insel zu knapp, ebenso der 80 cm breite Durchgang.
 

Anhänge

  • Screenshot_20240111-151949_Chrome.jpg
    Screenshot_20240111-151949_Chrome.jpg
    94,4 KB · Aufrufe: 74
Nein, 80cm zwischen Kühlschrank und Insel zu wenig.

Warum soll die Insel so lang werden?
Du kannst doch am Boden auch mal eine Zeile abkleben. Max lt deiner Vorgaben ist 60cm Inseltiefe möglich.

Wollt ihr die selbst aufstellen?

Warum fragst du deinen KFB von damals nicht?
 
Zuletzt bearbeitet:
Danke für deine Antwort :-) wieso wäre eine Insel mit maximaler Tiefe von 60 cm möglich? Ich wollte eigentlich mal eine kurze Vorabeinschätzung bekommen, wie viel so eine Kücheninsel von Nobilia in etwa kosten würde, ob das überhaupt interessant wäre für uns.
 
Das wird halt nicht geschätzt,sondern ausgerechnet .Frag deinen KFB.
 
@Hydra19 Dass so kein Mensch an der rechten Seite des Esstisches sitzen kann, siehst auch du, oder?
Hydra19_enger Essplatz.jpg



Damit das alles nicht zu eng wird, schlage ich 3x 80cm küchenseitig vor, und auf der Wozi Seite rechts und links zwei 50 oder 60cm Hängeschrankkorpusse, so dass ihr den Esstisch in der Mitte etwas unter die Arbeitsplatte schieben könnt und ihr ihn nur herauszieht, wenn ihr die ganze Größe braucht.

Hydra19_enger Essplatz 2.jpg



Auf der Wozi Seite steht eine ca.100cm tiefe Halbinsel dann bis vor das Fenster/die Festverglasung. Das ist okay für euch?
 

Ähnliche Beiträge

Neff Hausgeräte Ballerina Küchen Blum Bewegungstechnologie Weibel - Intelligente Küchenlüftung

Neff Spezial

Blum Zonenplaner

Weibel Abluft-Tuning

Weibel Abluft-Tuning
Zurück
Oben