Unbeendet Wohnküche neu

markus637

Mitglied
Beiträge
2
Titel des Themas: Wohnküche neu

Hallo liebes Forum,

Wir lesen schon länger mit und ersuchen euch nun um eure Unterstützung bei unserer Küchenplanung .

In unserer rd 80 m² großen Wohnung ist eine Wohnküche vorgesehen. Diese soll modern aussehen (grifflos) und sich gut in das Wohnzimmer eingliedern.

Nach unseren aktuellen Plänen hätten wir gerne an der Wand eine Küchenzeile mit Arbeitsflächen und davor eine Kücheninsel. Das Kochfeld mit integrierten Dunstabzug soll sich auf der Kücheninsel befinden. Die Kücheninsel soll auf 2/3 der Rückseite Aussparungen für die Füße haben, damit dort auch 1-2 Personen auf Barhockern sitzen können. Im verbleiben 1/3 soll ein Schrank untergebracht werden.

Die Küchenzeile in unseren aktuellen Plänen gliedert sich wie folgt (links nach rechts):
  • Vorratsschrank (35 cm tief, da ansonsten das Fenster nicht geöffnet werden kann),
  • Unterschrank ,
  • Geschirrspüler (vollintegriert)
  • Spüle
  • Unterschrank
  • Schrank mit Dampfgarer (oben) und Backofen (unten)
  • Schrank mit integrierten Kühlschrank
Über der Küchenzeile sollen 2x 120cm Oberschränke angebracht werden.

Der Esstisch (4 Personen) ist auf selber Höhe wie die Kücheninsel vorgesehen.

An der gegenüberliegenden Ecke ist eine Couch und eine Wohnwand angedacht.

Anders als im Grundriss dargestellt ist die Tür vom Gang in die Wohnküche als Schiebetür ausgeführt und steht somit nicht in den Raum rein.

Über Verbesserungs-/Änderungsvorschläge, Kritiken und Tipps würden wir uns sehr freuen.

Liebe Grüße,
Markus

Checkliste zur Küchenplanung

Personenkriterien und Ergonomie
Anzahl Personen im Haushalt:
2
Davon Kinder: keine
Körpergrößen aller Hauptbenutzer in cm (wegen Arbeitshöhe ): 165
Welche Arbeitshöhe ist angedacht (in cm)?: 90

Gebäudekriterien
Art des Gebäudes:
Neu-/Umbau > Planänderungen nicht möglich
Brüstungshöhe des Fensters (in cm): 95
Fensterhöhe (in cm): 155
Raumhöhe in cm: 270
Heizung: Fußbodenheizung
Sanitäranschlüsse: variabel an aktueller Wand

Einbaugerätekriterien
Ausführung Kühlgerät:
Integriert im Hochschrank (60cm)
Einbaukühlgerät Größe: 178cm
Ausführung Tiefkühl (TK)-Gerät: Im Kühlschrank bis 2 Schubladen unten
Dunstabzugshaube: Umluft
Hochgebauter Backofen : ja
Geplante Heißgeräte: Dampfgarer ohne Wasseranschluß, Backofen
Hochgebauter Geschirrspüler : nein
Art des Kochfeldes: Induktion
Kochfeldbreite (ca. in cm): 80

Sitzmöglichkeiten
Sitzmöglichkeit in der Küche / im Küchenbereich:
Separater Tisch
Sitzmöglichkeit: Für wieviel Personen?: Für 4 Personen
Sitzmöglichkeit: Tisch - wenn gesonderter Tisch oder offene Küche: Wird nach Bedarf neu gekauft
Gewünschte oder vorhandene Tischgröße: 90x140cm
Wofür soll der Sitzplatz in der Küche genutzt werden und wie häufig: Esstisch

Stauraumplanung
Was steht auf der Arbeitsplatte oder soll dort stehen?:
Kaffeemaschine, Messerblock, Toaster
Welche weiteren Küchenmaschinen müssen in der Küche untergebracht werden: Handrührgerät, Mixer, Pürierstab
Was soll in der Küche außer den Standards untergebracht werden: ALLE Vorräte, Geschirr komplett (nichts in Ess-/Wohnzimmer)
Welchen Stauraum gibt es sonst noch: Hauswirtschaftsraum

Kochgewohnheiten
Was/wie wird gekocht? (Alltagsküche, Menüs, Snacks usw):
Alltagsküche,
Wie häufig wird gekocht: Ab und zu
Wird alleine gekocht? Oder auch gemeinsam? Mit und für Gäste?: idR alleine oder zu zweit

Spülen und Müll
Spülenform:
1 Becken ohne Abtropffläche
Welche Mülltrennung soll in der Küche vorgehalten werden: Plastik, Alu, Restmüll

Sonstiges
Steht schon ein Küchenhersteller fest oder wird bevorzugt:
optisch gefällt uns EWE
Steht schon ein Gerätehersteller fest oder wird bevorzugt: Bosch / Siemens
Küchenstil: Grifflose Küche
Was stört an der bisherigen Küche und was soll die neue Küche unbedingt können? Warum?: gute Integration in Wohn-/Esszimmer
Preisvorstellung (Budget): 12000 (ohne Geräte), 18000 (mit Geräte)
-------------------
Im Threadverlauf hinzugekommen:
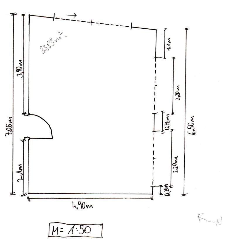
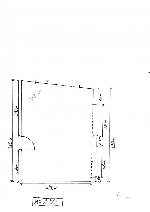
Vermaßter Grundriss als Bild

1549522503354.png

Küchengrundrissplan gedreht entsprechend Gesamtgrundriss
1549522544175.png


Angehängte Dateien
 

Anhänge

  • Ansicht_k_che.PNG
    Ansicht_k_che.PNG
    529,7 KB · Aufrufe: 250
  • Grundriss_K_che.PNG
    Grundriss_K_che.PNG
    96,2 KB · Aufrufe: 245
  • Grundriss_WHG.PNG
    Grundriss_WHG.PNG
    341,4 KB · Aufrufe: 391
  • WZ-Grundriss.pdf
    309,2 KB · Aufrufe: 149
Zuletzt bearbeitet von einem Moderator:
Hallo Evelin,

hier noch der Grundriss auch als Bild.

Liebe Grüße,
Markus
 

Anhänge

  • WZ_Grundriss.jpg
    WZ_Grundriss.jpg
    32,2 KB · Aufrufe: 159
@markus637 ... ich habe mal im Eingangsbeitrag Küchengrundriss entsprechend Gesamtgrundriss ausgerichtet und beides als Bilder dort eingebunden.

Ich bin ja durchaus ein Fan von nicht zu großen Abständen zwischen 2 Küchenzeilen, jedoch halte selbst ich 75 cm für zu wenig und würd da auf 90 bis 95 cm gehen. Dadurch landet die Insel natürlich etwas im Eingangsbereich des Raumes. Die geplante Schiebetür läuft im Wohnbereich, Kochbereich oder in der Wand? Vielleicht auch skizzieren.

Es wäre daher durchaus sinnvoll, mal die restliche geplante Raummöblierung mit ein paar Maßen (Sofa, Schrank etc.) einzuskizzieren. Dann kann man hier auch weitermachen.

Tendentiell würde ich hier eher zu einer Küche wie dieser L-Küche mit Lack und Granit| Küchenplanung einer Küche von ProNorm oder dieser Endlich Platz da!| Küchenplanung einer Küche von Schüller raten.
 

Ähnliche Beiträge

Neff Hausgeräte Ballerina Küchen Blum Bewegungstechnologie Weibel - Intelligente Küchenlüftung

Neff Spezial

Blum Zonenplaner

Weibel Abluft-Tuning

Weibel Abluft-Tuning
Zurück
Oben