Unbeendet Wohnküche nach Grundrissanpassung

Dani ELA

Mitglied
Beiträge
14
Titel des Themas: Wohnküche nach Grundrissanpassung

Liebes Küchenforum,

wir haben uns eine Eigentumswohnung gekauft, deren Grundriss wir etwas verändern möchten. Dreh-und Angelpunkt beim Umbau ist die Küche - die Originalküche, ist uns als Familienküche einfach zu klein.

Mein Mann und ich arbeiten gerne zusammen in der Küche und unsere Kinder schwirren dabei auch oft um uns herum. Wir haben uns daher für eine Integration der Küche ins Wohnzimmer entschieden. Hierfür müssen auch Wasserleitungen und Strom neu verlegt werden. Im Zuge der Renovierung soll zudem der gesamte Boden ausgetauscht werden. Geplant ist Parkett und in den Bädern Fliesen. Wir gehen von einer Aufputzverlegung der Wasserrohre aus, werden aber auch eine mögliche Verlegung im Estrich prüfen lassen. Ich habe versucht alle benötigten Informationen in eine Datei zu packen - ich hoffe, es ist alles verständlich und gut lesbar. Blau habe ich die neuen Wände und rot die zu entfernenden markiert.

Nun zur Küchenplanung :

Ich habe mich bereits mit dem Alnoplaner vertraut gemacht und vieles ausprobiert. So richtig glücklich war ich damit aber bisher nicht. Viele raten uns zu einer Kochinsel mit Blick auf die Terrasse. In diesem Forum wird aber häufig davon abgeraten. Ich habe mal eine Planung erstellt, die eine Arbeitsinsel beinhaltet. Ich bin mir aber noch unsicher, was ich besser finde.

Stil:

Hier haben wir uns noch nicht festgelegt. Die Farbe sollte aber recht hell sein.
Wichtig ist uns nur, dass es möglichst "luftig" bleibt und der ganze Raum nicht zu voll steht.

Geräte:
Neben Kühl-Gefrierkombi (ein Traum wäre ein etwas breiteres Modell als Standard), Backofen und großer Spülmaschine hätte ich gerne ein Induktionskochfeld, einen Dunstabzug und evtl. behalten wir unsere jetzige Mikrowelle und für die Zukunft ist evtl. noch eine Kaffeemaschine angedacht.

Stauraum:

Wir besitzen nicht übermäßig viel Geschirr, nur Riesentöpfe :-). Wir hätten gerne genug Platz für Vorräte. Hierfür kann aber auch ein Vorratsschrank im neuen Arbeitszimmer untergebraucht werden. Die Türe soll hier fast immer offen stehen, damit mehr Licht in den Küchenbereich fällt. Ansonsten würden wir gerne noch einen Entsafter, Blender, Toaster und evtl. eben die Mikrowelle am liebsten hinter geschlossenen Türen unterbringen.

Arbeitsplattenhöhe:

Noch so ein schwieriges Thema. Ich habe für mich 83 cm gemessen, was ich mir so gar nicht als ideal vorstellen kann. Momentan haben wir 91 cm und die finde ich eigentlich ganz gut. Da mein Mann 1,95m groß ist, müssen wir hier sowieso einen Kompromiss finden.

Weitere Möbel:

Neben der Küche soll der Raum von ca. 33 qm noch den Eingang mit Garderobe, einen Esstisch und ein Sofa direkt am Fenster unterbringen. Die Möbel existieren noch nicht, vorgestellt haben wir uns einen ausziehbaren Esstisch von 160x90 erweiterbar auf 200-220x90. Das Sofa hätten wir gerne 220-250 cm breit + Hocker oder als L-Sofa.

Ich muss dazu sagen, dass das unsere erste selbst geplante Küche wird. Bisher haben wir nur in Mietwohnungen mit bestehenden Küchen gewohnt. Dabei hat uns aber am meisten die geringe Arbeitsfläche gestört.

Nun komme ich aber mal zum Ende mit unseren vielen Wünschen und hoffe nichts vergessen zu haben. :-)

Ich bin euch sehr dankbar für jegliche Hilfe, Ideen und Kritik und freue mich sehr auf eure Antworten!

Checkliste zur Küchenplanung

Personenkriterien und Ergonomie
Anzahl Personen im Haushalt:
4
Davon Kinder: 2
Körpergrößen aller Hauptbenutzer in cm (wegen Arbeitshöhe ): 158, 195
Welche Arbeitshöhe ist angedacht (in cm)?: 91

Gebäudekriterien
Art des Gebäudes:
Bestandsbau > (kleinere) Umbauten möglich, Eigentum
Brüstungshöhe des Fensters (in cm):
Fensterhöhe (in cm):
Raumhöhe in cm:
240
Heizung: Keine Heizung
Sanitäranschlüsse: vollkommen variabel

Einbaugerätekriterien
Ausführung Kühlgerät:
Integriert im Hochschrank (60cm)
Einbaukühlgerät Größe: 178cm
Ausführung Tiefkühl (TK)-Gerät: Im Kühlschrank ab 3 Schubladen unten
Dunstabzugshaube: Umluft
Hochgebauter Backofen : wenn möglich
Geplante Heißgeräte: Standmikrowelle, Backofen
Hochgebauter Geschirrspüler : nein
Art des Kochfeldes: Induktion
Kochfeldbreite (ca. in cm): 70

Sitzmöglichkeiten
Sitzmöglichkeit in der Küche / im Küchenbereich:
Separater Tisch
Sitzmöglichkeit: Für wieviel Personen?: Für 6 Personen
Sitzmöglichkeit: Tisch - wenn gesonderter Tisch oder offene Küche: Wird nach Bedarf neu gekauft
Gewünschte oder vorhandene Tischgröße: 160x90
Wofür soll der Sitzplatz in der Küche genutzt werden und wie häufig:

Stauraumplanung
Was steht auf der Arbeitsplatte oder soll dort stehen?:
Brotbehälter, Obstschale
Welche weiteren Küchenmaschinen müssen in der Küche untergebracht werden: Allesschneider (z.B. in Schublade), Handrührgerät, Mixer, Pürierstab
Was soll in der Küche außer den Standards untergebracht werden: ALLE Vorräte, Geschirr komplett (nichts in Ess-/Wohnzimmer)
Welchen Stauraum gibt es sonst noch: N. a.

Kochgewohnheiten
Was/wie wird gekocht? (Alltagsküche, Menüs, Snacks usw): Einmal täglich warm, Alltagsküche
Wie häufig wird gekocht: (fast) täglich 1x warm
Wird alleine gekocht? Oder auch gemeinsam? Mit und für Gäste?: allein, zu zweit, zu viert


Spülen und Müll
Spülenform: 1 Becken ohne Abtropffläche
Welche Mülltrennung soll in der Küche vorgehalten werden: Altpapier, Biomüll, Gelber Sack Müll, Restmüll


Sonstiges
Steht schon ein Küchenhersteller fest oder wird bevorzugt: nein, allerdings aufgrund der langen Wartezeiten bei anderen Herstellern, gerne auch Ikea
Steht schon ein Gerätehersteller fest oder wird bevorzugt: nein
Küchenstil: Klassisch
Was stört an der bisherigen Küche und was soll die neue Küche unbedingt können? Warum?: Spüle und Kochfeld sind weit auseinander und der Kühlschrank ist schlecht platziert. Man steht sich ständig im Weg, wenn einer an den Kühlschrank will und der andere am Kochen ist. Wunsch nach ausreichend Arbeitsfläche und gut geplanter Wege.
Preisvorstellung (Budget): 5000-8000 €
---------------
Im Threadverlauf hinzugekommen:

Korrigierte Maße
skizze-mit-massen-jpg.268722


Angehängte Dateien
 

Anhänge

  • Grundriss Neu.jpg
    Grundriss Neu.jpg
    87,8 KB · Aufrufe: 490
  • Wohnküche_KF.KPL
    3,6 KB · Aufrufe: 285
  • Wohnküche_KF.POS
    9 KB · Aufrufe: 268
  • Wohnküche_KF_Planungsansicht.jpg
    Wohnküche_KF_Planungsansicht.jpg
    45,3 KB · Aufrufe: 470
  • Wohnküche_KF.jpg
    Wohnküche_KF.jpg
    53,5 KB · Aufrufe: 429
Zuletzt bearbeitet von einem Moderator:
Ein Nachtrag noch: Ursprünglich geplant waren zwei Einzelwohnungen, die aber von Anfang an gemeinsam genutzt wurden. Die Originalaufteilung habe ich auch noch angehängt.
 

Anhänge

  • Original.jpg
    Original.jpg
    92,4 KB · Aufrufe: 367
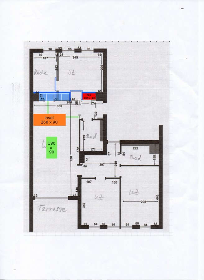
Und an dieser Stelle auch nochmal die Handskizze des Raumes mit Maßen - ich hatte sie falsch eingestellt.
 

Anhänge

  • Skizze mit Maßen.jpg
    Skizze mit Maßen.jpg
    70,7 KB · Aufrufe: 641
Hallo und herzlich :welcome: im Küchenforum!

du hast dich ja schon gut eingearbeitet. Könntest du vielleicht noch angeben wo das Wasser/Abwasser jetzt liegt? Ich vermute bei dem "blauen Knubbel" im ersten Grundriss? Seid ihr schon sicher, dass sich das Ab-Wasser durch den Kaminschacht/Versorgungsschacht planlinks oben "Aufputz" legen lässt?
Wo ist in deiner Planung der Kühlschrank gedacht? Es ist immer hilfreich, wenn die Schränke kurz beschrieben werden.
 
Hallo Dani! Was ich an der grundsätzlichen Aufteilung des großen Raums schade finde, ist, dass die Küche am wenigsten natürliches Licht bekommt, wenn sie so in der Mitte der Wohnung plaziert ist. Vielleicht würde es Sinn machen, anzudenken, Küche und Wohnzimmer-Bereich zu tauschen. Am Sofa sitzt man ja sowieso meist abends. Die Küche ist viel mehr in Betrieb.
 
Naja, @andreame, bei einer Wohnung im Bestand ist nicht immer alles machbar...

Ich würde auf jeden Fall die etwas abgeschlossene Garderobe vorm Gäste-WC so lassen wie es ist, ansonsten habt Ihr das WC im Wohnzimmer, das kommt nicht so gut. Weniger unnötige Grundrissverschlimmbesserung und ein wenig mehr Budget für die Küche an sich wäre m.E. zielführender.
 
Bei 4 Personen würde ich nicht auf ein zweites Bad verzichten wollen. Kinder werden schnell größer. Auch für einen eventuellen Wiederverkauf wäre eine Wohnung mit 3 Schlafzimmern aber nur noch einem Bad ungünstig.

Vom Erhalt des Bads ausgehend, habe ich mal was skizziert, anbei in zwei "Darstellungen": In der einen sind neue Wände dunkelblau, alte blaß. In der zweiten sind die alten Wände weg, zeigt quasi den fertigen Zustand nach Umbau.

Planrechts ist eine Nische von 100 x 60, in die z.B. ein Pax von Ikea als Garderobe eingebaut werden könnte. Planlinks eingebaut 4 HS mit 60 Breite. Dort integriert die GSP hochgebaut. Davor Insel von 260 x 90.

Zugang zum Arbeitszimmer erfolgt nun durchs Schlafzimmer. Da haben die Kinder ja sowieso eher nichts zu suchen - und auf die Weise stören in der Küche nicht zu viele Türen.

Nach planunten bleibt genug Platz für Tisch (eingezeichnet mit 180 x 90) sowie Couch etc.
 

Anhänge

  • DaniEla_GR_PariV1_Markiert.jpg
    DaniEla_GR_PariV1_Markiert.jpg
    82,1 KB · Aufrufe: 364
  • DaniEla_GR_PariV1_OhneAltwaende.jpg
    DaniEla_GR_PariV1_OhneAltwaende.jpg
    80,7 KB · Aufrufe: 396
Mir gefält der Vorschag von pari79 gut :2daumenhoch:

Vor allem weil die Arbeitsbereiche zusammenhängender sind - und ihr hattet euch ja auch gut geplante Wege gewünscht. Bei deiner Ursprungsidee ist doch alles recht zerstückelt mit viel Laufwegen.

Evtl. das Lichproblem mindern, indem ein Oberlicht quer über die (nicht raumhohe) Hochschrankzeile gesetzt wird, so dass Tageslicht aus Arbeits- und Schlafzimmer in die Küche fällt.
 
Kleiner Fehler in meinen Skizzen: Die Insel ist beschriftet mit 260 x 90. Eingezeichnet habe ich sie jedoch mit ikeafreundlichen 260 x 100. Also Korpus von 60 + Korpus von 40 = 100 Tiefe.
 
Danke für eure Rückmeldung und die Anregungen!

Sommerfrucht, danke auch für die nette Begrüßung. Das Wasser liegt bei ca. 100 cm vom Schacht und sollte durch den blauen Knubbel dargestellt werden :-[. Die Aufputz-Verlegung um den Schacht herum, dürfte meines Erachtens kein Problem darstellen. Dazu gibt es morgen aber nochmal eine professionelle Meinung vom Handwerker.

Zu meiner Planung:
Im linken Hochschrank habe ich den Kühlschrank geplant und daneben einen 40er Vorratsschrank.

Zu den weiteren Punkten haben wir uns auch schon viele Gedanken gemacht.
Wie Isabella schon sagt, ist leider nicht alles möglich in einer Bestandsimmobilie und recht kompliziert die Küche ganz nach unten an das Fenster zu verlegen. Zudem ist alles natürlich auch eine Budgetfrage. Wir versuchen die Änderungen so gering wie möglich zu halten und es ist auch noch nichts final.
Theoretisch möglich könnte auch eine Verlegung der Küche auf die Höhe des neuen Gäste-WCs sein. Auch dazu werden wir morgen den Handwerker befragen.

@pari79: Deine Planung gefällt uns prinzipiell gut.
Leider geht bei deiner Planung die Rechnung im Schlafzimmer nicht mehr auf und wir hätten nur noch 20 cm zwischen Bett und Fenster übrig. Es ist alles bereits sehr knapp kalkuliert.
Mit dem Erhalt des Bades sprichst du auch einen guten Punkt an. Wir haben lange mit der Entscheidung gehadert :(, würden es aber zu Gunsten einer größeren Wohnküche opfern.
Mit einem Oberlicht haben wir uns auch schon auseinandergesetzt, uns stört aber, dass wir es nicht einfach verdunkeln können im Schlafzimmer.

Ich freue mich auf weitere Ideen!

LG
Dani ELA
 
Frischwasser so x-Mal ums Eck ist sicherlich kein Problem - aber Abwasser? Was läuft denn in dem Schacht? Vielleicht ja das Ab/Wasser und ihr könnt dort (nach Zustimmung der WEG!) den Zugang direkt machen? Drücke die Daumen für den Termin.
 
Verstehe deine Argumente, aber finde, dass der bisherige Plan noch zu viel saure Trauben mit sich bringt:

Das zweite Bad wird für die Küche geopfert, aber die ist dann zerstückelt. Und wenn ihr vom Schlafzimmer zur Dusche wollt, müsst ihr einmal durch Küche/Wohnzimmer und an den Kinderzimmern vorbei. Jetzt auch nicht ideal, wenn das mal in der Nacht vorkommt ;-)

Mal anbei ganz andere Idee skizziert. Dunkelblau sind neue Wände, blaßrosa was vom Bestand raus muss:

1. Da ich davon ausgehe, dass das mittige Fenster planoben nicht teilbar ist, habe ich einfach eine schräge Wand gesetzt, um dort zwei gleichgroße Kinderzimmer zu haben. Ob man da noch was schiebt für Garderobenschränke habe ich jetzt mal aus bzw. offen gelassen. Das Bad bleibt.

2. WZ oben, EZ unten beim Zugang zur Terrasse. Daneben die Küche, Wasser in der orangen Zeile planoben aus dem Bad.

3. Planrechts unten sind Elternbad, begehbarer Kleiderschrank und Schlafzimmer. Bett eingezeichnet mit 2 x 2 Meter.

4. Die Wand zwischen Arbeitszimmer und Küche würde man ab gewisser Höhe mit Glasscheiben versehen, damit die Küche Tageslicht bekommt.

Alternative:
Ihr verzichtet auf das Arbeitszimmer. Dann gäbe es die Wand zwischen Küche und Arbeitszimmer nicht. Wo ich Arbeitszimmer eingezeichnet habe, käme der Esstisch hin, das Wohnzimmer würde Richtung Terrasse wandern, zwischen Wohnzimmer und Kinderzimmern (markiert durch gelbe Ellipse) wäre Platz für Arbeitsplatz und auch Garderobe.
 

Anhänge

  • DaniEla_GR_PariV2.jpg
    DaniEla_GR_PariV2.jpg
    89,7 KB · Aufrufe: 373
:clap: aber statt der schrägen Wand beide Zimmer als "L" die sich yingyang-mäßig aneinander schmiegen für Bett- oder Schreibtischnischen.
 
Auch eine gute Idee @Sommerfrucht :

Habe da anbei mal was versucht ... Dabei auch skizziert, dass das Arbeitszimmer im Wohnzimmer integriert wird und der Esstisch zur Küche kommt. Außerdem eine begehbare Garderobe integriert. Dort könnten natürlich auch Kleider der Kinder hinkommen, z.B. Wintersachen im Sommer etc.
 

Anhänge

  • DaniEla_GR_PariV3.jpeg
    DaniEla_GR_PariV3.jpeg
    90,1 KB · Aufrufe: 375
Ja, Anke, ich glaube auch :-) Es geht jetzt hoffentlich auf die Zielgerade zu.

@pari79: das ist eine sehr interessante und stimmige Idee. Mir gefällt nur die Lösung für die Kinderzimmer nicht so gut. Insgesamt wirken die Umbauten recht umfangreich. Daher wird das budgettechnisch schwierig werden. Bezüglich des zweiten Bades und der zerstückelten Küche gebe ich dir recht. Das ist natürlich nicht viel besser.

Nach unserem Gespräch mit dem Handwerker, bei dem auch eine Innenarchitektin dabei war, haben wir eine gute Lösung für uns gefunden, bei der wir recht wenig umbauen müssten:

Das Wasser kann an der langen Wand im Wohnzimmer laut Handwerker an jede x-beliebige Stelle gelegt werden. Die Rohre würden in der Wand versteckt werden. Hierfür würde er direkt den Schacht nutzen.
Sofern wir den Garderobenbereich auf 80 cm verkleinern, können wir auch ein kleines Bad mit Dusche erhalten. Die Größe würde für uns ausreichen, da wir momentan mit unserem Mini Bad auch gut zurecht kommen. Die Garderobe wäre natürlich recht klein, aber zumindest Platz im Eingang wäre genug.
Wir sind damit zufrieden und überlegen nun, ob wir die Küche weiterhin planoben (Ostseite) am Eingang behalten oder doch weiter Richtung Terrassenfenster (Westseite) verlegen.

Hierfür habe ich zwei Küchenplanungen erstellt. Meinem Mann und mir gefallen beide Aufteilungen gut. Nur bei der Küchenplanung sind wir uns nicht sicher. Ich würde mich sehr über euer Feedback dazu freuen :-).

Bei der Planung der Küche planoben sind die Küchenschränke wie folgt angeordnet:

Zeile von unten links startend
Unterschrank 60cm mit Auszügen
Unterschrank 80cm mit Kochfeld und Dunstesse
Unterschrank 80cm mit Auszügen
Spülenschrank 60cm
Spülmaschine 60cm

Arbeitsplattentiefe 70cm

Zeile mit Hochschränken 225cm hoch von links
Schrank mit Kühl-Gefrierkombi 180cm
Backofen und Mikrowelle
Vorratsschrank

Die Küche planunten bei der Terrasse habe ich identisch geplant, nur ohne den dritten Vorratsschrank, damit das nicht so eng wird.

Einen weiteren Platz für Vorräte soll es im Arbeitszimmer geben oder bei der Küche planunten im Flurschrank.

Danke für eure Meinung, Kritik und weitere Ideen!
Dani ELA
 

Anhänge

  • Küche oben.KPL
    3,9 KB · Aufrufe: 282
  • Küche oben.POS
    10,2 KB · Aufrufe: 285
  • Küche_oben.JPG
    Küche_oben.JPG
    76,5 KB · Aufrufe: 408
  • Küche_oben_Plan.JPG
    Küche_oben_Plan.JPG
    55,9 KB · Aufrufe: 338
Und die Planung unten an der Terrasse
 

Anhänge

  • Küche unten.KPL
    3,9 KB · Aufrufe: 259
  • Küche_unten.JPG
    Küche_unten.JPG
    59,3 KB · Aufrufe: 318
  • Küche unten.POS
    10,4 KB · Aufrufe: 286
  • Küche_unten_Plan.JPG
    Küche_unten_Plan.JPG
    52,6 KB · Aufrufe: 301
Hallo, das interessiert mich mit dem Wasser, das der Handwerker an jede beliebige Stelle legen und in der Wand verstecken will.

Das ist doch eine tragende Wand, die die Wohnung zur Nachbarwohnung (oder nach außen/zum Nachbargebäude) trennt oder? Ich ging bisher davon aus, dass man so lange (längere als 50 cm) Querschlitze in tragende Wände nicht machen darf? Zumindest nicht in der Stärke eines Abwasserrohrs, vielleicht ist das bei einem Kabel noch denkbar. Oder soll das Wasser im Keller laufen und wird nur im senkrechten Aufstieg in der Wand versteckt?

Auf jeden Fall öffnet das ja nochmal viele Optionen:2daumenhoch:
 
Beide Versionen habe Vor-und Nachteile. Ich würde mich für die Küche planoben entscheiden, da zentraler (Einkäufe, Familienleben) und öffentlicher (Eingangstür). Unten erscheint mit das Sofa gemütlicher. Allerdings würde die Lichtsituation und Terrasse (Stichwort Sommer, Grillen, schnell vom Spielen ein Getränk holen) eher für unten sprechen.

Bei der Planung der Küche planoben würde ich die Küchenschränke wie folgt anordnen:

Zeile von unten links startend - 10 cm länger als deine Zeile:
40cm US mit Auszügen
80 cm US mit KF (und Muldenlüfter /Downdraft falls vom Budget machbar wegen Licht und Blickachse)
80 cm US mit Auszügen
30 cm Mupl (bzw, wenn Ikea dann 40 cm dann wäre die Zeile 20 cm länger, alternativ nur 60 KF)
60 cm Spülenschrank
60 cm GSP

Arbeitsplattentiefe evtl. 75 cm (für übertiefe US für mehr Stauraum statt nur vorgezogen)

Zeile mit Hochschränken wie von dir geplant.
 
Du hast recht, im GR sehen die Kinderzimmer etwas zerstückelt aus. Das dürfte sich real relativieren, weil die eine Nische durch das Bett belegt ist, die andere durch Regale. Alternativ wäre die schräge Wand zu überlegen ...

Enorm mehr Aufwand bez. Umbau wäre es jetzt nicht unbedingt. Ihr nehmt die planhorizontale Wand zum Wohnzimmer komplett raus, ich dagegen die zur alten Küche ... das hebt sich also quasi auf ;-)

Ein Vorteil bez. Budget wäre, dass ich das alte Bad (bzw. des Wände), das für die Kinder und als Gäste-WC gedacht ist, nicht antaste. Wenn das noch halbwegs in Ordnung ist, könnte man das erst mal komplett unverändert lassen.

Anbei skizziert, wie die Küche aussehen könnte. Skizziert, weil ich nicht alle Maße hatte. Habe die Breite unten im Original-GR ausgelesen, planoben musste ich den "Versatz" der tragenden Wand schätzen.

Bei den beiden Entwürfen mit der Küche im Wohnzimmer stört mich, dass der Tisch sehr nah an der Küchenzeile steht. Bei der Version mit der Küche unten sind zwischen Herd und Stuhllehne 50cm Abstand. Da sollte dann keiner sitzen, während du kochst.
 

Anhänge

  • DaniEla_Pari_Skizze.KPL
    3,9 KB · Aufrufe: 306
  • DaniEla_Pari_Skizze.POS
    5,5 KB · Aufrufe: 312
  • DaniEla_Pari_Skizze_1.jpg
    DaniEla_Pari_Skizze_1.jpg
    278,2 KB · Aufrufe: 346
  • DaniEla_Pari_Skizze_GR.jpg
    DaniEla_Pari_Skizze_GR.jpg
    70,7 KB · Aufrufe: 307

Ähnliche Beiträge

Neff Hausgeräte Ballerina Küchen Blum Bewegungstechnologie Weibel - Intelligente Küchenlüftung

Neff Spezial

Blum Zonenplaner

Weibel Abluft-Tuning

Weibel Abluft-Tuning
Zurück
Oben