ahemminger
Mitglied
- Beiträge
- 5
U-Küche von Ikea in EFH von 1964
Hi,
wir haben uns ein Haus gekauft und planen eine Küche. Da unser Budget von ca. 10k€ von bisher jedem Küchenstudio locker ignoriert wurde habe ich mich mit Ikea auseinandergesetzt und die angehängte Küche geplant.
Auf dem Grundriss nicht ersichtlich: planlinks oben in der Ecke ist der aktuelle Wasseranschluss mit DLH (passt in die 70er tote Ecke). Dies kann aber geändert werden, da die Garage unter der Küche ist und ich kein Problem habe die Decke zu durchlöchern. E-Anschluss wird dorthin verlegt wo das Kochfeld am Ende ist...
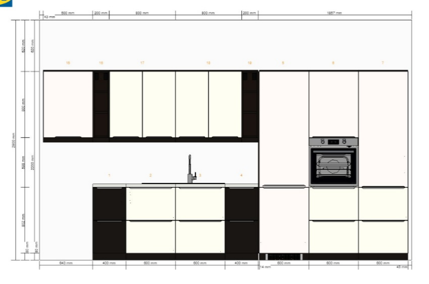
Ich habe jetzt einiges angehängt, ich hoffe ihr kommt mit den Plänen klar.
Wichtig: die Küche hat eine lange Seite von 450cm (planoben), das U ist 245cm (egal was auf dem Plan steht - dort steht eine andere Mauer) und die Wand planunten ist 330 bis zur Tür die Zeile dort kann also max. 325cm lang sein. Die Tür zum Flur (planrechts) wird geschlossen.
Das Esszimmer ist 450x450, dort wird auch das meiste Geschirr untergebracht.
Bitte ignoriert die Rasterung der Oberschränke, diese werden soweit möglich den Unterschränken symmetrisch angepasst.
So, wenn ich um im Uhrzeigersinn vorzugehen planunten rechts anfange:
40er US mit Gewürzen und Kochgeschirr
60er mit Kochfeld (wird ein Neff 90cm Induktionsfeld über beide Schränke weg), darunter Auszüge für Töpfe, Pfannen, Wok, etc. darüber DAH
60er mit Kochfeld und Auszügen für den Rest Kochgeschirr
40er mit Öl, Essig, Sojasauce, alles für Salat
Unter dem Fenster:
20er mit Spülmittel, Tabs, etc.
60er GSP
20er mit
Planoben:
40er für Schneidebretter, etc...
60er mit Auszügen für Handtücher, eventuell MUPL (Blanco ?)
60er mit Spüle (wahrscheinlich eine Blanco Collectis)
40er für alles mögliche
60er HS mit KS (Gefrierschrank muss nciht sein)
60 mit Backofen (Neff Slide&Hide)
60 Vorratsschrank
Der Stauraum in den Oberschränken wird für Gläser und Alltagsgeschirr genutzt.
Ich würde mich über Anregungen / Vorschläge freuen weil ich inzwischen so unsicher bin ob das so geht...
Im Ikea-Planer kann ich leider die beiden toten Ecken nicht besser darstellen.
Checkliste zur Küchenplanung
Personenkriterien und Ergonomie
Anzahl Personen im Haushalt: 4
Davon Kinder: 2
Körpergrößen aller Hauptbenutzer in cm (wegen Arbeitshöhe ): 183, 168
Welche Arbeitshöhe ist angedacht (in cm)?: 93 (Ikea-Maß halt)
Gebäudekriterien
Art des Gebäudes: Neu-/Umbau > Planänderungen möglich
Brüstungshöhe des Fensters (in cm): 95
Fensterhöhe (in cm): 100
Raumhöhe in cm: 275 (auf dem Plan falsch)
Heizung: Heizkörper wie im Grundriss
Sanitäranschlüsse: vollkommen variabel
Einbaugerätekriterien
Ausführung Kühlgerät: Integriert im Hochschrank (60cm)
Einbaukühlgerät Größe: Noch unbekannt
Ausführung Tiefkühl (TK)-Gerät: Nicht erforderlich bzw. steht woanders
Dunstabzugshaube: Umluft
Hochgebauter Backofen : ja
Geplante Heißgeräte: Backofen
Hochgebauter Geschirrspüler : nein
Art des Kochfeldes: Induktion
Kochfeldbreite (ca. in cm): 90
Sitzmöglichkeiten
Sitzmöglichkeit in der Küche / im Küchenbereich: Keine
Sitzmöglichkeit: Für wieviel Personen?: N. a.
Sitzmöglichkeit: Tisch - wenn gesonderter Tisch oder offene Küche: N. a.
Gewünschte oder vorhandene Tischgröße:
Wofür soll der Sitzplatz in der Küche genutzt werden und wie häufig:
Stauraumplanung
Was steht auf der Arbeitsplatte oder soll dort stehen?: Kaffeemaschine
Welche weiteren Küchenmaschinen müssen in der Küche untergebracht werden: Küchenmaschine, Mixer
Was soll in der Küche außer den Standards untergebracht werden: N. a.
Welchen Stauraum gibt es sonst noch: Geschirr/Gläserschrank im Wohn-/Esszimmer, Hauswirtschaftsraum, Keller
Kochgewohnheiten
Was/wie wird gekocht? (Alltagsküche, Menüs, Snacks usw): täglich Frühstück, Mitnahmepacks für Schule/Arbeit, abends warm einfach, am Wocheende ausführlich und "experimentell", v.a. asiatisch (viel schnippelei - Pokebowls, Buddhabowls, diese Richtung, auch mal mehrere Gänge)
Wie häufig wird gekocht: (fast) täglich 1x warm
Wird alleine gekocht? Oder auch gemeinsam? Mit und für Gäste?: täglich: frau, wochende: mann
Spülen und Müll
Spülenform: 1 1/2 Becken mit Abtropffläche
Welche Mülltrennung soll in der Küche vorgehalten werden: Altpapier, Biomüll, Gelber Sack Müll, Restmüll
Sonstiges
Steht schon ein Küchenhersteller fest oder wird bevorzugt: IKEA
Steht schon ein Gerätehersteller fest oder wird bevorzugt: Neff (KF, BO, DAH), GSP wohl IKEA, Kühlschrank egal
Küchenstil: Klassisch
Was stört an der bisherigen Küche und was soll die neue Küche unbedingt können? Warum?:
Preisvorstellung (Budget): 10000
Angehängte Dateien
Hi,
wir haben uns ein Haus gekauft und planen eine Küche. Da unser Budget von ca. 10k€ von bisher jedem Küchenstudio locker ignoriert wurde habe ich mich mit Ikea auseinandergesetzt und die angehängte Küche geplant.
Auf dem Grundriss nicht ersichtlich: planlinks oben in der Ecke ist der aktuelle Wasseranschluss mit DLH (passt in die 70er tote Ecke). Dies kann aber geändert werden, da die Garage unter der Küche ist und ich kein Problem habe die Decke zu durchlöchern. E-Anschluss wird dorthin verlegt wo das Kochfeld am Ende ist...
Ich habe jetzt einiges angehängt, ich hoffe ihr kommt mit den Plänen klar.
Wichtig: die Küche hat eine lange Seite von 450cm (planoben), das U ist 245cm (egal was auf dem Plan steht - dort steht eine andere Mauer) und die Wand planunten ist 330 bis zur Tür die Zeile dort kann also max. 325cm lang sein. Die Tür zum Flur (planrechts) wird geschlossen.
Das Esszimmer ist 450x450, dort wird auch das meiste Geschirr untergebracht.
Bitte ignoriert die Rasterung der Oberschränke, diese werden soweit möglich den Unterschränken symmetrisch angepasst.
So, wenn ich um im Uhrzeigersinn vorzugehen planunten rechts anfange:
40er US mit Gewürzen und Kochgeschirr
60er mit Kochfeld (wird ein Neff 90cm Induktionsfeld über beide Schränke weg), darunter Auszüge für Töpfe, Pfannen, Wok, etc. darüber DAH
60er mit Kochfeld und Auszügen für den Rest Kochgeschirr
40er mit Öl, Essig, Sojasauce, alles für Salat
Unter dem Fenster:
20er mit Spülmittel, Tabs, etc.
60er GSP
20er mit
Planoben:
40er für Schneidebretter, etc...
60er mit Auszügen für Handtücher, eventuell MUPL (Blanco ?)
60er mit Spüle (wahrscheinlich eine Blanco Collectis)
40er für alles mögliche
60er HS mit KS (Gefrierschrank muss nciht sein)
60 mit Backofen (Neff Slide&Hide)
60 Vorratsschrank
Der Stauraum in den Oberschränken wird für Gläser und Alltagsgeschirr genutzt.
Ich würde mich über Anregungen / Vorschläge freuen weil ich inzwischen so unsicher bin ob das so geht...
Im Ikea-Planer kann ich leider die beiden toten Ecken nicht besser darstellen.
Checkliste zur Küchenplanung
Personenkriterien und Ergonomie
Anzahl Personen im Haushalt: 4
Davon Kinder: 2
Körpergrößen aller Hauptbenutzer in cm (wegen Arbeitshöhe ): 183, 168
Welche Arbeitshöhe ist angedacht (in cm)?: 93 (Ikea-Maß halt)
Gebäudekriterien
Art des Gebäudes: Neu-/Umbau > Planänderungen möglich
Brüstungshöhe des Fensters (in cm): 95
Fensterhöhe (in cm): 100
Raumhöhe in cm: 275 (auf dem Plan falsch)
Heizung: Heizkörper wie im Grundriss
Sanitäranschlüsse: vollkommen variabel
Einbaugerätekriterien
Ausführung Kühlgerät: Integriert im Hochschrank (60cm)
Einbaukühlgerät Größe: Noch unbekannt
Ausführung Tiefkühl (TK)-Gerät: Nicht erforderlich bzw. steht woanders
Dunstabzugshaube: Umluft
Hochgebauter Backofen : ja
Geplante Heißgeräte: Backofen
Hochgebauter Geschirrspüler : nein
Art des Kochfeldes: Induktion
Kochfeldbreite (ca. in cm): 90
Sitzmöglichkeiten
Sitzmöglichkeit in der Küche / im Küchenbereich: Keine
Sitzmöglichkeit: Für wieviel Personen?: N. a.
Sitzmöglichkeit: Tisch - wenn gesonderter Tisch oder offene Küche: N. a.
Gewünschte oder vorhandene Tischgröße:
Wofür soll der Sitzplatz in der Küche genutzt werden und wie häufig:
Stauraumplanung
Was steht auf der Arbeitsplatte oder soll dort stehen?: Kaffeemaschine
Welche weiteren Küchenmaschinen müssen in der Küche untergebracht werden: Küchenmaschine, Mixer
Was soll in der Küche außer den Standards untergebracht werden: N. a.
Welchen Stauraum gibt es sonst noch: Geschirr/Gläserschrank im Wohn-/Esszimmer, Hauswirtschaftsraum, Keller
Kochgewohnheiten
Was/wie wird gekocht? (Alltagsküche, Menüs, Snacks usw): täglich Frühstück, Mitnahmepacks für Schule/Arbeit, abends warm einfach, am Wocheende ausführlich und "experimentell", v.a. asiatisch (viel schnippelei - Pokebowls, Buddhabowls, diese Richtung, auch mal mehrere Gänge)
Wie häufig wird gekocht: (fast) täglich 1x warm
Wird alleine gekocht? Oder auch gemeinsam? Mit und für Gäste?: täglich: frau, wochende: mann
Spülen und Müll
Spülenform: 1 1/2 Becken mit Abtropffläche
Welche Mülltrennung soll in der Küche vorgehalten werden: Altpapier, Biomüll, Gelber Sack Müll, Restmüll
Sonstiges
Steht schon ein Küchenhersteller fest oder wird bevorzugt: IKEA
Steht schon ein Gerätehersteller fest oder wird bevorzugt: Neff (KF, BO, DAH), GSP wohl IKEA, Kühlschrank egal
Küchenstil: Klassisch
Was stört an der bisherigen Küche und was soll die neue Küche unbedingt können? Warum?:
Preisvorstellung (Budget): 10000
Angehängte Dateien
Anhänge
-
kueche 40er fenster.PNG38,7 KB · Aufrufe: 146 -
kueche 40er innen nord.PNG156,6 KB · Aufrufe: 155 -
kueche 40er innen sued.PNG69,9 KB · Aufrufe: 150 -
kueche 40er nord.PNG109,1 KB · Aufrufe: 147 -
kueche 40er sued.PNG42,7 KB · Aufrufe: 152 -
kueche 40er.PNG84,5 KB · Aufrufe: 180 -
20200130_185943.jpg61,7 KB · Aufrufe: 170
