schnubsi80
Mitglied
- Beiträge
- 10
Hallo liebe Küchenprofis,
da wir unseren langjährigen Traum erfüllen und uns nochmal an den Hausbau wagen ist natürlich die Küche ein großes Thema.
Ich habe mich die letzen Wochen einwenig (oder einwenig mehr
) hier im Forum beschäftigt und muss echt ein Lob aussprechen. Sehr kreative Köpfe hier.
So jetzt schreibe ich mal um was es geht.
Derzeit wohnen wir (2 Erw. 2 Kinder) in unserer Doppelhaushälfte. Dieses Jahr starten wir den Bau eines freistehenden Hauses. Es wird ein Haus im "Landhausstil" mit Fensterläden, Holzfußböden... etc. Damit ihr euch vorstellen könnt in welche Richtung es gehen soll.
Bisher habe wir eine Wohnküche ca. 20 qm schätz ich - G-Form. Eigentlich wollte ich im neuen Haus keine offene Küche, aber nachdem ich mich an die Alno -Planunen machte, hab ich festgestellt, dass meine Vorstellung von abgetrennter Küche mit kleinem Essplatz nicht optimal zu lösen ist.
Umso mehr freue ich mich jetzt auf eine offene Küche - in der "küchentechnisch" mehr zu verwirklichen ist.
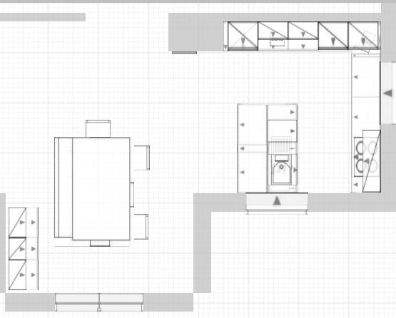
So nun beschreib ich mal meine Planungen:
von planoben links:
- Kaminofen mit Feuer-Fenster von Diele und Wohnzimmer
im EG-Grundriss-Plan falsch, er wird 60 cm tief sein so wie im Alnoplaner
- Kamin
- Blende (wie breit muss die den Feuerschutztechnisch sein, weiß das jemand?)
- 60er Vorratsschrank
- 60er Hochschrank mit Backofen
- 60er Hochschrank mit Kühlschrank
- 60er Geschirrspüle
- 2 Hängeregale für Kochbücher und Kaffeebecher
- tote Ecke
planrechts von oben
- 60er Spülenunterschrank für schwämme/putzmittel/geschirrtücher
- 50er MUPL
- 100er Auszüge für Backzutaten,Quirl,
- Aufsatzrolloschiebeschrank für Brotmaschine/Kaba/Tee..
- tote Ecke
planunten von links
- 120 Auszüge für schüsseln, Messer, besteck, Essig, Öl
- tote Ecke
halbinsel
- 120 Auszüge für Töpfe/Pfannen
- Dunstabzug ?? Was nimmt man denn da?
Halbinsel Rückseite
- 2x 90 Auszüge für Besteck und Geschirr auf halben Weg zum Esstisch
Soweit mal meine Laienhafte Planung.
Zum Geschirrspüler , hätte auch nix dagegen wenn er höher wäre, hab ihn nur nicht besser untergebracht.
Die (Halb-)Insel find ich eigentlich ganz schön. Es gibt eine große/breite Arbeitsfläche und eine schöne Fläche für Buffets. Jetzt haben wir eine Theke. Die brauch ich nicht unbedingt mehr.
Was meint ihr zu der Position Spüle und Herd? Ist halt nicht so einfach wegen den Fensterpositionen.
Das Fenster planunten geht direkt nach Süden mit einem schönen Ausblick.
Oh mann, ich wäre schon gespannt was euch so einfällt. Selbst ist man/frau ja manchmal gedanklich schon so sehr auf eine Lösung eingefahren.
Vielen Dank schon mal im Voraus.
Checkliste zur Küchenplanung von schnubsi80
Anzahl Personen im Haushalt : 4
Davon Kinder? : 2
Körpergrössen aller Hauptbenutzer (wegen Arbeitshöhe ) in cm : 168 und 185
Art des Gebäudes? : Neu-/Umbau, Planänderungen nicht möglich
Brüstungshöhe des Fensters (in cm) : kann noch angepasst werden, Arbeitsplattenhöhe
Fensterhöhe (in cm) :
Raumhöhe in cm: : ca 260cm
Heizung : Fussbodenheizung
Sanitäranschlüsse : vollkommen variabel
Ausführung Kühlgerät? : Integriert im Hochschrank (60cm)
Kühlgerät Größe : noch unbekannt
Ausführung Tiefkühl (TK)-Gerät : Nicht erforderlich bzw. steht woanders
Dunstabzugshaube? : keine
Backofen etc. hochgebaut? : Ja
Hochgebauter Geschirrspüler ? : wenn möglich
Kochfeldart? : Induktion
Kochfeldbreite ca. (in cm)? : 80 cm
Spülenform: : 1,5 Becken mit Abtropffläche
Weitere geplante Heißgeräte :
Küchenstil? : Landhaus
Sitzmöglichkeit in der Küche / im Küchenbereich als : Keine
Sitzmöglichkeit: Für wieviel Personen? : nein
Sitzmöglichkeit: Tisch - wenn gesonderter Tisch oder offene Küche : Keine
Gewünschte o. vorhandene Tischgröße : 90x150 plus 2 Erweiterungsplatten a 50 cm
Wofür soll der Sitzplatz in der Küche genutzt werden? Wie häufig? : kein Sitzplatz in der Küche
Welche Arbeitshöhe ist angedacht (in cm)? : 92-94
Was steht auf der Arbeitsplatte oder soll dort stehen? : Kaffeevollautomat, Messerblock, Küchenmaschine, Obstschale
Welche weiteren Küchenmaschinen müssen in der Küche untergebracht werden? : Küchenmaschine, Toaster, Schneidemaschine (z. B. in Schublade), Mixer, Pürierstab, Eierkocher
Was soll in der Küche außer den Standards untergebracht werden? : ALLE Vorräte, Geschirr komplett (nichts in Ess-/Wohnzimmer)
Welchen Stauraum gibt es sonst noch? : Hauswirtschaftsraum, Keller
Was/wie wird gekocht? (Alltagsküche, Menüs, Snacks usw) : täglich, frisch, für 3 Personen mittags, mit Freunden
Wie häufig wird gekocht? : (fast) täglich 1x warm
Wird alleine gekocht? Oder auch gemeinsam? Mit und für Gäste? : Alleine, zu zweit, auch mit Gästen
Was stört an der bisherigen Küche und was soll die neue Küche unbedingt können? Warum? : Schmale Auszüge, Spülmaschine mit Blende, Kühlschrank unten
Steht schon ein Küchenhersteller fest oder wird bevorzugt? : Nein
Steht schon ein Gerätehersteller fest oder wird bevorzugt? : Nein
Preisvorstellung (Budget) : bis 15.000,-
da wir unseren langjährigen Traum erfüllen und uns nochmal an den Hausbau wagen ist natürlich die Küche ein großes Thema.
Ich habe mich die letzen Wochen einwenig (oder einwenig mehr
So jetzt schreibe ich mal um was es geht.
Derzeit wohnen wir (2 Erw. 2 Kinder) in unserer Doppelhaushälfte. Dieses Jahr starten wir den Bau eines freistehenden Hauses. Es wird ein Haus im "Landhausstil" mit Fensterläden, Holzfußböden... etc. Damit ihr euch vorstellen könnt in welche Richtung es gehen soll.
Bisher habe wir eine Wohnküche ca. 20 qm schätz ich - G-Form. Eigentlich wollte ich im neuen Haus keine offene Küche, aber nachdem ich mich an die Alno -Planunen machte, hab ich festgestellt, dass meine Vorstellung von abgetrennter Küche mit kleinem Essplatz nicht optimal zu lösen ist.
Umso mehr freue ich mich jetzt auf eine offene Küche - in der "küchentechnisch" mehr zu verwirklichen ist.
So nun beschreib ich mal meine Planungen:
von planoben links:
- Kaminofen mit Feuer-Fenster von Diele und Wohnzimmer
im EG-Grundriss-Plan falsch, er wird 60 cm tief sein so wie im Alnoplaner
- Kamin
- Blende (wie breit muss die den Feuerschutztechnisch sein, weiß das jemand?)
- 60er Vorratsschrank
- 60er Hochschrank mit Backofen
- 60er Hochschrank mit Kühlschrank
- 60er Geschirrspüle
- 2 Hängeregale für Kochbücher und Kaffeebecher
- tote Ecke
planrechts von oben
- 60er Spülenunterschrank für schwämme/putzmittel/geschirrtücher
- 50er MUPL
- 100er Auszüge für Backzutaten,Quirl,
- Aufsatzrolloschiebeschrank für Brotmaschine/Kaba/Tee..
- tote Ecke
planunten von links
- 120 Auszüge für schüsseln, Messer, besteck, Essig, Öl
- tote Ecke
halbinsel
- 120 Auszüge für Töpfe/Pfannen
- Dunstabzug ?? Was nimmt man denn da?
Halbinsel Rückseite
- 2x 90 Auszüge für Besteck und Geschirr auf halben Weg zum Esstisch
Soweit mal meine Laienhafte Planung.
Zum Geschirrspüler , hätte auch nix dagegen wenn er höher wäre, hab ihn nur nicht besser untergebracht.
Die (Halb-)Insel find ich eigentlich ganz schön. Es gibt eine große/breite Arbeitsfläche und eine schöne Fläche für Buffets. Jetzt haben wir eine Theke. Die brauch ich nicht unbedingt mehr.
Was meint ihr zu der Position Spüle und Herd? Ist halt nicht so einfach wegen den Fensterpositionen.
Das Fenster planunten geht direkt nach Süden mit einem schönen Ausblick.
Oh mann, ich wäre schon gespannt was euch so einfällt. Selbst ist man/frau ja manchmal gedanklich schon so sehr auf eine Lösung eingefahren.
Vielen Dank schon mal im Voraus.
Checkliste zur Küchenplanung von schnubsi80
Anzahl Personen im Haushalt : 4
Davon Kinder? : 2
Körpergrössen aller Hauptbenutzer (wegen Arbeitshöhe ) in cm : 168 und 185
Art des Gebäudes? : Neu-/Umbau, Planänderungen nicht möglich
Brüstungshöhe des Fensters (in cm) : kann noch angepasst werden, Arbeitsplattenhöhe
Fensterhöhe (in cm) :
Raumhöhe in cm: : ca 260cm
Heizung : Fussbodenheizung
Sanitäranschlüsse : vollkommen variabel
Ausführung Kühlgerät? : Integriert im Hochschrank (60cm)
Kühlgerät Größe : noch unbekannt
Ausführung Tiefkühl (TK)-Gerät : Nicht erforderlich bzw. steht woanders
Dunstabzugshaube? : keine
Backofen etc. hochgebaut? : Ja
Hochgebauter Geschirrspüler ? : wenn möglich
Kochfeldart? : Induktion
Kochfeldbreite ca. (in cm)? : 80 cm
Spülenform: : 1,5 Becken mit Abtropffläche
Weitere geplante Heißgeräte :
Küchenstil? : Landhaus
Sitzmöglichkeit in der Küche / im Küchenbereich als : Keine
Sitzmöglichkeit: Für wieviel Personen? : nein
Sitzmöglichkeit: Tisch - wenn gesonderter Tisch oder offene Küche : Keine
Gewünschte o. vorhandene Tischgröße : 90x150 plus 2 Erweiterungsplatten a 50 cm
Wofür soll der Sitzplatz in der Küche genutzt werden? Wie häufig? : kein Sitzplatz in der Küche
Welche Arbeitshöhe ist angedacht (in cm)? : 92-94
Was steht auf der Arbeitsplatte oder soll dort stehen? : Kaffeevollautomat, Messerblock, Küchenmaschine, Obstschale
Welche weiteren Küchenmaschinen müssen in der Küche untergebracht werden? : Küchenmaschine, Toaster, Schneidemaschine (z. B. in Schublade), Mixer, Pürierstab, Eierkocher
Was soll in der Küche außer den Standards untergebracht werden? : ALLE Vorräte, Geschirr komplett (nichts in Ess-/Wohnzimmer)
Welchen Stauraum gibt es sonst noch? : Hauswirtschaftsraum, Keller
Was/wie wird gekocht? (Alltagsküche, Menüs, Snacks usw) : täglich, frisch, für 3 Personen mittags, mit Freunden
Wie häufig wird gekocht? : (fast) täglich 1x warm
Wird alleine gekocht? Oder auch gemeinsam? Mit und für Gäste? : Alleine, zu zweit, auch mit Gästen
Was stört an der bisherigen Küche und was soll die neue Küche unbedingt können? Warum? : Schmale Auszüge, Spülmaschine mit Blende, Kühlschrank unten
Steht schon ein Küchenhersteller fest oder wird bevorzugt? : Nein
Steht schon ein Gerätehersteller fest oder wird bevorzugt? : Nein
Preisvorstellung (Budget) : bis 15.000,-
Anhänge




