Unbeendet Offene U-Küche im EFH

Barney42

Mitglied
Beiträge
5
Offene U-Küche im EFH

Liebes Küchen-Forum,

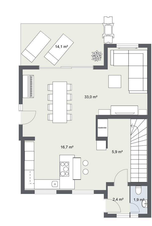
wir planen gerade unsere Küche für ein EFH (Baujahr 1964) welches demnächst saniert wird. Die nicht-tragende Wand zwischen Küche und Essplatz wird entfernt. Außerdem soll ein Durchbruch zwischen Küche/ Essplatz und Wohnzimmer erfolgen (Breite 4,20m). Das Okay vom Statiker haben wir schon. Der Plan ist, von der Wand jeweils ca. 60cm rechts uns links stehen zu lassen. Die komplette Elektrik und Bodenbeläge werden erneuert. Die Anschlüsse für Wasser sind auch variabel.

Wir waren schon bei einigen Küchenstudios zur Beratung und tendieren aktuell zu der beigefügten Planung.

Es soll voraussichtlich eine Nobilia Küche mit Hochglanz Fronten in seidengrau oder weiß werden. Bei Mülleimer und Spüle wurde uns zu Blanco geraten. Das Induktionskochfeld sollte einen integrierten Abzug nach unten/draußen haben. Zusätzlicher Platz für Vorrate, Getränke, Tiefkühltruhe ist im Keller vorhanden. Wichtig ist uns eine modere und aufgeräumte Optik. Die Spülmaschine soll hoch eingebaut werden und die Mikrowelle soll hinter eine Klappe (z.B. oberhalb des Backofens) verschwinden. Flächenbündigen Einbau von Spüle und Kochfeld wäre toll, wird aber vermutlich am Aufpreis für eine Granitplatte scheitern. Der einzelne Hochschrank ist für Staubsauger usw. gedacht.

Das Fenster vor der Spüle muss nicht unbedingt zu öffnen sein. Das Fenster bei der Theke jedoch schon. Wichtig ist uns, dass sich die Tür von Mülleimer und Geschirrspüler nicht gegenseitig behindern.

Die geplanten Elektrogeräte sind alle von Bosch .
  • Kochfeld PVQ895F25E
  • Spülmaschine SBH4HB800e
  • Kühlschrank KIL82AFF0
  • Backofen : HBG635BB1 oder HBG676EB6
Für Tipps und Anregungen wären wir dankbar

Checkliste zur Kuechenplanung

Personenkriterien und Ergonomie
Anzahl Personen im Haushalt:
3
Davon Kinder: 1
Körpergrößen aller Hauptbenutzer in cm (wegen Arbeitshoehe): 177, 170
Welche Arbeitshöhe ist angedacht (in cm)?: 93

Gebäudekriterien
Art des Gebäudes:
Neu-/Umbau > Planänderungen möglich, Eigentum
Bruestungshöhe des Fensters (in cm): 91 (Unterkante Fensterflügel 94 cm)
Fensterhöhe (in cm): 131
Raumhöhe in cm: 251
Heizung: Heizkörper wie im Grundriss
Sanitäranschlüsse: vollkommen variabel

Einbaugerätekriterien
Ausführung Kühlgerät:
Integriert im Hochschrank (60cm)
Einbaukühlgerät Größe: 178cm
Ausführung Tiefkühl (TK)-Gerät: Im Kühlschrank als kleines Fach oben
Dunstabzugshaube: Abluft
Hochgebauter Backofen : ja
Geplante Heißgeräte: Standmikrowelle, Backofen
Hochgebauter Geschirrspüler : ja
Art des Kochfeldes: Induktionskochfeld
Kochfeldbreite (ca. in cm): 80

Sitzmöglichkeiten
Sitzmöglichkeit in der Küche / im Küchenbereich:
Tresen in Barhöhe
Sitzmöglichkeit: Für wieviel Personen?: Für 2 Personen
Sitzmöglichkeit: Tisch - wenn gesonderter Tisch oder offene Küche: Wird nach Bedarf neu gekauft
Gewünschte oder vorhandene Tischgröße: N. a.
Wofür soll der Sitzplatz in der Küche genutzt werden und wie häufig: Schneller Kaffee am Morgen, Wein trinken beim Kochen, ...

Stauraum-Planung
Was steht auf der Arbeitsplatte oder soll dort stehen?:
Kaffeemaschine, Wasserkocher, Thermomix, Toaster
Welche weiteren Küchenmaschinen müssen in der Küche untergebracht werden: Handrührgerät, Pürierstab
Was soll in der Küche außer den Standards untergebracht werden: Staubsauger/Wischer etc.
Welchen Stauraum gibt es sonst noch: Geschirr/Gläserschrank im Wohn-/Esszimmer, Keller

Kochgewohnheiten
Was/wie wird gekocht? (Alltagsküche, Menüs, Snacks usw):
Vom schnellen Snack bis zum 4 Gänge Menü bei Feiern
Wie häufig wird gekocht: (fast) täglich 1x warm
Wird alleine gekocht? Oder auch gemeinsam? Mit und für Gäste?: Meist zu zweit, ab und zu auch für Gäste oder zusammen mit Freunden.

Spülen und Müll
Spülenform:
1 Becken mit Abtropffläche
Welche Mülltrennung soll in der Küche vorgehalten werden: Altpapier, Biomüll, Gelber Sack Müll, Restmüll

Sonstiges
Steht schon ein Küchenhersteller fest oder wird bevorzugt:
Nobilia
Steht schon ein Gerätehersteller fest oder wird bevorzugt: Bosch
Küchenstil: Klassisch
Was stört an der bisherigen Küche und was soll die neue Küche unbedingt können? Warum?: zu klein
Preisvorstellung (Budget): 15.000

Angehängte Dateien
 

Anhänge

  • Grundriss EG vor Umbau.jpg
    Grundriss EG vor Umbau.jpg
    70,7 KB · Aufrufe: 215
  • Küche-3D-01.jpg
    Küche-3D-01.jpg
    57,1 KB · Aufrufe: 211
  • Küche-3D-02.jpg
    Küche-3D-02.jpg
    63,4 KB · Aufrufe: 193
  • Küche-2D-01.jpg
    Küche-2D-01.jpg
    46,1 KB · Aufrufe: 208
Hallo und herzlich willkommen,

schönes Projekt.

was uns helfen würde, sind Raummaße, möglichst neu gemessen für diesen Plan

1625495273778.jpg
dh, alle Wandabschnitte Fensterbreiten , gesamte Raumlängen und Raumbreiten, damit wir uns vorstellen können, ob es auch so passt wie gewünscht.

Frage: wie arbeitet ihr? Beschreibe mal, wo ihr welche Arbeitsgänge zu zweit macht, wo ist der Müll, wo der GSP, wo der KS.
 
Das Bild habe ich mit den Raummaßen ergänzt:
Grundriss EG nach Umbau (mit Maßen).jpg

Müll soll unter die Spüle, GSP und KS sind im folgenden Bild eingezeichnet. Vorbereitung in der Nähe der Spüle erfolgt meist zu zweit, am Herd kochen tut dann einer.
Küche-2D-01.jpg
 
Zuletzt bearbeitet:
danke, ich hatte gefragt, WO gearbeitet, vorbereitet wird?

Müll unter der Spüle in der Ecke ist ungünstig. MUPL ist die bessere Alternative.

MUPL Beosu.jpg

irgendwas stimmt mit den Maßen nicht. Planunten sind es 500 cm bis zur Flurwand,

planoben sind es 65-410-65, 540cm

Fronten in hochglanz sind eher nicht mehr in Mode, einfach zu wischen, aber man sieht ALLES.

Zur Planung
ihr habt einen großen Raum, aber er wird nur wenig sinnvoll genutzt. Hast dich im Forum shcon etwas eingelesen? Wir schreiben und empfehlen im Grunde immer das Gleiche, Vermeidung von Ecken, MUPL, kurze Wege usw.

Deshalb meine Frage, WO arbeitet ihr? wie ist der Ablauf? Es ist ja nicht so, dass jemand das fertige Schnitzel nur noch aus dem KS nimmt (gut es gibt fertig panierte zu kaufen) und die dann in die Pfanne haut. Oder Kartoffeln nur noch rausholt und ganz mit Schale in den Topf gibt.
 
Zuletzt bearbeitet:
Stimmt, bei den Maßen hat sich ein Fehler eingeschlichen. Hab's korrigiert. Zum Arbeitsablauf in der Küche später mehr. Wir stöbern erst nochmal intensiver im Forum. MUPL nehmen wir in unsere Wunschliste auf :-)
 
das wird so nichts. Lt deinem Urplan kann 385 auch nicht stimmen. Wir brauchen Maße, je mehr desto besser, auch als Referenzpunkte. Du hast doch scherlich alle bestehenden Wände gemessen. Wenn du einen vermaßten IST Plan einstellst, hilft uns das.

Grundriss EG nach Umbau (mit Maßen).jpg
was Maße betrifft, bin ich pingelig, zu oft hat man uns Fantasiemaße gezeigt und unsere Arbeit und Zeit war für umme. Wobei es hier nicht so gravierend ist. Trotzdem, gemessene Maße wäre schön.
 
Bei der im Grundriss gezeichnete Planung gibt es viele Aspekte die mir nicht gefallen, aber am krassesten sind die Sitzplätze mit Rücken zum Eingang und Treppe und Gesicht zum Kochfeld. Ich würde es hassen, dort sitzen zu müssen.
 
Ich habe die Maße A, B und C noch im "Plan nach Umbau" noch nachgetragen. Die Maße auf dem "Plan vor dem Umbau" bitte nicht so genau nehmen, es handelt sich dabei um die Skizze des ursprünglichen Bauvorhabens. Der Plan soll nur die aktuelle Raumaufteilung darstellen.

Die Maße in dem "Plan nach Umbau" sollten stimmen! Die dort mit * gekennzeichneten Maße könnten ggf. noch etwas verändert werden, da der eigentliche Umbau bzw. die Sanierung noch aussteht.

Wir haben schon verschiede Varianten im Küchenstudio durchgespielt aber irgendwie landen wir immer wieder bei einem U. Auch hinsichtlich der Theke hatten wir schon Varianten durchgespielt. Aber Theke mit Rücken zum Wohnzimmer fanden wir noch blöder wie zur Treppe.

Was uns auch zu denken gibt ist, ob der Platz zum Vorbereiten neben der Spüle ausreicht. Hier hätten wir gerne mehr Platz. Hoher Backofen und Spülmaschine sind aber gesetzt.
 
Aber Theke mit Rücken zum Wohnzimmer fanden wir noch blöder wie zur Treppe
warum? du tust so, als würden täglich 3 Leute stundenlang an der Insel sitzen. Das ist in der Regel nicht so, schon gar nicht, wenn das Kochfeld in Betrieb ist.

Ehrlich gesagt verstehe ich auch nicht, warum sich so viele Gedanken um eine Theke machen, ich dachte in der Küche geht es in erster Linie darum, Essen zuzubereiten. Das ist doch keine TV show daheim.

Wollte ich auf eine Treppe schauchen bei der Arbeit? def no.

Du musst dir vorstellen, mit Induktion muss man alles vorher vorbereiten und parat haben, das eigentliche Kochen geht fix. Und du schreibst was von Thermomix, gehe davon aus, dass das Kochfeld dann auch nicht jeden Tag in Betrieb ist.

Welche anderen layouts wurden euch denn noch gezeigt? mach mal grob ein paar Skizzen oder zeige ANsichten von den KFB Planungen. Ich weiß, wie ich es für mich machen würde.

ach so, wie kommt ihr auf das Bosch Kochfeld? einfach so oder gibt es einen bestimmten Grund?
 
Zuletzt bearbeitet:
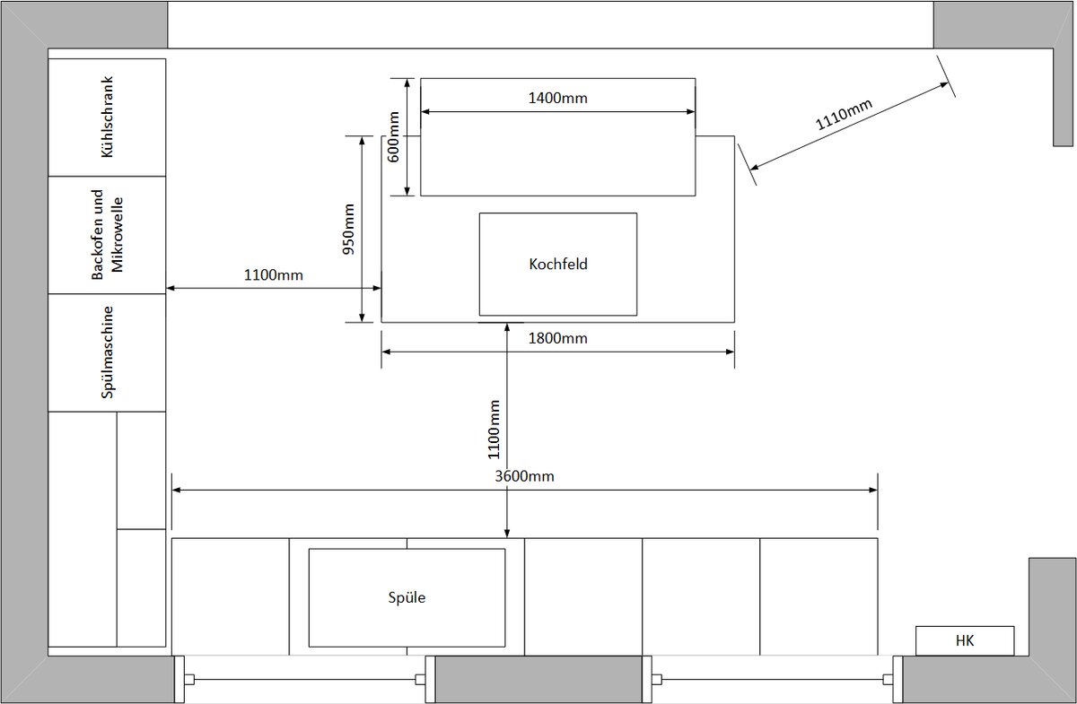
ich stelle dir mal meinen Plan ein

barney1.jpg barney2.jpg

barney3.jpgbarney4.jpg
 

Anhänge

  • barney-PLAN1.KPL
    3,9 KB · Aufrufe: 89
  • barney-PLAN1.POS
    14,5 KB · Aufrufe: 87
Vielen lieben Dank für den Entwurf! Ein L Küche mit Insel hatten wir uns auch schon überlegt. Die Idee gefällt uns grundsätzlich auch sehr gut. Die Küchenzeile kann jedoch rechts leider nicht bis zu Wand gehen, da hier noch ein Heizkörper hin muss. Es müssen dort ca. 60 cm bis zur Wand frei bleiben. Wir werden die Idee einer Insel diese Woche nochmal mit unserem Küchenplaner besprechen. Insbesondere auch ob die Abstände zur Insel ausreichend sind, da der allgemein empfohlene Abstand von 120 cm bei einer Insel bei uns kaum eingehalten werden kann.

Am letzten Wochenende haben wir schonmal selbst folgenden Plan mit einer Insel entworfen:
insel 01.jpg


Das ein Kochfeld an der Theke auch Nachteile mit sich bringt, ist uns bewusst. Wir fänden das dennoch schön. Zumindest wenn sich bautechnisch ein Kochfeldabzug nach draußen mit vertretbarem Aufwand realisieren lässt. Die Küchenschränke planunten sind erstmal alle mit 60 cm eingezeichnet und nur als Platzhalter zu verstehen. Auch das Maß und Position der Theke sind bei diesem Entwurf noch variabel.

Das Bosch Kochfeld hat keinen besonderen Grund. Das wurde von 2 Küchenstudios so angeboten. Was spricht gegen Bosch?
 
Wo “allgemein” wird 120 cm als Mindestabstand zur Insel empfohlen und mit welcher Begründung? Bei mir waren 110 geplant und sind etwa 116 geworden. Das ist genug, damit der xxl-GSP komplett öffnen kann und die Auszüge gegenüber auch. Mit 100 könnte ich nicht beide gleichzeitig komplett öffnen, damit könnte ich aber leben, wenn ich dafür eine angenehme und gut nutzbare Küche hätte. Kompromisse muss man im Leben immer machen, es stellt sich immer die Frage der individuellen Prioritäten.
 
naja, einen Heizkörper kann man auch woanders installieren, denke ich mal, wurde schon x mal in Forumsküchen gemacht.
Wofür soll der Sitzplatz in der Küche genutzt werden und wie häufig: Schneller Kaffee am Morgen, Wein trinken beim Kochen, ...
dafür braucht man keinen Tresen

Was soll in der Küche außer den Standards untergebracht werden: Staubsauger/Wischer etc.
und wo ist das in deiner Planung?

und ihr habt einen thermo, gehe mal davon aus, dass ihr ihn benutzt, wie oft kochst du denn dann noch auf dem Kochfeld?

du hattest glaube ich meine Frage immer noch nicht beantwortet, aber bei 5 posts in einer Woche, da überschlägt sich hier auch niemand mit Kommentaren. Das ist ein Mitmachforum.

Es gibt ein Unterforum für Geräte mit vielen threads zu Kchfeldern mit Muldenlüftern, lese zumindest die Kommentare von Mozart (KFB).
 

Ähnliche Beiträge

Neff Hausgeräte Ballerina Küchen Blum Bewegungstechnologie Weibel - Intelligente Küchenlüftung

Neff Spezial

Blum Zonenplaner

Weibel Abluft-Tuning

Weibel Abluft-Tuning
Zurück
Oben