PeterQuill
Mitglied
- Beiträge
- 4
Offene Küche - simpel und zeitlos
Hallo zusammen,
ich habe mich zwar jetzt erst registriert, lese aber schon länger mit und konnte mir schon so manche Info rausziehen, die in der bisherigen Planung sehr hilfreich war. Vielen Dank ans Forum dafür
Der nachfolgende Planungsentwurf wurde bei zwei Planern (Möbelhaus und Küchenstudio ) ausgearbeitet, wobei wir schon mit einer nahezu fertigen Grundaufteilung dorthin gingen.
Bevor wir uns jetzt für einen von beiden Planern entscheiden, würde wir gern nochmal abschließend hier im Forum um allgemeinen Rat bitten.
Das betrifft die grundsätzliche Aufteilung, aber auch einzelne Fragen zu Dunstabzug/Kochfeld, Backofen und APL.
Falls Fragen zur Preisgestaltung hier gestattet sein sollten, dann wäre auch eine Einschätzung dazu äußerst hilfreich.
Eckdaten Küche:
- grifflos
- zweigeteilte Front
- hochglanz weiß (umlackiert), Griffmulden anthrazit
- 84,5cm Korpushöhe
- 8,5cm Sockel
- auschließlich Auszüge
- Quarzkomposit APL betonfarben 2cm
- Quarzkomposit Rückwand (noch offen)
- 80er Kochfeld (flächenbündig, Induktion )
- 90er Abluftdeckenhaube
- 50er Unterbauspüle
- Kücheninsel mit APL Überstand (30cm)
- Zeile "oben" 10cm vorgezogen Zeile (Wasseranschluss direkt hinter dem Kühlschrank)
- Abkofferung der Decke (20cm) der Zeile/Insel folgend (Beleuchtung/Deckenhaube )
- keine Oberschränke
Fragen/Unsicherheiten die aktuell bestehen:
Reichen die 35cm Abstand von Kochfeld zum Kühlschrank wirklich aus?
Deckenhaube (optisch schöner) oder doch lieber normale Ablufthaube möglichst nah am Kochfeld (vermutlich effektiver)? Kochfeld mit Muldenlüfter hatten wir eigentlich aus mehreren Gründen ausgeschlossen. Der Durchbruch für den Abzug liegt relativ genau über dem Kochfeld.
Beim Möbelhaus wurde eine APL mit 1,2cm geplant.
Das Küchenstudio würde nicht unter 2cm gehen, wegen des Überstands der APL an den Barplätzen.
Der Backofen wurde leicht höher gesetzt (Oberkante Backofenschrank 130cm). Damit die Sichtlinie zum Fenster nicht unnötig unterbrochen wird, wäre das auch schon die maximale Höhe. Da es keine Hänge- oder Hochschränke gibt, wirkt das hoffentlich nicht wie ein Fremdkörper.
Der Abstand zwischen Kücheninsel (inkl. Überstand) und Esstisch beträgt bei dieser Planung 130cm. Ist das ausreichend?
Fällt euch sonst etwas an der Planung auf, was so im Alltag eventuell Probleme machen könnte?
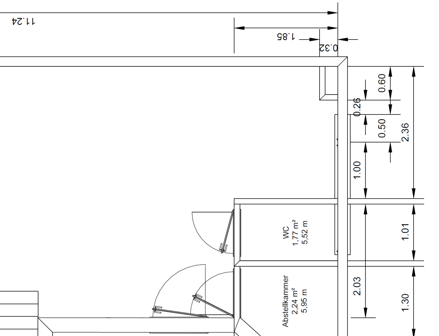
Grundriss
Aufteilung
Ansicht (leider selbst erstellt, da man ja kaum etwas mitbekommt)
Ich habe sicher noch ein paar Dinge vergessen.
Falls also weitere Infos nötig sind, sagt Bescheid
Recht herzlichen Dank schonmal!
Checkliste zur Kuechenplanung
Personenkriterien und Ergonomie
Anzahl Personen im Haushalt: 2
Davon Kinder: keine
Körpergrößen aller Hauptbenutzer in cm (wegen Arbeitshoehe): 170 bis 185
Welche Arbeitshöhe ist angedacht (in cm)?: 94
Gebäudekriterien
Art des Gebäudes: Bestandsbau > (kleinere) Umbauten möglich, Eigentum
Bruestungshöhe des Fensters (in cm): 102
Fensterhöhe (in cm): 214
Raumhöhe in cm: 243
Heizung: Fußbodenheizung
Sanitäranschlüsse: variabel an aktueller Wand
Einbaugerätekriterien
Ausführung Kühlgerät: Side by Side (ca. 90cm breit)
Einbaukühlgerät Größe: N. a.
Ausführung Tiefkühl (TK)-Gerät: Nicht erforderlich bzw. steht woanders
Dunstabzugshaube: Abluft
Hochgebauter Backofen : wenn möglich
Geplante Heißgeräte: Backofen
Hochgebauter Geschirrspüler : nein
Art des Kochfeldes: Induktionskochfeld
Kochfeldbreite (ca. in cm): 80
Sitzmöglichkeiten
Sitzmöglichkeit in der Küche / im Küchenbereich: Überstehende Arbeitsplatte
Sitzmöglichkeit: Für wieviel Personen?: Für 3 Personen
Sitzmöglichkeit: Tisch - wenn gesonderter Tisch oder offene Küche: Keiner
Gewünschte oder vorhandene Tischgröße:
Wofür soll der Sitzplatz in der Küche genutzt werden und wie häufig:
Stauraum-Planung
Was steht auf der Arbeitsplatte oder soll dort stehen?: Kaffeevollautomat, Wasserkocher, Obstschale
Welche weiteren Küchenmaschinen müssen in der Küche untergebracht werden: N. a.
Was soll in der Küche außer den Standards untergebracht werden: N. a.
Welchen Stauraum gibt es sonst noch: Speisekammer, Keller
Kochgewohnheiten
Was/wie wird gekocht? (Alltagsküche, Menüs, Snacks usw): Alltagsküche
Wie häufig wird gekocht: (fast) täglich 1x warm
Wird alleine gekocht? Oder auch gemeinsam? Mit und für Gäste?: Größtenteils allein oder gemeinsam
Spülen und Müll
Spülenform: 1 Becken ohne Abtropffläche
Welche Mülltrennung soll in der Küche vorgehalten werden: Altpapier, Gelber Sack Müll, Restmüll
Sonstiges
Steht schon ein Küchenhersteller fest oder wird bevorzugt:
Steht schon ein Gerätehersteller fest oder wird bevorzugt:
Küchenstil: Grifflose Küche
Was stört an der bisherigen Küche und was soll die neue Küche unbedingt können? Warum?:
Preisvorstellung (Budget):
Angehängte Dateien
