Daisy987
Themenersteller:in
Hallo,
der hohe Geschirrspüler kommt auf jeden Fall-freu
Kerstin, Du hast ja recht- ich habe die unterschiedlichen Arbeitshöhen nicht bedacht. Da ich aber jetzt endlich so zufrieden mit der generellen Planung bin, möchte ich nicht mehr viel ändern. Ich dachte, am besten wird die Arbeitsplatte planlinks (mit der Spüle, die dann kleiner wird) einige cm höher, so dass es für mich auch noch geht, und für meinen Mann etwas erträglicher ist.
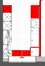
Habe meine aktuellen Pläne angehängt-- die Unterschränke sind noch nicht so 100% in Ordnung- und einiges funktioniert nicht so recht mit dem Planer, aber man kann alles einigermassen sehen. (habe wohl eine anderer Version..?)
Den Hochschrank mit GSM habe ich im Planer nicht gefunden und deswegen einen anderen HS mit Mikrowellen-Fach genommen.
Was haltet Ihr davon?
Viele Grüße,
Dagmar

der hohe Geschirrspüler kommt auf jeden Fall-freu
Kerstin, Du hast ja recht- ich habe die unterschiedlichen Arbeitshöhen nicht bedacht. Da ich aber jetzt endlich so zufrieden mit der generellen Planung bin, möchte ich nicht mehr viel ändern. Ich dachte, am besten wird die Arbeitsplatte planlinks (mit der Spüle, die dann kleiner wird) einige cm höher, so dass es für mich auch noch geht, und für meinen Mann etwas erträglicher ist.
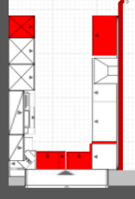
Habe meine aktuellen Pläne angehängt-- die Unterschränke sind noch nicht so 100% in Ordnung- und einiges funktioniert nicht so recht mit dem Planer, aber man kann alles einigermassen sehen. (habe wohl eine anderer Version..?)
Den Hochschrank mit GSM habe ich im Planer nicht gefunden und deswegen einen anderen HS mit Mikrowellen-Fach genommen.
Was haltet Ihr davon?
Viele Grüße,
Dagmar

