offene küche im umgebauten 30 jahre altbau EFH

AW: offene küche im umgebauten 30 jahre neubau EFH

habe mir für 2013 vorgenommen, dass mich die flecken nicht mehr stören werden.

spass bei seite: wir sind da relativ unempfindlich, ausserdem find ich, das in zeiten von high tech microfaser das ganze seinen schrecken verloren hat.

schaut euch mal im bereich von autopflege entusiasten um, da eröffnen sich ganz neue welten (naturelich nicht die puztmittel, nur die tücher;D). wenn ihr adressen braucht, bitte melden.

lg

sigi
 
AW: offene küche im umgebauten 30 jahre neubau EFH

OT

O je, ich sehe noch immer doppelt :w00t: (zuviel Alkohol ?)
 
AW: offene küche im umgebauten 30 jahre neubau EFH

Meine breiten Auszüge sind 110cm breit - das finde ich super übersichtlich und praktisch- - 60cm Auszüge hab' ich nur in den Seitenschränken - da passt halt nicht viel rein :rolleyes: nur mit so kleinen Dingern würd ich kirre.
 
AW: offene küche im umgebauten 30 jahre neubau EFH

Bei großen Räumen liebe ich ja Inseln. Sie ermöglichen gerade mit mehreren Köchen viel Freiheit.

Ich habe mal die Brüstungshöhe des Küchenfensters planunten angehoben, auf knapp 140 cm. Ich hoffe, dass da nicht gerade die grandioseste Aussicht ist.

Dann könnte ich mir dort 3 Schränke vorstellen, die Backofen , hochgebaute GSP (eig. Wasseranschluß!) und das vorhandene Heißgerät mit evtl. Wärmeschublade aufnehmen können. Um nach planlinks zu kompensieren, dass dort nur ca. 45 cm Wand bis zum Fenster sind, diesen Block mit 2 tiefenreduzierten ca. 20 cm breiten Regalen umschloßen. Hier könnte ich mir z. B. die Lagerfläche für große Wasserflaschen etc. vorstellen.

Den Kühlschrank so eingekoffert wie auch geplant. Anschlag vom Kühlschrank allerdings andersherum, allerdings läßt der Alnoplaner das nicht zu.

Am Fenster dann in Brüstungshöhe eine Zeile. Evtl. könnte man bei eurem Platz sogar überlegen, diese Zeile noch zusätzlich übertief zu machen.

- 90er Spülenschrank mit einem großen 60er Becken ohne Abtropfe. Im oberen Auszug könnten noch Putzmittel etc. Platz haben, unten Stauraum, hier könnte ich mir auch Getränkekisten z. B. mit Hilfe einer Sockelschublade vorstellen.
- 45er Müll unter der APL
- 90er Auszugsunterschrank
- 90er Auszugsunterschrank fürs Kochfeld
- 45er Auszugsunterschrank insbesondere auch Gewürze, Öle/Essig.
Bilder zur Gewürzunterbringung:
Hemerocallis:
full

full

atmos
full

biggimaus
full

Bodybiene
full

Meine Küche
full

full

Jelena
full

full

Magnolia
full

Vanessa

doppelkeks
full


Angelika95

full

Moiree
full

Und ganz neu - Menorca
85391d1341769308-wo-und-worin-bewahrt-ihr-gewuerze-auf-gewuerzschublade.jpg
mit den Küchenforums-Etiketten

Neben der Terrassentür dann eine Kaffeebar. In den Auszügen könnten auch Frühstückszubehör etc. untergebracht werden.

Ansonsten eine ca. 190x120 cm große Arbeitsinsel mit einer weiteren etwas kleineren Spüle.
 

Anhänge

  • kf_spoolist_20130101_kb_var1Alt_Grundriss.jpg
    kf_spoolist_20130101_kb_var1Alt_Grundriss.jpg
    116,6 KB · Aufrufe: 164
  • kf_spoolist_20130101_kb_var1Alt.KPL
    4,1 KB · Aufrufe: 131
  • kf_spoolist_20130101_kb_var1Alt.POS
    17,7 KB · Aufrufe: 147
  • kf_spoolist_20130101_kb_var1Alt_Ansicht1.jpg
    kf_spoolist_20130101_kb_var1Alt_Ansicht1.jpg
    131,2 KB · Aufrufe: 152
  • kf_spoolist_20130101_kb_var1Alt_Ansicht2.jpg
    kf_spoolist_20130101_kb_var1Alt_Ansicht2.jpg
    145,2 KB · Aufrufe: 160
  • kf_spoolist_20130101_kb_var1Alt_Ansicht3.jpg
    kf_spoolist_20130101_kb_var1Alt_Ansicht3.jpg
    126,6 KB · Aufrufe: 133
  • kf_spoolist_20130101_kb_var1Alt_Ansicht4.jpg
    kf_spoolist_20130101_kb_var1Alt_Ansicht4.jpg
    151,8 KB · Aufrufe: 160
  • kf_spoolist_20130101_kb_var1Alt_Ansicht5.jpg
    kf_spoolist_20130101_kb_var1Alt_Ansicht5.jpg
    124,5 KB · Aufrufe: 172
  • kf_spoolist_20130101_kb_var1Alt_Ansicht6.jpg
    kf_spoolist_20130101_kb_var1Alt_Ansicht6.jpg
    139,4 KB · Aufrufe: 149
AW: offene küche im umgebauten 30 jahre neubau EFH

Ach ja ... Unterzug und Abhängung über der Fensterzeile (planlinks und planunten) habe ich in derselben Höhe geplant. Unterkante ca. 235 cm. Da paßt dann auch auf jeden Fall eine Deckenhaube rein, auch wenn man den Motor dort mit unterbringen muss und keinen Außenmotor so wie Vanessa wählt. (Kosten ;-) )

Und den Tisch habe ich mal mit 120x300 cm da reingesetzt ;-)
 
AW: offene küche im umgebauten 30 jahre neubau EFH

TOLL!

viele gute ideen
in detailplanung der auzugsbreiten und - nutzung bekomme ich auch viele anregungen.

das mit der verkleinerung des fenster geht leider nicht. das ist das südfenster ,da kommt sehr viel licht und sonne.

ich habe auch mal gesponnen und ein paar neue bilder angehängt.


grosser zeile übertief auf brüstungshöhe , im gegensatz zu meinen bildern aber spüle und kochfeld getauscht.

abkofferung genau so wie kerstin,

küchlschrank an der gleichen stelle. daneben eine sitzbank in massiver douglasie gelaugt gleiches holz wie der fussboden. ist ein herzenswunsch meiner frau.

insel als halbinsel mit 4 90er schränken
links daneben:MW, darunter GSP, Backofen dann links anschliessend.
auf der esstischseite nochmal zwei halbhohe schränke für geschirr besteck und tafelwäsche einer tief, der andere auf mass eingepasst.

esstisch nicht ganz so gross 250x 100, hab ich aber noch nicht gezeichnet.
im raum ist noch ein gemauerter grundofen mit ofenbank, der nimmt auch platz weg.

bin gespannt, was ihr meint.

sigi
 

Anhänge

  • insel und geschirrschränke.jpg
    insel und geschirrschränke.jpg
    24,1 KB · Aufrufe: 159
  • ansicht küchenzeile.jpg
    ansicht küchenzeile.jpg
    32,4 KB · Aufrufe: 140
  • sitzbank: kühlschrank.jpg
    sitzbank: kühlschrank.jpg
    30,3 KB · Aufrufe: 172
  • ansicht herd: insel.jpg
    ansicht herd: insel.jpg
    31,1 KB · Aufrufe: 162
  • insel: blick auf ofen.jpg
    insel: blick auf ofen.jpg
    30,2 KB · Aufrufe: 146
AW: offene küche im umgebauten 30 jahre neubau EFH

Ich finde immer eine Grundrissansicht der Planung auch sehr hilfreich :rose:

Mir gefällt einfach dieser Hochschrankblock nicht ... und ja ich weiß, es ist schwierig ;-)

Die Bank als Wunsch deiner Frau soll welchen Zweck haben?

Meinen Hochschrankblock könnte man auch noch 2-rasterig in der Höhe senken, die Zusammenstellung würde dann immer noch Sinn machen. Dann hätte dieser Block eine Höhe von ca. 116 cm ... Wäre das denkbar für das Fenster als Brüstungshöhe ?

Ich bastel das mal heute später am Abend. Mir fällt da auch etwas zur Bank ein, vielleicht kann ich ja dann schon den Zweck der Bank lesen ;-)
 
AW: offene küche im umgebauten 30 jahre neubau EFH

hallo kerstin,

ich befürchte das fenster ist heilig, das ist einer der schönsten plätze in der küche, deshalb auch die bank gerade dort.

generell hat das haus wegen zweier gigantischer platanen, ein lichtproblem, welches wir auf vielfältige weise angehen. an dieser stelle eine brüstung zu erhöhen und dann einen 60 cm tiefen küchenbloch davor zusetztzen ist wirklich problematisch. ich bin trotzden gespannt wie das wirkt in 116cm.

die bank ist dazu da dort kaffee zu trinken, dort zeitung zu lesen während der tee zieht, in kochbüchern zu schmökern, zu zweit ein ausgiebiges "küchengespräch" zu führen usw...

grundrissansicht: muss ich sehen wie man das bei sketchup hinkriegt


lg

sigi
 
AW: offene küche im umgebauten 30 jahre neubau EFH

Hallo Sigi,

mir gefällt deine Planung total gut. Eine lange, klarlinige Küchenzeile, das Südfenster genutzt (ein derartiger Platz zum Kaffeetrinken in der Sonne nach der morgendlichen Aufräumaktion - ein Traum - oder Kinder erzählen aus der Schule, während Mama noch kocht) und die GSP und der BO sind an der Arbeitsinsel zentral untergebracht. Mir gefällt die unterschiedliche Höhe dort, auch die Arbeitsfläche auf der Halbinsel ist noch absolut groß genug und dort kann sowohl einzuräumendes, als auch sauberes Geschirr praktisch zwischengestapelt werden.

LG Barbara
 
AW: offene küche im umgebauten 30 jahre neubau EFH

Mir gefällt die Planung von Sigi auch gut - ich kann mir das gut in dem Raum vorstellen; allerdings würde ich Kerstins Plan bevorzugen, wenn das nicht grad das Südfenster wäre.

Die Bank vor dem Südfenster überzeugt mich hingegen nicht, dann sitzt man ja mit dem Rücken zur Aussicht :-\ und zur Sonne...
 
AW: offene küche im umgebauten 30 jahre neubau EFH

So, die Hochschränke jetzt um 2 Raster reduziert. Bei 13 cm hohem Raster und 7 cm hohem Sockel ergibt sich mit Abdeckplatte eine Höhe von ca. 114 cm ... das könnte auch die Fensterbankhöhe sein.

Wenigstens ein kleines Sitzbänkchen noch in die Ecke, denn die Hochschränke stehen jetzt direkt an der Trennwand zum Kühlschrank. Über der Bank dann nochmal Flaschenlagerfächer.

Ich finde ja, ihr solltet mal versuchen diese letztendlich Brüstungshöhe von 114 cm irgendwie durch Kartons etc. in dem Raum zu simulieren. Denn mir würde weiterhin die richtige Insel viel besser als eine Halbinsel gefallen.

Wenn das so gar nicht in Frage kommt, halte ich deine letzte Planung für die zweitbeste Möglichkeit.:cool:
 

Anhänge

  • kf_spoolist_20130102_kb_var2Alt.KPL
    4,1 KB · Aufrufe: 128
  • kf_spoolist_20130102_kb_var2Alt.POS
    19,3 KB · Aufrufe: 149
  • kf_spoolist_20130102_kb_var2Alt_Ansicht1.jpg
    kf_spoolist_20130102_kb_var2Alt_Ansicht1.jpg
    130,3 KB · Aufrufe: 149
  • kf_spoolist_20130102_kb_var2Alt_Ansicht2.jpg
    kf_spoolist_20130102_kb_var2Alt_Ansicht2.jpg
    117,3 KB · Aufrufe: 172
  • kf_spoolist_20130102_kb_var2Alt_Ansicht3.jpg
    kf_spoolist_20130102_kb_var2Alt_Ansicht3.jpg
    174,8 KB · Aufrufe: 172
  • kf_spoolist_20130102_kb_var2Alt_Ansicht4.jpg
    kf_spoolist_20130102_kb_var2Alt_Ansicht4.jpg
    94,2 KB · Aufrufe: 153
  • kf_spoolist_20130102_kb_var2Alt_Grundriss.jpg
    kf_spoolist_20130102_kb_var2Alt_Grundriss.jpg
    94,4 KB · Aufrufe: 151
AW: offene küche im umgebauten 30 jahre neubau EFH

danke, ich bin auch einigermassen zufrieden, habe aber noch ne neue idee, die ich mal "sketchen" werde.

kommt dann morgen.

die bank ist nur ein platzhalter da wir eine dämmung bekommen und die neuen fenster in die dämmebene gelegt werden, gibt es die möglichkeit, einen sitzplatz in der nach unten erweiterten fensternische einzurichten,
dann sitzt man quasi mit dem rücken in der fensternische und kann die sonne geniessen.

lg

sigi
 

Anhänge

  • neue bank.jpg
    neue bank.jpg
    31,6 KB · Aufrufe: 161
AW: offene küche im umgebauten 30 jahre neubau EFH

mein neuester entwurf

die vorzüge der echten insel haben mir keine ruhe gelassen

die insel hat weiter die masse 180x120 cm. grösser?


mir wäre es wichtig feedback zu bekommen vor allem zu den abständen:

insel/ kochzeile,
insel/ kühlschrank,
insel/ spülmaschine.

aber natürlich auch generelle kritik ist hochwillkommen

lg

sigi
 

Anhänge

  • insel herd kühlschrank mw.jpg
    insel herd kühlschrank mw.jpg
    38,6 KB · Aufrufe: 155
  • gsp bank spüle inseleck.jpg
    gsp bank spüle inseleck.jpg
    32,3 KB · Aufrufe: 152
  • ansicht von oben.jpg
    ansicht von oben.jpg
    35 KB · Aufrufe: 310
  • insel tisch.jpg
    insel tisch.jpg
    39,5 KB · Aufrufe: 168
AW: offene küche im umgebauten 30 jahre neubau EFH

Bei Kerstins Planung gefällt mir der Blick auf die Küche aus WHZ besser - sie ist schön offen und ohne die 'Türme'; Deine Planung gefällt mir ansonsten auch. Deine Planung ist m.E. auch funktional; der Gedanke mit der Sitzbank hat durchaus Charme - ob ihr sie je nutzen werdet sei mal dahin gestellt.
 
AW: offene küche im umgebauten 30 jahre neubau EFH

Diese "Türme" wirken total "verzettelt". Mir gefällt die Halbinselplanung am besten - kein separater GSP, auch der Kühli im Wohnbereich ist nicht besonders toll.
 
AW: offene küche im umgebauten 30 jahre neubau EFH

Wenn nicht meine Variante, dann würde ich den Kühlschrank aber trotzdem planunten lassen, wie vorher angedacht.
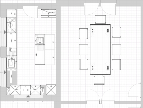
99759d1357253130-offene-kueche-im-umgebauten-30-jahre-neubau-efh-ansicht-von-oben.jpg

Das zweite Spülbecken würde ich bei dieser Insellösung dann eher planoben auf der Insel machen.

Aber insgesamt finde ich diese Insellösung so sehr unrund.
 

Ähnliche Beiträge

Neff Hausgeräte Ballerina Küchen Blum Bewegungstechnologie Weibel - Intelligente Küchenlüftung

Neff Spezial

Blum Zonenplaner

Weibel Abluft-Tuning

Weibel Abluft-Tuning
Zurück
Oben