Unbeendet Offene Küche im Neubau EFH

Tentakel

Mitglied
Beiträge
4
Hallo liebe Forengemeinde!

Wir sind gerade mitten im Rohbau und müssen uns jetzt auch mit dem Thema Küche auseinandersetzen.

Bisher haben wir ein Küchenstudio besucht, das unsere Idee der Küche grundsätzlich auch so bestätigt hat.

Zuerst wollten wir immer eine geschlossene Küche, haben nun jedoch festgestellt, dass dies mit der Raumaufteilung eher schlecht wäre. Deshalb haben wir uns entschieden die Wand zum Esszimmer zu sparen und dafür diese Geld in einen guten Dunstabzug und leisen Kühlschrank zu stecken.

Der Geschirrspüler ist noch vorhanden. Die anderen Geräte wollen wir nicht mitnehmen aus unserer aktuellen Wohnung.

Gerne würden wir uns auch komplett andere Ideen anschauen, wir haben schon einiges durchprobiert, doch landen wir immer wieder bei einer ähnlichen Aufteilung. Am aktuellen Vorschlag gefällt uns die klare Aufteilung und viel Platz auf der Arbeitsplatte . Dazu sind wir nicht unbedingt Hängeschrank Fans. An die Westwand würden evtl noch Regale kommen.

Die Anschlüsse für Wasser/Abwasser kommen aus der Nordwestecke linksoben.

So schonmal vielen Dank fürs anschauen!

LG Andi

PS ich würde gerne die Alno Küchenplaner Dateien hochladen, finde Sie aber nicht auf der Festplatte, merkwürdig...

Checkliste zur Küchenplanung

Anzahl Personen im Haushalt: 3
Davon Kinder?: 1
Art des Gebäudes?: Neu-/Umbau, Planänderungen nicht möglich
Körpergrössen aller Hauptbenutzer (wegen Arbeitshöhe ) in cm: 189 - 173 - 85 cm
Brüstungshöhe des Fensters (in cm): Südfenster ca. 94cm inkl Fensterbrett - Westfenster ca. 126cm inkl FB
Fensterhöhe (in cm): Südfenster 150cm - Westfenster 88cm
Raumhöhe in cm: 270cm
Heizung: Fussbodenheizung
Sanitäranschlüsse: fix
Ausführung Kühlgerät: Integriert im Hochschrank (60cm)
Kühlgerät Größe: bis 178 cm Höhe
Ausführung Tiefkühl (TK)-Gerät: Im Kühlschrank als kleines Fach oben
Dunstabzugshaube: Umluft
Backofen etc. hochgebaut?: Ja
Hochgebauter Geschirrspüler ?: Wenn möglich
Kochfeldart: Induktion
Kochfeldbreite ca. (in cm)?: 80?
Spülenform: 1,5 Becken mit Abtropffläche
Geplante Heißgeräte: Dampfbackofen (DGC) ohne Wasseranschluß
Küchenstil: Modern
Sitzmöglichkeit in der Küche / im Küchenbereich: Keine
Sitzmöglichkeit: Für wieviel Personen?:
Sitzmöglichkeit: Tisch - wenn gesonderter Tisch oder offene Küche: Wird nach Bedarf neu gekauft
Gewünschte o. vorhandene Tischgröße: 210 x 100 cm
Wofür soll der Sitzplatz in der Küche genutzt werden? Wie häufig?: -
Welche Arbeitshöhe ist angedacht (in cm)?: 93 cm
Was steht auf der Arbeitsplatte oder soll dort stehen?: Wasserkocher, Küchenmaschine, Brotbehälter
Welche weiteren Küchenmaschinen müssen in der Küche untergebracht werden?: Toaster, Pürierstab
Was soll in der Küche außer den Standards untergebracht werden?: ALLE Vorräte, Getränkekisten, Geschirr komplett (nichts in Ess-/Wohnzimmer)
Welchen Stauraum gibt es sonst noch?: Keller
Was/wie wird gekocht? (Alltagsküche, Menüs, Snacks usw): Von Kleinigkeiten bis zum Braten
Wie häufig wird gekocht?: (fast) täglich 1x warm
Wird alleine gekocht? Oder auch gemeinsam? Mit und für Gäste?: selten mit Gästen, aber oft zu zweit
Was stört an der bisherigen Küche und was soll die neue Küche unbedingt können? Warum?: wenig Abstellfläche
Welche Mülltrennung soll in der Küche vorgehalten werden?: Biomüll, Gelber Sack Müll, Restmüll
Steht schon ein Küchenhersteller fest oder wird bevorzugt?: nein, evtl auch Ikea möglich
Steht schon ein Gerätehersteller fest oder wird bevorzugt?: Neff Backofen , wegen slide&hide, Kochfeld Miele oder Oranier angedacht
Preisvorstellung (Budget): bis 15.000,-
 

Anhänge

  • Ansicht.jpg
    Ansicht.jpg
    92,3 KB · Aufrufe: 281
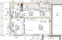
  • EG Plan.jpg
    EG Plan.jpg
    208,8 KB · Aufrufe: 291
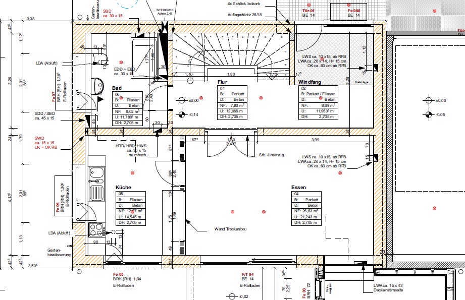
  • Küche Plan.jpg
    Küche Plan.jpg
    150,6 KB · Aufrufe: 285
Hallöle und erst ein Mal ganz herzlich :welcome: hier.
gelungene Threaderöffnung :top: und auch schon gut im Alno eingearbeitet.
Eine kleine Bitte: Nicht alle haben den Alnoplaner, vllt. könntest Du noch einen vermaßten Küchenplan einstellen ?
Wegen KPL und POS kommt sicher bald Hilfe
Derzeit ist wieder viel los im Planungsboard , deshalb bitte nicht ungeduldig werden.

Bis dahin viel Spass hier und viel nützlichen Input wünscht
Küchenschreiner Samy
 
@Tentakel
auch von mir ein herzliches Willkommen.

Die Dateien findest du meines Wissens nach im Alon-Ordner, wenn du keinen eigenen für die Planungen angelegt hast.

Würdest du noch bitte den vermaßten Grundriss als pdf. hochladen, da so die Zahlen schlecht leserlich sind, da zu klein.
 

Ähnliche Beiträge

Neff Hausgeräte Ballerina Küchen Blum Bewegungstechnologie Weibel - Intelligente Küchenlüftung

Neff Spezial

Blum Zonenplaner

Weibel Abluft-Tuning

Weibel Abluft-Tuning
Zurück
Oben