- Beiträge
- 22.447
- Wohnort
- Schweiz
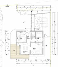
Ich sehe das wie Evelin: ich würde dem Flur eine lange Reihe Schränke spendieren, neben Garderobe noch nen Putzschrank und die Küche schmaler bauen.
Ideal für die Küche wäre dann ein 2-Zeiler; an der Wand planlinks eine übertiefe Funktionszeile (80cm tief), Gang mit ca 120-140cm und Seitenschränke mit Gerätegarage (60cm): sind zusammen 260-280cm Küchenbreite. Planunten die Terassentüre zum Garten dann zu einem Fenster ändern. Durchgang zur Terrasse dann durch das Esszimmer.
Die Abtrennung Wohnen/Essen würde ich in Trockenbau ausführen, so dass es leicht geändert werden kann. Evt. gleich Schiebetüren vorsehen, falls ihr Lärmempfindlich seid oder so. Die Wände so setzen, dass sie den Blick und Geräusche auch abschirmen können
Ja, eine grössere Küche mag auf dem Plan attraktiver wirken, der praktische Nutzen tendiert bei quadratischem Grundriss in dieser Grösse leider gegen Null. übertiefe Unterschränke und Arbeitsflächen sind GOLD wert. Schaut euch meine Küche an, ich hab das und weiss wovon ich schreibe
.
Ideal für die Küche wäre dann ein 2-Zeiler; an der Wand planlinks eine übertiefe Funktionszeile (80cm tief), Gang mit ca 120-140cm und Seitenschränke mit Gerätegarage (60cm): sind zusammen 260-280cm Küchenbreite. Planunten die Terassentüre zum Garten dann zu einem Fenster ändern. Durchgang zur Terrasse dann durch das Esszimmer.
Die Abtrennung Wohnen/Essen würde ich in Trockenbau ausführen, so dass es leicht geändert werden kann. Evt. gleich Schiebetüren vorsehen, falls ihr Lärmempfindlich seid oder so. Die Wände so setzen, dass sie den Blick und Geräusche auch abschirmen können
Ja, eine grössere Küche mag auf dem Plan attraktiver wirken, der praktische Nutzen tendiert bei quadratischem Grundriss in dieser Grösse leider gegen Null. übertiefe Unterschränke und Arbeitsflächen sind GOLD wert. Schaut euch meine Küche an, ich hab das und weiss wovon ich schreibe
