Neue Küche - neue Planung?

ulla_01

Mitglied
Beiträge
8
Hallo,

wir wollen unsere 20 Jahre alte Küche durch eine neue, moderne Küche ersetzen. Das jetzige Eckkochfeld "schwächelt", es gibt kein Austauschgerät, auch für den 70 cm breite Backofen und die Mikrowelle gibt es aktuell keine Austauschgeräte und wir haben uns an der Ahorn Front und der schrägen Ecke einfach satt gesehen.

Die Küche soll weiß werden, die endgültigen Fronten haben wir noch nicht ausgesucht, Tendenz Glas matt oder Lack.

Wir hätten gerne von Bora die Professional 2.0 (Abluft), da mein Mann mit 1,90 ständig an die Dunstabzugshauben stößt.

Hat jemand eine Idee wie die Aufteilung der Küche besser/anders gestaltet werden kann?

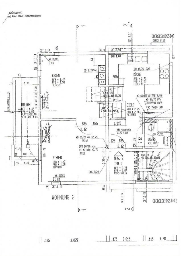
Der 90 cm breite Kühlschrank wurde vor Jahren bereits durch ein 60 cm Gerät ersetzt, daneben ist jetzt ein Apothekerschrank in 30 cm. links neben dem Kühlschrank ist noch ein Festwasseranschluss mit Ablauf.

In der Ecke rechts neben dem Fenster ist ein Versorgungsschacht mit 75 x 23 cm, deshalb damals die Schrägecke.

Das im Plan eingezeichnete Hängeregal in der Mitte wurde nicht realisiert.

Bei Bedarf kann ich auch noch Fotos von der aktuellen Küche hochladen.

Checkliste zur Küchenplanung

Anzahl Personen im Haushalt: 2
Davon Kinder?:
Art des Gebäudes?:
Bestandsbau, (kleinere) Umbauten möglich
Körpergrössen aller Hauptbenutzer (wegen Arbeitshöhe ) in cm: 170 und 190
Brüstungshöhe des Fensters (in cm): 126
Fensterhöhe (in cm): 87
Raumhöhe in cm: 244
Heizung: Fussbodenheizung
Sanitäranschlüsse: variabel an aktueller Wand
Ausführung Kühlgerät: Integriert im Hochschrank (60cm)
Kühlgerät Größe: bis 178 cm Höhe
Ausführung Tiefkühl (TK)-Gerät: Im Kühlschrank als kleines Fach oben
Dunstabzugshaube: Abluft
Backofen etc. hochgebaut?: Ja
Hochgebauter Geschirrspüler ?: Nein
Kochfeldart: Induktion
Kochfeldbreite ca. (in cm)?: 80
Spülenform: 1 Becken ohne Abtropffläche
Geplante Heißgeräte: Wärmeschublade, Backofen , Dampfbackofen (DGC) ohne Wasseranschluß
Küchenstil: Modern
Sitzmöglichkeit in der Küche / im Küchenbereich: Überstehende Arbeitsplatte
Sitzmöglichkeit: Für wieviel Personen?: für 2 Personen
Sitzmöglichkeit: Tisch - wenn gesonderter Tisch oder offene Küche: keinen
Gewünschte o. vorhandene Tischgröße:
Wofür soll der Sitzplatz in der Küche genutzt werden? Wie häufig?:
Frühstück, täglich
Welche Arbeitshöhe ist angedacht (in cm)?: 94
Was steht auf der Arbeitsplatte oder soll dort stehen?: Kaffeevollautomat, Wasserkocher, Toaster
Welche weiteren Küchenmaschinen müssen in der Küche untergebracht werden?: Küchenmaschine, Allesschneider (z. B. in Schublade), Handrührgerät, Pürierstab
Was soll in der Küche außer den Standards untergebracht werden?: ALLE Vorräte, Geschirr komplett (nichts in Ess-/Wohnzimmer)
Welchen Stauraum gibt es sonst noch?: Keller
Was/wie wird gekocht? (Alltagsküche, Menüs, Snacks usw): Alltagsküche
Wie häufig wird gekocht?: (fast) täglich 1x warm
Wird alleine gekocht? Oder auch gemeinsam? Mit und für Gäste?: meist allein, am Wochenende zu zweit, auch für Gäste
Was stört an der bisherigen Küche und was soll die neue Küche unbedingt können? Warum?: 1. Aussehen, Schrägecke, langer Gang rechts beim Kühlschrank
Welche Mülltrennung soll in der Küche vorgehalten werden?: Biomüll, Restmüll
Steht schon ein Küchenhersteller fest oder wird bevorzugt?: Leicht
Steht schon ein Gerätehersteller fest oder wird bevorzugt?: Miele
Preisvorstellung (Budget): mehr als 25.000,-
 

Anhänge

  • Grundriss-EG.jpg
    Grundriss-EG.jpg
    92,5 KB · Aufrufe: 324
  • Grundriss-Küche.jpg
    Grundriss-Küche.jpg
    40,8 KB · Aufrufe: 300
  • Küchenplan.jpg
    Küchenplan.jpg
    68,4 KB · Aufrufe: 297
Zuletzt bearbeitet von einem Moderator:
Grüß dich Ulla und Willkommen. :welcome:

Habe etwas Nachsicht, wenn es bezüglicher Planungen aktuell im KF etwas länger dauert, aber du siehst selbst, wie viel Arbeit die Fachlmänner und Fachfrauen hier aktuell zu tun haben.

Hast du / Ihr euch, vorab schon einmal bisschen eingelesen im Forum (evtl. Ideen gesammelt)? Auch bezüglich der Glasfronten gibt es viel Lesestoff im Forum. Da sollte man vermutlich auch wissen, auf was man sich einlässt.

Eine APL (Arbeitsplatte ) welche in das Fenster hinein läuft, wird bei der bereits vorhandenen Brüstungshöhe nicht möglich sein. Gibt es zur APL ein bestimmtes Material welches euch vorschwebt? Gerade mit dem Inselüberstand zum verweilen und essen, ist das sicher auch ein Thema.

Hab Ihr euch hinsichtlich der Griffvariante schon Gedanken gemacht?

Im Zuge der Größe deines Mannes und der Arbeitshöhe von gewünschten 94cm, wäre ein hochgebauter GSP sicher von Vorteil. Warum ist das aktuell nicht angedacht, wenn man fragen darf?

Viele Grüße :-)
 
Vielen Dank für die schnelle Antwort.

Ja, wir haben uns schon im Forum eingelesen. Die Glasfronten stehen noch nicht fest. Ist eher ein Kompromiss, denn mein Mann möchte gerne Hochglanz Lack, aber das "Spiegeln" gefällt mit nicht so sehr, deshalb Glas matt. Auch hier sind wir aber für Empfehlungen und Vorschläge offen.

Das Fenster ist eben mit der Wand (kein Sims). Als Arbeitsplatte haben wir uns Dekton vorgestellt. Wir haben aktuell Granit und möchten keinen mehr. Da wir jetzt eben gewöhnt sind den heißen Topf einfach vom Kochfeld auf die Platte zu stellen, Dekton und nicht Silestone , Stärke 12 mm.

Nach 20 Jahren Stangengriffen wäre jetzt Grifflos (Contino) unser Favorit.

Den hochgebauten GSP bringen wir nicht unter, da es aktuell nur zwei vollwertige Hochschränke mit "normaler" Tiefe gibt und die für Backofen /Dampfgarer bzw. Kühlschrank bereits verplant sind.

Nach einigen verzweifelten Versuchen den Grundriss in den Alno Planer zu bekommen, habe ich aufgegeben, scheint nicht meine Welt zu sein :-(

Viele Grüße
 
Keine Ursache, dafür sind ja auch wir Laien da :-)

Die Infos werden für die weiter Planung sicher hilfreich sein und somit sind diese auch direkt bekannt.

In eurem Budget, könnten die genannten Komponenten durchaus auch Platz finden. Denn Grifflose Variante sowie hochwertige APL in Kombination mit evtl. Glasfronten ist schon nicht ohne, aber das wisst Ihr ja sicher.

Die von dir angesprochene Grifflos-Variante ist soweit mir bekannt von LEICHT. Habt Ihr euch bezüglich eines Herstellers aber noch nicht festgelegt oder? Zur Grifflos-Variante selbst muss man natürlich zur schönen Optik und der tollen Linienführung auch die Nachteile der Innenauszüge wissen. Manch einer mag allerdings die Nachteile hinten anstellen :-) Das muss schlussendlich jeder dann für sich selbst entscheiden.

Ich hab mich anfänglich auch lange gesträubt, was den Alno -Planer angeht. Aber evtl. hilft dir auch diese Erklärung von Kerstin etwas weiter?


Alno-Planer - Bebilderte Kurzanleitung incl. PDF zum Herunterladen
 
Hallo,

ich habe jetzt zumindest einmal den Raum laienhaft im Alno -Planer erfasst, weiß aber leider nicht wie ich die "Wände", die es gar nicht gibt entfernen kann?

Die aktuelle Küche hier nochmals rein zu planen macht keinen Sinn, denn wir möchten ja Eure Hilfe zu einer neuen Planung. Leider drehen wir uns im Kreis und enden immer wieder bei der jetzigen Situation.

Die Contino ist von Leicht, wir haben uns nicht 100% darauf festgelegt, haben aber bislang nichts gleichartiges gefunden. Die Nachteile von grifflos sind uns bekannt, für die Optik nehmen wir diese in Kauf.

Falls ihr noch etwas braucht, bitte melden.

Viele Grüße
Ulla
 

Anhänge

  • PLAN1.KPL
    3,4 KB · Aufrufe: 220
  • kueche_grundriss_leer.POS
    2,2 KB · Aufrufe: 222
Hallo und ein herzliches :welcome: im küchenforum!

Wände kann man nicht entfernen, der Trick ist, den Raum samt Essbereich anzulegen (leider dürfen die Wände im Alno max. 9 m lang sein) und die Trennwände (Wandelemente in Alno) einzeln hinzuzufügen. Die Größe der Wandscheiben ändert man in dem man das zu ändernde Element anklickt, F4 drückt und die Maßen entsprechend anpasst.

Es wäre schön, wenn Du noch die in der Checkliste fehlenden Angaben hier posten würdest, ein Admin kann sie dann in die Chekliste ergänzen. Die sind nämlich alle für die Planung wichtig, deswegen werden sie auch abgefragt.

Ist das Fenster wirklich so hoch positioniert (BRH 126) und klein (87) oder sind die Angaben vertauscht?
 
Hallo Isabella,

habe das Fenster jetzt nochmals genau nachgemessen. BRH 123 und das Fenster ist mit Rahmen 100 cm hoch, darüber ist ein weißes Holzelement bis zur Decke.

Zu den fehlenden Angaben in der Checkliste:
Kinder - keine
Körpergröße: 170 + 190
Tisch - keinen

Hoffe ich hab jetzt nichts mehr vergessen.
 
Ui, hier ging es ja noch nicht weiter. Sorry, @ulla_01 , man merkt, dass es ziemlich viele Anfragen sind und auch noch Ferienzeit (in Bayern ;-)) ist.

Deshalb schubse ich nur kurz hoch, weil ich selbst nur mit Tablet unterwegs bin und deshalb nicht planen sondern nur schreiben kann.
 
Naja, es fehlt die .pos zum .kpl und ich dachte, es kommt noch was mit dem Alno und es gibt irgendwann einen Screenshot des Planungsgrundrisses...
 
Vielleicht ja jetzt, wo du es so deutlich formuliert hast, Isabella. ;-)
 
Ich habe jetzt versucht die aktuelle Planung im Alno Planer umzusetzen. Leider hatte ich die falschen Fronten ausgesucht, so dass jetzt anstatt grifflos mit Griffen angezeigt wird. Auch die Spüle in eckig habe ich nicht gefunden und mit der runden Spüle improvisiert. Auch den in der Tiefe verkürzen Hochschrank gab es nicht in 80 cm, so dass ich mir mit 50 + 30 cm beholfen habe.

Die neue Planung ist der bestehenden Küche sehr ähnlich, wie schon gesagt, wegen den beiden Versorgungsschächte ist es sehr schwierig Hochschränke für Backofen /Dampfgarer-Kombi und Kühlschrank anders zu stellen.

Bin gespannt auf Vorschläge.
LG, Ulla

Sorry, für's doppelte Hochladen der beiden Bilder
 

Anhänge

  • Grundriss Alno.JPG
    Grundriss Alno.JPG
    69,4 KB · Aufrufe: 286
  • Ansicht.JPG
    Ansicht.JPG
    69,5 KB · Aufrufe: 298
  • Ansicht.JPG
    Ansicht.JPG
    69,5 KB · Aufrufe: 287
  • Grundriss Alno.JPG
    Grundriss Alno.JPG
    69,4 KB · Aufrufe: 281
  • PLAN1-N.POS
    6 KB · Aufrufe: 204
  • PLAN1-N.KPL
    3,6 KB · Aufrufe: 206
@ulla_01 Ich hab einen Vorschlag, der etwas mehr Luft zum Bewegen lässt als dein eigener. Ich lass mal vor allem Bilder sprechen. Erstellt mir Alnoplaner Version 15b, weil 17 bei mir nicht geht und ja auch mit keiner anderen Version kompatibel ist. Alte Alnoplaner-Versionen gibt es noch in unserem Downloadbereich.

Der GSP steht ganz planrechts oben, könnte an dieser Stelle alternativ also auch hochgebaut werden.
Der 40cm US links neben der Spüle ist der MUPL (Müll direkt vom Schnibbelplatz aus reinwischen).
DAH dann als Umluft. Bei eurem Budget gibt es da auch sehr gute Möglichkeiten, vor allem von der Firma Berbel (meine persönliche Meinung).

Die Front planlinks vom Backofen (also in der Ansicht rechts vom BO) ist "Fake", das die zwei x 45cm Vorratsschränke von planlinks aus zugänglich sind.

Die Contino von Leicht lässt sich mit dem Alnoplaner nicht wirklich optikgetreu abbilden, aber um die Schrankbreiten zu sehen geht es schon.
 

Anhänge

  • ulla_01_mca_V2.KPL
    3,9 KB · Aufrufe: 211
  • ulla_01_mca_V2.POS
    7,9 KB · Aufrufe: 199
  • ulla_01_mca_V2_A4.JPG
    ulla_01_mca_V2_A4.JPG
    86,8 KB · Aufrufe: 255
  • ulla_01_mca_V2_A5.JPG
    ulla_01_mca_V2_A5.JPG
    127,1 KB · Aufrufe: 267
  • ulla_01_mca_V2_A6.JPG
    ulla_01_mca_V2_A6.JPG
    109,1 KB · Aufrufe: 256
  • ulla_01_mca_V2_G.JPG
    ulla_01_mca_V2_G.JPG
    42,5 KB · Aufrufe: 248
  • ulla_01_mca_V2_A1.JPG
    ulla_01_mca_V2_A1.JPG
    96,2 KB · Aufrufe: 249
Guten Morgen Annette,

die Idee gefällt mir sehr gut, vielen Dank! Leider funktioniert die Wand mit den Hochschränken so nicht, da hinten am Schacht die Wasseruhren und die beiden Abstellhähnen zugänglich sein müssen :( sonst finde ich gerade diese Zeile super mit der Blende nach vorne und den Auszügen von der Seite!

Wir haben auch schon überlegt die Hochschränke an die Wand rechts hinten zu platzieren, nur fällt uns dann für den Rest der Küche nicht wirklich was sinnvolles ein?

LG, Ulla
 
Oh, die zugänglichen Wasserdingens konnte ich nicht wissen, schade.

Nachdem aber lt. Liste "kleinere Umbauten möglich" sind, könntet ihr die Wasseruhr und den Absperrhahn nicht um die Ecke an die planrechte Wand verlegen lassen, zB unter den Sitzplatz? Da muss ja keine Wange sein, eine Auflageleiste oder Winkel tun es auch.
 
@ menorca - da die Wand eine Betontrennwand zur nächsten Haushälfte ist, ist das Verlegen der Wasserleitungen leider kein "kleinerer Umbau". Bereits das Verlegen von Elektroleitungen macht da nicht wirklich Freude...
 
Wie genau liegen denn die Anschlüsse und Uhr. Vielleicht wäre das alles durch ein leeres Fach erreichbar?
 
@ Nörgli - ja, so haben wir das im Augenblick auch gelöst, Ausschnitt in der Rückwand im Schrank. Die Anschlüsse liegen ca. 30 cm von der Ecke nach rechts in einer Höhe ab Boden 135 cm bis 165 cm - zwei Absperrhähne, darüber 2 Wasseruhren
 
Dann könnte man den Kühlschrank mit dem Backofenschrank tauschen und das Fach oberhalb des Backofens hinten für die Wasserdinger benutzen.

Oder anstelle des Kühlschrankes einen Vorratsschrank, und den Kühlschrank plus einen 30cm Schrank (Kochbücher? Apotheker?) um die Ecke stellen.
 

Ähnliche Beiträge

Neff Hausgeräte Ballerina Küchen Blum Bewegungstechnologie Weibel - Intelligente Küchenlüftung

Neff Spezial

Blum Zonenplaner

Weibel Abluft-Tuning

Weibel Abluft-Tuning
Zurück
Oben