Unbeendet Neue Küche in Bestands-EFH // Wird Momentan Saniert

DrFu

Mitglied
Beiträge
6
Neue Küche in Bestands-EFH // Wird Momentan Saniert

Hallo zusammen,

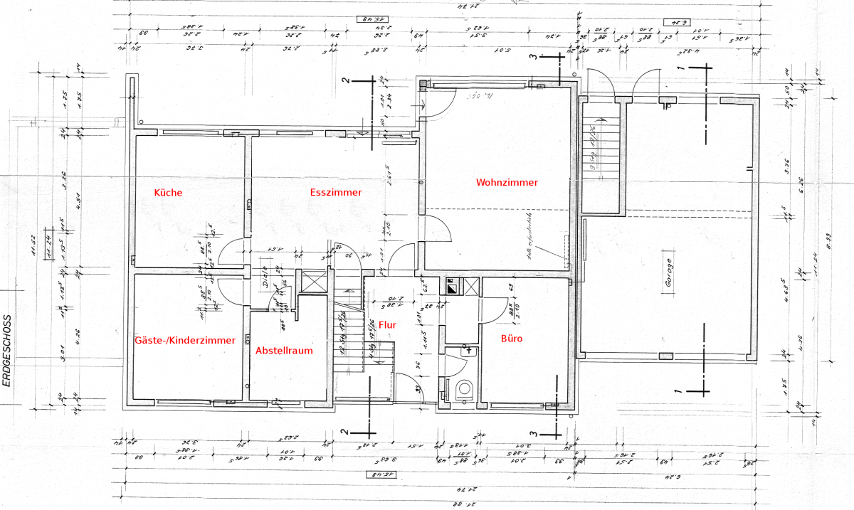
wir sind gerade mitten in der Umbauphase für unser EFH aus dem Jahr 1972.
Jetzt haben wir die Küchenplanung lange genug vor uns hergeschoben und haben uns die letzten Wochen erst mal eingelesen und angefangen zu planen.

Folgender Grundriss ist dabei erst mal herausgekommen mit Bitte um Kommentare und Verbesserungsvorschläge.

Sonstige Hinweise:
  • Sanitär und Elektro kann frei geplant werden
  • Anders als in der 3D-Darstellung abgebildet, soll das Kochfeld nicht außen, sondern mittig platziert werden, aber auf der Seite mit den Hochschränken
  • Im Kochfeld soll ein integrierter Umluft-Muldenlüfter integriert werden
  • im 4. Hochschrank soll ein offener Auszug eingebaut werden, auf dem die Kaffemaschine stehen soll
  • Wir hätten gerne einen großen Küchen/Ess- Raum, aber die tragende Wand dazwischen noch abzureißen war uns doch zu aufwendig. Deswegen bauen wir erstmal keine Tür ein und schauen mal ob wir so zurecht kommen.

Checkliste zur Küchenplanung

Personenkriterien und Ergonomie
Anzahl Personen im Haushalt: 3
Davon Kinder: 1
Körpergrößen aller Hauptbenutzer in cm (wegen Arbeitshöhe ): 185 + 160
Welche Arbeitshöhe ist angedacht (in cm)?: 93

Gebäudekriterien
Art des Gebäudes: Bestandsbau > (kleinere) Umbauten möglich, Eigentum
Brüstungshöhe des Fensters (in cm): 77
Fensterhöhe (in cm): 130
Raumhöhe in cm: 248
Heizung: Fußbodenheizung
Sanitäranschlüsse: vollkommen variabel

Einbaugerätekriterien
Ausführung Kühlgerät: Integriert im Hochschrank (60cm)
Einbaukühlgerät Größe: Noch unbekannt
Ausführung Tiefkühl (TK)-Gerät: Im Kühlschrank ab 3 Schubladen unten
Dunstabzugshaube: Umluft
Hochgebauter Backofen : ja
Geplante Heißgeräte: Dampfgarer ohne Wasseranschluß, Backofen
Hochgebauter Geschirrspüler : ja
Art des Kochfeldes: Induktion
Kochfeldbreite (ca. in cm): 80

Sitzmöglichkeiten
Sitzmöglichkeit in der Küche / im Küchenbereich: Keine
Sitzmöglichkeit: Für wieviel Personen?: nein
Sitzmöglichkeit: Tisch - wenn gesonderter Tisch oder offene Küche: Keiner
Gewünschte oder vorhandene Tischgröße:
Wofür soll der Sitzplatz in der Küche genutzt werden und wie häufig:

Stauraumplanung
Was steht auf der Arbeitsplatte oder soll dort stehen?: Wasserkocher, Thermomix
Welche weiteren Küchenmaschinen müssen in der Küche untergebracht werden: Handrührgerät, Mixer, Pürierstab, Eierkocher, Sonstiges (evtl. im Beitragstext benennen)
Was soll in der Küche außer den Standards untergebracht werden: N. a.
Welchen Stauraum gibt es sonst noch: Geschirr/Gläserschrank im Wohn-/Esszimmer, Hauswirtschaftsraum, Keller

Kochgewohnheiten
Was/wie wird gekocht? (Alltagsküche, Menüs, Snacks usw): Alltagsküche, zu besonderen Anlässen Menüs, Snacks,
Wie häufig wird gekocht: (fast) täglich 2x warm
Wird alleine gekocht? Oder auch gemeinsam? Mit und für Gäste?: Hauptsächlich nur für uns 3, aber auch zusammen mit Gästen, ca. alle 2 Wochen

Spülen und Müll
Spülenform: 1 Becken ohne Abtropffläche
Welche Mülltrennung soll in der Küche vorgehalten werden: Biomüll, Gelber Sack Müll, Restmüll

Sonstiges
Steht schon ein Küchenhersteller fest oder wird bevorzugt:
Steht schon ein Gerätehersteller fest oder wird bevorzugt:
Küchenstil: Klassisch
Was stört an der bisherigen Küche und was soll die neue Küche unbedingt können? Warum?:
Preisvorstellung (Budget): 20

Angehängte Dateien
 

Anhänge

  • Küche_2d-Maße.png
    Küche_2d-Maße.png
    149,1 KB · Aufrufe: 222
  • Küche_Haus.KPL
    3,6 KB · Aufrufe: 141
  • Küche_Haus.POS
    7,2 KB · Aufrufe: 134
  • Grundriss_geleert_beschriftet_EG.png
    Grundriss_geleert_beschriftet_EG.png
    662,4 KB · Aufrufe: 231
  • Küche_3d_Kommentar.png
    Küche_3d_Kommentar.png
    524,2 KB · Aufrufe: 221
Hallo und herzlich willkommen.

Den Plan kenn ich vom HB Forum. Frage: warum muss es eine Kochinsel sein, obwohl die Insel eigentlich nicht lang genug ist und nur wenige Zeit am Tag gekocht wird? Die meiste Zeit werdet ihr in Spülennähe verbringen.

Und dann hat auch dieser Haushalt einen Thermo. Der wird doch auch zum Kochen genutzt? wo soll der stehen (Dampf)?
 
Hallo und herzlich willkommen.

Den Plan kenn ich vom HB Forum. Frage: warum muss es eine Kochinsel sein, obwohl die Insel eigentlich nicht lang genug ist und nur wenige Zeit am Tag gekocht wird? Die meiste Zeit werdet ihr in Spülennähe verbringen.

Und dann hat auch dieser Haushalt einen Thermo. Der wird doch auch zum Kochen genutzt? wo soll der stehen (Dampf)?

Hallo Evelin,
danke für die Willkommensgrüße :-)

Die Frage ob es eine Spülinsel oder Kochinsel werden soll, haben wir auch länger überlegt, aber mit der Kochinsel war es für uns bisher die beste Lösung.
So hat man an der Spüle den Fensterblick Richtung Garten und kann an der Kochinsel auch mal von 2 Seiten arbeiten, bzw. hat man noch genug Arbeitsfläche rundrum.
Der Thermomix soll in der Ecke links oben stehen. Wegen dem Dampf und den Oberschränken eher etwas Richtung Spüle. Wir nutzen den Thermomix auch nicht jeden Tag.
 
die andere Sache, die du bei deiner Planung überlegen solltest, wenn der GSP planoben rechts in der Ecke ist, ist das recht umständlich, ihn auszuräumen und mit erheblichem Gelaufe verbunden.
 
Ja, wir wollten unbedingt einen erhöhten GSP und einen anderen Platz haben wir dafür nicht gefunden ohne etwas anderes zu opfern. Die Laufwege sind tatsächlich nicht ohne, das kann man bei der Stauraumnutzung vielleicht noch etwas optimieren
Auch die Nähe zu einer Wand ist ja nicht so optimal sein wegen eventuellen Flecken/Spritzern von Essensresten.
 
wegen Flecken an der Wand kann man die Wand schützen, Elefantenhaut oder anderen abwaschbaren Anstrich.

Schau dir mal das Konzept des MUPL an. Vielleicht ist das was für euch.
 
Hallo DrFu,

auch wenn du bereits geschrieben hast das die tragende Wand bleiben soll, möchte ich dir empfehlen darüber noch einmal nachzudenken. So wild ist das gar nicht. Wenn eh schon umgebaut wird, dann besser richtig. Du schreibst ja das ihr euch das wünscht. Das kann ich verstehen! Ihr werdet es dann auch einfacher haben die Küche zu planen. Schöner wird sie auch.

Einen ganz ähnlichen Grundriss hatte ein Freund von mir. Er wollte zuerst die tragende Wand auch nicht entfernen. Ich habe ihn überredet und er dankt es mir heute noch.

Nicht das ihr es bereut.....
 
wegen Flecken an der Wand kann man die Wand schützen, Elefantenhaut oder anderen abwaschbaren Anstrich.

Schau dir mal das Konzept des MUPL an. Vielleicht ist das was für euch.
Ja das MUPL-Konzept habe ich hier schon einmal aufgeschnappt und finde es auch sehr praktisch, je nachdem wo genau die Spüle positioniert wird, soll es dann an einen Auszug links neben der Spüle.


Hallo DrFu,

auch wenn du bereits geschrieben hast das die tragende Wand bleiben soll, möchte ich dir empfehlen darüber noch einmal nachzudenken. So wild ist das gar nicht. Wenn eh schon umgebaut wird, dann besser richtig. Du schreibst ja das ihr euch das wünscht. Das kann ich verstehen! Ihr werdet es dann auch einfacher haben die Küche zu planen. Schöner wird sie auch.

Einen ganz ähnlichen Grundriss hatte ein Freund von mir. Er wollte zuerst die tragende Wand auch nicht entfernen. Ich habe ihn überredet und er dankt es mir heute noch.

Nicht das ihr es bereut.....
Danke für den Hinweis Alex, ja der Wunsch der offenen Küche ist vielleicht auch der das man das in einem Neubau meistens so macht, mit einem großen Allraum. Wir hatten lange den Wunsch Neu zu bauen, aber haben nie ein passendes Grundstück gefunden so ist es eben ein Altbestand geworden. Da ist man nun mal etwas unflexibler.
Wir haben es momentan auch getrennt auch vom Elternhaus kenne ich es nur so. Auch die Raumhöhe könnte bei so einem großen Raum nicht mehr so einladend wirken, so groß ist der Wunsch nach einem Allraum dann doch nicht.
Im Notfall reißen wir die Wand halt in 10 Jahren raus ;-):rolleyes:
 
@DrFu, weißt du, ich habe meinem Mann deinen Hausplan gezeigt, als ich ihn im HB Forum gesehen habe und gesagt, schau her, endlich mal ein Haus mit Zimmern. :2daumenhoch:

Da ich ständig rein und rauslaufe, wäre mir persönlich ein direkter Zugang in den Garten angenehm.

Muckelina MUPL.jpg
 
@DrFu, weißt du, ich habe meinem Mann deinen Hausplan gezeigt, als ich ihn im HB Forum gesehen habe und gesagt, schau her, endlich mal ein Haus mit Zimmern. :2daumenhoch:

Da ich ständig rein und rauslaufe, wäre mir persönlich ein direkter Zugang in den Garten angenehm.

Anhang anzeigen 310724

Zum Glück haben wir schon 2 Wände weggerissen (nicht-tragend) sonst hätten wir noch mehr Zimmer :2daumenhoch:
Zugang zum Garten ist da leider nicht möglich, da dort eine Abböschung zum Kellerzimmer direkt darunter vorhanden ist. deswegen ist der Gartenzugang mittig vom Haus vom Esszimmer aus.
Das sind leider die Kompromisse die man manchmal eingehen muss.

Ist die MUPL von euch? Sind das 2 oder 1 Mülleimer und habt ihr noch weitere z.B. unter der Spüle?
 
Mir wäre der Weg zwischen Kochfeld und Spüle zu weit.
Wieso soll die Kaffeemaschine in den HS? Stelle mir die Ausziehlösung recht teuer vor. Und ihr habt ja genug Stellfläche auf der APL dafür.
Wieso soll es denn das L mit Insel werden? Eine HS-Zeile mit (Halb)Insel davor wäre ja auch möglich, oder?

Was genau stört euch beim Rausnehmen der tragenden Wand? Es muss ja night die ganze Wand sein, man könnte ja auch eine breitere Öffnung einbauen, das sollte sich dann mit entsprenchendem Träger recht einfach umsetzen lassen.
Nachträglich was zu ändern wird sicher teurer und aufwendiger und man muss einen guten Bodenanschluss hinbekommen.
 
Mir wäre der Weg zwischen Kochfeld und Spüle zu weit.
Wieso soll die Kaffeemaschine in den HS? Stelle mir die Ausziehlösung recht teuer vor. Und ihr habt ja genug Stellfläche auf der APL dafür.
Wieso soll es denn das L mit Insel werden? Eine HS-Zeile mit (Halb)Insel davor wäre ja auch möglich, oder?

Was genau stört euch beim Rausnehmen der tragenden Wand? Es muss ja night die ganze Wand sein, man könnte ja auch eine breitere Öffnung einbauen, das sollte sich dann mit entsprenchendem Träger recht einfach umsetzen lassen.
Nachträglich was zu ändern wird sicher teurer und aufwendiger und man muss einen guten Bodenanschluss hinbekommen.

Die Form mit L und Insel ist hauptsächlich dadurch entstanden das wir momentan einfach zu wenig Arbeitsfläche haben. Bisher haben wir nur eine L Küche (in Mietwohnung) und die ist uns einfach zu klein.
So haben wir einerseits genug Abstellfläche und auch genug Freie Fläche zum Arbeiten.
Auch die Arbeitsfläche am Fenster gefällt uns mit dem Blick in den Garten.

Die Wand bleibt drin da der Wunsch des großen Raums nicht so stark ist, ich bereue es schon es oben geschrieben zu haben :-(:rofl:. Vielleicht habe ich zu viel im HB-Forum gestöbert, wo es halt fast nur um Neubauten geht.

Die Küche in den Schrank integrieren habe ich einmal bei Freunden gesehen und fand es eine schicke Lösung, da man so immer gut an die Maschine kommt, aber diese auch halb-integriert ist. Und man ist völlig flexibel mit der Auswahl der Kaffemaschine.
 

Ähnliche Beiträge

Neff Hausgeräte Ballerina Küchen Blum Bewegungstechnologie Weibel - Intelligente Küchenlüftung

Neff Spezial

Blum Zonenplaner

Weibel Abluft-Tuning

Weibel Abluft-Tuning
Zurück
Oben