bse99
Mitglied
- Beiträge
- 35
Hallihallo,
als bisher stiller Mitleser habe ich mir hier schon einige Ideen und Anregungen geholt, aber so langsam wird bei uns aus dem groben "man sollte sich mal platzmässig vergrössern" ein "Holla, da ist doch ein interessantes Objekt", sprich: wir planen eine ETW zu erwerben und da muss eine neue Küche rein, die ca. 20 Jahre alte Einbauküche in der Mietwohnung bleibt da oder geht auf den Sperrmüll.
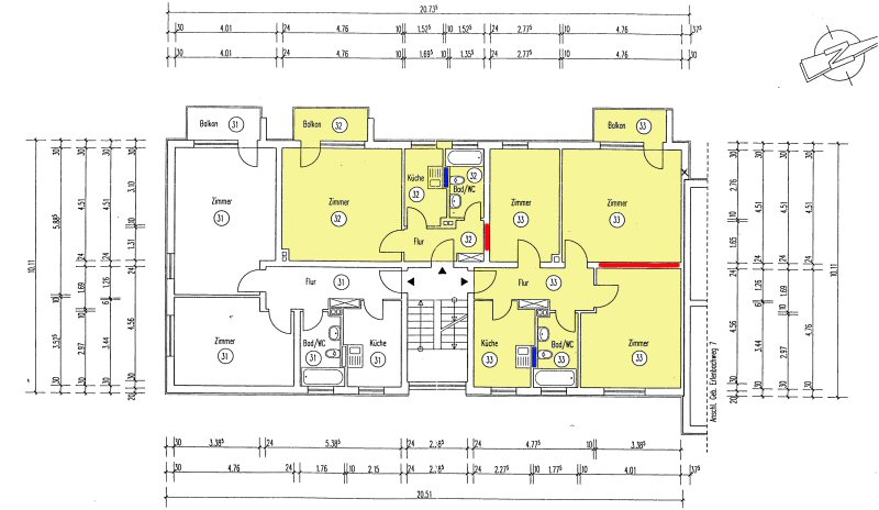
Genau genommen planen wir zwei Wohnungen zu einer Großen zu verbinden. In beiden Wohnungen sind die Küchenräume klein (8qm/5qm), was direkt mit der Vorstellung eines offenen Wohn/Ess/Kochbereichs kollidiert, so das hier definitiv noch Wände entfernt werden. Diese habe ich im Grundriß mit rot gekennzeichnet. Mein Plan ist, die Küche in das Zimmer unten rechts zu legen. Sämtliche Leitungen müssen entsprechend aus dem danebenliegenden Bad (Versorgungsschacht in blau eingezeichnet) herübergelegt werden. Durch das Entfernen der Wand entsteht dann ein leidlich großer Küchen/Ess/Wohnbereich. Ich gehe davon aus, das diese Leitungsverlegungen möglich sind
Das Bad in der rechten Wohnung wird ein Gästebad, die kleine Wohnung kann zu einem großen Schlaf/Badbereich umgebaut werden, so das dann eine ganz praktische Auftrennung eines "öffentlichen" und "privaten" Bereichs möglich ist. Soweit zu den Rahmenbedingungen, zurück zur Küche
Meine Idee war bisher, die Kochplatte auf eine Halbinsel zu legen, Ofen/Kühlschrank im "Rücken", Spüle und Spülmaschine an der Wand. In Richtung Wohnzimmer ist dann genug Platz für einen Esstisch, ggf. kann dort "in die Wand" gerückt werden, die soll ja eh raus. Meine entsprechenden Planungsbilder hängen hier hoffentlich gleich dran =)
Alternativ wäre es vielleicht auch sinnvoll, alle hohen Schränke in die 3m breite Nische zur Badezimmerwand zu legen, und dafür die Spüle unters Fenster...
Was meint ihr?
LG Boris
Checkliste zur Küchenplanung von bse99
Anzahl Personen im Haushalt : 2
Davon Kinder? : keine
Körpergrössen aller Hauptbenutzer (wegen Arbeitshöhe ) in cm : 188, 170
Brüstungshöhe des Fensters (in cm) : Holzboden bis Oberkante Fensterbank 87cm
Fensterhöhe (in cm) : ~115cm
Raumhöhe in cm: : Holzboden bis Decke 252cm
Art des Gebäudes? : Bestandsbau, (kleinere) Umbauten möglich
Sanitäranschlüsse : vollkommen variabel
Ausführung Kühlgerät? : Integriert im Hochschrank
Kühlgerät Größe : noch unbekannt
Ausführung Tiefkühl (TK)-Gerät : Im Kühlschrank ab 3 Schubladen unten Dunstabzugshaube? : Umluft
Hochgebauter Backofen ? : Ja
Hochgebauter Geschirrspüler ? : ja
Kochfeldart? : Induktion
Kochfeldbreite ca. (in cm)? : 60-80
Spülenform: : Noch nicht festgelegt
Weitere geplante Heißgeräte : Standmikrowelle, Dampfgarer ohne Wasseranschluß
Küchenstil? : modern
Sitzmöglichkeit in der Küche / im Küchenbereich als : Tresen in Barhöhe
Sitzmöglichkeit: Für wieviel Personen? : für 2 Personen
Sitzmöglichkeit: Tisch - wenn gesonderter Tisch oder offene Küche : Wird nach Bedarf neu gekauft
Gewünschte o. vorhandene Tischgröße : ca. 90x180
Wofür soll der Sitzplatz in der Küche genutzt werden? Wie häufig? : Schnelles Frühstück etc.
Welche Arbeitshöhe ist angedacht (in cm)? : ~94-96cm
Was steht auf der Arbeitsplatte oder soll dort stehen? : Kaffeemaschine, Wasserkocher, Toaster
Welche weiteren Küchenmaschinen müssen in der Küche untergebracht werden? : Handrührgerät, Pürierstab
Was soll in der Küche außer den Standards untergebracht werden? : ALLE Vorräte, Geschirr komplett (nichts in Ess-/Wohnzimmer)
Welchen Stauraum gibt es sonst noch? : Keller
Was/wie wird gekocht? (Alltagsküche, Menüs, Snacks usw) : Der ganz normale Wahnsinn von Spaghetti mit Tomatensauße bis zur Weihnachtsgans.
Wie häufig wird gekocht? : (fast) täglich 1x warm
Wird alleine gekocht? Oder auch gemeinsam? Mit und für Gäste? : Sowohl als auch, mehrmals im Jahr auch mit oder für Gäste, aber sicherlich nicht jede Woche
Was stört an der bisherigen Küche und was soll die neue Küche unbedingt können? Warum? : Die neue ist in der falschen Wohnung, und hat definitiv zu wenig Arbeitsfläche. Die neue soll: viel Arbeitsplatz & Stauraum bieten, hochgestellte Elektrogeräte haben, Ofen/Kochplatte entsprechend getrennt
Preisvorstellung (Budget) : bis 15.000,-
als bisher stiller Mitleser habe ich mir hier schon einige Ideen und Anregungen geholt, aber so langsam wird bei uns aus dem groben "man sollte sich mal platzmässig vergrössern" ein "Holla, da ist doch ein interessantes Objekt", sprich: wir planen eine ETW zu erwerben und da muss eine neue Küche rein, die ca. 20 Jahre alte Einbauküche in der Mietwohnung bleibt da oder geht auf den Sperrmüll.
Genau genommen planen wir zwei Wohnungen zu einer Großen zu verbinden. In beiden Wohnungen sind die Küchenräume klein (8qm/5qm), was direkt mit der Vorstellung eines offenen Wohn/Ess/Kochbereichs kollidiert, so das hier definitiv noch Wände entfernt werden. Diese habe ich im Grundriß mit rot gekennzeichnet. Mein Plan ist, die Küche in das Zimmer unten rechts zu legen. Sämtliche Leitungen müssen entsprechend aus dem danebenliegenden Bad (Versorgungsschacht in blau eingezeichnet) herübergelegt werden. Durch das Entfernen der Wand entsteht dann ein leidlich großer Küchen/Ess/Wohnbereich. Ich gehe davon aus, das diese Leitungsverlegungen möglich sind
Das Bad in der rechten Wohnung wird ein Gästebad, die kleine Wohnung kann zu einem großen Schlaf/Badbereich umgebaut werden, so das dann eine ganz praktische Auftrennung eines "öffentlichen" und "privaten" Bereichs möglich ist. Soweit zu den Rahmenbedingungen, zurück zur Küche
Meine Idee war bisher, die Kochplatte auf eine Halbinsel zu legen, Ofen/Kühlschrank im "Rücken", Spüle und Spülmaschine an der Wand. In Richtung Wohnzimmer ist dann genug Platz für einen Esstisch, ggf. kann dort "in die Wand" gerückt werden, die soll ja eh raus. Meine entsprechenden Planungsbilder hängen hier hoffentlich gleich dran =)
Alternativ wäre es vielleicht auch sinnvoll, alle hohen Schränke in die 3m breite Nische zur Badezimmerwand zu legen, und dafür die Spüle unters Fenster...
Was meint ihr?
LG Boris
Checkliste zur Küchenplanung von bse99
Anzahl Personen im Haushalt : 2
Davon Kinder? : keine
Körpergrössen aller Hauptbenutzer (wegen Arbeitshöhe ) in cm : 188, 170
Brüstungshöhe des Fensters (in cm) : Holzboden bis Oberkante Fensterbank 87cm
Fensterhöhe (in cm) : ~115cm
Raumhöhe in cm: : Holzboden bis Decke 252cm
Art des Gebäudes? : Bestandsbau, (kleinere) Umbauten möglich
Sanitäranschlüsse : vollkommen variabel
Ausführung Kühlgerät? : Integriert im Hochschrank
Kühlgerät Größe : noch unbekannt
Ausführung Tiefkühl (TK)-Gerät : Im Kühlschrank ab 3 Schubladen unten Dunstabzugshaube? : Umluft
Hochgebauter Backofen ? : Ja
Hochgebauter Geschirrspüler ? : ja
Kochfeldart? : Induktion
Kochfeldbreite ca. (in cm)? : 60-80
Spülenform: : Noch nicht festgelegt
Weitere geplante Heißgeräte : Standmikrowelle, Dampfgarer ohne Wasseranschluß
Küchenstil? : modern
Sitzmöglichkeit in der Küche / im Küchenbereich als : Tresen in Barhöhe
Sitzmöglichkeit: Für wieviel Personen? : für 2 Personen
Sitzmöglichkeit: Tisch - wenn gesonderter Tisch oder offene Küche : Wird nach Bedarf neu gekauft
Gewünschte o. vorhandene Tischgröße : ca. 90x180
Wofür soll der Sitzplatz in der Küche genutzt werden? Wie häufig? : Schnelles Frühstück etc.
Welche Arbeitshöhe ist angedacht (in cm)? : ~94-96cm
Was steht auf der Arbeitsplatte oder soll dort stehen? : Kaffeemaschine, Wasserkocher, Toaster
Welche weiteren Küchenmaschinen müssen in der Küche untergebracht werden? : Handrührgerät, Pürierstab
Was soll in der Küche außer den Standards untergebracht werden? : ALLE Vorräte, Geschirr komplett (nichts in Ess-/Wohnzimmer)
Welchen Stauraum gibt es sonst noch? : Keller
Was/wie wird gekocht? (Alltagsküche, Menüs, Snacks usw) : Der ganz normale Wahnsinn von Spaghetti mit Tomatensauße bis zur Weihnachtsgans.
Wie häufig wird gekocht? : (fast) täglich 1x warm
Wird alleine gekocht? Oder auch gemeinsam? Mit und für Gäste? : Sowohl als auch, mehrmals im Jahr auch mit oder für Gäste, aber sicherlich nicht jede Woche
Was stört an der bisherigen Küche und was soll die neue Küche unbedingt können? Warum? : Die neue ist in der falschen Wohnung, und hat definitiv zu wenig Arbeitsfläche. Die neue soll: viel Arbeitsplatz & Stauraum bieten, hochgestellte Elektrogeräte haben, Ofen/Kochplatte entsprechend getrennt
Preisvorstellung (Budget) : bis 15.000,-
Anhänge
-
Grundriss_800x600.jpg66,8 KB · Aufrufe: 227 -
Ansicht1JPG.jpg35,9 KB · Aufrufe: 204 -
Ansicht2.jpg28,9 KB · Aufrufe: 210 -
Ansicht3.jpg35,3 KB · Aufrufe: 208 -
Ansicht4.jpg37,4 KB · Aufrufe: 212 -
Ansicht5.jpg44,4 KB · Aufrufe: 209 -
Alno_Grundriss.JPG29,4 KB · Aufrufe: 238 -
Kueche_in_Schlafzimmer.POS5,3 KB · Aufrufe: 201
-
Kueche_in_Schlafzimmer.KPL4,1 KB · Aufrufe: 188
Zuletzt bearbeitet:
