wolfgang
Mitglied
- Beiträge
- 51
- Wohnort
- Rhein-Main Gebiet
Hallo zusammen,
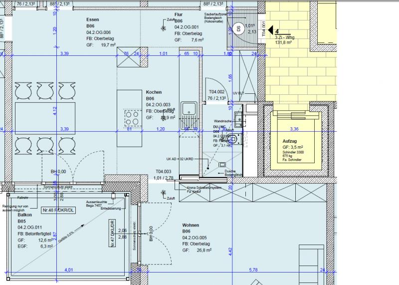
wir planen grade unsere Neubau Wohnung und so langsam müssen wir mit unserer Küchenplanung weiterkommen...
Wir waren schon in mehreren Küchenstudios, dabei hat sich inzwischen die angehängte Planung heraus kristalisiert...
Ursprünglich wollten wir ne weiße Lackküche, sind davon aber inzwischen abgekommen und haben inzwischen auch ne Kostenkalkulation für eine grifflose Häcker systemart in Eiche graphit...
Es sind zwei Varianten herausgekommen, um die tragende Wand (Stütze) zu integrieren einmal Ausbau als Nische mit Edelstahl-Stand Kühlschrank und einmal verkleidet mit Möbel Seiten als Block (oder Nische mit Einbauschränken hab ich jetzt mal weggelassen)
Was meint Ihr insgesamt zu der Planung, ich find Hängeschränke eigentlich spiessig, deshalb haben wir darauf verzichtet, denken vielleicht noch an ein paar Regale an der Wand..
Danke und Grüße
Wolfgang
wir planen grade unsere Neubau Wohnung und so langsam müssen wir mit unserer Küchenplanung weiterkommen...
Wir waren schon in mehreren Küchenstudios, dabei hat sich inzwischen die angehängte Planung heraus kristalisiert...
Ursprünglich wollten wir ne weiße Lackküche, sind davon aber inzwischen abgekommen und haben inzwischen auch ne Kostenkalkulation für eine grifflose Häcker systemart in Eiche graphit...
Es sind zwei Varianten herausgekommen, um die tragende Wand (Stütze) zu integrieren einmal Ausbau als Nische mit Edelstahl-Stand Kühlschrank und einmal verkleidet mit Möbel Seiten als Block (oder Nische mit Einbauschränken hab ich jetzt mal weggelassen)
Was meint Ihr insgesamt zu der Planung, ich find Hängeschränke eigentlich spiessig, deshalb haben wir darauf verzichtet, denken vielleicht noch an ein paar Regale an der Wand..
Danke und Grüße
Wolfgang
Anhänge
-
alno.jpg47,1 KB · Aufrufe: 342 -
grundriss.jpg78,5 KB · Aufrufe: 346 -
verkleidet2.jpg41,7 KB · Aufrufe: 300 -
verkleidet1.jpg32,5 KB · Aufrufe: 299 -
verkleidet.POS9,9 KB · Aufrufe: 202
-
verkleidet.KPL4,1 KB · Aufrufe: 195
-
solitar2.jpg35,6 KB · Aufrufe: 259 -
solitar1.jpg31,2 KB · Aufrufe: 273 -
solitär.POS9,3 KB · Aufrufe: 219
-
solitär.KPL4,1 KB · Aufrufe: 205
