Tinka123
Mitglied
- Beiträge
- 2
Titel des Themas: Neubau / Küche
Liebe Forum Mitglieder,
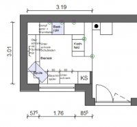
wir sind gerade dabei unsere neue Küche zu planen, der Hausgrundriss steht bereits. Wir hatten auch ungefähr schon den Küchengrundriss in Gedanken, leider haben wir dabei den Kamin "übersehen", so würde direkt neben dem Kamin (fix) der Kühlschrank stehen (evtl. mit Zwischenmauer oder Isolierung) kann man soetwas überhaupt vertreten? Wir sind total verunsichert, haben auch versucht die Küche anders anzuordnen, leider fällt uns hier nicht wirklich etwas ein... Einen Kühlschrank mittig zu platzieren macht man ja eigentlich auch nicht?!
Wir wollten eine Kühl/Gefrier Kombi hoch;
Vielleicht kann uns hier jemand einen Tipp geben, Wir wären sehr Dankbar
Checkliste zur Küchenplanung
Personenkriterien und Ergonomie
Anzahl Personen im Haushalt: 4
Davon Kinder: 2
Körpergrößen aller Hauptbenutzer in cm (wegen Arbeitshöhe ): 1,60 und 1,70
Welche Arbeitshöhe ist angedacht (in cm)?:
Gebäudekriterien
Art des Gebäudes: Neu-/Umbau > Planänderungen möglich, Eigentum
Brüstungshöhe des Fensters (in cm):
Fensterhöhe (in cm): 138,5
Raumhöhe in cm:
Heizung: Fußbodenheizung
Sanitäranschlüsse: vollkommen variabel
Einbaugerätekriterien
Ausführung Kühlgerät: N. a.
Einbaukühlgerät Größe: Noch unbekannt
Ausführung Tiefkühl (TK)-Gerät: N. a.
Dunstabzugshaube: N. a.
Hochgebauter Backofen : ja
Geplante Heißgeräte: Backofen , Dampfbackofen (DGC) mit Wasseranschluß
Hochgebauter Geschirrspüler : nein
Art des Kochfeldes: Induktion
Kochfeldbreite (ca. in cm):
Sitzmöglichkeiten
Sitzmöglichkeit in der Küche / im Küchenbereich: Tresen in Barhöhe
Sitzmöglichkeit: Für wieviel Personen?: Für 2 Personen
Sitzmöglichkeit: Tisch - wenn gesonderter Tisch oder offene Küche: N. a.
Gewünschte oder vorhandene Tischgröße:
Wofür soll der Sitzplatz in der Küche genutzt werden und wie häufig:
Stauraumplanung
Was steht auf der Arbeitsplatte oder soll dort stehen?: Kaffeevollautomat, Wasserkocher, Toaster, Brotbehälter, Obstschale
Welche weiteren Küchenmaschinen müssen in der Küche untergebracht werden: Wasserkocher, Handrührgerät, Mixer, Pürierstab
Was soll in der Küche außer den Standards untergebracht werden: N. a.
Welchen Stauraum gibt es sonst noch: Geschirr/Gläserschrank im Wohn-/Esszimmer
Kochgewohnheiten
Was/wie wird gekocht? (Alltagsküche, Menüs, Snacks usw):
Wie häufig wird gekocht: (fast) täglich 1x warm
Wird alleine gekocht? Oder auch gemeinsam? Mit und für Gäste?:
Spülen und Müll
Spülenform: Eckspüle
Welche Mülltrennung soll in der Küche vorgehalten werden: Biomüll, Restmüll
Sonstiges
Steht schon ein Küchenhersteller fest oder wird bevorzugt:
Steht schon ein Gerätehersteller fest oder wird bevorzugt:
Küchenstil: Landhausküche
Was stört an der bisherigen Küche und was soll die neue Küche unbedingt können? Warum?:
Preisvorstellung (Budget):
Angehängte Dateien
Liebe Forum Mitglieder,
wir sind gerade dabei unsere neue Küche zu planen, der Hausgrundriss steht bereits. Wir hatten auch ungefähr schon den Küchengrundriss in Gedanken, leider haben wir dabei den Kamin "übersehen", so würde direkt neben dem Kamin (fix) der Kühlschrank stehen (evtl. mit Zwischenmauer oder Isolierung) kann man soetwas überhaupt vertreten? Wir sind total verunsichert, haben auch versucht die Küche anders anzuordnen, leider fällt uns hier nicht wirklich etwas ein... Einen Kühlschrank mittig zu platzieren macht man ja eigentlich auch nicht?!
Wir wollten eine Kühl/Gefrier Kombi hoch;
Vielleicht kann uns hier jemand einen Tipp geben, Wir wären sehr Dankbar
Checkliste zur Küchenplanung
Personenkriterien und Ergonomie
Anzahl Personen im Haushalt: 4
Davon Kinder: 2
Körpergrößen aller Hauptbenutzer in cm (wegen Arbeitshöhe ): 1,60 und 1,70
Welche Arbeitshöhe ist angedacht (in cm)?:
Gebäudekriterien
Art des Gebäudes: Neu-/Umbau > Planänderungen möglich, Eigentum
Brüstungshöhe des Fensters (in cm):
Fensterhöhe (in cm): 138,5
Raumhöhe in cm:
Heizung: Fußbodenheizung
Sanitäranschlüsse: vollkommen variabel
Einbaugerätekriterien
Ausführung Kühlgerät: N. a.
Einbaukühlgerät Größe: Noch unbekannt
Ausführung Tiefkühl (TK)-Gerät: N. a.
Dunstabzugshaube: N. a.
Hochgebauter Backofen : ja
Geplante Heißgeräte: Backofen , Dampfbackofen (DGC) mit Wasseranschluß
Hochgebauter Geschirrspüler : nein
Art des Kochfeldes: Induktion
Kochfeldbreite (ca. in cm):
Sitzmöglichkeiten
Sitzmöglichkeit in der Küche / im Küchenbereich: Tresen in Barhöhe
Sitzmöglichkeit: Für wieviel Personen?: Für 2 Personen
Sitzmöglichkeit: Tisch - wenn gesonderter Tisch oder offene Küche: N. a.
Gewünschte oder vorhandene Tischgröße:
Wofür soll der Sitzplatz in der Küche genutzt werden und wie häufig:
Stauraumplanung
Was steht auf der Arbeitsplatte oder soll dort stehen?: Kaffeevollautomat, Wasserkocher, Toaster, Brotbehälter, Obstschale
Welche weiteren Küchenmaschinen müssen in der Küche untergebracht werden: Wasserkocher, Handrührgerät, Mixer, Pürierstab
Was soll in der Küche außer den Standards untergebracht werden: N. a.
Welchen Stauraum gibt es sonst noch: Geschirr/Gläserschrank im Wohn-/Esszimmer
Kochgewohnheiten
Was/wie wird gekocht? (Alltagsküche, Menüs, Snacks usw):
Wie häufig wird gekocht: (fast) täglich 1x warm
Wird alleine gekocht? Oder auch gemeinsam? Mit und für Gäste?:
Spülen und Müll
Spülenform: Eckspüle
Welche Mülltrennung soll in der Küche vorgehalten werden: Biomüll, Restmüll
Sonstiges
Steht schon ein Küchenhersteller fest oder wird bevorzugt:
Steht schon ein Gerätehersteller fest oder wird bevorzugt:
Küchenstil: Landhausküche
Was stört an der bisherigen Küche und was soll die neue Küche unbedingt können? Warum?:
Preisvorstellung (Budget):
Angehängte Dateien
Anhänge
