Timo16
Mitglied
- Beiträge
- 2
Hallo Leute,
ich lese hier schon eine Weile mit und da wir nächstes Jahr in unser neues DH einziehen steht eine Küchenplanung an.
Wir haben eigentlich relativ klare Vorstellungen, aber es gibt bestimmt hier und da etwas zu Verbessern. Wichtig sind uns griffloses, klareiniges, modernes Design mit weißen Fronten (Lack oder Matt und Material steht noch nicht fest.)
User Favorit ist momentan das grifflose System 4 von Contur (also Schüller ) mit Griffmulde direkt unter der AP und eine Griffmulde auf halber Korpushöhe.
Wichtig wäre mir möglich optimale Lauf- und Arbeitswege zu haben. Wir haben uns auch für Blindecken entschieden, da der Platz nicht benötigt wird, es sind ja genug Anzüge vorhanden.
Ich hab mich mal im Alno -Planer versucht das ganz einzuzeichnen, ist in PLAN3.zip enthalten.
Bin mal gespannt was Ihr dazu sagt...
Checkliste zur Küchenplanung
Anzahl Personen im Haushalt: 2
Davon Kinder?: 1
Art des Gebäudes?: Neu-/Umbau, Planänderungen nicht möglich
Körpergrössen aller Hauptbenutzer (wegen Arbeitshöhe ) in cm: 178, 165 und <1m
Brüstungshöhe des Fensters (in cm): 110
Fensterhöhe (in cm): 120
Raumhöhe in cm: 250
Heizung: Fussbodenheizung
Sanitäranschlüsse: fix
Ausführung Kühlgerät: Integriert im Hochschrank (60cm)
Kühlgerät Größe: noch unbekannt
Ausführung Tiefkühl (TK)-Gerät: Im Kühlschrank als kleines Fach oben
Dunstabzugshaube: Abluft
Backofen etc. hochgebaut?: Ja
Hochgebauter Geschirrspüler ?: Nein
Kochfeldart: Induktion
Kochfeldbreite ca. (in cm)?: 60
Spülenform: 1 Becken mit Abtropffläche
Geplante Heißgeräte: Standmikrowelle, Backofen
Küchenstil: Grifflos
Sitzmöglichkeit in der Küche / im Küchenbereich: Keine
Sitzmöglichkeit: Für wieviel Personen?: Nein
Sitzmöglichkeit: Tisch - wenn gesonderter Tisch oder offene Küche: Wird nach Bedarf neu gekauft
Gewünschte o. vorhandene Tischgröße:
Wofür soll der Sitzplatz in der Küche genutzt werden? Wie häufig?:
Welche Arbeitshöhe ist angedacht (in cm)?: 92
Was steht auf der Arbeitsplatte oder soll dort stehen?: Kaffeevollautomat, Wasserkocher, Messerblock, Brotbehälter, Obstschale
Welche weiteren Küchenmaschinen müssen in der Küche untergebracht werden?: Toaster, Handrührgerät, Mixer, Pürierstab
Was soll in der Küche außer den Standards untergebracht werden?: Geschirr komplett (nichts in Ess-/Wohnzimmer)
Welchen Stauraum gibt es sonst noch?: Keller
Was/wie wird gekocht? (Alltagsküche, Menüs, Snacks usw): Alltagsküche. Es wird oft frisch gekocht.
Wie häufig wird gekocht?: (fast) täglich 1x warm
Wird alleine gekocht? Oder auch gemeinsam? Mit und für Gäste?: Auch gemeinsam, evtl mit Gästen.
Was stört an der bisherigen Küche und was soll die neue Küche unbedingt können? Warum?: Platz zum gemeinsamen Kochen.
Welche Mülltrennung soll in der Küche vorgehalten werden?: Biomüll, Gelber Sack Müll, Restmüll
Steht schon ein Küchenhersteller fest oder wird bevorzugt?: Contur
Steht schon ein Gerätehersteller fest oder wird bevorzugt?: Siemens
Preisvorstellung (Budget): bis 20.000,-
----------------
Im Threadverlauf hinzugekommen:
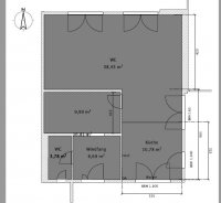
Etagengrundriss aus PDF als Bild-Datei, nach dem auch Küchenplanungen auszurichten sinnvoll ist.
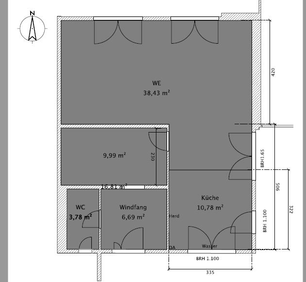
Außerdem noch Erstentwurf von Timo16 .. Grundriss gedreht dargestellt:
ich lese hier schon eine Weile mit und da wir nächstes Jahr in unser neues DH einziehen steht eine Küchenplanung an.
Wir haben eigentlich relativ klare Vorstellungen, aber es gibt bestimmt hier und da etwas zu Verbessern. Wichtig sind uns griffloses, klareiniges, modernes Design mit weißen Fronten (Lack oder Matt und Material steht noch nicht fest.)
User Favorit ist momentan das grifflose System 4 von Contur (also Schüller ) mit Griffmulde direkt unter der AP und eine Griffmulde auf halber Korpushöhe.
Wichtig wäre mir möglich optimale Lauf- und Arbeitswege zu haben. Wir haben uns auch für Blindecken entschieden, da der Platz nicht benötigt wird, es sind ja genug Anzüge vorhanden.
Ich hab mich mal im Alno -Planer versucht das ganz einzuzeichnen, ist in PLAN3.zip enthalten.
Bin mal gespannt was Ihr dazu sagt...
Checkliste zur Küchenplanung
Anzahl Personen im Haushalt: 2
Davon Kinder?: 1
Art des Gebäudes?: Neu-/Umbau, Planänderungen nicht möglich
Körpergrössen aller Hauptbenutzer (wegen Arbeitshöhe ) in cm: 178, 165 und <1m
Brüstungshöhe des Fensters (in cm): 110
Fensterhöhe (in cm): 120
Raumhöhe in cm: 250
Heizung: Fussbodenheizung
Sanitäranschlüsse: fix
Ausführung Kühlgerät: Integriert im Hochschrank (60cm)
Kühlgerät Größe: noch unbekannt
Ausführung Tiefkühl (TK)-Gerät: Im Kühlschrank als kleines Fach oben
Dunstabzugshaube: Abluft
Backofen etc. hochgebaut?: Ja
Hochgebauter Geschirrspüler ?: Nein
Kochfeldart: Induktion
Kochfeldbreite ca. (in cm)?: 60
Spülenform: 1 Becken mit Abtropffläche
Geplante Heißgeräte: Standmikrowelle, Backofen
Küchenstil: Grifflos
Sitzmöglichkeit in der Küche / im Küchenbereich: Keine
Sitzmöglichkeit: Für wieviel Personen?: Nein
Sitzmöglichkeit: Tisch - wenn gesonderter Tisch oder offene Küche: Wird nach Bedarf neu gekauft
Gewünschte o. vorhandene Tischgröße:
Wofür soll der Sitzplatz in der Küche genutzt werden? Wie häufig?:
Welche Arbeitshöhe ist angedacht (in cm)?: 92
Was steht auf der Arbeitsplatte oder soll dort stehen?: Kaffeevollautomat, Wasserkocher, Messerblock, Brotbehälter, Obstschale
Welche weiteren Küchenmaschinen müssen in der Küche untergebracht werden?: Toaster, Handrührgerät, Mixer, Pürierstab
Was soll in der Küche außer den Standards untergebracht werden?: Geschirr komplett (nichts in Ess-/Wohnzimmer)
Welchen Stauraum gibt es sonst noch?: Keller
Was/wie wird gekocht? (Alltagsküche, Menüs, Snacks usw): Alltagsküche. Es wird oft frisch gekocht.
Wie häufig wird gekocht?: (fast) täglich 1x warm
Wird alleine gekocht? Oder auch gemeinsam? Mit und für Gäste?: Auch gemeinsam, evtl mit Gästen.
Was stört an der bisherigen Küche und was soll die neue Küche unbedingt können? Warum?: Platz zum gemeinsamen Kochen.
Welche Mülltrennung soll in der Küche vorgehalten werden?: Biomüll, Gelber Sack Müll, Restmüll
Steht schon ein Küchenhersteller fest oder wird bevorzugt?: Contur
Steht schon ein Gerätehersteller fest oder wird bevorzugt?: Siemens
Preisvorstellung (Budget): bis 20.000,-
----------------
Im Threadverlauf hinzugekommen:
Etagengrundriss aus PDF als Bild-Datei, nach dem auch Küchenplanungen auszurichten sinnvoll ist.
Außerdem noch Erstentwurf von Timo16 .. Grundriss gedreht dargestellt:
Anhänge
Zuletzt bearbeitet von einem Moderator:




