nettel-two
Mitglied
- Beiträge
- 12
Hallo zusammen,
ich lese seit einigen Monaten hier mit und habe schon viele, viele Anregungen zum Thema Küche bei Euch erhalten. Wirklich toll. Das hat mir bei der Suche nach meiner neuen Küche im neu entstehenden Haus schon sehr geholfen.
Ich habe, bevor ich ins Küchenstudio bin einiges mit dem Alno -Planer "rumgeschubst", aber auch die Küchenstudios haben mir noch bei vielen Dingen gute Tipps gegeben. Ich bin jetzt beim 3. Küchenstudio angelangt, bei dem ich die Küche wohl auch kaufen werde. Sind einfach super nett, ertragen jede Frage klaglos, geben Pläne (nicht bemaßt) bereits vor dem Kauf mit raus etc.
Jetzt hat meine Küchenplanung ein Reifestadium erreicht, wo ich hoffe, dass ich Euch nicht mit etwas zu unfertigem konfrontiere, aber sicher noch den einen oder anderen Tipp erhalten kann
.
Die endgültige Entscheidung für die Küche muss ca. im November stehen.
Da wir neu bauen, können wir uns, was Wasser etc. angeht noch etwas frei bewegen.
Weiter unten habe ich die Frage gesehen, wie oft wir kochen. Aktuell kochen ich regelmäßig an den Wochenenden. Es ist fast so was wie ein Hobby geworden. Deswegen ist mir die Küche auch so wichtig.
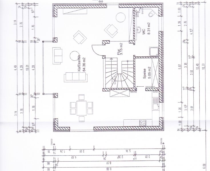
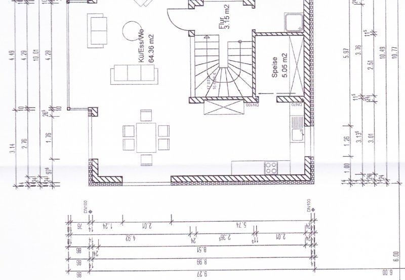
So, ich hoffe, ich mache alles richtig und ihr könnt mit den Plänen arbeiten. Ich habe neben den Alno-Dateien und den jpg´s aus dem Alno-Planer auch die Bilder des Küchenstudios angehängt (mit der orangen Wand), da dort manches besser zu sehen ist.
Noch ein paar Infos zu Geräten und der Arbeitsplatte :
Ich habe mich für folgende Geräte schon fast entscheiden:
Geschirrspüler SX66N054EU
Herd - Induktions-Herd EH901SK11
Kühlschrank - Miele K35272iD
Ob ein Dampfgarer eine sinnvolle Investition ist, versuche ich gerade noch herauszufinden.
Arbeitsplatte: Nero Assoluto geflammt
Spüle: Blancoelon XL 6 S
Mischer: Blancoperiskope S F II
Front: Kunststoff Hochglanz
Farbe: Champagner
So, jetzt könnt ihr euch an meinen Plänen austoben. Ich freue mich auf Eure Anregungen.
Ich danke allen, die sich die Mühe machen, mir zu helfen und gute Tipps geben. Tolles Forum.
Nettel
Checkliste zur Küchenplanung von nettel-two
Anzahl Personen im Haushalt : 2
Davon Kinder? : keine
Körpergrössen aller Hauptbenutzer (wegen Arbeitshöhe ) in cm : 175, 173
Art des Gebäudes? : Neu-/Umbau, Planänderungen möglich
Brüstungshöhe des Fensters (in cm) : 103
Fensterhöhe (in cm) : 100?
Raumhöhe in cm: : 250
Heizung : Fussbodenheizung
Sanitäranschlüsse : vollkommen variabel
Ausführung Kühlgerät? : Integriert im Hochschrank (60cm)
Kühlgerät Größe : bis 140 cm Höhe
Ausführung Tiefkühl (TK)-Gerät : Nicht erforderlich bzw. steht woanders
Dunstabzugshaube? : Abluft
Hochgebauter Backofen ? : Ja
Hochgebauter Geschirrspüler ? : ja
Kochfeldart? : Induktion
Kochfeldbreite ca. (in cm)? : 90
Spülenform: : 1 Becken mit Abtropffläche
Weitere geplante Heißgeräte : Standmikrowelle
Küchenstil? : modern
Sitzmöglichkeit in der Küche / im Küchenbereich als : Gesonderter Tisch
Sitzmöglichkeit: Für wieviel Personen? : für 4 Personen
Sitzmöglichkeit: Tisch - wenn gesonderter Tisch oder offene Küche : Wird nach Bedarf neu gekauft
Gewünschte o. vorhandene Tischgröße : 120 x 80
Wofür soll der Sitzplatz in der Küche genutzt werden? Wie häufig? : Frühstück, Mittagessen, ...
Welche Arbeitshöhe ist angedacht (in cm)? : 92
Was steht auf der Arbeitsplatte oder soll dort stehen? : Kaffeemaschine, Wasserkocher, Küchenmaschine, Toaster, Obstschale
Welche weiteren Küchenmaschinen müssen in der Küche untergebracht werden? : Küchenmaschine, Wasserkocher, Toaster, Handrührgerät, Mixer
Was soll in der Küche außer den Standards untergebracht werden? : Geschirr komplett (nichts in Ess-/Wohnzimmer)
Welchen Stauraum gibt es sonst noch? : Speisekammer
Was/wie wird gekocht? (Alltagsküche, Menüs, Snacks usw) : Alltagsküche
Wie häufig wird gekocht? : ab und zu
Wird alleine gekocht? Oder auch gemeinsam? Mit und für Gäste? : allein oder zu zweit
Was stört an der bisherigen Küche und was soll die neue Küche unbedingt können? Warum? : die aktuelle Küche ist toll, 25qm, mit Esstisch, aber wir ziehen um (hoffentlich)
Steht schon ein Küchenhersteller fest oder wird bevorzugt? : Schüller
Steht schon ein Gerätehersteller fest oder wird bevorzugt? : Siemens
Preisvorstellung (Budget) : bis 15.000,-
ich lese seit einigen Monaten hier mit und habe schon viele, viele Anregungen zum Thema Küche bei Euch erhalten. Wirklich toll. Das hat mir bei der Suche nach meiner neuen Küche im neu entstehenden Haus schon sehr geholfen.
Ich habe, bevor ich ins Küchenstudio bin einiges mit dem Alno -Planer "rumgeschubst", aber auch die Küchenstudios haben mir noch bei vielen Dingen gute Tipps gegeben. Ich bin jetzt beim 3. Küchenstudio angelangt, bei dem ich die Küche wohl auch kaufen werde. Sind einfach super nett, ertragen jede Frage klaglos, geben Pläne (nicht bemaßt) bereits vor dem Kauf mit raus etc.
Jetzt hat meine Küchenplanung ein Reifestadium erreicht, wo ich hoffe, dass ich Euch nicht mit etwas zu unfertigem konfrontiere, aber sicher noch den einen oder anderen Tipp erhalten kann
Die endgültige Entscheidung für die Küche muss ca. im November stehen.
Da wir neu bauen, können wir uns, was Wasser etc. angeht noch etwas frei bewegen.
Weiter unten habe ich die Frage gesehen, wie oft wir kochen. Aktuell kochen ich regelmäßig an den Wochenenden. Es ist fast so was wie ein Hobby geworden. Deswegen ist mir die Küche auch so wichtig.
So, ich hoffe, ich mache alles richtig und ihr könnt mit den Plänen arbeiten. Ich habe neben den Alno-Dateien und den jpg´s aus dem Alno-Planer auch die Bilder des Küchenstudios angehängt (mit der orangen Wand), da dort manches besser zu sehen ist.
Noch ein paar Infos zu Geräten und der Arbeitsplatte :
Ich habe mich für folgende Geräte schon fast entscheiden:
Geschirrspüler SX66N054EU
Herd - Induktions-Herd EH901SK11
Kühlschrank - Miele K35272iD
Ob ein Dampfgarer eine sinnvolle Investition ist, versuche ich gerade noch herauszufinden.
Arbeitsplatte: Nero Assoluto geflammt
Spüle: Blancoelon XL 6 S
Mischer: Blancoperiskope S F II
Front: Kunststoff Hochglanz
Farbe: Champagner
So, jetzt könnt ihr euch an meinen Plänen austoben. Ich freue mich auf Eure Anregungen.
Ich danke allen, die sich die Mühe machen, mir zu helfen und gute Tipps geben. Tolles Forum.
Nettel
Checkliste zur Küchenplanung von nettel-two
Anzahl Personen im Haushalt : 2
Davon Kinder? : keine
Körpergrössen aller Hauptbenutzer (wegen Arbeitshöhe ) in cm : 175, 173
Art des Gebäudes? : Neu-/Umbau, Planänderungen möglich
Brüstungshöhe des Fensters (in cm) : 103
Fensterhöhe (in cm) : 100?
Raumhöhe in cm: : 250
Heizung : Fussbodenheizung
Sanitäranschlüsse : vollkommen variabel
Ausführung Kühlgerät? : Integriert im Hochschrank (60cm)
Kühlgerät Größe : bis 140 cm Höhe
Ausführung Tiefkühl (TK)-Gerät : Nicht erforderlich bzw. steht woanders
Dunstabzugshaube? : Abluft
Hochgebauter Backofen ? : Ja
Hochgebauter Geschirrspüler ? : ja
Kochfeldart? : Induktion
Kochfeldbreite ca. (in cm)? : 90
Spülenform: : 1 Becken mit Abtropffläche
Weitere geplante Heißgeräte : Standmikrowelle
Küchenstil? : modern
Sitzmöglichkeit in der Küche / im Küchenbereich als : Gesonderter Tisch
Sitzmöglichkeit: Für wieviel Personen? : für 4 Personen
Sitzmöglichkeit: Tisch - wenn gesonderter Tisch oder offene Küche : Wird nach Bedarf neu gekauft
Gewünschte o. vorhandene Tischgröße : 120 x 80
Wofür soll der Sitzplatz in der Küche genutzt werden? Wie häufig? : Frühstück, Mittagessen, ...
Welche Arbeitshöhe ist angedacht (in cm)? : 92
Was steht auf der Arbeitsplatte oder soll dort stehen? : Kaffeemaschine, Wasserkocher, Küchenmaschine, Toaster, Obstschale
Welche weiteren Küchenmaschinen müssen in der Küche untergebracht werden? : Küchenmaschine, Wasserkocher, Toaster, Handrührgerät, Mixer
Was soll in der Küche außer den Standards untergebracht werden? : Geschirr komplett (nichts in Ess-/Wohnzimmer)
Welchen Stauraum gibt es sonst noch? : Speisekammer
Was/wie wird gekocht? (Alltagsküche, Menüs, Snacks usw) : Alltagsküche
Wie häufig wird gekocht? : ab und zu
Wird alleine gekocht? Oder auch gemeinsam? Mit und für Gäste? : allein oder zu zweit
Was stört an der bisherigen Küche und was soll die neue Küche unbedingt können? Warum? : die aktuelle Küche ist toll, 25qm, mit Esstisch, aber wir ziehen um (hoffentlich)
Steht schon ein Küchenhersteller fest oder wird bevorzugt? : Schüller
Steht schon ein Gerätehersteller fest oder wird bevorzugt? : Siemens
Preisvorstellung (Budget) : bis 15.000,-
Anhänge
-
1_kochzeile.jpg43,9 KB · Aufrufe: 563 -
Spüle_hoch_Unter1.KPL3,9 KB · Aufrufe: 187
-
Spüle_hoch_Unter1.POS7,5 KB · Aufrufe: 206
-
Hochschränke.jpg50,4 KB · Aufrufe: 213 -
Inselsicht.jpg50,4 KB · Aufrufe: 216 -
Spülensicht.jpg51,6 KB · Aufrufe: 196 -
Planung.JPG25,3 KB · Aufrufe: 217 -
1_gesamtansicht.jpg52,7 KB · Aufrufe: 218 -
1_hochschränke.jpg61,6 KB · Aufrufe: 508 -
1_spülenseite.jpg60,8 KB · Aufrufe: 525

