Küchenplanung für Neubaugrundriss

Linchen

Mitglied
Beiträge
33
Hallo lieben Küchenforum!

Nachdem ich dieses tolle Forum im Mai entdeckt habe, hab ich hier so viel Zeit verbracht, dass mein Mann schon ganz genervt ist... ;-) Hier gibt's wirklich viele Ideen und Tipps und man vergisst beim Lesen die Zeit!

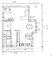
Unsere Neubauplanung wird langsam konkreter und ich muss mir Gedanken und die Küchenmaße machen. Noch können wir die ein oder andere Wand etwas schieben.

Wir sind eine kleine Familie mit einer 3-jährigen Tochter, kochen gern jeden Tag und backen auch oft. Es darf auch etwas aufwendiger werden. Kochen gern für Gäste (eher als mit Gästen). Fertigsachen gibt's nicht und die Mikrowelle brauch ich nur für Körnerkissen...

In unserer Küche haben wir z Zt eine Arbeitshöhe von 90-92 cm (Altbau mit unebenem boden, war ein toller Küchenaufbau...) Bei meiner "kleinen Größe" komme ich mit einer Höhe von 90 cm wunderbar klar...

Aus Kostengründen wird es eine Ikea -Küche in hochglanz weiß werden. Ja, ich weiß, hab alle Beiträge zu Ikea-Küchen und auch zu Folienfronten gelesen... Wir werden allerdings nicht die Ikea-Geräte verwenden, sondern diese bei einem Großhändler beziehen. Werden eingespartes Geld von den Möbeln dann eher in die Geräte investieren. Auch sind wir uns der Aufbaumühe bewußt. Wir sind handwerklich begabt und Schwiegervater (gelernter Schreiner) ist als Holztechniker in der Möbelentwicklung tätig.

So, ein paar Details zum Grundriss... Die Wandelemente sollen eine Nische im Flurbereich darstellen, die dann für einen Gardrobenschrank genutzt wird. Die Wand verspringt und nimmt den 2. Küchenblock auf. Hier hatte ich erst nur Hochschränke eingeplant, aber irgendwie fehlten mir Abstellmögleichkeiten für Sachen wie Kaffeemaschine oder Kitchenaid.

Der Arbeitsblock mit Maßen 160x120 soll mit einer breiten hinten überstehenden Arbeitsplatte bedeckt werden und dann sollen kleine Barhocker eine Frühstücksmöglichkeit bieten (hat mit der Darstellung nicht so geklappt). Koch(halb)insel war auch im Gespräch, aber ich denke, Arbeitsblock ist effektiver.

Die Terrassentür geht in den Garten (Kräutertür).

An den Arbeitsblock schließt sich ein Eker als Essbereich an. Einen Grundrissentwurf für den Überblick reiche ich noch nach, muss erst noch scannen..

Ein Hauswirtschaftsraum ist auch voerhanden, wird auch für Vorräte und Gefrierschrank genutzt werden.

So, das ist jetzt doch länger geworden, als geplant.. Vielleicht habt ihr ja nette Ideen und Verbesserungen.

Vielen Dank und viele Grüße Linchen
 

Anhänge

  • grundriss1.JPG
    grundriss1.JPG
    28 KB · Aufrufe: 198
  • ansicht1a.jpg
    ansicht1a.jpg
    35 KB · Aufrufe: 190
  • ansicht2a.jpg
    ansicht2a.jpg
    29,4 KB · Aufrufe: 202
  • ansicht3a.jpg
    ansicht3a.jpg
    31,7 KB · Aufrufe: 214
Zuletzt bearbeitet:
AW: Küchenplanung für Neubaugrundriss

Hallo Linchen,
warum seid ihr schon so auf Ikea fixiert? Habt ihr euch schon mal ein Angebot eines Küchenstudios machen lassen?

Es wäre toll, wenn du die Alnoplanungsdateien; Kapitel 3 --> Alnohilfe Kapitel 3 mal anhängst.
Gut ist auf jeden Fall die Idee mit der Nische von Flurseite. Schlecht irgendwie, wie diese Nische weitergeht.
Hast du eigentlich mal einen Gesamgrundriss des Geschosses?
 
AW: Küchenplanung für Neubaugrundriss

Hallo Kerstin!

Ich hab mich gestern Abend im Dschungel des Laufwerks C verlaufen und heute die Dateien endlich gefunden... Mein Mann nennt das immer Bioschnittstelle... Werde die beiden Dateien gleich anhängen.

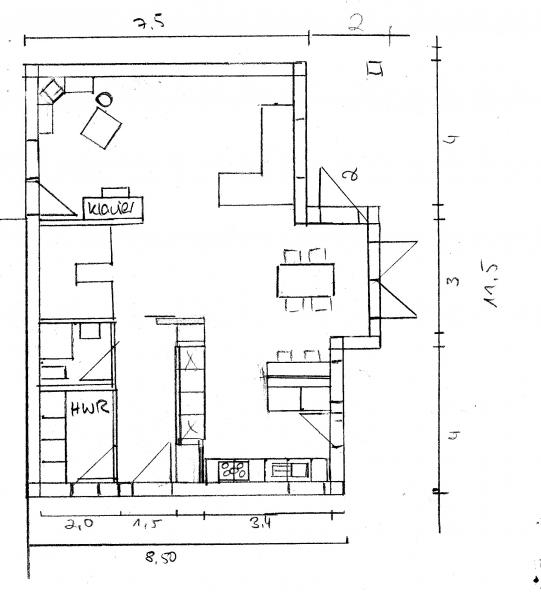
Hab wie gestern angekündigt auch einen Grundriss vom Erdgeschoss gescannt, leider nur eine Skizze, die anderen Pläne habe ich hier grad nicht vorliegen.

Die Nische geht im Prinzip weiter, also wieder zurück in den Eingangsbereich. Zumindest bis jetzt als Idee.

Wir werden in der nächsten Woche auch noch Möbelhäuser aufsuchen, allerdings haben wir nach 2 Küchen aus Möbelhäusern und den Erfahrungen eines befreundeten Architekten (der hat auch Ikea -Schränke und hochwertigere Geräte) das (vielleicht) Vorurteil, dass wir so günstiger fahren. Bei all den Baukosten ist es schon eine Überlegung, ob man gleich 15000 für die Küche einplant und die nächsten 20 Jahre mit abbezahlt. Wir werden sehen und vergleichen. Bei der Geräteauswahl bin ich auch noch nicht ganz durch. Fand es bei der vorherigen Planung aber durchaus einschränkend mit der Blockverrechnung etc. Nach dem Motto "der Schrank, da geht der Backofen ..."

So, ich versuch mein bestes mit dem anhängen..

Viele Grüße Linchen
 

Anhänge

  • PLANneu.KPL
    4,1 KB · Aufrufe: 175
  • PLANneu.POS
    7 KB · Aufrufe: 178
  • grundriss.jpg
    grundriss.jpg
    37,7 KB · Aufrufe: 213
AW: Küchenplanung für Neubaugrundriss

Hallo Linchen

Danke für den Grundriss - jetzt kann ich mir die Situation deutlich besser vorstellen.

Die Haustüre sollte andersrum aufgehen, sonst ist es recht ungünstig wenn mehrere Personen gleichzeitig heim kommen, dort die Jacken auf zuhängen.

Warum ist das kleine Fenster über der Spüle so klein und so hoch?

besser und mehr Licht gäbe das Fenster, wenn es mehr nach rechts - Richtung Wand gerückt würde. Ich mag es ja, wenn die Fenster bis auf die APL runter gehen.

Wenn ihr jetzt noch den Hochschrankblock einkoffert, dann schaut das richtig nett aus - ich könnte mir auch übertiefe APL vorstellen, da dass ja der Geräteparkplatz werden soll.:foehn:
 
AW: Küchenplanung für Neubaugrundriss

Haustür andersherum geht aber nur, wenn die Tür vom HWR nach planoben verschoben wird. Das würde ich sowieso machen. Dann passt nämlich noch ein Regal oder ähnliches hinter die Tür.
 
AW: Küchenplanung für Neubaugrundriss

Hallo nochmal!

Ja, das Fenster find ich auch nicht sooo toll... Mann meinte ein Lichtband schön zu finden. Fenster bis zur Arbeitsplatte hab ich für mich auch schon fast beschlossen. Der Architekt wollte das Fenster auch noch über Eck weiter fortsetzen. Und dann die Terrassentür. Das wird aber vielleicht zu viel des Guten... Evtl hab ich mir dann eher ein Fenster am Arbeitsblock vorgestellt. Auch bis zur Arbeitsfläche runter...

Stimmt, die Eingangssituation ist unglücklich. Habe vergessen zu schreiben, dass wir etwas eingeschränkt mit der Planung sind, da es sich um einen Anbau an das Haus meiner Eltern handelt. An der Westseite ist unser Haus hinten 4m länger, das neue Haus geht dafür vorn weiter. Wenn man genau hinschaut, kann man 2 Striche erahnen. Hab leider keinen besseren Plan hier... Haustür können wir klar drehen. Tür vom HWR kann auch verschoben werden.

Der Hochschrankblock soll schön eingepackt werden, bin aber im Planer noch nicht sooo fit, um das darzustellen. Übertief, mmh, dann käme ich mehr in den Raum, oder? Hab ich genug Durchgangsbreite zum Arbeitsblock? Ist aber eine schöne Idee.

Vielen Dank für die Anmerkungen und die Bestärkung in Richtung Küchenfenster ;-)
 
AW: Küchenplanung für Neubaugrundriss

Hallo Linchen

Abstand zwischen Zeilen sollte 90cm-120cm sein. Türe HWR ist planoben eh geschickter, dann kannst Du vor dem Fenster das Bügelbrett haben.

Wie genau soll die Theke werden? Also Glasaufsatz sieht man ja mal wieder bei Roxannes Küche wie *hust* :w00t: wenn da jetzt ein Eisbecher draufsteht und Du sitzt auf dem Stuhl pickst dich das Schirmchen ins Auge :-\

Da wäre ein APL-Ueberstand schon besser .. aber auch fraglich ob es das wirklich braucht. Als Idee sind solche Plätze nett; in der Realität meist höchst überflüssig. Ganz besonders, wenn der Esstisch eh gleich danebensteht...
 
AW: Küchenplanung für Neubaugrundriss

Ich würde über eine Schiebetür zum HWR nachdenken, am besten in der Wand laufend.
 
AW: Küchenplanung für Neubaugrundriss

Es soll ein APL-Überstand werden. Stimmt, ob man eine Sitzmöglichkeit benutzt, wenn der Tisch daneben steht.... Wir haben die Idee der Theke aus unserem Amerika-Urlaub bei Verwandten mitgenommen (obwohl da auch ein Tisch direkt daneben stand) und fanden das als Abtrennung ganz nett. Die "richtige" Thekenlösung mit Aufsatz haben wir schnell gestrichen. Sieht nett aus, ist doch eher unpraktisch.

Problemkind HWR ... Eigentlich zu klein. Schiebetür ist schon eine gute Idee. Geb ich mal weiter. Bügelbrett käme ins OG, da auch Waschmaschine und Trockner nach oben kommen. Somit haben wir im HWR etwas Platz gewonnen (Wärmepume, Gefrierschrank, Vorräte, etc).

Ich weiß noch nicht ganz genau, ob Arbeitsbereiche und Stauraum genug vorhanden sind. Werde mal durch meine jetztige Küche gehen. Habe zZt Hängeschränke für Geschirr und eine einzelne Vitrine für Gläser und Co. Wenn ich aber über den eingekofferten Block große Hängeschränke plane, sieht's doch etwas vollgepackt aus, oder?
 
AW: Küchenplanung für Neubaugrundriss

;-) das könnte man auch "diskret" machen: in einer Mietwhg hatte ich es so, dass die Schränke (Schichtstoff Makasar-Design) recht niedrig waren, darüber war in weiss bis unter die Decke verkleidet - das konnte man öffnen nach oben (Druckfeder)
von unten sah es aus wie verkoffert; aber gab nochmal richtig viel Stauraum - das war prima für Weihnachtsdeko und X-mas-Keksdosen ;D, Backschüsseln und sonstiges wenig gebrauchtes.
 
AW: Küchenplanung für Neubaugrundriss

Oh ja, das ist ein gute Idee! Stauraum für Deko kann frau ja nie genug haben :girlblum: Den "Basteltipp" können wir bestimmt umsetzen!

Die Nischen werden sich noch ein wenig ändern, bei genauerem messen bleiben grade 40 cm für's zurückspringen in den Flur. Ich denke, da ist es besser, wenn ich die noch für den Hochschrankblock nutze. Also entweder zwischen die beiden 60er noch einen 40er Unterschrank oder gleich zwei 80er Unterschränke. Eingekoffert wird's natürlich trotzdem, brauche ja auch ein Stückchen Wand für die Schiebetür zwischen Flur und dem Rest.

Haben auch nochmal über den APL-Überstand gesprochen. Möchte mein Mann gern so haben... Er hat sich in unserer ersten gaaaanz kleinen Küche angewöhnt das Gemüse und Co am Küchentisch sitzend zu schnippeln... (macht er in der jetztigen Küche trotz genug Platz auch) Stellt er sich am Arbeitsblock ganz toll vor...

Dann meint ihr, ich könnte die Planung in der Richtung weitergeben? Müssen ja jetzt erstmal die Pläne mit dem Architekten absprechen und weitergeben, sodass unser Häuschen (Holzrahmenbau) bald gebaut werden kann. Oder hab ich noch ganz grobe unpraktische/unnötige Sachen drin?!? Sind (noch) offen für Vorschläge, solange die noch nicht zimmern... ;-)

Viele liebe Grüße Linchen
 
AW: Küchenplanung für Neubaugrundriss

;-) ich finde, das passt schon im grossen und ganzen .. die Fenster solltest Du nochmal überdenken und die grösse vom Küchenblock und dem überstand (30cm zum hinsetzen & schnibbeln, je nach grösse vom Mann könnte das knapp sein ;-))
 

Ähnliche Beiträge

Neff Hausgeräte Ballerina Küchen Blum Bewegungstechnologie Weibel - Intelligente Küchenlüftung

Neff Spezial

Blum Zonenplaner

Weibel Abluft-Tuning

Weibel Abluft-Tuning
Zurück
Oben