FJ89
Mitglied
- Beiträge
- 2
Küchenplanung EFH
Hi zusammen,
wir sind eine (in einigen Tagen) vierköpfige Familie und sind gerade an der Planung bzw. am Bau unseres EFH. Zur Küchenplanung waren wir bisher in zwei Möbelhäusern und haben auf jeden Fall noch mindestens einen, eher zwei weitere Besuche geplant.
Wir haben uns ein Budget von ca. 15-20k gesetzt.
Was wir auf jeden Fall möchten:
- Unseren Quooker , den wir in der jetzigen Küche eingebaut haben, möchten wir gerne mitnehmen
- Fronten in einem dunklen Anthrazit oder sogar zusammen mit einer Holzarbeitsplatte
- GSP hoch bzw. halbhoch, um in bequemer Höhe ausräumen zu können
- Becken mit ausreichender Größe für ein Backblech
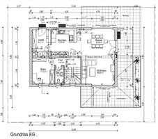
- Der "Fliesenspiegel" hinter dem Spülbecken besteht aus einem feststehenden Fensterelement. Die Arbeitsplatte soll dann in die Fensterlaibung rein reichen. Die Brüstungshöhe sowie die Höhe des Fensters an sich ist noch variabel und kann an die Küche angepasst werden.
In Möbelhaus A (50% Rabatt auf frei geplante Küchen - ha, ha) haben wir eine Nolte Küche planen lassen und landeten bei 28800€. Um grob in die Richtung unseres Budgets zu kommen wurde dann munter versucht Auszüge durch Türen zu ersetzen, der eigentlich gewollte Lemans -Schrank wurde durch ein Eckschrank mit Regalbrett ersetzt, vier horizontale Wandschränke wurden ebenfalls durch Klapptüren ersetzt...
Naja, im Endeffekt kam eine Küche raus, die wir so und vor allem für das Geld nicht wollen, weil sie erstens: an allen Ecken und Enden kastriert wurde und zweitens: immer noch 25800€ kosten soll, wobei der Chef scheinbar super gnädig gestimmt war und uns sogar noch ganze 800€ mehr erlassen wollte...
yay.
Geräte die dort eingeplant wurden:
GSP: Siemens sn73hx60ce
BO: Siemens hb734g1b1
KS: Siemens ki81rade0
KF: Bora x Pure
In Möbelhaus B landeten wir bei einer sehr ähnlichen Planung bei 19500€ für eine Nobilia -Küche (wobei da die "Verhandlung mit dem Chef" noch möglich ist).
Genaue Geräte kann ich aktuell nicht nennen, ich weiß auf jeden Fall dass wir hier "nur" das Bora Puru ausgewählt hatten. Ansonsten vergleichbare Geräte.
Info zu den Bildern:
Auf einem Bild ist schon der zweite Entwurf von Möbelhaus A zu sehen, den wir auch gerne so umsetzen möchten: Im Block ist ein zweites Feld in Kopfhöhe mit weniger tiefen Schränken ausgestattet, um etwas mehr Kopffreiheit für die dort positionierten Geräte, wahrscheinlich Kaffeemaschine + Allesschneider) zu haben.
Was mich hier interessieren würde:
- Eine allgemeine Bewertung des bisher entworfenen Plans
- Eine Bewertung des Preises beider bisher vorliegenden Möbelhäuser
- Vorschläge, was man anders/besser planen kann
- Worauf sollten wir noch achten?
- Evtl. Vorschläge oder Beratung zu den Geräten, worauf sollte man heutzutage achten bei KS, GSP, BO?
Danke im Voraus!
Checkliste zur Kuechenplanung
Personenkriterien und Ergonomie
Anzahl Personen im Haushalt: 4
Davon Kinder: 2
Körpergrößen aller Hauptbenutzer in cm (wegen Arbeitshoehe): 175-178
Welche Arbeitshöhe ist angedacht (in cm)?: 92-94cm
Gebäudekriterien
Art des Gebäudes: Neu-/Umbau > Planänderungen möglich, Eigentum
Bruestungshöhe des Fensters (in cm): Ist noch anpassbar
Fensterhöhe (in cm): ist noch anpassbar
Raumhöhe in cm: 240cm
Heizung: Fußbodenheizung
Sanitäranschlüsse: vollkommen variabel
Einbaugerätekriterien
Ausführung Kühlgerät: Integriert im Hochschrank (60cm)
Einbaukühlgerät Größe: 178cm
Ausführung Tiefkühl (TK)-Gerät: Nicht erforderlich bzw. steht woanders
Dunstabzugshaube: Umluft
Hochgebauter Backofen : ja
Geplante Heißgeräte: Standmikrowelle, Backofen
Hochgebauter Geschirrspüler : ja
Art des Kochfeldes: Induktionskochfeld
Kochfeldbreite (ca. in cm): 80 oder 90
Sitzmöglichkeiten
Sitzmöglichkeit in der Küche / im Küchenbereich: Keine
Sitzmöglichkeit: Für wieviel Personen?: nein
Sitzmöglichkeit: Tisch - wenn gesonderter Tisch oder offene Küche: Keiner
Gewünschte oder vorhandene Tischgröße: N. a.
Wofür soll der Sitzplatz in der Küche genutzt werden und wie häufig: N. a.
Stauraum-Planung
Was steht auf der Arbeitsplatte oder soll dort stehen?: Kaffeevollautomat, Thermomix, Allesschneider
Welche weiteren Küchenmaschinen müssen in der Küche untergebracht werden: Handrührgerät, Mixer, Pürierstab
Was soll in der Küche außer den Standards untergebracht werden: Geschirr komplett (nichts in Ess-/Wohnzimmer)
Welchen Stauraum gibt es sonst noch: Hauswirtschaftsraum
Kochgewohnheiten
Was/wie wird gekocht? (Alltagsküche, Menüs, Snacks usw): Alltagsküche
Wie häufig wird gekocht: (fast) täglich 1x warm
Wird alleine gekocht? Oder auch gemeinsam? Mit und für Gäste?: Nach und nach werden sicherlich die Kinder auch mal anpacken, ansonsten alleine/zu zweit
Spülen und Müll
Spülenform: 1 Becken mit Abtropffläche
Welche Mülltrennung soll in der Küche vorgehalten werden: Biomüll, Restmüll
Sonstiges
Steht schon ein Küchenhersteller fest oder wird bevorzugt: N. a.
Steht schon ein Gerätehersteller fest oder wird bevorzugt: N. a.
Küchenstil: Grifflose Küche
Was stört an der bisherigen Küche und was soll die neue Küche unbedingt können? Warum?: N. a.
Preisvorstellung (Budget): 15-20k
Angehängte Dateien
Hi zusammen,
wir sind eine (in einigen Tagen) vierköpfige Familie und sind gerade an der Planung bzw. am Bau unseres EFH. Zur Küchenplanung waren wir bisher in zwei Möbelhäusern und haben auf jeden Fall noch mindestens einen, eher zwei weitere Besuche geplant.
Wir haben uns ein Budget von ca. 15-20k gesetzt.
Was wir auf jeden Fall möchten:
- Unseren Quooker , den wir in der jetzigen Küche eingebaut haben, möchten wir gerne mitnehmen
- Fronten in einem dunklen Anthrazit oder sogar zusammen mit einer Holzarbeitsplatte
- GSP hoch bzw. halbhoch, um in bequemer Höhe ausräumen zu können
- Becken mit ausreichender Größe für ein Backblech
- Der "Fliesenspiegel" hinter dem Spülbecken besteht aus einem feststehenden Fensterelement. Die Arbeitsplatte soll dann in die Fensterlaibung rein reichen. Die Brüstungshöhe sowie die Höhe des Fensters an sich ist noch variabel und kann an die Küche angepasst werden.
In Möbelhaus A (50% Rabatt auf frei geplante Küchen - ha, ha) haben wir eine Nolte Küche planen lassen und landeten bei 28800€. Um grob in die Richtung unseres Budgets zu kommen wurde dann munter versucht Auszüge durch Türen zu ersetzen, der eigentlich gewollte Lemans -Schrank wurde durch ein Eckschrank mit Regalbrett ersetzt, vier horizontale Wandschränke wurden ebenfalls durch Klapptüren ersetzt...
Naja, im Endeffekt kam eine Küche raus, die wir so und vor allem für das Geld nicht wollen, weil sie erstens: an allen Ecken und Enden kastriert wurde und zweitens: immer noch 25800€ kosten soll, wobei der Chef scheinbar super gnädig gestimmt war und uns sogar noch ganze 800€ mehr erlassen wollte...
Geräte die dort eingeplant wurden:
GSP: Siemens sn73hx60ce
BO: Siemens hb734g1b1
KS: Siemens ki81rade0
KF: Bora x Pure
In Möbelhaus B landeten wir bei einer sehr ähnlichen Planung bei 19500€ für eine Nobilia -Küche (wobei da die "Verhandlung mit dem Chef" noch möglich ist).
Genaue Geräte kann ich aktuell nicht nennen, ich weiß auf jeden Fall dass wir hier "nur" das Bora Puru ausgewählt hatten. Ansonsten vergleichbare Geräte.
Info zu den Bildern:
Auf einem Bild ist schon der zweite Entwurf von Möbelhaus A zu sehen, den wir auch gerne so umsetzen möchten: Im Block ist ein zweites Feld in Kopfhöhe mit weniger tiefen Schränken ausgestattet, um etwas mehr Kopffreiheit für die dort positionierten Geräte, wahrscheinlich Kaffeemaschine + Allesschneider) zu haben.
Was mich hier interessieren würde:
- Eine allgemeine Bewertung des bisher entworfenen Plans
- Eine Bewertung des Preises beider bisher vorliegenden Möbelhäuser
- Vorschläge, was man anders/besser planen kann
- Worauf sollten wir noch achten?
- Evtl. Vorschläge oder Beratung zu den Geräten, worauf sollte man heutzutage achten bei KS, GSP, BO?
Danke im Voraus!
Checkliste zur Kuechenplanung
Personenkriterien und Ergonomie
Anzahl Personen im Haushalt: 4
Davon Kinder: 2
Körpergrößen aller Hauptbenutzer in cm (wegen Arbeitshoehe): 175-178
Welche Arbeitshöhe ist angedacht (in cm)?: 92-94cm
Gebäudekriterien
Art des Gebäudes: Neu-/Umbau > Planänderungen möglich, Eigentum
Bruestungshöhe des Fensters (in cm): Ist noch anpassbar
Fensterhöhe (in cm): ist noch anpassbar
Raumhöhe in cm: 240cm
Heizung: Fußbodenheizung
Sanitäranschlüsse: vollkommen variabel
Einbaugerätekriterien
Ausführung Kühlgerät: Integriert im Hochschrank (60cm)
Einbaukühlgerät Größe: 178cm
Ausführung Tiefkühl (TK)-Gerät: Nicht erforderlich bzw. steht woanders
Dunstabzugshaube: Umluft
Hochgebauter Backofen : ja
Geplante Heißgeräte: Standmikrowelle, Backofen
Hochgebauter Geschirrspüler : ja
Art des Kochfeldes: Induktionskochfeld
Kochfeldbreite (ca. in cm): 80 oder 90
Sitzmöglichkeiten
Sitzmöglichkeit in der Küche / im Küchenbereich: Keine
Sitzmöglichkeit: Für wieviel Personen?: nein
Sitzmöglichkeit: Tisch - wenn gesonderter Tisch oder offene Küche: Keiner
Gewünschte oder vorhandene Tischgröße: N. a.
Wofür soll der Sitzplatz in der Küche genutzt werden und wie häufig: N. a.
Stauraum-Planung
Was steht auf der Arbeitsplatte oder soll dort stehen?: Kaffeevollautomat, Thermomix, Allesschneider
Welche weiteren Küchenmaschinen müssen in der Küche untergebracht werden: Handrührgerät, Mixer, Pürierstab
Was soll in der Küche außer den Standards untergebracht werden: Geschirr komplett (nichts in Ess-/Wohnzimmer)
Welchen Stauraum gibt es sonst noch: Hauswirtschaftsraum
Kochgewohnheiten
Was/wie wird gekocht? (Alltagsküche, Menüs, Snacks usw): Alltagsküche
Wie häufig wird gekocht: (fast) täglich 1x warm
Wird alleine gekocht? Oder auch gemeinsam? Mit und für Gäste?: Nach und nach werden sicherlich die Kinder auch mal anpacken, ansonsten alleine/zu zweit
Spülen und Müll
Spülenform: 1 Becken mit Abtropffläche
Welche Mülltrennung soll in der Küche vorgehalten werden: Biomüll, Restmüll
Sonstiges
Steht schon ein Küchenhersteller fest oder wird bevorzugt: N. a.
Steht schon ein Gerätehersteller fest oder wird bevorzugt: N. a.
Küchenstil: Grifflose Küche
Was stört an der bisherigen Küche und was soll die neue Küche unbedingt können? Warum?: N. a.
Preisvorstellung (Budget): 15-20k
Angehängte Dateien
Anhänge
