Conny
Mitglied
- Beiträge
- 7.355
- Wohnort
- SchleswigHolstein
AW: Küchen-Neulinge
Du hast es ja schon geschrieben, eine 39cm tiefe Arbeitsfläche sähe lächerlich aus und was willst du damit anfangen...
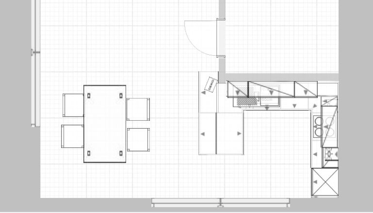
Übertiefe Unterschränke gibt es bei vielen Herstellern, meist sind sie aber 75cm tief. Es gibt sicher noch andere Hersteller als Schüller , die mit einer 70cm Tiefe arbeiten, nur ist mir im Moment nur Schüller und Leicht bekannt. Leicht fällt aber leider wegen des angebeben Budgets weg, die sind einfach zu teuer... Wo ihr Schüller findet, müsstet ihr beim Hersteller erfragen.
Wenn ihr den Sanitäranschluss auf Putz verlegen müsst, fällt diese Variante aber auf jeden Fall weg und auch ohne wird es nur mit Glück klappen, da wir ja nur mit Rohbaumaßen planen und ein verschieben der Wand nicht möglich ist.
Durch die Insellösung gewinnst du schon etwas Stauraum. Aus dem 80er U-Schrank konnte ich so einen 90er machen und aus dem 45er ein 60er und der 50er Spülenschrank ist nun auch 60cm breit. Hinzu kommen dann noch die rückseitigen Schränke.
Einen mindertiefen Raumteiler wirst du für einen kleinen Aufpreis, wahrscheinlich bei jedem Hersteller bekommen. In meiner Küche sind die rückseitigen Inselschränke auch tiefengekürzt.
Von einem Eckschrank würde ich dir abraten. Der sind nicht nur teuer, sondern auch unpraktisch. Außerdem würden er den einzigen breiten Unterschrank killen...
Dazu solltest du einmal Warum tote Ecken gute Ecken sind lesen.
Die Wand ist in meiner Planung auch 15cm dick. Ich habe der Einfachheit halber, die Tote Ecke einfach etwas in die Wand geschoben...
Das wird in Wirklichkeit natürlich nicht so gemacht, sie wird dem Grundriss angepasst.
Ich habe mich aus optischen und praktischen Gründen dafür entschieden. Es wäre sonst nur ein 50er Spülenschrank möglich, das fand ich in der Ecke nicht so praktisch, der mindertiefe Raumteiler wäre zu mindertief geworden oder hätte entfallen müssen.
Dann hätte mir die Optik von der Wohnraumseite aber nicht gefallen. So wirkt es harmonischer und macht die Insel optisch großzügiger.
Normalerweise ist zwischen Spüle und Kochfeld der Hauptarbeitsplatz, darum hatte ich in meiner ersten Planung versucht, diese Fläche so groß wie möglich zu planen. Aber ich denke ihr werdet auch so gut damit zurecht kommen. In so einer kleinen Küche, muss man immer irgendeine Kröte schlucken.
Das Fenster können wir ja nicht verschieben und auch die Brüstungshöhe nicht erhöhen... Insofern wird die Fenstersituation in keiner Planung anders sein und ihr werdet damit leben müssen.
Dunkel wird es in eurer Küche aber keinesfalls werden und mit der Insellösung hättet ihr ja seitliches Tageslicht und auch noch den Blick auf das große Fensterelement, welches sich im Wohnbereich befindet. Trotzdem würde ich alle Arbeitsflächen ordentlich beleuchten, damit ihr auch am Abend, ausreichend Licht habt.
Du hast es ja schon geschrieben, eine 39cm tiefe Arbeitsfläche sähe lächerlich aus und was willst du damit anfangen...
Übertiefe Unterschränke gibt es bei vielen Herstellern, meist sind sie aber 75cm tief. Es gibt sicher noch andere Hersteller als Schüller , die mit einer 70cm Tiefe arbeiten, nur ist mir im Moment nur Schüller und Leicht bekannt. Leicht fällt aber leider wegen des angebeben Budgets weg, die sind einfach zu teuer... Wo ihr Schüller findet, müsstet ihr beim Hersteller erfragen.
Wenn ihr den Sanitäranschluss auf Putz verlegen müsst, fällt diese Variante aber auf jeden Fall weg und auch ohne wird es nur mit Glück klappen, da wir ja nur mit Rohbaumaßen planen und ein verschieben der Wand nicht möglich ist.
Durch die Insellösung gewinnst du schon etwas Stauraum. Aus dem 80er U-Schrank konnte ich so einen 90er machen und aus dem 45er ein 60er und der 50er Spülenschrank ist nun auch 60cm breit. Hinzu kommen dann noch die rückseitigen Schränke.
Einen mindertiefen Raumteiler wirst du für einen kleinen Aufpreis, wahrscheinlich bei jedem Hersteller bekommen. In meiner Küche sind die rückseitigen Inselschränke auch tiefengekürzt.
Von einem Eckschrank würde ich dir abraten. Der sind nicht nur teuer, sondern auch unpraktisch. Außerdem würden er den einzigen breiten Unterschrank killen...
Dazu solltest du einmal Warum tote Ecken gute Ecken sind lesen.
Die Wand ist in meiner Planung auch 15cm dick. Ich habe der Einfachheit halber, die Tote Ecke einfach etwas in die Wand geschoben...
Ich habe mich aus optischen und praktischen Gründen dafür entschieden. Es wäre sonst nur ein 50er Spülenschrank möglich, das fand ich in der Ecke nicht so praktisch, der mindertiefe Raumteiler wäre zu mindertief geworden oder hätte entfallen müssen.
Dann hätte mir die Optik von der Wohnraumseite aber nicht gefallen. So wirkt es harmonischer und macht die Insel optisch großzügiger.
Normalerweise ist zwischen Spüle und Kochfeld der Hauptarbeitsplatz, darum hatte ich in meiner ersten Planung versucht, diese Fläche so groß wie möglich zu planen. Aber ich denke ihr werdet auch so gut damit zurecht kommen. In so einer kleinen Küche, muss man immer irgendeine Kröte schlucken.
Das Fenster können wir ja nicht verschieben und auch die Brüstungshöhe nicht erhöhen... Insofern wird die Fenstersituation in keiner Planung anders sein und ihr werdet damit leben müssen.
Dunkel wird es in eurer Küche aber keinesfalls werden und mit der Insellösung hättet ihr ja seitliches Tageslicht und auch noch den Blick auf das große Fensterelement, welches sich im Wohnbereich befindet. Trotzdem würde ich alle Arbeitsflächen ordentlich beleuchten, damit ihr auch am Abend, ausreichend Licht habt.
