Küchen-Neulinge

Kombüsenjung

Mitglied
Beiträge
11
Hallo liebe Küchenplaner,

aktuell sind wir in den Anfängen unserer ersten Küchenplanung . Wir ziehen zwar erst 2015 in unsere momentan im Bau befindliche Eigentumswohnung, müssen aber bereits in den nächsten Wochen viele Planungsdetails festlegen, wie zum Beispiel Wasseranschlüsse, Elektrik und Co..

Das größte Fragezeichen ist für uns hierbei die Küche und wir würden uns sehr freuen, wenn Ihr uns in dieser Sache ein wenig helfen würdet.

Wir hatten bereits zwei Termine in Küchenhäusern. Zusätzlich wollen wir noch ein weiteres Küchenstudio besuchen. Es folgen zudem weitere Termine, in denen wir die Planung vertiefen. Nach beiden bisherigen Terminen waren wir aber ziemlich verunsichert. Kernproblem ist tatsächlich die Größe der Küche, die mit 6qm sehr klein ist (einen Grundriss der Küche, als auch der gesamten Wohnung findet Ihr anbei). Die Wand zum Flur ist 2,45m, die Wand zum Bad ist 2,55m. Die übrig gebliebene Wand zwischen Essraum und Küche ist 0,6m.

Wir wollen zudem gerne die ALNO Planung machen. Leider funktioniert das Programm bei uns nicht. Es kommt ständig ein Runtime Error und das Programm öffnet sich partout nicht :-\… Die Planungen der Küchenhäuser erhalten wir erst in zwei Wochen bei unseren Folgeterminen. Daher hoffen wir, dass Ihr dennoch ein wenig helfen könnt. Gibt es Alternativen, mit denen ich arbeiten kann?

Aber hier mal unsere ersten Gedanken: Um die Größe der Küche etwas offener und größer anmuten zu lassen, haben wir die Wand zum Essbereich wegnehmen lassen. Meine Freundin hätte hier gerne ein wenig Arbeitsfläche, ich habe dagegen Angst, dass die Laufwege dadurch noch weiter werden und alles zu eng wird. Vor das Fenster können wir aufgrund der niedrigen Brüstungshöhe leider keine Arbeitsfläche einplanen. Überlegt hatten wir dagegen hier die Möglichkeit einer Sitzbank mit Stauraum darunter.

Die „Öffnung“ der Küche ist direkt am Essbereich. Wir haben einen großen Esstisch, brauchen daher eigentlich auch keine Sitzgelegenheit mehr in der Küche (außer evtl. Sitzbank am Fenster oder an der Arbeitsfläche von der Esszimmerseite)

Wir würden uns sehr freuen, wenn Ihr grobe Ideen habt:

  • Welche Möglichkeiten haben wir grundsätzlich? Wo kann was stehen? (Viele Dinge bedingen sich ja recht schnell, z.B. Wenn ich an der einen Wand koche, kann ich aufgrund des sonst zu geringen Abstandes ja nur an der anderen Wand die Spüle einbauen, oder?)
  • Kochen würden wir gerne an einer der beiden Wände (wegen der offenen Küche)
  • Passen zwei Hochschränke in die Küche (1. Für den Kühlschrank, 2. für Backofen + ggf. Spülmaschine oder Stauraum)? Oder müssen wir uns von dem Gedanken verabschieden? (Hier haben wir auch widersprüchliche Aussagen der Küchenhäuser)
  • Wasseranschluss macht wahrscheinlich an der Wand zum Badezimmer am meisten Sinn. Oder gibt es hier andere Möglichkeiten?
  • Wichtig ist uns, den maximalen Stauraum und v. a. Arbeitsfläche aus dieser Küche rauszuholen.

Wir stehen wirklich gerade total am Anfang und würden uns riesig über euren kreativen Input freuen.

Fragt uns gerne alles, was Euch noch so einfällt und was wir ggf. noch nicht bedacht haben. Das ist bestimmt noch so Einiges.

Tausend Dank und
Herzliche Grüße

Kombüsenjung


Checkliste zur Küchenplanung von Kombüsenjung

Anzahl Personen im Haushalt : 2
Davon Kinder? : keine
Körpergrössen aller Hauptbenutzer (wegen Arbeitshöhe ) in cm : 164cm und 192cm
Art des Gebäudes? : Neu-/Umbau, Planänderungen möglich
Brüstungshöhe des Fensters (in cm) : 70
Fensterhöhe (in cm) : m.E. bis zur Decke (?)
Raumhöhe in cm: : 250cm
Heizung : Fussbodenheizung
Sanitäranschlüsse : vollkommen variabel
Ausführung Kühlgerät? : Integriert im Hochschrank (60cm)
Kühlgerät Größe : noch unbekannt
Ausführung Tiefkühl (TK)-Gerät : Im Kühlschrank ab 3 Schubladen unten
Dunstabzugshaube? : Umluft
Hochgebauter Backofen ? : Wenn möglich
Hochgebauter Geschirrspüler ? : wenn möglich
Kochfeldart? : Induktion
Kochfeldbreite ca. (in cm)? : offen, je nach Aufteilung und Möglichkeit
Spülenform: : Noch nicht festgelegt
Weitere geplante Heißgeräte :
Küchenstil? : modern
Sitzmöglichkeit in der Küche / im Küchenbereich als : Keine
Sitzmöglichkeit: Für wieviel Personen? : nein
Sitzmöglichkeit: Tisch - wenn gesonderter Tisch oder offene Küche : Vorhandener Tisch
Gewünschte o. vorhandene Tischgröße : 170 x 93 (steht im Essbereich)
Wofür soll der Sitzplatz in der Küche genutzt werden? Wie häufig? : keine Sitzmöglichkeit in der Küche (ggf. Bank vorm Fenster?)
Welche Arbeitshöhe ist angedacht (in cm)? : 90 cm (macht das Sinn? Meine Freundin ist deutlich kleiner als ich, kocht aber am meisten)
Was steht auf der Arbeitsplatte oder soll dort stehen? : Kaffeemaschine, Wasserkocher, Messerblock, Toaster, Brotbehälter, Obstschale
Welche weiteren Küchenmaschinen müssen in der Küche untergebracht werden? : Mixer, Pürierstab
Was soll in der Küche außer den Standards untergebracht werden? : ALLE Vorräte
Welchen Stauraum gibt es sonst noch? : Geschirr/Gläserschrank im Wohn-/Esszimmer, Keller
Was/wie wird gekocht? (Alltagsküche, Menüs, Snacks usw) : eher Alltagsküche und Kleinigkeiten, am Wochenende auch mal etwas aufwendiger
Wie häufig wird gekocht? : (fast) täglich 1x warm
Wird alleine gekocht? Oder auch gemeinsam? Mit und für Gäste? : im Alltag alleine oder zu zweit, gerne aber auch mit Freunden
Was stört an der bisherigen Küche und was soll die neue Küche unbedingt können? Warum? : sie ist Teil der aktuellen Mietwohnung und (von der Farbe und den Schränken zu urteilen) noch aus den 60ern ;-)
Wunsch: familientauglich und hohe Qualität – aber nicht zu ausgefallen, damit wir lange etwas von ihr haben; ich möchte mich gerne hier aufhalten
Steht schon ein Küchenhersteller fest oder wird bevorzugt? : noch nicht
Steht schon ein Gerätehersteller fest oder wird bevorzugt? : noch nicht. Höchstes Kriterium ist Qualität
Preisvorstellung (Budget) : bis 10.000,-
 

Anhänge

  • Grundriss__Ausschnitt.jpg
    Grundriss__Ausschnitt.jpg
    85,6 KB · Aufrufe: 289
  • Grundriss_Küche.jpg
    Grundriss_Küche.jpg
    82,2 KB · Aufrufe: 306
AW: Küchen-Neulinge

Stelle uns bitte noch einen gut leserlichen Grundriss zur Verfügung, in dem Küche und Wohnbereich mit Maßen versehen ist.
 
AW: Küchen-Neulinge

3 Methoden haben sich zur Messung der Arbeitshöhe etabliert:
- Ellbogen abwinkeln und von dort 15 cm runtermessen
- Höhe Beckenknochen messen
- z. B. Bügelbrett nehmen und in verschiedenen Höhen Probeschnippeln und messen, wenn es einem am bequemsten erscheint. Sich Vorbeugen, dann ist's zu niedrig, die Schultern hochziehen, dann ist's zu hoch.
Idealerweise ergeben alle 3 Methoden ca. denselben Wert

Ihr müsst es halt austesten. Die größere Person kann sich auch ein dickes Schneidbrett unterlegen und so ein wenig Höhe ausgleichen.
 
AW: Küchen-Neulinge

Vielen Dank für Eure Anfragen.

Bzgl. des ALNO -Küchenplaners:

Das Betriebssystem ist Windows 7 Home Premium. Der Fehler heißt Runtime error 217 at 00630BFB. Bei Google haben wir bei Eingabe des Fehlers leider nichts Hilfreiches gefunden. Hm, der IKEA -Planer hat auf dem Rechner funktioniert, nur hatten wir uns dann doch entschieden in die professionellen Hände eines Küchenstudios zu begeben - mit bekanntem Ergebnis.

Nun funktioniert hier auf dem Rechner gerade nicht soviel, die angefertigte Skizze zur Küche und Wohnraum kann gerade nicht hochgeladen werden.:( Ich hoffe, dass ich Euch gleich die nötigen Daten zur Verfügung stellen kann.

Liebe Grüße,
Kombüsenjung
 
AW: Küchen-Neulinge

Hmm, ich habe den Grundriss mit allen Massen in Word gezeichnet, aber irgendwie gibt es immer eine Fehlermeldung beim Hochladen (auf 2 verschiedenen Rechnern). Ist es nicht möglich eine doc-Datei hochzuladen oder habe ich hier weitere Probleme?

Oh man, sorry für diesen Start!
 
AW: Küchen-Neulinge

Eine doc-Datei geht meines Wissens nicht. Du kannst aber die doc in pdf umwandeln.

Die doc Datei drucken und als Drucker pdf wählen (kann man runterladen, falls nicht vorhanden) dann wird die Datei in pdf umgewandelt.

Die Datei kannst du dann anhängen.

Bezgl. deiner Fehlermeldung Runtime error 217 at 00630BFB:
Starte mal den Alnoplaner im Kompatibilitätsmodus für Windows XP SP3, dann dann sollte die Fehlermeldung nicht mehr kommen und die Software startet hoffentlich normal.

Alnoplaner.jpg
 
AW: Küchen-Neulinge

Hallo zusammen,

So nun anbei schon mal ein einfacher Grundriss unseres Wohnzimmers und der Küche. Leider haben sich hier 1-2 kleine Fehler eingeschlichen, die ich erst morgen korrigieren kann. Oben rechts sind es nicht 1,44m, sondern 1,85m und die Tiefe der kleinen Wand in der Küche zum Wohnzimmer ist nicht 0,6m, sondern 0,65m.

Anosnten kann man die Bereiche gut erkennen.. Meine Freundin möchste gerne die kleine 0,65m lange Wand durch eine Lösung verlängern, die unten Staufläche und oben eine weitere Arbeitsfläche schafft. Ich habe hier Angst, dass wir uns einengen und die Laufwege in die Küche zu lang werden.

Das mit dem ALNO -Planer werde ich morgen auch nochmal versuchen (werde allerdings erst abends dazu kommen). Den Rechner muss ich wohl unbedingt mal aufmöbeln...

Liebe Grüße,
Kombüsenjung
 

Anhänge

  • Grundriss_Wohn-Essbereich und Küche_Jan2014.pdf
    201,9 KB · Aufrufe: 553
AW: Küchen-Neulinge

Bei so einem schönen vermaßten Grundriss ....:top::rose:

Hier ist schon mal der Alno Grundriss. Bitte kontrolliere ihn nochmal:-)

Das Fenster in der Küche muss noch angepasst werden. RBRH und FBRH sagen mir nix (Rohbau/Fertigmaß):-[
 

Anhänge

  • Grundriss.jpg
    Grundriss.jpg
    37,5 KB · Aufrufe: 253
  • Grundriss.POS
    4,2 KB · Aufrufe: 267
  • Grundriss.KPL
    3,9 KB · Aufrufe: 256
AW: Küchen-Neulinge

Hallo Tara,

vielen Dank für den Start.

Ich habe dank der Tipps von Snow (vielen Dank dafür!!) den ALNO -Planer generell zum Laufen bekommen. Aber Deine Dateien lassen sich leider nicht öffnen. Gibt es da wieder spezielle Tipps? Hm, so richtig voran geht das bei uns ja nicht, habe leider mehr mit der It als mit der Küche zu kämpfen.

Daher kann beim Grundriss leider nicht die exakten Maßstäbe prüfen, aber die gerundsätzliche Form passt:-)

LG,
Kombüsenjung
 
AW: Küchen-Neulinge

Moin Kombüsenjung,

Alnodateien auf den PC laden und öffnen...

- Datei mit der rechten Maustaste anklicken - Datei speichern unter.... - in einem Ortner speichern, damit du die Dateien wiederfindest - Alnoplaner starten - oben links Planung öffnen anklicken - Datei auswählen und los gehts... :cool:
 
AW: Küchen-Neulinge

Sind das eigentlich Rohbaumaße?
 
AW: Küchen-Neulinge

So nun haben ich es tatsächlich geschafft, die ALNO-Dateien zu öffnen. Ich habe den Grundriss leicht angepasst, allerdings ist es mir nicht gelungen, die Maße exakt zu bestimmen. Die Tür wollte auch nicht so wie ich das wollte :-[ Die Maße (m.E Rohbaumaße) könnt Ihr dem ebenfalls anghängten PDF entnehmen (Differenzen von wenigen cm).

Ich denke, dass es im Wohnraum jetzt nicht auf den exakten cm ankommt, aber in der Küche passen die Werte 2,45m, 2,55m und 0,65m, da wir diese exakt dem Plan entnehmen können. Und in diesen Raum muss die zu planende Küche passen.

Habt Ihr bei der recht kleinen Küche evtl. schöne Ideen?

Liebe Grüße,
Kombüsenjung
 

Anhänge

  • Grundriss Neu.POS
    4,4 KB · Aufrufe: 263
  • Grundriss_Wohn-Essbereich und Küche_Jan2014(1).pdf
    4,8 KB · Aufrufe: 311
AW: Küchen-Neulinge

zur POS Datei gibt es auch immer eine gleichnamige KPL Datei,die brauchen wir auch !
 
AW: Küchen-Neulinge

Wenn wir mit 245 x 255cm rechnen können und der Sanitäranschluss wirklich vollkommen variabel ist, könnte es sich mit viel Glück ausgehen, dass wir in der Spülenzeile mit 70cm tiefen Schränken arbeiten können. Das ist eine Übertiefe, die es z.B. bei Schüller gibt. Ob es nachher wirklich passt, muss ein Aufmaß ergeben.
Vielleicht kannst du im Vorwege ja noch ein bisschen Einfluss drauf nehmen, das die Küche anstatt 255cm, 260cm breit gebaut wird. ???

Für viel Stauraum habe ich die Hängeschränke so hoch wie möglich gewählt und den Kühlschrank mit einem Aufsatz versehen. Ganz oben im Schrank können dann Dinge verstaut werden, die man selten benötigt.

Als DAH habe ich an einen Lüfterbaustein gedacht.

- Blende
- 45er Unterschrank , wenn möglich 70cm tief
- 50er Spülenschrank, wenn möglich übertief
- 80er Unterschrank, wenn möglich übertief
- tote Ecke
- Herd
- GSP
- Kühlschrank
- Blende

Oberschränke

Blende - 45 - 100 - 50 - tote Ecke mit Wange zum Höhenausgleich - Maßausgleichsregal - 90 - 45
 

Anhänge

  • kobüsenjunge.jpg
    kobüsenjunge.jpg
    36 KB · Aufrufe: 248
  • kobüsenjunge1.jpg
    kobüsenjunge1.jpg
    42,7 KB · Aufrufe: 243
  • kobüsenjunge2.jpg
    kobüsenjunge2.jpg
    40,8 KB · Aufrufe: 272
  • kombüsenjunge - conny.KPL
    3,9 KB · Aufrufe: 243
  • kombüsenjunge - conny.POS
    8 KB · Aufrufe: 273
  • kobüsenjunge grundriss.JPG
    kobüsenjunge grundriss.JPG
    22,7 KB · Aufrufe: 251
AW: Küchen-Neulinge

Hallo Conny,

vielen lieben Dank für Deinen Entwurf und sorry für die späte Antwort.

Zu den verschiedenen Punkten:

- Grundrisse (Rohbaumasse) sind nun fix, da lässt sich auch im cm-Bereich nichts mehr ändern
- Im Küchenstudio (wir haben es gestern in einem weiteren versucht) wurde uns erzählt, dass die Spüle in jedem Fall auf der 2,55m Seite installiert werden müsste, da dahinter das Bad liegt. Ein Verlegung des Wasseranschlusses soll immer mit Problemen behaftet sein. Ich werde hier nochmal bei der Architektin nachfragen. Beim Grundriss habe ich nochmal bei Dateien (KPL, POS) angehängt.

Deine Planung:
- Die vielen Hochschränke werden wohl aufgrund des Stauraums notwendig sein. Ich würde diese Schränke immer noch gerne auf eine Seite beschränken, da es mir ansonsten zu voll/gedrungen aussieht. Meine Freundin plädiert deutlich für den Stauraum.
- Der Kühlschrank in der Ecke mit einem Fach darüber ist m.E wirklich schon entschieden. Einzige Alternative wäre wohl direkt an der kleinen 0,65m Wand. Diese wollen wir aber gerne etwas mit einer weiteren Arbeitsplatte (und Stauraum darunter) verlängern umso mehr Arbeitsplatte zu haben. In dem Fall kann der Kühlschrank m.E. nur an der von Dir gewählten Stelle stehen.

- Wofür benötigen wir denn die Übertiefe und legen wir uns damit nicht bereits auf einen Anbieter fest? Sieht es gut aus, wenn die Arbeitsfläche so 5cm über der kleinen Wand hinaussteht?
- Gibt es bei der Ecke nicht so intelligente Ecklösungen oder sind die sehr teuer? Bei der Ecke sehe ich zudem das Problem das Herd und Unterbauschränke sich nicht gleichzeitig öffnen lassen, oder?

Wir haben gestern bei einer groben Planung (exakte erst beim nächsten Termin) überlegt, ob ein 2. Hochschrank (Backofen über Spüle) links neben dem Kühlschrank
Sinn macht. M.E wirkt das wieder zu massig und kostet extrem Arbeitsfläche, aber es wäre natürlich einiges an Stauraum gewonnen.

"Problembereich 1" unserer Wünsche scheint aber zu sein, wie man es clever schafft, eine weitere Arbeitsfläche von 0,65 in Richtung Fenster (Länge 0,6m bis 0,8m) in die Küche, aber vor allem auch in Richtung Wohnzimmer zu integrieren. Von dort soll es natürlich auch gut aussehen. Diese Verlängerung ist uns aber wichtig, da wir so bei Besuch auch wirklich den Vorteil der offenen Küche "ausleben" könnten.

Wie seht Ihr diese Punkte?

Liebe Grüße,
Kombüsenjung
 

Anhänge

  • Grundriss 17.1 Neu.KPL
    3,9 KB · Aufrufe: 247
  • Grundriss 17.1 Neu.POS
    4,4 KB · Aufrufe: 246
AW: Küchen-Neulinge

Habt ihr mal mit dem Architekten gesprochen, ob die Brüstungshöhe tatsächlich nur 70cm ist? Wenn das Fenster doch höher sässe, dann könnte man einen 2-Zeiler möblieren- das gäbe ein deutliches Plus an Stauraum und Arbeitsfläche.
 
AW: Küchen-Neulinge

Die Brüstungshöhe ist fix und in der Tat ein Ärgernis. Unsere erste Idee ohne jegliche Erfahrung war auch direkt eine weitere Arbeitsplatte am Fenster zu plazieren, aber das geht nun leider nicht. Ich versuche mich darüber auch nicht mehr zu ärgern...

Einzige Idee wäre einen solche tiefes Element dort hinzustellen, was auch als spontane Sitzgelegenheit benutzt werden könnte (2 Kissen drauf und fertig). Könnte die Küche aber auch wieder sehr eng mach ohne weiteren Arbeitsbereich zu gewinnen.
 
AW: Küchen-Neulinge

Die Verlegung der Sanitäranschlüsse auf Putz, sollte eigentlich kein Problem bereiten, das wird häufig so gemacht. Welche Probleme soll es damit denn laut Küchenstudio geben?

Eine Ecklösung ist immer teurer als eine gerade Zeile, eine zusätzliche Arbeitsfläche von nur 60cm, bringt einen gefühlten Stauraumverlust mit sich und wird nixig aussehen. Der 80er U-Schrank kann dann nur ein 60er werden. Gerade die breiten U-Schränke, lassen sich staraumtechnisch besser nutzen, wie die schmaleren.
Mindestmaß für ein Inselschrank sollte deshalb schon 80cm sein, besser etwas mehr.

Ein übertiefer Unterschrank bringt einen Stauraumvorteil mit sich. Hier mal ein Vergleich aus meiner Küche, normaltief und übertief, allerdings mit 75cm übertiefe...

- -

Hinzu kommt noch, das eine übertiefe APL dir mehr Arbeitsfläche verschafft. ;-)

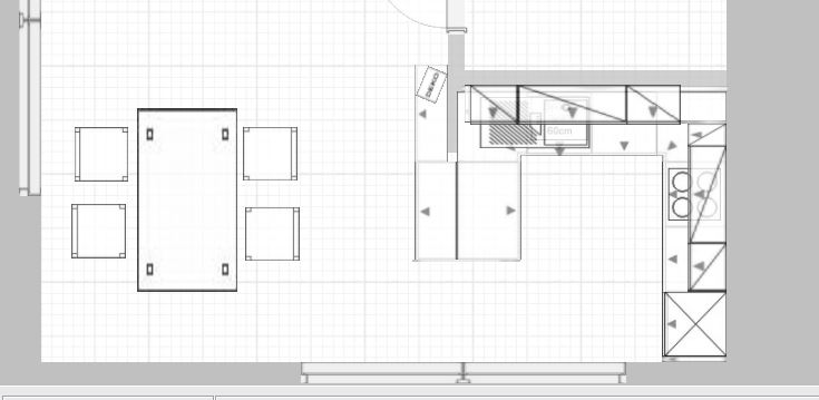
Ich hab dir jetzt mal eine Planung mit Inselchen gemacht. Dafür habe ich ein 90er Unterschrank verwendet, nicht übertief, um auf der Inselrückseite noch Raumteilerschränke unterbringen zu können. Diese haben Hängeschranktiefe und sind ideal für Geschirr.
Um nicht zu weit in den Wohnraum zu gelangen, habe ich den einen Raumteiler in Richtung Tür tiefengekürzt. Auch hier lassen sich noch allerhand Dinge verstauen, wie z.B. Frühstücksutensilien, Frühstücksbretter, Toaster, Butter, evtl. Nutella, Servierten, Kerzen oder auch Gläser.

Die Zeilen habe ich an sich so gelassen, die Spüle ist in dieser Planung von den Arbeitsabläufen her, einfach an der 245cm langen Wand besser aufgehoben.
Gemüse waschen - schnibbeln auf der Insel - kochen

Als U gestellt, eignet sich die Küche nicht ideal zum kochen mit Gästen, die Küche ist einfach zu klein. Aber auch als L, ist sie auf Grund der wenigen Arbeitsfläche, nicht ideal dafür. ;-) Schnibbelhilfe kann aber auf der Inselrückseite, sehr gut stattfinden.

Das Schränke die über Eck gehen, sich gegenseitig blockieren, hast du gut erkannt, darum versuchen wir in den Planungen, möglichst Ecken zu vermeiden, aber ich denke bei dieser Küchengröße muss man einfach kompromissbereit sein.
Eine Kombüse, bleibt eine Kombüse...;-)
 

Anhänge

  • kobüsenjunge grundriss.JPG
    kobüsenjunge grundriss.JPG
    39 KB · Aufrufe: 237
  • kombüsenjunge - conny mit Insel.KPL
    3,9 KB · Aufrufe: 248
  • kombüsenjunge - conny mit Insel.POS
    9,4 KB · Aufrufe: 246
  • kombüsenjunge.jpg
    kombüsenjunge.jpg
    37,1 KB · Aufrufe: 277
  • kombüsenjunge1.jpg
    kombüsenjunge1.jpg
    23,3 KB · Aufrufe: 245
AW: Küchen-Neulinge

Hallo Conny,

sehr interessante Insellösung. Vielen Dank!

Zu den einzelnen Punkten:

-Ok, die Fotos wissen bzgl. der Stauraumvorteile bei Übertiefe echt zu überzeugen. Haben das viele Marken im Programm - du erwähntest Schüller . Ist die Marke ok und wo gäbe es die denn?

-Kochen mit Gästen: Zusammen kochen war auch tatsächlich im Sinn von "Schnibbelhilfen" gedacht. Dafür ist die Insellösung gut geeignet und wenn es auch nur zum quatschen und anstossen taugt. Zumindest kann der Koch integriert werden.

- Dein Argument, dass eine zusätzliche Arbeitsplatte von < 0,8m rein optisch nicht überzeugen würde, klingt wirklich plausibel. Zusätzlicher Stauraum wäre wohl auch nicht gewonnen, da bei Deiner Planung ja der Unterbau neben der Spüle verloren wäre.

- Insellösung: Die Lösung sieht wirklich schon mal toll aus. Auch die Tiefenkürzung ist m.E. sehr sinnvoll, da ich den Wohnraum nicht zu sehr durch die Küchenbauten verkleinern will. Aber die Maße im Planer verstehe ich nicht ganz. Die Insel (Richtung Wohnzimmer) hat eine Tiefe von 39cm, der tiefengekürzte Bereich 31,5cm. Stimmt das? Das würde eine Wanddicke von 7,5 cm bedeuten - die Wand ist aber eigentlich 15 cm dick. Übersehe ich hier was?
Gibt es eigentlich Schränke, die eine derart geringe Tiefe aufweisen? Die Idee finden wir nämlich toll.

Bzgl. des Unterbauschranks/Arbeitsfläche in Richtung Küche (90 cm lang/60cm tief): Dieser Schrank verbaut einem ja den Stauraum neben der Spüle (wie oben beschrieben). Macht es vielleicht Sinn den Schrank wegzunehmen und nur die 39cm tiefen Schrank zu behalten. Dann wäre die Küche geräumiger und das gesamt "L" wäre bzgl. Stauraum zu nutzen. Allerdings sähe eine 39cm tiefe Arbeitsplatte in der Mittel als Insel wohl etwas lächerlich aus. Gibt es hier noch andere kreative Lösungen?

- Ecklösung: Gibt es bei den Eckschränken neben den Kosten noch andere Nachteile? Gerade weil es so eine Kombüse ist, wollen wir jede Fläche nutzen und würden die Mehrkosten einer solchen Ecklösung auch tragen. Vermeiden können wir die Ecke ja leider nicht.

- Position Spüle/Herd: Bis jetzt befindet sich in unserer Wohnung die Arbeitsfläche zwischen Spüle und Herd. Gefühlt hätten wir gedacht, dass es sinnvoller ist, die Arbeitsfläche neben dem Herd zu haben und nicht neben der Spüle. Hm, da müssen wir in den nächsten Tagen wohl noch mal intensiver drauf achten.

Macht es denn von der Stellung zum Fenster einen Unterschied? Bis jetzt stehen wir immer seitlich zum Fenster, in Zukunft ist eine Wand ja gegenüber dem Fensterr, so dass man beim Arbeiten mit dem Rücken zum Fenster steht. Müssen wir mal überlegen, ob wir das lieben beim Spülen oder kochen der Fall sein sollte.

Leider werde ich die Woche wohl nur spät abends antworten können - ich versuche auf jeden Fall mich auch besser mit dem ALNO-Planer auszukennen. Eben hat dort auch sehr viel ROT geblinkt - keine Ahnung was das bedeutet.

Vielen Dank schon mal für die bisherige Unterstützung!

Liebe Grüße,
Kombüsenjung
 
Neff Hausgeräte Ballerina Küchen Blum Bewegungstechnologie Weibel - Intelligente Küchenlüftung

Neff Spezial

Blum Zonenplaner

Weibel Abluft-Tuning

Weibel Abluft-Tuning
Zurück
Oben