fizzy_bubbele
Mitglied
- Beiträge
- 1
Küche in Neubau EFH
Hallo Liebe Forengemeinde,
wir planen momentan die Küche für unser Neubauprojekt mit Fertigstellung Dez. 2022 (hoffentlich
).
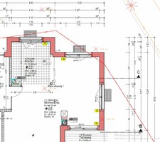
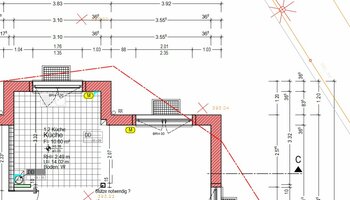
Uns schwebt eine Küche in U-Form vor mit einer offenen breiten Arbeitsplatte mit Kochfeld hin zum Essbereich. Idealerweise mit Auszügen oder Türen in Richtung Essbereich.
Wir müssen wie im Bauplan eingezeichnet eine 15x15cm Stahlstütze irgendwie optisch ansprechend integrieren und einen Wäscheabwurfschacht vom OG in den Keller hinter einem Küchenelement verschwinden lassen.
Wir haben zwar einen Keller allerdings keine Speisekammer,daher sollte möglichst viel Stauraum auch in der Küche vorhanden sein
Wir haben jetzt schon 3 Möbelhäuser und einen Plana Planer "hinter uns" und waren doch überrascht wie intransparent so eine Küchenplanung sich gestaltet, wenn man noch keinen Kaufvertrag unterschrieben hat. So richtig zufrieden waren wir mit den bisherigen Planungen auch nicht.
Es wäre wirklich toll, wenn wir hier ein paar Anregungen und auch Kritik zu unseren bisherigen Plänen erhalten könnten.
Checkliste zur Kuechenplanung
Personenkriterien und Ergonomie
Anzahl Personen im Haushalt: 3
Davon Kinder: 1
Körpergrößen aller Hauptbenutzer in cm (wegen Arbeitshoehe): 175, 167
Welche Arbeitshöhe ist angedacht (in cm)?: 93
Gebäudekriterien
Art des Gebäudes: Neu-/Umbau > Planänderungen möglich
Bruestungshöhe des Fensters (in cm): 100
Fensterhöhe (in cm): 135
Raumhöhe in cm: 250
Heizung: Fußbodenheizung
Sanitäranschlüsse: vollkommen variabel
Einbaugerätekriterien
Ausführung Kühlgerät: Integriert im Hochschrank (60cm)
Einbaukühlgerät Größe: 178cm
Ausführung Tiefkühl (TK)-Gerät: Im Kühlschrank als kleines Fach oben
Dunstabzugshaube: Umluft
Hochgebauter Backofen : ja
Geplante Heißgeräte: Dampfgarer ohne Wasseranschluß, Backofen
Hochgebauter Geschirrspüler : nein
Art des Kochfeldes: Induktionskochfeld
Kochfeldbreite (ca. in cm): 80-90
Sitzmöglichkeiten
Sitzmöglichkeit in der Küche / im Küchenbereich: Keine
Sitzmöglichkeit: Für wieviel Personen?: nein
Sitzmöglichkeit: Tisch - wenn gesonderter Tisch oder offene Küche: Vorhandener Tisch
Gewünschte oder vorhandene Tischgröße: 220
Wofür soll der Sitzplatz in der Küche genutzt werden und wie häufig: N. a.
Stauraum-Planung
Was steht auf der Arbeitsplatte oder soll dort stehen?: Kaffeemaschine, Wasserkocher, Messerblock, Brotbehälter
Welche weiteren Küchenmaschinen müssen in der Küche untergebracht werden: N. a.
Was soll in der Küche außer den Standards untergebracht werden: Geschirr komplett (nichts in Ess-/Wohnzimmer)
Welchen Stauraum gibt es sonst noch: Keller
Kochgewohnheiten
Was/wie wird gekocht? (Alltagsküche, Menüs, Snacks usw): Alltagsküche, Weihnachtsmenüs, gerne auch Aufwändiger
Wie häufig wird gekocht: (fast) täglich 1x warm
Wird alleine gekocht? Oder auch gemeinsam? Mit und für Gäste?: In der Regel zu zweit, manchmal auch mit Freunden
Spülen und Müll
Spülenform: 1 Becken mit Abtropffläche
Welche Mülltrennung soll in der Küche vorgehalten werden: Biomüll, Gelber Sack Müll, Restmüll
Sonstiges
Steht schon ein Küchenhersteller fest oder wird bevorzugt: evtl. Nolte oder Nobilia , generell aber noch unentschlossen
Steht schon ein Gerätehersteller fest oder wird bevorzugt: Siemens ,Bosch , Neff - Preis-/Leistung ist uns wichtiger als Hersteller
Küchenstil: Klassisch
Was stört an der bisherigen Küche und was soll die neue Küche unbedingt können? Warum?: -
Preisvorstellung (Budget): 15.000 - 20.000€
Angehängte Dateien
Hallo Liebe Forengemeinde,
wir planen momentan die Küche für unser Neubauprojekt mit Fertigstellung Dez. 2022 (hoffentlich
Uns schwebt eine Küche in U-Form vor mit einer offenen breiten Arbeitsplatte mit Kochfeld hin zum Essbereich. Idealerweise mit Auszügen oder Türen in Richtung Essbereich.
Wir müssen wie im Bauplan eingezeichnet eine 15x15cm Stahlstütze irgendwie optisch ansprechend integrieren und einen Wäscheabwurfschacht vom OG in den Keller hinter einem Küchenelement verschwinden lassen.
Wir haben zwar einen Keller allerdings keine Speisekammer,daher sollte möglichst viel Stauraum auch in der Küche vorhanden sein
Wir haben jetzt schon 3 Möbelhäuser und einen Plana Planer "hinter uns" und waren doch überrascht wie intransparent so eine Küchenplanung sich gestaltet, wenn man noch keinen Kaufvertrag unterschrieben hat. So richtig zufrieden waren wir mit den bisherigen Planungen auch nicht.
Es wäre wirklich toll, wenn wir hier ein paar Anregungen und auch Kritik zu unseren bisherigen Plänen erhalten könnten.
Checkliste zur Kuechenplanung
Personenkriterien und Ergonomie
Anzahl Personen im Haushalt: 3
Davon Kinder: 1
Körpergrößen aller Hauptbenutzer in cm (wegen Arbeitshoehe): 175, 167
Welche Arbeitshöhe ist angedacht (in cm)?: 93
Gebäudekriterien
Art des Gebäudes: Neu-/Umbau > Planänderungen möglich
Bruestungshöhe des Fensters (in cm): 100
Fensterhöhe (in cm): 135
Raumhöhe in cm: 250
Heizung: Fußbodenheizung
Sanitäranschlüsse: vollkommen variabel
Einbaugerätekriterien
Ausführung Kühlgerät: Integriert im Hochschrank (60cm)
Einbaukühlgerät Größe: 178cm
Ausführung Tiefkühl (TK)-Gerät: Im Kühlschrank als kleines Fach oben
Dunstabzugshaube: Umluft
Hochgebauter Backofen : ja
Geplante Heißgeräte: Dampfgarer ohne Wasseranschluß, Backofen
Hochgebauter Geschirrspüler : nein
Art des Kochfeldes: Induktionskochfeld
Kochfeldbreite (ca. in cm): 80-90
Sitzmöglichkeiten
Sitzmöglichkeit in der Küche / im Küchenbereich: Keine
Sitzmöglichkeit: Für wieviel Personen?: nein
Sitzmöglichkeit: Tisch - wenn gesonderter Tisch oder offene Küche: Vorhandener Tisch
Gewünschte oder vorhandene Tischgröße: 220
Wofür soll der Sitzplatz in der Küche genutzt werden und wie häufig: N. a.
Stauraum-Planung
Was steht auf der Arbeitsplatte oder soll dort stehen?: Kaffeemaschine, Wasserkocher, Messerblock, Brotbehälter
Welche weiteren Küchenmaschinen müssen in der Küche untergebracht werden: N. a.
Was soll in der Küche außer den Standards untergebracht werden: Geschirr komplett (nichts in Ess-/Wohnzimmer)
Welchen Stauraum gibt es sonst noch: Keller
Kochgewohnheiten
Was/wie wird gekocht? (Alltagsküche, Menüs, Snacks usw): Alltagsküche, Weihnachtsmenüs, gerne auch Aufwändiger
Wie häufig wird gekocht: (fast) täglich 1x warm
Wird alleine gekocht? Oder auch gemeinsam? Mit und für Gäste?: In der Regel zu zweit, manchmal auch mit Freunden
Spülen und Müll
Spülenform: 1 Becken mit Abtropffläche
Welche Mülltrennung soll in der Küche vorgehalten werden: Biomüll, Gelber Sack Müll, Restmüll
Sonstiges
Steht schon ein Küchenhersteller fest oder wird bevorzugt: evtl. Nolte oder Nobilia , generell aber noch unentschlossen
Steht schon ein Gerätehersteller fest oder wird bevorzugt: Siemens ,Bosch , Neff - Preis-/Leistung ist uns wichtiger als Hersteller
Küchenstil: Klassisch
Was stört an der bisherigen Küche und was soll die neue Küche unbedingt können? Warum?: -
Preisvorstellung (Budget): 15.000 - 20.000€
Angehängte Dateien
Anhänge
