Unbeendet Küche im Neubau - Backofen und Dampfgarer

Mado

Mitglied
Beiträge
1
Hallo Küchenforum,

Meine Lebensgefährtin und ich sind gerade am Hausplanen und beim Thema Küche angelangt.

Wir zeichnen schon gefühlte 3 Monate an unserer Küche rum,waren schon in allen Möbelhäusern dies in unserer Nähe gibt kommen aber leider selbst nicht auf die "ultimative" Lösung.

Rausgekommen sind nur "Solala-Ergebnisse" .

Die Küche soll zum kochen und essen genutzt werden, ein seperates Esszimmer haben wir keines.

Backofen hätten wir gern auf normaler Höhe und den Dampfgarer darüber(falls sowas gibt)

Fenster und Türen bzw Wände sind noch frei zu positionieren (der grunsätzliche Hausplan sollte aber schon so bleiben :-) )

Ich hoffe ich hab keine Infos vergessen.

Danke für euere Mühen

lg Mado


Checkliste zur Küchenplanung von Mado

Anzahl Personen im Haushalt : 2
Davon Kinder? : keine
Körpergrössen aller Hauptbenutzer (wegen Arbeitshöhe ) in cm : 155cm(Chefkoch) 185cm(Helfer) :-)
Art des Gebäudes? : Neu-/Umbau, Planänderungen möglich
Brüstungshöhe des Fensters (in cm) : variabel
Fensterhöhe (in cm) : variabel
Raumhöhe in cm: : ca.255 cm
Heizung : Fussbodenheizung
Sanitäranschlüsse : vollkommen variabel
Ausführung Kühlgerät? : Integriert im Hochschrank
Kühlgerät Größe : noch unbekannt
Ausführung Tiefkühl (TK)-Gerät : Nicht erforderlich bzw. steht woanders
Dunstabzugshaube? : Umluft
Hochgebauter Backofen ? : Ja
Hochgebauter Geschirrspüler ? : nein
Kochfeldart? : Ceran (herkömmlich)
Kochfeldbreite ca. (in cm)? : das vorhandene hat 60cm
Spülenform: : 1,5 Becken mit Abtropffläche
Weitere geplante Heißgeräte : Dampfgarer ohne Wasseranschluß
Küchenstil? : Landhaus
Sitzmöglichkeit in der Küche / im Küchenbereich als : Gesonderter Tisch
Sitzmöglichkeit: Für wieviel Personen? : für 5 Personen
Sitzmöglichkeit: Tisch - wenn gesonderter Tisch oder offene Küche : Wird nach Bedarf neu gekauft
Gewünschte o. vorhandene Tischgröße : 90*180 ca
Wofür soll der Sitzplatz in der Küche genutzt werden? Wie häufig? : Zum Essen, tgl
Welche Arbeitshöhe ist angedacht (in cm)? : 80cm für die Köchin und ca 92 cm für den Helfer (ermittelt mit der Bügelbrettmethode)
Was steht auf der Arbeitsplatte oder soll dort stehen? : Kaffeemaschine, Brotbehälter
Welche weiteren Küchenmaschinen müssen in der Küche untergebracht werden? :
Was soll in der Küche außer den Standards untergebracht werden? : Geschirr komplett (nichts in Ess-/Wohnzimmer)
Welchen Stauraum gibt es sonst noch? : Speisekammer, Keller
Was/wie wird gekocht? (Alltagsküche, Menüs, Snacks usw) : Alltagsküche
Wie häufig wird gekocht? : (fast) täglich 1x warm
Wird alleine gekocht? Oder auch gemeinsam? Mit und für Gäste? : alleine und zu zweit
Was stört an der bisherigen Küche und was soll die neue Küche unbedingt können? Warum? : kein vernüftiger Platz zum essen, Kochen und essen in einem Raum
Preisvorstellung (Budget) : bis 10.000,-

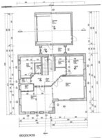
Küchenplan gehört zum Hausplan(oben Norden) um 90° gedreht, werde es noch umzeichnen, muss jetzt wieder einmal ins Küchenstudio
 

Anhänge

  • Scan_Pic0004.jpg
    Scan_Pic0004.jpg
    45,4 KB · Aufrufe: 212
  • PLAN-grundriss1.KPL
    4,1 KB · Aufrufe: 167
  • PLAN-grundriss1.POS
    5,6 KB · Aufrufe: 177
AW: Küche im Neubau

:welcome: Mado

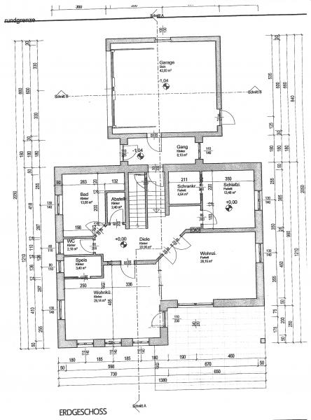
Das sieht soweit Grosszügig aus; allerdings finde ich Schlafzimmer und Bad zuweit voneinander entfernt ich würde das Haus so aufteilen, dass Du Bad en suite zum Schlafzimmer hast (da wo jetzt Schlafzimmer ist Bad & Ankleide; und teile vom Wohzi zum Schlafzimmer machen.) Mit Gästen im Haus, oder einer ist krank und hat Brechdurchfall - oder man ist Fieberschwach und schwindelig... da will man doch nicht erst durchs Treppenhaus laufen müssen :-[)

Das jetzige Bad wird zur Speisekammer, Abstell & Gästeklo; davor dann Küche & Essen - oder die Geschichte Spiegelverkehr, falls euch das lieber wäre ...

Sind die Arbeitshöhen als maximal-Höhen ausgetestet? 80cm ist sehr niedrig - dafür gibts auch kaum Unterschränke von der Stange.

Ausführlicher in Optimale Arbeitshöhen beschrieben.

Hier sind mal klassische Korpushöhen und Rastermasse nachzusehen; im Herstellerranking könnt ihr nachschauen, welcher Hersteller, was genau im Angebot hat.
Korpushöhen - Rastermaße - Auszugs-Innenmaße - Stauraumplanung

Bei Heissgeräten sollte die oberste Schiene nicht höher als Schulterhöhe sein - darüber ist sicheres Heben nicht mehr gegeben - bitte messt das mal für euch beide nach, und einigt euch auf die maximal Höhe.

Von eurem Küchenentwurf solltet ihr ein paar aussagekräftige Ansichten und den Alno -Grundriss einhängen, so wie wir das auch machen. Nicht jeder (vorallem die Profis und die Appel-Nutzer) haben den Alnoplaner installiert und selbst wenn man den Planer installiert hat, möchte man nicht für einen ersten Eindruck die Dateien runterladen und den Planer starten müssen.
 
AW: Küche im Neubau

....hm, aber wenn Du Bad und Schlafzimmer zusammenlegst, dann hast Du nicht mehr diesen tollen Wohnzimmer-/Wohnküchen-Effekt. Schwierig.

Bei der Arbeitshöhe würde ich an 88 oder 89 cm denken, dann kommt Ihr auch mit den Standardkorpussen der Hersteller hin. Wie groß seid Ihr?
 
AW: Küche im Neubau

Doch, Ulla das geht schon - von dem Haus steht ja auch noch garnichts - die Verkehrswege fressen bei dem Grundriss ja auch sinnlos viel Platz ... da entstehen hohe Kosten für nix.

Man kann auch das Bad lassen wo es ist und schliesst das Schlafzimmer an; Treppenhaus und Flur werden dann kleiner - das geht schon.
 

Ähnliche Beiträge

Neff Hausgeräte Ballerina Küchen Blum Bewegungstechnologie Weibel - Intelligente Küchenlüftung

Neff Spezial

Blum Zonenplaner

Weibel Abluft-Tuning

Weibel Abluft-Tuning
Zurück
Oben