blaues_reh
Mitglied
- Beiträge
- 5
Hallo,
wir planen eine Küche für unseren Neubau mit einem Fertighaushersteller. Der Grundriss steht soweit, wobei wir innenliegende nichttragende Wände noch verschieben können als auch Fenster und Türen verlegen etc.
Hierbei haben wir allerdings das Problem, dass wir nicht wissen,
Über den Dampfgarer entscheiden wir in Abhängigkeit der Gesamtkosten der Küche. Möchten ihn jedoch in der Küchenplanung berücksichtigen.
Ursprünglich wollten wir aufgrund des Budgets eine Ikeaküche, schwanken hierbei aber mittlerweile bzgl. der Qualität. Besuche in zwei Küchenstudios stehen die nächsten Tage an.
Über Verbesserungsvorschläge, Ideen zur Tür zur Speisekammer etc. würden wir uns sehr freuen. Sollten wir etwas vergessen haben, dann nur her mit den Fragen!
Vielen Dank und schöne Grüße
blaues Reh
Checkliste zur Küchenplanung von blaues_reh
Anzahl Personen im Haushalt : 3
Davon Kinder? : 1
Körpergrössen aller Hauptbenutzer (wegen Arbeitshöhe ) in cm : 160, 180
Art des Gebäudes? : Neu-/Umbau, Planänderungen möglich
Brüstungshöhe des Fensters (in cm) : 106
Fensterhöhe (in cm) : 110
Raumhöhe in cm: : 250
Heizung : Fussbodenheizung
Sanitäranschlüsse : vollkommen variabel
Ausführung Kühlgerät? : Integriert im Hochschrank (60cm)
Kühlgerät Größe : noch unbekannt
Ausführung Tiefkühl (TK)-Gerät : Nicht erforderlich bzw. steht woanders
Dunstabzugshaube? : Umluft
Hochgebauter Backofen ? : Ja
Hochgebauter Geschirrspüler ? : nein
Kochfeldart? : Induktion
Kochfeldbreite ca. (in cm)? : noch nicht festgelegt
Spülenform: : 1,5 Becken mit Abtropffläche
Weitere geplante Heißgeräte : Standmikrowelle, Dampfgarer ohne Wasseranschluß
Küchenstil? : modern
Sitzmöglichkeit in der Küche / im Küchenbereich als : Keine
Sitzmöglichkeit: Für wieviel Personen? : nein
Sitzmöglichkeit: Tisch - wenn gesonderter Tisch oder offene Küche : Vorhandener Tisch
Gewünschte o. vorhandene Tischgröße : 190x85 im angrenzenden Essbereich
Wofür soll der Sitzplatz in der Küche genutzt werden? Wie häufig? : kein Sitzplatz in der Küche geplant
Welche Arbeitshöhe ist angedacht (in cm)? : 92cm
Was steht auf der Arbeitsplatte oder soll dort stehen? : Kaffeemaschine, Kaffeevollautomat, Wasserkocher, Messerblock, Brotbehälter
Welche weiteren Küchenmaschinen müssen in der Küche untergebracht werden? : Toaster, Schneidemaschine (z. B. in Schublade), Handrührgerät, Pürierstab
Was soll in der Küche außer den Standards untergebracht werden? : Geschirr komplett (nichts in Ess-/Wohnzimmer)
Welchen Stauraum gibt es sonst noch? : Speisekammer, Keller
Was/wie wird gekocht? (Alltagsküche, Menüs, Snacks usw) : Alltagsküche
Wie häufig wird gekocht? : (fast) täglich 1x warm
Wird alleine gekocht? Oder auch gemeinsam? Mit und für Gäste? : auch gemeinsam
Was stört an der bisherigen Küche und was soll die neue Küche unbedingt können? Warum? : Möchten Küche mit Stauraum und viel Arbeitsfläche
Steht schon ein Küchenhersteller fest oder wird bevorzugt? :
Steht schon ein Gerätehersteller fest oder wird bevorzugt? : Siemens
Preisvorstellung (Budget) : bis 15.000,-
wir planen eine Küche für unseren Neubau mit einem Fertighaushersteller. Der Grundriss steht soweit, wobei wir innenliegende nichttragende Wände noch verschieben können als auch Fenster und Türen verlegen etc.
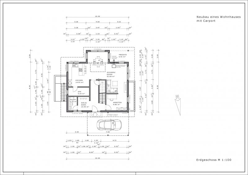
- Neben der Küche ist auch eine Speise-/Abstellkammer geplant. Bisher war der Zugang zur Kammer in der Küche, jedoch nach Lesen einiger Forumsbeiträge könnten wir uns den Zugang über den Flur vorstellen. Denn es wird keine reine Speisekammer sein, sondern auch Bügelbrett, Staubsauger etc. werden dort stehen. Im Anhang findet Ihr auch einen Grundriss des EG indem sich die Küche befindet. Es handelt sich um eine offene Küche. Der Essbereich grenzt direkt im Erker an die Küche an.
- Elektro- und Wasseranschlüsse sind flexibel.
Küchen kann (muss aber nicht) bis max. an das "Erkereck" geplant werden. - Checkliste ist ausgefüllt
- Erste Planungsideen befinden sich im Anhang, Beachtet bitte, dass diese mit Tür in der Küche zur Speisekammer gemacht worden sind. Der Zugang ist aber noch nicht final geplant…
Hierbei haben wir allerdings das Problem, dass wir nicht wissen,
- ob die Tür zur Speisekammer in die Küche oder in den Flur soll
- wie wir die linke Seite sinnvoll planen, insb. die beiden Ecken
Über den Dampfgarer entscheiden wir in Abhängigkeit der Gesamtkosten der Küche. Möchten ihn jedoch in der Küchenplanung berücksichtigen.
Ursprünglich wollten wir aufgrund des Budgets eine Ikeaküche, schwanken hierbei aber mittlerweile bzgl. der Qualität. Besuche in zwei Küchenstudios stehen die nächsten Tage an.
Über Verbesserungsvorschläge, Ideen zur Tür zur Speisekammer etc. würden wir uns sehr freuen. Sollten wir etwas vergessen haben, dann nur her mit den Fragen!
Vielen Dank und schöne Grüße
blaues Reh
Checkliste zur Küchenplanung von blaues_reh
Anzahl Personen im Haushalt : 3
Davon Kinder? : 1
Körpergrössen aller Hauptbenutzer (wegen Arbeitshöhe ) in cm : 160, 180
Art des Gebäudes? : Neu-/Umbau, Planänderungen möglich
Brüstungshöhe des Fensters (in cm) : 106
Fensterhöhe (in cm) : 110
Raumhöhe in cm: : 250
Heizung : Fussbodenheizung
Sanitäranschlüsse : vollkommen variabel
Ausführung Kühlgerät? : Integriert im Hochschrank (60cm)
Kühlgerät Größe : noch unbekannt
Ausführung Tiefkühl (TK)-Gerät : Nicht erforderlich bzw. steht woanders
Dunstabzugshaube? : Umluft
Hochgebauter Backofen ? : Ja
Hochgebauter Geschirrspüler ? : nein
Kochfeldart? : Induktion
Kochfeldbreite ca. (in cm)? : noch nicht festgelegt
Spülenform: : 1,5 Becken mit Abtropffläche
Weitere geplante Heißgeräte : Standmikrowelle, Dampfgarer ohne Wasseranschluß
Küchenstil? : modern
Sitzmöglichkeit in der Küche / im Küchenbereich als : Keine
Sitzmöglichkeit: Für wieviel Personen? : nein
Sitzmöglichkeit: Tisch - wenn gesonderter Tisch oder offene Küche : Vorhandener Tisch
Gewünschte o. vorhandene Tischgröße : 190x85 im angrenzenden Essbereich
Wofür soll der Sitzplatz in der Küche genutzt werden? Wie häufig? : kein Sitzplatz in der Küche geplant
Welche Arbeitshöhe ist angedacht (in cm)? : 92cm
Was steht auf der Arbeitsplatte oder soll dort stehen? : Kaffeemaschine, Kaffeevollautomat, Wasserkocher, Messerblock, Brotbehälter
Welche weiteren Küchenmaschinen müssen in der Küche untergebracht werden? : Toaster, Schneidemaschine (z. B. in Schublade), Handrührgerät, Pürierstab
Was soll in der Küche außer den Standards untergebracht werden? : Geschirr komplett (nichts in Ess-/Wohnzimmer)
Welchen Stauraum gibt es sonst noch? : Speisekammer, Keller
Was/wie wird gekocht? (Alltagsküche, Menüs, Snacks usw) : Alltagsküche
Wie häufig wird gekocht? : (fast) täglich 1x warm
Wird alleine gekocht? Oder auch gemeinsam? Mit und für Gäste? : auch gemeinsam
Was stört an der bisherigen Küche und was soll die neue Küche unbedingt können? Warum? : Möchten Küche mit Stauraum und viel Arbeitsfläche
Steht schon ein Küchenhersteller fest oder wird bevorzugt? :
Steht schon ein Gerätehersteller fest oder wird bevorzugt? : Siemens
Preisvorstellung (Budget) : bis 15.000,-
Anhänge
-
Plan3.jpg31,4 KB · Aufrufe: 193 -
Plan2_Ansicht2.jpg41,9 KB · Aufrufe: 186 -
Plan2_Ansicht1.jpg39,6 KB · Aufrufe: 195 -
Plan2_.jpg31,4 KB · Aufrufe: 189 -
EG_DIN_A3.pdf75,6 KB · Aufrufe: 735
-
PLAN3.POS11,1 KB · Aufrufe: 179
-
PLAN3.KPL3,9 KB · Aufrufe: 157
-
PLAN2.POS11 KB · Aufrufe: 184
-
PLAN2.KPL3,9 KB · Aufrufe: 159
-
Plan3_Ansicht.jpg39,1 KB · Aufrufe: 182
Zuletzt bearbeitet:
