Unbeendet Hilfe bei der Änderung eines Grundrisses in schmaler DHH mit "Tücken"

vielleicht stelle ich mich zu blöd an, aber kann man mal zusammenstellen, was änderbar ist und was nicht in Stichworten?
  • 100cm Wände entfernen oder versetzen?
  • Küche kann überall hin?
  • Terrassentür ist änderbar?
  • Flurtür versetzen?
  • Fensterposition flexibel?
es bleibt
  • Treppe
  • Couch 315x180
  • TV ja oder nein?
wo soll das Kleinkind spielen?
Lärmschutz ins OG ja, nein?
 
Hallo Evelin,

tut mir leid, dass ich wohl zu viele Fakten nacheinander oder aber zu viel auf einmal rausgehauen habe :-)
Also:
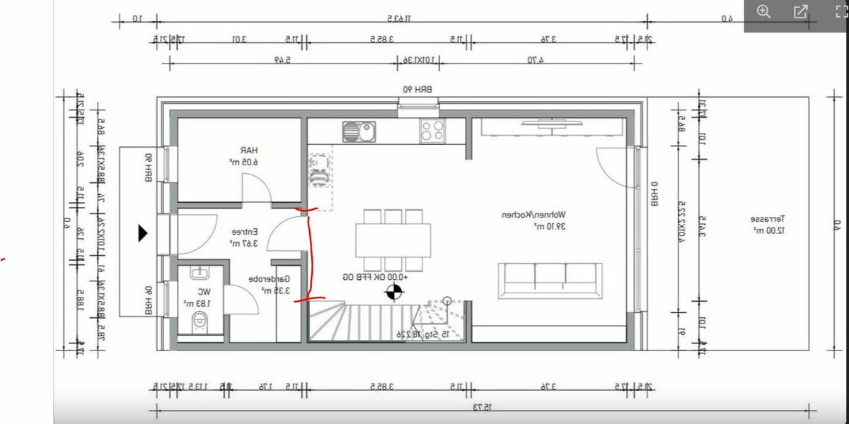
- 100 cm Wandstummel auf beiden Seiten müssen an der Position bleiben, Sie können aber jeweils verlängert oder verkürzt werden. D.h. sie MüSSEN zusammen 2m ergeben. zB ginge also auch eine Seite 1,3m und die andere 0,7.
- Die Küche kann nun anscheinend überall hin, ja.
- Terassentür ist änderbar, ich muss aber zB noch klären, ob auch eine Schiebehebetür eine Möglichkeit wäre (am Ende auch eine Kostenfrage).
- Die Flurtür kann im markierten Bereich (s. Anhang) versetzt werden.
- Lärmschutz ist ein extra Thema. Entweder die Planung ermöglicht am Ende eine komplett geschlossene Treppe inklusive Tür oder aber man zieht das Treppengeländer im 1. OG als Wand hoch. Oder aber bessere Türen in die Kinderzimmer setzen.
- Das Kind spielt dort, wo am Ende im UG Platz ist (klingt irgendwie nicht kinderfreundlich aber es ist ja nunmal auch kein Palast). Oben haben wir dann sehr viel Platz ;-)

-Treppe soll bleiben, gibt quasi keine andere Möglichkeit.
- Couch soll bleiben.
- TV soll bleiben.
LG
 

Anhänge

  • Markierung.JPG
    Markierung.JPG
    73,9 KB · Aufrufe: 201
Ich denke, eine L-Küche und ein etwas versetzter Zugang vom Flur aus , wie ich es in #6 skizziert habe, ist sehr wohl möglich. Damit bekommst du eine praktische Küche.
Man kann einen großen Esstisch ja auch mal als Arbeitsfläche hernehmen bei kulinarischen Großprojekten.
Nur eine Insel sehe ich in diesem Bereich nicht.

Wir haben übrigens früher in einem REH gewohnt, wo die Treppe auch so offen war und der Esstisch quasi davor stand. Ich fand das nie schlimm oder störend.
 
mich würd ja mal interessieren, welche Funktion diese Wandstummel haben sollen. Eine tragende Funktion kann es eigentlich nicht sein, dafür sind die Wände zu dünn. Außerdem bei der Hausbreite reichen die Beton-Deckenformteile von einer Hauswand bis zur nächsten.
 
das wäre mein Vorschlag

blitz1.jpgblitz5.jpgblitz2.jpgblitz3.jpgblitz4.jpg

ignoriere die Treppe in ihrer Form.
Grün ist die GSP Tür.
Wenn die Eingangstür da bleiben soll wie im Etagenplan, müsste einer der HS auf 45cm Breite gekürzt werden.
 

Anhänge

  • blitz-PLAN1.KPL
    3,9 KB · Aufrufe: 138
  • blitz-PLAN1.POS
    16,1 KB · Aufrufe: 150
Liebe Evelin,

danke für deine Planung! Ich kann die irgenwie nicht öffnen, es kommen immer zwei Fehlermeldungen? Habe die Version 20b. Ist da irgendwas bekannt oder mache ich irgendetwas falsch? :-) liebe Grüße
 

Anhänge

  • 976CAAD9-E33D-46C9-8AA9-B0740124EEBD.jpeg
    976CAAD9-E33D-46C9-8AA9-B0740124EEBD.jpeg
    76,7 KB · Aufrufe: 160
  • CE71B9CC-A72D-4A9E-9591-1C869414710E.jpeg
    CE71B9CC-A72D-4A9E-9591-1C869414710E.jpeg
    66,1 KB · Aufrufe: 156
sorry, ich erstelle meine Pläne mit der V15, man kann meine Pläne mit neueren Versionen nicht öffnen. Für Vielplaner sind die neueren Versionen zu Zeitaufwendung.

Die V15 gibt's im downloadbereich, läuft aber nicht auf allen windows laptops
 
Hallo alle zusammen!

Danke erst einmal für den Input vor 2 Wochen. Der Raumtausch ist zwar immer noch im Gespräch, wir sind trotzdem immer noch am überlegen, wie es auch ohne Tausch für uns am besten gelingen könnte um am Ende eine Wahlmöglichkeit zu haben.
Hintergrund der ganzen Überlegungen: ein ganz normales rational geplantes Küchen-L würde uns weder Müll direkt unter der Arbeitsfläche ermöglichen noch hätten wir genug Platz zum entspannten Kochen zusammen, da nur die Arbeitsfläche zwischen Herd und Spülbecken so richtig bleiben würde. Planrechts müsste nämlich auch unser Vollautomat unterkommen. Und am nervigsten ist und bleibt die Frage, wo der Esstisch vernünftig Platz finden würde. Egal wo ich ihn hinschiebe, stört er irgendwie. Deshalb die ganzen Überlegungen von Stummelzusammenführungen, Raumverschiebungen o. Ä. ;-) Wie gesagt, Raumtausch ist noch eine Option aber wir wollen trotzdem keine Möglichkeiten außen vorlassen.

Danke @Evelin für die ausführliche Raumgestaltung im Planer und die Erklärung! Die Version ist für uns aber mit dem Tisch und allem drumherum ein wenig zu eng.

Wir hätten nun insgesamt aber noch drei Ideen, die mit Änderungen am Grundriss einhergehen würden und die ich hier deshalb gerne kurz zur Diskussion stellen würde:

Version 1: Wir könnten eventuell die Treppe ein wenig Richtung Flurtür verschieben, sodass man ab einer gewissen Stufenhöhe noch ein wenig darunter sitzen könnte (also sodass die letzten Stufen vielleicht knapp über dem Tisch wären). Die beiden Wandstummel könnte man dann an der Küchenseite planoben zusammenführen. Dann hat man Platz für eine kleine Kochinsel.

Version 2: Auch hier Treppe verschoben, Wandstummel zusammengeführt aber zwischen den Stummeln ein schmales bodentiefes Fenster für ein wenig mehr Licht und Luft eingefügt. Hier könnte man dann ganz gut eine Insel an den einen Stummel andocken. Esstisch wieder ansatzweise unter der Treppe.

Version 3: Dem HWR hinter der Küchenzeile planlinks einen Meter "klauen" (hätten wir keine Schmerzen mit) und die Küche somit einrücken. Wandstummel auf der Seite der Treppe zusammenführen. Dann hätte man genug Licht am Esstisch und in der Küche. Man könnte (wohlmöglich) dann die Treppe schließen und vor der Treppe eine Schrankwand installieren. Vielleicht kann man da sogar einen 60-er Seitenschrank als "Fake" einbauen und dann unter der Treppe Vorräte lagern? Finde die Version recht cool, allerdings macht es die Küche an sich natürlich wieder schmaler.

Wir finden auch die Idee einer Sitzbank (egal ob an einer Wand oder einer Insel) generell gut, sollte sie Platz sparen.



Ich würde mich über euren Input sehr freuen!

Liebe Grüße,
Sören
 

Anhänge

  • Version 1 Bild Kochinsel ohne Fenster.jpg
    Version 1 Bild Kochinsel ohne Fenster.jpg
    72,5 KB · Aufrufe: 177
  • Version 1 Kochinsel Essplatz unter Treppe.jpg
    Version 1 Kochinsel Essplatz unter Treppe.jpg
    56,2 KB · Aufrufe: 170
  • Version 2 angedockte Zeile Fenster.jpg
    Version 2 angedockte Zeile Fenster.jpg
    68 KB · Aufrufe: 167
  • Version 2 angedockte Zeile.jpg
    Version 2 angedockte Zeile.jpg
    56,7 KB · Aufrufe: 166
  • Version 2 Bild angedockte Zeile, Essplatz unter der Treppe.jpg
    Version 2 Bild angedockte Zeile, Essplatz unter der Treppe.jpg
    74,5 KB · Aufrufe: 162
  • Bild Version 3 neu.jpg
    Bild Version 3 neu.jpg
    70,5 KB · Aufrufe: 157
  • Version 3 neu.jpg
    Version 3 neu.jpg
    55,5 KB · Aufrufe: 161
... und hier auch mal die Alno -Dateien ;-)
 

Anhänge

  • Version 2.KPL
    3,9 KB · Aufrufe: 122
  • Version 2.POS
    14 KB · Aufrufe: 140
  • Version 1.POS
    13,8 KB · Aufrufe: 141
  • Version 1.KPL
    3,9 KB · Aufrufe: 126
  • Version 3.KPL
    3,9 KB · Aufrufe: 122
  • Version 3.POS
    14,4 KB · Aufrufe: 144
ok, du ballerst in einen post x Varianten, da blickt niemand durch, man kann sich nicht darauf beziehen.

Gönne jeder Variante einen Post und Erklärung dazu, was dir daran gefällt und was nicht usw.

und nein, unter einer Treppe esse ich auch nicht, dann lieber take away auf der Couch ...
 
... so, ich probiere es hier jetzt noch mal, sorry:

Wir wünschen uns von unserer zukünftigen Küche:
- Licht
- Platz für eine Insel oder zumindest mehr Arbeitsfläche, als im Grundriss zu sehen
- einen vernünftigen Essplatz, der keine Wege versperrt
- Eine Mülltrennung direkt unter der Arbeitsplatte
- einen Platz für unseren Vollautomaten nahe des Wassers

Wir würden bei unserer aktuellsten Idee (Version 3) die zwei Wandstummel (die sind tragend) aus dem Grundriss zu einer Wand von 2m Länge zusammenführen und planunten an die Treppe setzen (das geht, sagt Bauträger). Zudem würden wir gerne dem HWR planlinks einen Meter "klauen" um somit die Küche zu vergrößern. Folgender Hintergrund:

Vorteile:
+ Wir hätten mehr Platz für eine Kochinsel.
+ Sowohl Kochinsel als auch Essplatz wären Tageslicht ausgesetzt.
+ Die Treppenseite würde mit geschlossener Küchen-Schrankwand effektiv genutzt werden können.
+ in besagte Küchenwand könnte eine Tür integriert werden, die unter die Treppe führt, um den Stauraum dort für Vorräte nutzen zu können.

Nachteile:
- die Küche wirkt insgesamt schmaler, da die offene Treppe geschlossen wird.
- man würde quasi durch die Küchenzeile gehen, wenn man aus dem Flur kommt oder aber aus dem WZ dorthin will (Laufwege?).
- ob der Platz zwischen Insel und Zeile ausreicht?

Ich würde mich über Meinungen und Anregungen freuen!



Sören
 

Anhänge

  • Bild Version 3 neu.jpg
    Bild Version 3 neu.jpg
    70,5 KB · Aufrufe: 156
  • Version 3 neu.jpg
    Version 3 neu.jpg
    55,5 KB · Aufrufe: 156
  • Version 3.KPL
    3,9 KB · Aufrufe: 117
  • Version 3.POS
    14,4 KB · Aufrufe: 138

Ähnliche Beiträge

Neff Hausgeräte Ballerina Küchen Blum Bewegungstechnologie Weibel - Intelligente Küchenlüftung

Neff Spezial

Blum Zonenplaner

Weibel Abluft-Tuning

Weibel Abluft-Tuning
Zurück
Oben