Unbeendet Grundplanung Küchenzeile 8qm

kuechenflo

Mitglied
Beiträge
7
Grundplanung Küchenzeile 8qm

Liebe Küchenfreunde,

in einer 1-Zimmer Single-Wohnung, in der es aktuell gar keine Küche gibt, soll wieder eine entstehen. Aktuell befinden sich auf der Fläche zwei separate "Abstellräume". Dazu soll nun nach Durchsicht des Bauplans eine nachträglich eingezogene Zwischenmauer wieder entfernt werden, Durchgang 2 (auf Höhe des unteren Stuhls) zugemauert und Durchgang 1, ganz unten links - 80cm breit - mit einer (Schiebe-) Tür versehen werden. So entsteht ein exakt 8qm großer Raum. Von dort aus geht es ins Wohn-/Schlafzimmer.

Bevor ich mir nun erste Angebote einhole, vermutlich zuerst beim Schweden, möchte ich gerne eine grundsätzliche Vorstellung von einer zweckmäßigen Anordnung haben. Herausforderung in dem 400x200 cm großen Raum ist, dass zusätzlich ein kleiner Sitzbereich mit zwei Stühlen entstehen soll. Da es relativ wenig Licht gibt, dachte ich an direkt unter dem Fenster. Außerdem müssten Waschmaschine und Trockner Platz finden, in meinem ersten Brainstorming ist es ein Waschtrockner geworden, alternativ könnten auch beide Geräte gestapelt und evtl. sogar integriert werden. Dahinter befindet sich der Wasseranschluss. Auch eine integrierte Spülmaschine ist geplant, in der Skizze 60cm zwischen Spüle und Herd, eventuell würden mir aber auch 45cm ausreichen. Diese wie auch den Herd höher zu stellen, wäre prima für meinen Rücken, aber ich hatte keine gute Idee zur Umsetzung.

Sämtliche eingezeichnete Geräte und Möbel müssen neu angeschafft werden. Auch Boden und Wand werden aufgefrischt, kleinere Elektroinstallationen sind möglich. Es gibt einen Schacht zur Hausabluft links oben neben dem Fenster, fraglich ob man den nutzen kann. Kaffeevollautomat kann notfalls auch im Wohnzimmer stehen. Getränkekiste auch. Budget ist im mittleren Bereich. Die erste Planung ist erfolgt als IKEA Metod mit Voxtorp Fronten, rein zur Illustration.

Habt ihr spontane Ideen oder gibt es wichtige Dinge, die ich als Laie beachten muss? Macht es Sinn, den Kühlschrank als Stand-Alone auf die andere Seite zu stellen und wenn dann neben die Tür oder neben den Tisch? Macht eine L-Form in irgendeiner Form Sinn? Eine Idee war außerdem, den Kühlschrank mit in die Zeile zu integrieren und einen Sitzbereich an der unteren, langen Seite zu installieren, aber dann wäre noch weniger Platz. Hier hatte ich noch an ein paar Regale gedacht. Vielleicht hat ja jemand Freude, mal drüber zu schauen. Ich würde mich freuen über einige Anregungen.

Checkliste zur Kuechenplanung

Personenkriterien und Ergonomie
Anzahl Personen im Haushalt:
1
Davon Kinder: keine
Körpergrößen aller Hauptbenutzer in cm (wegen Arbeitshoehe): 190
Welche Arbeitshöhe ist angedacht (in cm)?: bei 91,5 cm geht Fenster auf falls Winkelküche, perfekt wären für meine Größe 100cm

Gebäudekriterien
Art des Gebäudes:
Eigentum
Bruestungshöhe des Fensters (in cm): 72cm - ragt 4 cm in Raum - darunter Heizkörper
Fensterhöhe (in cm): 133cm ab Brüstung
Raumhöhe in cm: 240cm - Holzdecke (die rausfliegen wird)
Heizung: Heizkörper wie im Grundriss
Sanitäranschlüsse: fix (Bitte Position im Grundriss vermaßt angeben)

Einbaugerätekriterien
Ausführung Kühlgerät:
Stand-Alone bis 60cm Breite
Einbaukühlgerät Größe: 88cm
Ausführung Tiefkühl (TK)-Gerät: Im Kühlschrank ab 3 Schubladen unten
Dunstabzugshaube: Umluft
Hochgebauter Backofen : wenn möglich
Geplante Heißgeräte: Backofen
Hochgebauter Geschirrspüler : wenn möglich
Art des Kochfeldes: Ceran (herkömmliche Beheizung)
Kochfeldbreite (ca. in cm): 60cm

Sitzmöglichkeiten
Sitzmöglichkeit in der Küche / im Küchenbereich:
Separater Tisch
Sitzmöglichkeit: Für wieviel Personen?: Für 2 Personen
Sitzmöglichkeit: Tisch - wenn gesonderter Tisch oder offene Küche: Wird nach Bedarf neu gekauft
Gewünschte oder vorhandene Tischgröße: 70x70 oder ähnlich
Wofür soll der Sitzplatz in der Küche genutzt werden und wie häufig: Kaffeetrinken, Sitzmöglichkeit, Arbeitsfläche

Stauraum-Planung
Was steht auf der Arbeitsplatte oder soll dort stehen?:
Kaffeevollautomat, Messerblock, Toaster
Welche weiteren Küchenmaschinen müssen in der Küche untergebracht werden: Wasserkocher
Was soll in der Küche außer den Standards untergebracht werden: Getränkekisten
Welchen Stauraum gibt es sonst noch: Keller

Kochgewohnheiten
Was/wie wird gekocht? (Alltagsküche, Menüs, Snacks usw):
Standard
Wie häufig wird gekocht: (fast) täglich 1x warm
Wird alleine gekocht? Oder auch gemeinsam? Mit und für Gäste?: gelegentlich für 2-4 Personen

Spülen und Müll
Spülenform:
Noch nicht festgelegt
Welche Mülltrennung soll in der Küche vorgehalten werden: Altpapier, Biomüll, Gelber Sack Müll

Sonstiges
Steht schon ein Küchenhersteller fest oder wird bevorzugt:
Mittelklasse
Steht schon ein Gerätehersteller fest oder wird bevorzugt: Mittelklasse
Küchenstil: Landhausküche
Was stört an der bisherigen Küche und was soll die neue Küche unbedingt können? Warum?:
Preisvorstellung (Budget):
10.000 Euro plus minus

Angehängte Dateien
 

Anhänge

  • Screenshot 2024-12-22 203620.png
    Screenshot 2024-12-22 203620.png
    166,1 KB · Aufrufe: 139
  • Screenshot 2024-12-22 203714.png
    Screenshot 2024-12-22 203714.png
    190,3 KB · Aufrufe: 136
Zuletzt bearbeitet:
hallo @kuechenflo
herzlich willkommen im Küchenforum! :welcome:

Könntest du noch schreiben, welche Maße der Kühlschrank haben soll? Oder existiert der Kühlschrank bereits? Wo genau ist der Wasseranschluss im Grundriss? Könntest du davon ggf. ein Bild machen oder im Grundriss einzeichnen, wo die Anschlüsse (Kaltwasser, Warmwasser, Abfluss) beginnen und enden? Könntest du noch eine komplett vermaßte Grundrissskizze einstellen? Sind die erwähnten 200x400 cm genaue gemessene Maße?

Wenn der Raum 200 cm breit ist stelle ich es mir sehr beengt vor, wenn ein Turm mit Mama und trockner gegenüber einer freistehenden Kühl-gefrier-Kombi (wie hoch?) steht. Die Kühlgeräte sind üblicherweise etwas tiefer als 60 cm, die Ikea Küchenzeile auch (63,5 cm Arbeitsplattentiefe ist standard). Dazwischen blieben nur ca. 70 cm Platz. Auch das sitzen neben den beiden Türmen stelle ich mir nicht so gemütlich vor. Ich würde daher eher deine Idee mit dem Waschtrockner weiterverfolgen. Die Idee mit dem Tisch vor dem Fenster finde ich gut, vor allem wegen der niedrigen Brüstungshöhe und dem Heizkörper.
Für eine ergonomische Arbeitshöhe kommen vielleicht auch andere Hersteller als Ikea in Frage mit höherem Korpus (z.B. Nolte mit 90 cm Korpus oder Nobilia maxi 86)
Die Küchenzeile würde ich folgendermaßen stellen vlnr: KGK, Herd, Waschtrockner, GSP, Spüle (möglichst vor dem Wasseranschluss damit dieser leicht zugänglich bleibt).Gegenüber an der Wand würde ich nur mindertiefe Unterschränke stellen (ca. 30-35 cm) für Stauraum und als Abstellfläche für Kaffeemaschine, Toaster etc.
 
WhatsApp Image 2024-12-20 at 18.14.05.jpeg


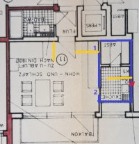
Danke dir für die nette Begrüßung und deine ersten Anregungen. Anbei der Original-Grundriss meiner Wohnung, die ursprüngliche Mauer zwischen Küche und Abstellraum wurde vor meiner Zeit versetzt, wie es aktuell aussieht, hab ich euch in gelb eingezeichnet. Die gelben Mauern wurden nachträglich eingezogen und zumindest die beiden rechten hatte ich geplant zu entfernen. Grundsätzlich gibt es zwei schmale Zugänge, Nummer 1 ist ein 80x200 Durchgang ohne Zarge, hier dachte ich an eine Schiebetür. Nummer 2 hat eine Uralt-Zarge, die ich raus machen und dort zumauern möchte. Könnte man aber auch offenlassen oder eine Tür reinmachen. Aktuell verschließt eine Spanplatte (beidseitig tapeziert) den Zugang. Den Wasseranschluss habe ich ebenfalls markiert, ich hoffe, es ist alles verständlich. Strom ist an beiden Seiten vorhanden.

Hinsichtlich Kühl-Gefrier-Kombi war mein erster Wunsch ein amerikanisches Modell mit Eiswürfelspender, allerdings sind die komplett überdimensioniert für einen Single-Haushalt. Auch eine Platzierung im Wohn-Schlafraum hatte ich überlegt, aber dann hätte ich ständig das Brummen. Deswegen soll es nun eine Standard-Größe werden. Mit der Platzierung gegenüber des Waschtrockners, wie in meiner ursprünglichen Skizze, dachte ich an ein Stand-Alone Gerät, mit 2 oder 3 TK-Fächern und normale Kühlschrankgröße. Die lagen um die 170-190cm Höhe, Tiefe hatte ich versucht, gering zu halten, aber noch kein bestimmtes Modell ausgesucht. Ich sehe deinen Punkt, dass der Durchgang aber dann schon sehr schmal wird. Gerade wenn man dann noch G-Spüler oder Waschmaschine beladen muss. Wenn er mit in die Küchenzeile wandert, könnte man ihn integrieren, muss aber nicht sein. Die sind ja inzwischen recht schick. Gleiches gilt für den Waschtrockner.

Was den Hersteller anbetrifft, bin ich komplett flexibel. Mit meinen 1,90m wäre eine optimale Arbeitshöhe bei ca. 100cm, eventuell sogar 102,103 - aber ich wollte einen Kompromiss finden, falls mal jemand mithilft, der oder die kleiner ist. Nicht dass ich dann ein Hockerchen aufstellen muss. Da bin ich noch unschlüssig, ob ich das jetzt rein auf mich auslegen soll oder ein Mittelmaß wählen.

Falls es weitere Inspirationen gibt, wäre super. Ansonsten noch mal Merci @ Juli, für die ersten Tipps und Tricks, die Idee mit den schmalen Unterschränken auf der Gegenseite find ich jedenfalls schon mal sehr spannend! Du meinst, mit Arbeitsplatte logischerweise!? Ja, die Größe ist relativ exakt 400x200. Ein Zentimeter hin oder her (handgemessen).

Schöne Festtage euch unbekannterweise!
 

Anhänge

  • WhatsApp Image 2024-12-20 at 18.14.05.jpeg
    WhatsApp Image 2024-12-20 at 18.14.05.jpeg
    89,3 KB · Aufrufe: 72
Zuletzt bearbeitet:
danke für den Grundriss, leider fehlen wieder die Maße. Es wäre sinnvoll, wenn du alle Grundrisse, die du postest gleich ausrichten könntest, damit man sich darüber austauschen kann mit Angaben wie planoben, Planrechts etc. Ist der Wasseranschluss denn momentan zugäglich? Ist es dir möglich, von der Fensterwand bis zum Anfang bzw. Ende der Anschlüsse zu messen? Die vollintegrierten Kühlschränke haben in der Regel den Vorteil einer geringeren Tiefe (bei Standard-Küchenschränken ca. 58 cm inklusive Möbelfront, bei Ikea ca. 62 cm) und dass man beim Aufstellen des Gerätes an den Seiten und hinten keine Luft lassen muss, das heißt es lässt sich besser in die Küchenzeile integrieren. Nachteil ist ein geringeres Platzangebot innen (bei 1 Person wahrscheinlich zu verschmerzen) und eine geringere Energie-Effizinez. Es gibt aber auch freistehende Geräte, die direkt an der Wand/neben anderen Möbeln stehen dürfen, nennt sich z.B. bei BSH perfect fit.
 
Hab das Bild oben gedreht, danke für den Hinweis. Außerdem den Wassersanschluss halbwegs freigeräumt, fotografiert und gemessen.

WhatsApp Image 2024-12-23 at 15.38.51.jpeg


Das (Bild 1) liegt in einer Höhe von 50cm, Abstand zur rechten Mauer sind rechts 110cm bis ganz links 137cm. Mittig vermutlich der Ablauf. Etwas weiter rechts auf gleicher Höhe die Starkstromdose, die ich aber wohl nicht brauchen werde?

WhatsApp Image 2024-12-23 at 15.38.51 (1).jpeg


Außerdem befindet sich (Bild 2) etwas weiter links und höher folgende Konstruktion mit Warmwasserzähler(?) in 88cm vom Boden aus bis 117cm, Entfernung zur rechten Mauer sind zwischen 136 - 158cm.

Ich hoffe, dass euch diese Abbildungen etwas nützen.

Edit: Lieben Dank @ Juli für dein Update zur Kühlgefrierkombi. Hier wäre ich tatsächlich für beides offen, Perfect Fit klingt gut und die sehen schick aus, aber auch eine integrierte Variante wäre okay. Etwas weniger Platz und etwas höherer Stromverbrauch dabei nebensächlich, nachdem die Perfect Fit Geräte in der Anschaffung ja auch etwas teurer scheinen.
 
Zuletzt bearbeitet:
Der Zähler war wahrscheinlich ursprünglich oberhalb der Arbeitsplatte . Das ist aber eine schwierige Höhe, weil du genau da deine Arbeitsplatte hättest. Wird der Zähler noch verwendet und wenn ja wie oft muss er zugänglich sein? Kann er ggf. versetzt werden?
Den Starkstromanschluss brauchst du wahrscheinlich für dein Herdset. Habe ich richtig verstanden, dass er rechts vom Wasseranschluss sitzt also da wo du gerne den Tisch platzieren möchtest? In diesem Fall wäre es sicher problemlos möglich, dass ein Elektriker den Starkstrom Aufputz verlegt an die Stelle wo der Herd hinkommen soll.
 
1x im Jahr muss der Zähler zugänglich sein zur Ablesung, versetzen ist vermutlich schwierig, aber muss ich schauen. Bad wird auch gemacht, in dem Zusammenhang kann ich die Fachleute fragen. Ableser kommt auch bald, eventuell muss der Zähler sowieso modernisiert werden. Falls nicht müsste die Arbeitsplatte entweder darüber, dann wäre ich bei 105cm+ Arbeitshöhe, darunter - ohne Boden sind´s dann wahrscheinlich um die 90cm Arbeitshöhe oder es müsste ein Ausschnitt gemacht werden. Mit der Bodenhöhe könnte man eventuell auch etwas spielen, da nach oben 260cm plus Holzdecke vorhanden sind. Starkstrom - genau, ist dort bei der Sitzmöglichkeit. Falls ich den benötige, könnte das der Elektriker bestimmt erledigen.
 
Zuletzt bearbeitet:
Zur Arbeitshöhe: wenn es sich lediglich um gelegentliche Besucher handelt, würde ich eher die Arbeitshöhe für dich optimieren. Ich kann aus eigener Erfahrung in einer Mietwohnung sagen, dass man auch als durchschnittlich große Person (168 cm) mit 100 cm Arbeitshöhe gut zurecht kommt. Für ausgiebige Schnippelaktionen bietet sich ja sonst auch noch der Tisch an.

Es ist doch gut, wenn du bald herausfinden kannst, was mit dem Zähler möglich ist (versetzen? ersetzen? entfernen? drehen?). Optimal wäre es wenn man ihn etwas tiefer setzen könnte, sodass er auch innerhalb des Spülenschrankes liegt. An dieser Stelle einen Ausschnitt in der Arbeitsplatte zu machen wäre in meinen Augen sehr ungünstig, da ja dort auch die Spüle ist und dann Wasser reinfließen könnte.
 
Falls es möglich wäre den Zähler zu versetzen, wäre mein Vorschlag für die küchenzeile planoben mit Maßen vlnr: 5 cm Blende, 60 cm Einbau KGK, 60 cm Herdset, 60 cm Waschtrockner, 45 cm Gsp, 60 cm Spülenschrank. Bleiben 110 cm für die Sitzecke.
Gegenüber an der planunteren Wand würde ich nur 2 90 cm breite unterschränke mit ca. 32 cm Korpus Tiefe planen damit etwas mehr Luft rechts und links für den Eingang bzw. Den Tisch bleibt. Zumindest oben würde ich hier Schubladen für Besteck etc. planen.
Oberschränke nach Belieben und Stauraumbedarf.
 
Meine Küche ist fast genau so groß wie deine. 2 m breit, 4,20 lang.

Meine Erfahrung dazu: Hochschränke vermeiden, der Raum wird sonst zum Schacht.
Konsequenz: kein hochgebauter Backofen , kein hochgebauter GSP.
Unterschränke soweit möglich mit Auszügen.
Oberschränke so niedrig wie möglich, eventuell kombiniert mit offenen Regalborden.
Gegenüber der Herd- und Spülenzeile mindertiefe Schränke, 10 cm (also 50 statt 60) bringen da schon viel.
Wenn du hauptsächlich allein in der Küche bist, reichen 90 cm Zeilenabstand aus.
Bei 50 cm tiefen Schränken können Auszüge und Schubladen eingebaut werden, bei denen die Nutzungstiefe noch sinnvoll ist (die ist immer ca. 10-12 cm geringer als die Schranktiefe).

Wenn der einzige Hochschrank der Kühlschrank ist, würde ich einen freistehenden nehmen. Der wirkt ein klein wenig leichter als ein kompletter Hochschrank, und er bietet bei gleichen Außenabmessungen mehr Innenraum. Achte darauf, dass er nicht tiefer als 65 cm ist.

Arbeitshöhe: An dir ausgerichtet.

Küche als Zweizeiler. Ein L bringt dir bei der Raumbreite nichts, wenn du noch einen Sitzplatz unterbringen willst. Die Schranklänge, die du mit dem L vorm Fenster gewinnst, musst du an einer der Wände für den Tisch wieder aufgeben.
Tisch vors Fenster, die Brüstungshöhe ist ideal. Der Platz muss nicht 2 m breit sein, eine der Zeilen könnte auch durchlaufen.

Ich würde auch versuchen, den Zähler versetzen zu lassen, möglichst unter die Arbeitsplatte. Was wird an den beiden Pins oberhalb des Zählers montiert?
 
Zuletzt bearbeitet:
Super, danke auch an dich für die vielen Anregungen! Wenn ich die Geräte-Zeile durchlaufen lasse, um zum Beispiel Waschmaschine plus Trockner installieren zu können, blieben nur ca. 135cm in der Breite für zwei Stühle plus Tisch. Wenn der noch unter dem Fenster platziert wird, ist das nicht ein wenig arg knapp? Die zweite Person müsste ja dann ggf. im "Gang" sitzen. Der Hinweis, dass es nicht zu schacht-artig wird ist top, entsprechendes hatte ich nämlich schon beim Experimentieren im IKEA Küchenplaner befürchtet.

Der meint übrigens, abgesehen davon, dass ihm der Abstand zwischen den Zeilen mit 100cm schon zu gering war, dass das Kochfeld mindestens 40cm zum Kühlschrank / Hochschrank braucht. Hab ich aber in vielen Küchen schon anders gesehen. Muss mich auch noch damit beschäftigen, ob Induktion . Geschirr muss ich eh auch neu anschaffen.

Bzgl. der Pins am Zähler, keine Ahnung, was dort früher mal angeschlossen war. Ich kenne die Wohnung nur ohne Küche. Da muss ich einen Fachmann draufschauen lassen, was möglich ist, ob man den Zähler versetzen kann oder gar erneuern lassen muss. Die Wohnung wurde bisher nur gelegentlich genutzt, wenn es mir bei meiner inzwischen Ex-Partnerin mal wieder zu turbulent war, ansonsten zum Einlagern von ein paar alten Sachen. Somit wurde der Zähler auch nie mit abgelesen.
 
Screenshot 2024-12-24 012631.png
Screenshot 2024-12-24 012729.png
Screenshot 2024-12-24 012828.png
Screenshot 2024-12-24 012940.png

Diese Skizze - es stimmt nicht alles auf den Zentimeter - lehnt sich an eure Anordnungsvorschläge an, Oberschränke könnte man noch reduzieren oder teilweise Regale anbringen, ggf. auch auf der gegenüberliegenden Seite. Aber so hab ich jetzt mal eine Grundvorstellung und auch was in der Hand, wenn es dann ins Detail und ins Küchenstudio geht. Das war mein Ansinnen und dafür danke ich euch recht herzlich. Ich halte euch auf dem Laufenden, weitere Ideen oder Anregungen sind natürlich trotzdem in der Zwischenzeit jederzeit willkommen.
 

Ähnliche Beiträge

Neff Hausgeräte Ballerina Küchen Blum Bewegungstechnologie Weibel - Intelligente Küchenlüftung

Neff Spezial

Blum Zonenplaner

Weibel Abluft-Tuning

Weibel Abluft-Tuning
Zurück
Oben