Nadja28
Mitglied
- Beiträge
- 44
Text Hallo,
Ich bin ziemlich ratlos und erhoffe mir, dass Ihr Licht in meinen Gehirndschungel bringen könnt. Anfänglich wollten wir eigentlich eine Abluft DAH. Nach 3 KFB-Gesprächen bin ich mir irgendwie nicht mehr so sicher... Alle 3 KFB (2x kleine Küchstudios, 1x roter Stuhl) haben mir mehr oder weniger von Abluft abgeraten. Ich frage mich warum, sie könnten an Abluft doch mehr Geld verdienen, da ich ihnen die Gutmann Campo auch schon als ein mögliches Wunschmodell genannt hatte. Das hat mich zum Grübeln gebracht.
Vielleicht zum Hintergrund. Stoßlüften tue ich eigentlich nach jedem Kochen (wenn der Bratenduft aus dem 3m entfernten BO kommt, nützt geruchstechnisch ja auch die beste DAH nichts) Und irgendwie bin ich ein Immer-mal-Lüften-Kind. Somit sehe ich den oft genannten Nachteil mit der Feuchtigkeit bei uns als nicht so gegeben. Zudem haben wir im Winter oft genug das Problem mit zu geringer Luftfeuchtigkeit. Damit stehen also noch das Thema Fettabscheidung und Geruch beim Kochen auf dem Herd zur Debatte.
Da wir zwischenzeitlich einen Kaminofen planen, hatten wir schon ein kurzes Gespräch mit dem Schornsteinfeger. Eine Möglichkeit könnte ein Fensterkontaktschalter sein. Der würde aber sinnigerweise wohl am Küchenfenster sein? Da das Küchenfenster nah am Herd liegt, meinte der eine KFB, dass der Dampf / die Wrasen durch den Luftzug "abgelenkt" würden und ein guter Teil nicht in der DAH landet.
Er schlug eine Abluft/Zuluft-Lösung vor als ich ihm sagte, dass ich gerne Abluft hätte. Habe noch nicht mit dem Schornsteinfeger gesprochen, ob der das überhaupt genehmigen würde. Dieser KFB schlug auch vor, direkt hinter der Haube ein Loch Richtung Garage zu machen und den Abluftkanal durch die Garage Richtung Außenwand. Großer Vorteil ist hier, dass der Kanal direkt dorthin verschwindet, wo er optisch nicht auffällt. Die Idee fand ich richtig gut. Eine Überlegung war dann auch, die Abluft/Zuluft quasi in der Garage enden zu lassen. Tja, gute Frage, wie angenehm dann die Zuluft riecht...
Nächste Überlegung, die ich momentan habe, ist, dass das Abluft-Loch Richtung Westen geht. Die Wand bekommt also volles Wetter ab. Ist also Abluft dann wirklich clever?
Das Thema Unterdruckwächter haben wir noch nicht weiter verfolgt.
Hier noch mal unsere Küchenplanung #31:
https://www.kuechen-forum.de/forum/kategorien/kuechenplanung-im-planungs-board.63/10329-neue-kueche-nach-totalsanierung-3.html
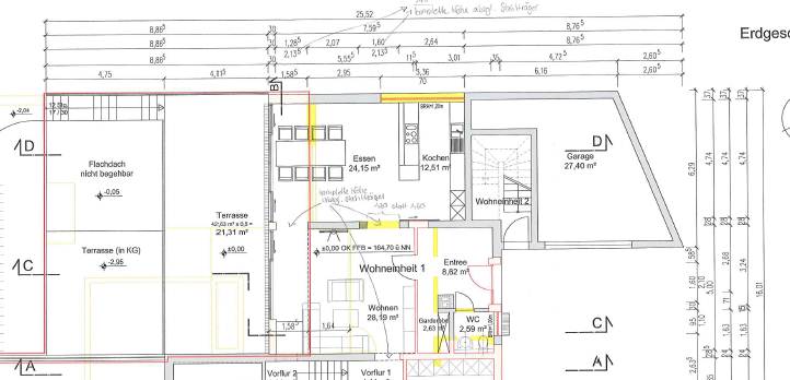
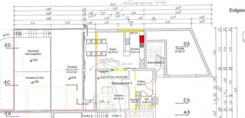
Und den Grundriss habe ich auch noch mal beigefügt.
Nach diesen ganzen Hirnwirrungen überlegen wir jetzt, auf Umluft umzusteigen.
Thema Nr1: Größe des Raums Küche offen mit EZ schon 36qm, sind schon einige Kubikmeter. Dann ist der Raum noch halb offen zum WZ hin. Die DAH muss also einiges leisten. (Ofen kommt ins WZ)
Thema Nr. 2: Leise!
Thema Nr. 3: Wenn wirklich Umluft, und das würde "scheitern", dann könnten wir nachträglich noch auf Abluft umschalten
Da ich mich bisher mehr mit Ablufthauben beschäftigt habe, frage ich mich: Wenn ich also eine leise und leistungsstarke Umlufthaube bräuchte, welche sollte es denn sein?
- O+F Horizon EF
- Gutmann Campo
- Novy ?
- Berbel ?
- Silverline ?
- Miele ?
- andere Anbieter?
jeder hat ne andere Technik bei Umluft. Welche wäre für uns optimal?
Ungern möchte ich ein Vermögen ausgeben, einen Kompromiss zu Lasten Lautstärke will ich aber auf keinen Fall. Da sehe ich dann schwarz bei der FAmilienharmonie.
Ach ja, und was mich noch umtreibt: ist eine "günstigere" 120cm breite Haube evtl genauso gut wie eine 90cm breite "teure" Haube?
Was machen? Ich hoffe ganz stark auf Eure Hilfe, mein Hirn wieder klarer zu kriegen!
Herzlichen Dank im voraus!
Nadja
Ich bin ziemlich ratlos und erhoffe mir, dass Ihr Licht in meinen Gehirndschungel bringen könnt. Anfänglich wollten wir eigentlich eine Abluft DAH. Nach 3 KFB-Gesprächen bin ich mir irgendwie nicht mehr so sicher... Alle 3 KFB (2x kleine Küchstudios, 1x roter Stuhl) haben mir mehr oder weniger von Abluft abgeraten. Ich frage mich warum, sie könnten an Abluft doch mehr Geld verdienen, da ich ihnen die Gutmann Campo auch schon als ein mögliches Wunschmodell genannt hatte. Das hat mich zum Grübeln gebracht.
Vielleicht zum Hintergrund. Stoßlüften tue ich eigentlich nach jedem Kochen (wenn der Bratenduft aus dem 3m entfernten BO kommt, nützt geruchstechnisch ja auch die beste DAH nichts) Und irgendwie bin ich ein Immer-mal-Lüften-Kind. Somit sehe ich den oft genannten Nachteil mit der Feuchtigkeit bei uns als nicht so gegeben. Zudem haben wir im Winter oft genug das Problem mit zu geringer Luftfeuchtigkeit. Damit stehen also noch das Thema Fettabscheidung und Geruch beim Kochen auf dem Herd zur Debatte.
Da wir zwischenzeitlich einen Kaminofen planen, hatten wir schon ein kurzes Gespräch mit dem Schornsteinfeger. Eine Möglichkeit könnte ein Fensterkontaktschalter sein. Der würde aber sinnigerweise wohl am Küchenfenster sein? Da das Küchenfenster nah am Herd liegt, meinte der eine KFB, dass der Dampf / die Wrasen durch den Luftzug "abgelenkt" würden und ein guter Teil nicht in der DAH landet.
Er schlug eine Abluft/Zuluft-Lösung vor als ich ihm sagte, dass ich gerne Abluft hätte. Habe noch nicht mit dem Schornsteinfeger gesprochen, ob der das überhaupt genehmigen würde. Dieser KFB schlug auch vor, direkt hinter der Haube ein Loch Richtung Garage zu machen und den Abluftkanal durch die Garage Richtung Außenwand. Großer Vorteil ist hier, dass der Kanal direkt dorthin verschwindet, wo er optisch nicht auffällt. Die Idee fand ich richtig gut. Eine Überlegung war dann auch, die Abluft/Zuluft quasi in der Garage enden zu lassen. Tja, gute Frage, wie angenehm dann die Zuluft riecht...
Nächste Überlegung, die ich momentan habe, ist, dass das Abluft-Loch Richtung Westen geht. Die Wand bekommt also volles Wetter ab. Ist also Abluft dann wirklich clever?
Das Thema Unterdruckwächter haben wir noch nicht weiter verfolgt.
Hier noch mal unsere Küchenplanung #31:
https://www.kuechen-forum.de/forum/kategorien/kuechenplanung-im-planungs-board.63/10329-neue-kueche-nach-totalsanierung-3.html
Und den Grundriss habe ich auch noch mal beigefügt.
Nach diesen ganzen Hirnwirrungen überlegen wir jetzt, auf Umluft umzusteigen.
Thema Nr1: Größe des Raums Küche offen mit EZ schon 36qm, sind schon einige Kubikmeter. Dann ist der Raum noch halb offen zum WZ hin. Die DAH muss also einiges leisten. (Ofen kommt ins WZ)
Thema Nr. 2: Leise!
Thema Nr. 3: Wenn wirklich Umluft, und das würde "scheitern", dann könnten wir nachträglich noch auf Abluft umschalten
Da ich mich bisher mehr mit Ablufthauben beschäftigt habe, frage ich mich: Wenn ich also eine leise und leistungsstarke Umlufthaube bräuchte, welche sollte es denn sein?
- O+F Horizon EF
- Gutmann Campo
- Novy ?
- Berbel ?
- Silverline ?
- Miele ?
- andere Anbieter?
jeder hat ne andere Technik bei Umluft. Welche wäre für uns optimal?
Ungern möchte ich ein Vermögen ausgeben, einen Kompromiss zu Lasten Lautstärke will ich aber auf keinen Fall. Da sehe ich dann schwarz bei der FAmilienharmonie.
Ach ja, und was mich noch umtreibt: ist eine "günstigere" 120cm breite Haube evtl genauso gut wie eine 90cm breite "teure" Haube?
Was machen? Ich hoffe ganz stark auf Eure Hilfe, mein Hirn wieder klarer zu kriegen!
Herzlichen Dank im voraus!
Nadja
Anhänge
Zuletzt bearbeitet:
