Unbeendet U-Küche im Neubau

Fei

Mitglied
Beiträge
4
U-Küche im Neubau

Hallo an alle zusammen,

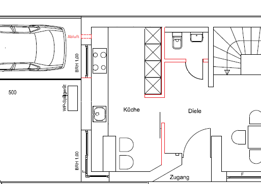
unser Neubauprojekt beginnt im Januar 2022 und wir planen deswegen unsere Küche (ca. 527 x 282 cm) bereits vorab, um die Anschlüsse und Fenster korrekt platzieren zu können. Es wäre schön, wenn ihr Anregungen und Kritik zu unserer ersten Entwurfsidee hättet - brutale Ehrlichkeit wäre mir am liebsten. :-) Leider habe ich beim Entwurf vergessen, die Küche als Grifflos zu bauen, obwohl Grifflos vorgesehen ist.

Einige Dinge möchte ich noch erwähnen, die aus den Entwürfen nicht unbedingt ersichtlich sind:
- Tür zur Küche ist eine Glasschiebetür
- Die Brüstungs-/Fensterhöhen sowie Strom- und Wasseranschlüsse sind noch komplett anpassbar
- Hausgrundriss ist in der Umplanungsphase und daher nicht final, einige Maße sind daher vielleicht widersprüchlich, bitte daher um Entschuldigung
- keine Abzugshaube, da Muldenlüfter
- Durchgang zur Theke soll 80cm breit sein, hinter der Theke ist 1 Meter Abstand zur Wand, unter der Theke sind keine Schränke
- der Schrank links von der Theke ist derzeitig nicht verplant und als Reserve gedacht
- über die Beleuchtung wurden noch keine Gedanken gemacht, außer dass unter den Hängenschränken LED Spots kommen sollen.

Vielen Dank schon mal für eure Zeit!

Checkliste zur Kuechenplanung

Personenkriterien und Ergonomie
Anzahl Personen im Haushalt:
4
Davon Kinder: 2
Körpergrößen aller Hauptbenutzer in cm (wegen Arbeitshoehe): 181, 176
Welche Arbeitshöhe ist angedacht (in cm)?: 95

Gebäudekriterien
Art des Gebäudes:
Neu-/Umbau > Planänderungen möglich
Bruestungshöhe des Fensters (in cm): 95cm ab Fertigfußboden
Fensterhöhe (in cm): N. a.
Raumhöhe in cm: 245
Heizung: Fußbodenheizung
Sanitäranschlüsse: variabel an aktueller Wand

Einbaugerätekriterien
Ausführung Kühlgerät:
Integriert im Hochschrank (60cm)
Einbaukühlgerät Größe: 178cm
Ausführung Tiefkühl (TK)-Gerät: Eigenständiges Gerät bis 178 cm Höhe
Dunstabzugshaube: Abluft
Hochgebauter Backofen : ja
Geplante Heißgeräte: Backofen , Dampfbackofen (DGC) ohne Wasseranschluß
Hochgebauter Geschirrspüler : nein
Art des Kochfeldes: Induktionskochfeld
Kochfeldbreite (ca. in cm): 80

Sitzmöglichkeiten
Sitzmöglichkeit in der Küche / im Küchenbereich:
Überstehende Arbeitsplatte
Sitzmöglichkeit: Für wieviel Personen?: Für 2 Personen
Sitzmöglichkeit: Tisch - wenn gesonderter Tisch oder offene Küche: Keiner
Gewünschte oder vorhandene Tischgröße: N. a.
Wofür soll der Sitzplatz in der Küche genutzt werden und wie häufig: Frühstück, Kaffee, Essen Schnippeln

Stauraum-Planung
Was steht auf der Arbeitsplatte oder soll dort stehen?:
Kaffeevollautomat, Küchenmaschine
Welche weiteren Küchenmaschinen müssen in der Küche untergebracht werden: N. a.
Was soll in der Küche außer den Standards untergebracht werden: N. a.
Welchen Stauraum gibt es sonst noch: Geschirr/Gläserschrank im Wohn-/Esszimmer, Keller

Kochgewohnheiten
Was/wie wird gekocht? (Alltagsküche, Menüs, Snacks usw):
Alltagsküche
Wie häufig wird gekocht: (fast) täglich 1x warm
Wird alleine gekocht? Oder auch gemeinsam? Mit und für Gäste?: Alleine von Mo-Fr, am Wochenende gemeinsam

Spülen und Müll
Spülenform:
1 Becken ohne Abtropffläche
Welche Mülltrennung soll in der Küche vorgehalten werden: Biomüll, Gelber Sack Müll, Restmüll

Sonstiges
Steht schon ein Küchenhersteller fest oder wird bevorzugt:
Pronorm Y-Line
Steht schon ein Gerätehersteller fest oder wird bevorzugt: Siemens , AEG
Küchenstil: Grifflose Küche
Was stört an der bisherigen Küche und was soll die neue Küche unbedingt können? Warum?: N. a.
Preisvorstellung (Budget): 25000 €

Angehängte Dateien
 

Anhänge

  • Stauraumplanung1.JPG
    Stauraumplanung1.JPG
    83,5 KB · Aufrufe: 257
  • Stauraumplanung2.JPG
    Stauraumplanung2.JPG
    90 KB · Aufrufe: 243
  • GrundrissALNO.jpg
    GrundrissALNO.jpg
    83,9 KB · Aufrufe: 240
  • EG.jpg
    EG.jpg
    74,3 KB · Aufrufe: 257
  • FeiKueche.KPL
    3,9 KB · Aufrufe: 124
  • FeiKueche.POS
    10,6 KB · Aufrufe: 102
Hallo und herzlich willkommen,

als Erstes fällt mir auf, dass es in der Küche sehr viel Leerraum gibt, die Toi zu schmal ist und die Garderobe komplett fehlt. Wenig Küche und kaum Stauraum. Irgendwie passt das alles nicht.

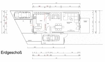
Verstehe ich das richtig, die Roteintragungen sind änderbar, der Rest der Wände ist fix?

Hast du die Maße für planunten, also die schräge Wand?

Ihr braucht einen 178er Gefrierschrank?
 
Hallo Evelin und vielen Dank für dein erstes Feedback! Zu deinen Anmerkungen/Fragen:

1.) Uns ist bewusst, dass in der Küche noch ungenutzter Platz vorhanden ist, allerdings wollen wir auch nicht, dass es eingeengt aussieht. Bei einer geschlossenen Küche ist leider beides für den Laien nicht so einfach unter ein Hut zu bekommen, wir wären daher über Vorschläge sehr dankbar.

2.) Die Toilette ist leider sehr schmal, ich hätte gerne 1,50 Meter Breite gehabt aber wir brauchen Puffer in der Küche für eventuelle Verluste in der Breite durch Putzarbeiten und/oder eine leicht schräge Wand. Wir werden daher ein sehr kleines Waschbecken installieren, die Maße der eingezeichneten Installationen entsprechen nicht der Realität. Die Garderobe befindet sich links an der Wand wenn man durch die Haustür schreitet, dort ist eine Tiefe von ca. 36cm und eine Länge von 120cm dafür vorgesehen.

3.) Die Roteintragungen sind veränderbar, genau. Der Rest sind Träger bzw. Außenwände. Allerdings ist das rechte Fenster über dem Spülbecken auch in den Maßen und in der Position veränderbar (komplett weg soll das Fenster aber nicht).

4.) Die Maße für die untere gerade Wand ist ca. 220cm und die schräge Wand ist ca. 80cm.

5.) Meine Frau möchte einen großen Kühlschrank plus Gefrierschrank weil wir bei zwei Kindern und Berufstätigkeit gerne mal vorkochen und dann im Kühlschrank deponieren. Ursprünglich wollten wir einen Side-By-Side, aber haben dann uns für eine integrierte Lösung entschieden. Dafür haben wir im Keller keinen Gefrierschrank eingeplant.
 
das würde ich alles so nicht machen.

Aber erst mal zu deiner Planung. Pronorm Y Linie, wie hoch ist der Korpus, welche Rasterung ist das? Ich sehe in der Stauraumplanung kein Geschirr, keine Schüsseln, nur einen 30er Apotheker in der Ecke für Vorräte? das wird niemals reichen, da passt nur wenig rein, er müsste auch von 2 Seiten zugängig sein. Auch Greifraumprofil bietet weniger Stauraum.

Ich glaube, ihr müsst euch weg von der Optik orientieren und eine praktische Küche für 4 Personen planen. Ein 2-Zeiler is the way to go, die Küche kann man schmaler machen, es gibt mehr Platz für die Toi und Garderobe.

Das kleinere Fenster wollte ich nicht direkt am carport haben.

Spätestens wenn die kids in die Schule gehen, werdet ihr euch nur noch auf die Nerven gehen, weil man kaum ins Haus rein noch raus kann. Schulranzen, Stiefel usw liegt am Eingang rum.

Hier mal ganz grob, wie ich es machen würde. Zwei Sitzplätze muss ich noch reinbasteln.
fei1.jpg

die Arbeitszeile 70cm tief, Zeilenabstand 120-125, und 4 x 60er HS, einer davon mit space tower , also Innenauszügen.

Grün ist die GSP Tür.
Bietet Pronorm übertiefe US an?

Die Toi ist dann breit genug, davor eine 60cm tiefe Garderobe. Anstelle der Schiebetür eine normale Glastür in die Küche, die gehen besser, schneller zu öffnen.

Ach ja, die Toilettentür sollte nach außen öffnen. Der Raum ist klein, wenn jemand "umkippt", könnt ihr nicht mehr die Tür öffnen.
 
Zuletzt bearbeitet:
Hallo Evelin,

1.) geplant ist mit einer Korpushöhe von 768mm, es gibt aber auch eine XL Variante mit 832mm. Eine Übertiefe gibt es auch für US, die würde dann 715mm betragen.

2.) Ups, habe ich tatsächlich das Geschirr vergessen... das Geschirr würde in den US reinkommen, wo derzeitig die Kleingeräte verplant sind, das würde auch tatsächlich alles in eine Schublade passen. Schüssel sind im HS mit den Backgeräten. Da wir ja einen Reserve-US neben der Theke geplant haben würden wir noch etwas umdisponieren können. Wir besitzen derzeitig eine uralte Küche mit weniger US, einem einzigen HS und dazu noch sind die US 680mm hoch und die OS nur 600mm. Darum dachten wir, dass wir mit der Planung stauraumtechnisch großzügig auskommen würden. Wir besitzen nicht viele Küchengeräte und vergleichsweise wenig Geschirr.

3.) Das kleinere Fenster zeigt Richtung 2. Stellplatz, das keine Überdachung hat. Von außen sieht das dann so aus wie das Bild im Anhang. Würde ich beide Fenster dicht an dicht stellen, dann hätte das Haus von außen ein etwas obskures Aussehen.

4.) Deinen Vorschlag mit dem 2-Zeiler habe ich mir auch schon überlegt, allerdings weiß ich nicht wie man die beiden Sitzplätze passend integrieren könnte. Diese sind uns wichtig, weil wir nicht für jede Kleinigkeit ins Wohnzimmer laufen wollen zum Hinsetzen.

5.) Der Vorschlag mit der Toilettentür ist sehr einleuchtend, danke!
 

Anhänge

  • FensterFrontseite.jpg
    FensterFrontseite.jpg
    155,1 KB · Aufrufe: 131
Ich fände die Idee mit den Hochschränken an der Toilettenwand auch gut, um WC - Geräusche zu minimieren. In meiner Ferienwohnung hatten wir auch WC neben Küche und ich fand das etwas unangenehm (vermutlich sind bei euch die Wände dicker?).
Auch die Garderobe braucht man mit Kindern unbedingt- ihr werdet euch noch wundern, was da mit Kindern alles Platz finden muss.
Die Küche ist mit 2,80 ohnehin zu schmal um Inseln oder ähnliches zu stellen. Lieber schmäler und den Flur und das WC geräumiger planen. Die Küche als praktischen 2 Zeiler planen und den vorhandenen Platz gut nutzen. Lg
 
oha, da habe ich das mit dem Fenster falsch verstanden, also die Breite ist noch etwas flexibel aber nicht die Position. Ich plane noch mal um ...

Du schreibst BRH 95 und AP auch 95cm. Möchtest du nicht, dass die AP in die Fensterbrüstung ragt? Die BRH müsste dann wenigstens die Dicke des AP Materials niedriger sein.

Meine Tochter wohnt in einem großen alten Haus. Sie hat renoviert und es gab 2 Möglichkeiten im EG, Toi oder Garderobe. Es wurde ein Toi. Der Eingangsbereich ist deshalb immer zugemüllt, weil es neben der Eingangstür nur eine kleine Bank gibt und ein paar Haken an der Wand, 4 Personen.
 
Zuletzt bearbeitet:
so, noch mal.

fei21.jpg
fei22.jpg


zum Sitzen würde ich einen runden Tisch nehmen, keine Thekenlösung. So können die Kinder, wenn sie noch klein sind, auch dransitzen.

Das Kochfeld mit Muldenlüfter vor's Fenster.

Wenn man in die Küche reinkommt, läuft man mehr oder weniger auf den GSP, die Spüle und den Müll zu.

Planunten habe ich die US wegen der Fensterbrüstung um die Ecke gestellt. Ich wüsste sonst nicht, wie man das ordentlich machen kann, wenn die US mitten im Fenster enden.
 
Die Tüftelei geht weiter!

1.) Aufgrund der schwierigen Fenstersituation wissen wir noch nicht, ob wir die Arbeitsplatte reinlaufen lassen. Der KFB hat gesagt, er kann auch eine ultradünne 16mm Platte nehmen (nur für den Bereich der Fensterbank)

2.) Ich habe anhand deines Entwurfs des 2-Zeilers das Ganze ein bisschen weitergesponnen, allerdings besteht meine Frau auf die Theke und findet runde Tische im Allgemeinen furchtbar... :-) Am Ende bin ich auf sowas gekommen, siehe Anhang. Bonuseffekt: beim Frühstücken und Kaffee kann man wunderbar aus dem großen Fenster schauen. Der US unter der Theke wäre als Reserveschrank gedacht, wo selten gebrauchte Utensilien reinkommen.

3.) Es sind jetzt ca. 125cm Abstand zwischen den beiden Zeilen, die Küche hat jetzt knapp 30 cm eingebüßt an Breite, die aber der Toilette und dem Flur zugute kommen. Im Flur könnte man theoretisch jetzt bis zu zwei tiefe Garderoben reinstellen, wenn man es möchte.

4.) Das kleinere Fenster habe ich jetzt 50cm nach oben verschoben und verkleinert, weil ich beim Kochen lieber einen Spritzschutz vor mir habe, statt jeden Tag das Fenster von Fettspritzern zu befreien.
 

Anhänge

  • GrundrissALNO2.jpg
    GrundrissALNO2.jpg
    50,5 KB · Aufrufe: 155
  • Fei1.JPG
    Fei1.JPG
    64,8 KB · Aufrufe: 167
  • Fei2.JPG
    Fei2.JPG
    145,8 KB · Aufrufe: 156
  • Fei3.JPG
    Fei3.JPG
    90,2 KB · Aufrufe: 163
  • EG Version 2.png
    EG Version 2.png
    21,3 KB · Aufrufe: 168
ein 120cm langes Thekenbrett auf einem US ist keine gute Idee. Man kann keine Auszüge darunter haben, was will man da verstauen, wenn man jedes mal die Stühle wegräumen muss, sich unters Brett bücken und sich durch 60m tiefe Fachbretter wühlen muss?

Warum ist die Fenstersituation schwierig? Ich wollte eigentlich nur wissen, was stimmt, BRH 95 oder AP Höhe 95cm.

Garderobe
Dh, ihr wollt Trockenbau für eine Garderobe unten einplanen? auch eine gute Idee.

Ich sehe gerade, du hast auch einen 120er US unter's Kochfeld eingeplant. Das würde man auch nicht machen, einmal wegen Stauraumverlust, 120cm werden von der kochenden Person blockiert, es wird warm unterm Kochfeld und eine ganz dünne AP ist auch nicht förderlich, zumal die AP wegen dem Muldenlüfter auch etwas tiefer sein muss. Also es gibt nichts positives dazu.

Wenn du Pläne im Planer erstellst, musst du an allen Zeilenenden Blenden vorsehen, da man sonst keine Auszüge oder Türen öffnen kann. Um schräge Wende und Verputz mit einzurechnen, nehme ich 5cm pro Blende.

Wo ist denn der Spüler in deiner Planung?
 
Zuletzt bearbeitet:
du kannst auch die Unterschranke an der Theke ganz weglassen und wenn noch Stauraum gebraucht wird Plan rechts noch etwas stellen
 
120cm langes Thekenbrett auf einem US ist keine gute Idee. Man kann keine Auszüge darunter haben, was will man da verstauen, wenn man jedes mal die Stühle wegräumen muss, sich
Auch die Arbeitsfläche wird blockiert. Die Ansätze von Isabella und GA 100 würde ich mir überlegen.
Nicht, dass du es später bereust, dass diese Aufsatzplatte Stauraum und Arbeitsfläche beschränkt.
 
ich hätte die Befürchtung, dass die Küche ein 5+m Schlauch wird, wenn alle Wände, planrechts und links mit irgendwas zugestellt werden und dazwischen ist die Rennbahn. Hab's probiert, gefällt mir vom Gefühl her nicht. Ich würde, wenn es denn unbedingt eine Theke sein muss, unten quer rüber, auch wegen dem Fenster.
 

Ähnliche Beiträge

Neff Hausgeräte Ballerina Küchen Blum Bewegungstechnologie Weibel - Intelligente Küchenlüftung

Neff Spezial

Blum Zonenplaner

Weibel Abluft-Tuning

Weibel Abluft-Tuning
Zurück
Oben