Offene Küche mit problematischer Lage der Anschlüsse

AW: Offene Küche mit problematischer Lage der Anschlüsse

Hallo Dirk,
ja, der Begriff ist richtig und da hätte ich auch drauf kommen können.

Von daher hat diese Variante auch etwas:
16576d1255969783t-offene-kueche-mit-problematischer-lage-der-anschluesse-kf_teufeld_20091019_variante1_ansicht1.jpg


Von der DAH wird dann nach links einfach auch Stück Edelstahlkanal (wenn es eine Edelstahl DAH ist) zum Loch geführt. Der muss dann halt fachmännisch befestigt werden.

Alternativ kann man den oberen Bereich auch komplett mit einer Trockenbauverkleidung versehen (siehe Bild unten), das könnte man dann auch bei der Küchenstudio -Variante machen.

Den Trockenbau kann man dann in Wandfarbe gestalten oder sogar farblich hervorheben.
 

Anhänge

  • kf_teufeld_20091024_Variante1a_Ansicht1.jpg
    kf_teufeld_20091024_Variante1a_Ansicht1.jpg
    221,2 KB · Aufrufe: 189
AW: Offene Küche mit problematischer Lage der Anschlüsse

Hallo mal wieder,

insbesondere nach menorca's berechtigtem Einwand, dass sich Spülmaschine und Müll in unserem letzten Entwurf gegenseitig blockieren, habe ich mir nochmal genauer die Situation vor Ort angeschaut:

  • Fenster ist effektiv schmaler als gedacht: Fensternische hat 97,5cm, der Flügel hat 90cm, Rahmen ist 10cm zurückgesetzt, von der Wand aus gemessen -> wenn geöffnet, braucht das Fenster also ~80cm Platz.
  • An der Wand, die Kerstin für den Kühlschrank vorgesehen hat, befindet sich 30cm von der vorderen Kante entfernt der Lichtschalter, und oberhalb davon der Regler für die Fußbodenheizung (war noch nicht montiert, wurde mir vom Bauträger aber so erklärt - hoffentlich stimmts). Das würde bedeuten, dass man da keinen Kühlschrank davor stellen kann :(
Wir haben jetzt also die Schränke nochmal ein bisschen umsortiert und kamen bei dieser Lösung raus. Der Kühlschrank müsste dazu ein paar cm nach vorne gerückt werden, damit dahinter das Wasser zur Spüle geführt werden kann.

Könnte man nun sogar noch versuchen, einen weiteren Hochschrank mit Backofen neben den Kühlschrank zu stellen? Oder wird das zu wuchtig? Es würde auch zu Lasten der Arbeitsfläche gehen - wieviel Platz sollte man denn mindestens haben?

Gruß,
Dirk

P.S.: Ich hab an die Küche im Alnoplaner mal noch das restliche Wohnzimmer drangebaut, damit man einen besseren Eindruck gewinnt.
 

Anhänge

  • ansicht_1.jpg
    ansicht_1.jpg
    24 KB · Aufrufe: 193
  • ansicht_2.jpg
    ansicht_2.jpg
    22,9 KB · Aufrufe: 181
  • ansicht_3.jpg
    ansicht_3.jpg
    32 KB · Aufrufe: 182
  • alno_L.POS
    9,7 KB · Aufrufe: 178
  • alno_L.KPL
    4,2 KB · Aufrufe: 172
AW: Offene Küche mit problematischer Lage der Anschlüsse

Hallo Samy,
der Grundriss hat mich auch interessiert, deshalb habe ich mir mal die Dateien heruntergeladen ... und hier ist er, der Grundriss.

@Dirk,
ich finde, da ist das Spülbecken zu eingeengt. Ich habe das jetzt so, dass rechts von der Spüle gleich mein Kühlschrank kommt. Beim Abgießen größerer Töpfe etc. ist das etwas ungünstig.
 

Anhänge

  • kf_teufeld_20091027_EigVar2_Grundriss.jpg
    kf_teufeld_20091027_EigVar2_Grundriss.jpg
    119,5 KB · Aufrufe: 176
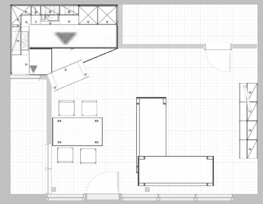
AW: Offene Küche mit problematischer Lage der Anschlüsse

Hallo Dirk,
wenn du sowieso schon die Hochschränke vorziehst, dann könnte man auch den Rest der Zeile die 5 cm vorziehen und hat dann auch keine Sprünge in der Zeile. Dann als erstes die Spüma und dann erst die Spüle. Das Kochfeld dann um die Ecke. Die Abluftführung dürfte da auch problemlos auf den Hängeschränken laufen können. Das dann evtl. mt Trockenbau verkleiden.

Für zusätzliche Arbeitsfläche habe ich jetzt an der Fliesenkante mal noch einen 90er Unterschrank untergebracht, zum Wohnbereich hin mit z. B. Weinregalen eingerahmt, da links (vom Wohnbereich aus gesehen) für so eine Umrahmung ja auch nicht die volle 60er Tiefe nutzbar ist.

Den Tisch mal gedreht, das schafft auf jeden Fall Platz genug hinter den Stühlen. Sofa und Wohnzimmerwand mal angedeutet.
 

Anhänge

  • kf_teufeld_20091027_Variante3_Ansicht5.jpg
    kf_teufeld_20091027_Variante3_Ansicht5.jpg
    184,3 KB · Aufrufe: 735
  • kf_teufeld_20091027_Variante3_Ansicht4.jpg
    kf_teufeld_20091027_Variante3_Ansicht4.jpg
    199,9 KB · Aufrufe: 200
  • kf_teufeld_20091027_Variante3_Ansicht3.jpg
    kf_teufeld_20091027_Variante3_Ansicht3.jpg
    198,9 KB · Aufrufe: 183
  • kf_teufeld_20091027_Variante3_Ansicht2.jpg
    kf_teufeld_20091027_Variante3_Ansicht2.jpg
    242,5 KB · Aufrufe: 183
  • kf_teufeld_20091027_Variante3_Ansicht1.jpg
    kf_teufeld_20091027_Variante3_Ansicht1.jpg
    255,8 KB · Aufrufe: 183
  • kf_teufeld_20091027_Variante3.POS
    13,1 KB · Aufrufe: 188
  • kf_teufeld_20091027_Variante3.kpl
    4,2 KB · Aufrufe: 153
  • kf_teufeld_20091027_Variante3_Grundriss.jpg
    kf_teufeld_20091027_Variante3_Grundriss.jpg
    113,4 KB · Aufrufe: 195
AW: Offene Küche mit problematischer Lage der Anschlüsse

Kärschdin baut ne SCHRÄGE Insel:w00t::w00t::w00t:.

dass ich DAS noch erleben darf:kiss:
:dance:
S-Punkt
*duckundwech
 
AW: Offene Küche mit problematischer Lage der Anschlüsse

Sam: *psst*, sonst merkt sie es noch....:2daumenhoch::clap::dance::-X

neko
 
AW: Offene Küche mit problematischer Lage der Anschlüsse

merkt se nich Neko... sie versteht kein schwäbisch;D (namenstechnisch;-) )
*winke*
Samy
 
AW: Offene Küche mit problematischer Lage der Anschlüsse

Ich merke es >:( ;D;D ... hat sich hier doch wegen der schon vorhandenen schrägen Fliesenlinie angeboten ;-)
 
AW: Offene Küche mit problematischer Lage der Anschlüsse

Warum? Und was macht man gegen APL-Mangel?
 
AW: Offene Küche mit problematischer Lage der Anschlüsse

Warum? Und was macht man gegen APL-Mangel?

:idee2:

Wangenboden drunterschrauben, 4 Industrierollen befestigen und den Schrank rollbar machen. Klasse auch, wenn ich auf der Terasse ( Balkon ) grillen will. Auszüge natürlich auf Türen tauschen.

GUT? :-)
 
AW: Offene Küche mit problematischer Lage der Anschlüsse

Auch ne Möglichkeit ... obwohl ich Auszüge besser finde ;-) .. und ich es auch gut fände, wenn das wirklich mit der sowieso schrägen Fliesenlinie am Übergang zum Wohnzimmer stehen würde.

Ob das jetzt mit Weinregalen oder so abgeschlossen bzw. an die Wand angeschlossen wird, ist ja egal. Ist ja nur ein genereller Stellvorschlag.
 
AW: Offene Küche mit problematischer Lage der Anschlüsse

Also die Küche hat was. Die würd mir auch gefallen Kerstin.
Ich find die schräge Abstellfläche ideal z. B. für Buffets (oder schreibt man das mit der neuen Rechtschreibung jetzt Büfeee?) ;-)

LG
Sabine
 
AW: Offene Küche mit problematischer Lage der Anschlüsse

Sabine,
ich schreibe mal Büffett (eingedeutscht??? ;D;D), dann wieder Buffett.

Ja, die Abstell- und eben auch Zubereitungsfläche halte ich eben für notwendig. Denn im eigentlichen Küchen-L ist da ja nicht so viel. Und Spüle und Kochfeld sind da auch ein bisschen nah beieinander. So läßt sich das aber etwas kompensieren.

Mal sehen, was Dirk dazu sagt.
 
AW: Offene Küche mit problematischer Lage der Anschlüsse

Also die Idee, das Ding drehbar/beweglich zu machen finde ich gut.

Dann kann man es bei Bedarf einfach aus der Schusslinie schieben oder anders rum die Küche etwas abgrenzen, damit da niemand im Weg rum steht.

Gerade wenn es etwas hektisch wird, bevorzuge ich es in meiner Küche freie Schusslinie zu haben und kein Hindernissrennen veranstneuen zu müssen. Am Besten noch irgendwelche Leute, die neugierig in meine Töpfe schnuppern und mich beim Umrühren behindern ;-) (da hilft auch kein Lob der Art 'Oh! riecht das aber verführerisch' - Wenn Du hier noch lange rumstehst, ändert sich das bald.)

Von der Multifunktion zusätzliche APL, Ablagefläche, Buffet, Tresen... ganz zu schweigen.
Aber ich glaube, ich würde es nicht komplett verschiebbar machen, sondern an einer Ecke fixieren (Drehachse), damit es nicht zu sehr wandert.

neko
 

Ähnliche Beiträge

Neff Hausgeräte Ballerina Küchen Blum Bewegungstechnologie Weibel - Intelligente Küchenlüftung

Neff Spezial

Blum Zonenplaner

Weibel Abluft-Tuning

Weibel Abluft-Tuning
Zurück
Oben