Heintke
Mitglied
- Beiträge
- 7
Offene Küche im Neubau
Hallo liebe Community!
Ich habe schon viel bei euch gelesen und bin begeistert über die vielen tollen Antworten, kritischen Kommentare und ehrlichen Meinungen von euch.
Wir bauen mit einem Bauträger eine Doppelhaushälfte und wollen so langsam unsere Küche festlegen, damit wir den Installationsplan von einem Studio erhalten und diesen dem Bauträger übermitteln können. Wir haben schon viele Ideen und auch schon einen "Plan" wie wir uns unsere Küche vorstellen.
Wir waren auch schon in vielen Studios und Möbelhäusern und haben uns inspirieren und beraten lassen. Essenz ist nun der beigefügte Plan
Die Küche soll grifflos (ging im Programm nicht), schwarz matt und offen gestaltet sein. Wir möchten unsere Geräte soweit mitnehmen, lediglich die Mikrowelle und der Geschirrspüler müssen neu angeschafft werden. Über die Dunstabzugshaube sind wir uns noch nicht einig (Bora ? Abluft/Umluft? / Lifthaube?).
Wir planen Kinder und möchten diese am Geschehen teilhaben lassen, daher ist die "Bank" eingeplant. Zum einen können sich Alte/Junge auch mal setzen und zum anderen soll dies die "Arbeitsplatte " für die geplanten Kinder sein. Die Teilinsel soll etwa 180-190cm lang sein.
Jetzt bin ich gespannt auf eure Kommentare, Ideen, Fragen und Kritiken!
Wir sind noch offen für Vorschläge oder Veränderungen oder aber auch komplett andere Ideen. Bitte gebt uns ein Feedback, was wir verbessern oder anders machen können oder sollen/ müssen.
Wir danken euch bereits im Voraus sehr
Viele Grüße und einen schönen Restabend!
Checkliste zur Küchenplanung
Personenkriterien und Ergonomie
Anzahl Personen im Haushalt: 2
Davon Kinder: keine
Körpergrößen aller Hauptbenutzer in cm (wegen Arbeitshöhe ): 178, 168
Welche Arbeitshöhe ist angedacht (in cm)?: 94
Gebäudekriterien
Art des Gebäudes: Neu-/Umbau > Planänderungen möglich
Brüstungshöhe des Fensters (in cm): noch nicht bekannt
Fensterhöhe (in cm): noch nicht bekannt, eventuell Unterlicht
Raumhöhe in cm: 250-270
Heizung: Fußbodenheizung
Sanitäranschlüsse: vollkommen variabel
Einbaugerätekriterien
Ausführung Kühlgerät: Stand-Alone bis 60cm Breite
Einbaukühlgerät Größe: N. a.
Ausführung Tiefkühl (TK)-Gerät: N. a.
Dunstabzugshaube: N. a.
Hochgebauter Backofen : ja
Geplante Heißgeräte: Einbaumikrowelle, Backofen
Hochgebauter Geschirrspüler : nein
Art des Kochfeldes: Induktion
Kochfeldbreite (ca. in cm): 60
Sitzmöglichkeiten
Sitzmöglichkeit in der Küche / im Küchenbereich: Keine
Sitzmöglichkeit: Für wieviel Personen?: nein
Sitzmöglichkeit: Tisch - wenn gesonderter Tisch oder offene Küche: Keiner
Gewünschte oder vorhandene Tischgröße:
Wofür soll der Sitzplatz in der Küche genutzt werden und wie häufig:
Stauraumplanung
Was steht auf der Arbeitsplatte oder soll dort stehen?: Kaffeemaschine, Wasserkocher, Messerblock, Küchenmaschine, Toaster, Obstschale
Welche weiteren Küchenmaschinen müssen in der Küche untergebracht werden: Allesschneider (z.B. in Schublade), Handrührgerät, Mixer, Pürierstab
Was soll in der Küche außer den Standards untergebracht werden: Geschirr komplett (nichts in Ess-/Wohnzimmer)
Welchen Stauraum gibt es sonst noch: Keller
Kochgewohnheiten
Was/wie wird gekocht? (Alltagsküche, Menüs, Snacks usw): Alltagsküche, Mittags frisch
Wie häufig wird gekocht: (fast) täglich 1x warm
Wird alleine gekocht? Oder auch gemeinsam? Mit und für Gäste?: Oft auch zu zweit
Spülen und Müll
Spülenform: Noch nicht festgelegt
Welche Mülltrennung soll in der Küche vorgehalten werden: Biomüll, Gelber Sack Müll, Restmüll
Sonstiges
Steht schon ein Küchenhersteller fest oder wird bevorzugt: Nobilia / Schüller wg. der No Fingerprint Fronten
Steht schon ein Gerätehersteller fest oder wird bevorzugt:
Küchenstil: Grifflose Küche
Was stört an der bisherigen Küche und was soll die neue Küche unbedingt können? Warum?:
Preisvorstellung (Budget): 10000
---------------------------
Im Threadverlauf hinzugekommen:
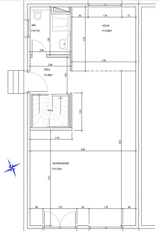
EG-Grundriss als JPG aus PDF-Datei
Angehängte Dateien
Hallo liebe Community!
Ich habe schon viel bei euch gelesen und bin begeistert über die vielen tollen Antworten, kritischen Kommentare und ehrlichen Meinungen von euch.
Wir bauen mit einem Bauträger eine Doppelhaushälfte und wollen so langsam unsere Küche festlegen, damit wir den Installationsplan von einem Studio erhalten und diesen dem Bauträger übermitteln können. Wir haben schon viele Ideen und auch schon einen "Plan" wie wir uns unsere Küche vorstellen.
Wir waren auch schon in vielen Studios und Möbelhäusern und haben uns inspirieren und beraten lassen. Essenz ist nun der beigefügte Plan
Die Küche soll grifflos (ging im Programm nicht), schwarz matt und offen gestaltet sein. Wir möchten unsere Geräte soweit mitnehmen, lediglich die Mikrowelle und der Geschirrspüler müssen neu angeschafft werden. Über die Dunstabzugshaube sind wir uns noch nicht einig (Bora ? Abluft/Umluft? / Lifthaube?).
Wir planen Kinder und möchten diese am Geschehen teilhaben lassen, daher ist die "Bank" eingeplant. Zum einen können sich Alte/Junge auch mal setzen und zum anderen soll dies die "Arbeitsplatte " für die geplanten Kinder sein. Die Teilinsel soll etwa 180-190cm lang sein.
Jetzt bin ich gespannt auf eure Kommentare, Ideen, Fragen und Kritiken!
Wir sind noch offen für Vorschläge oder Veränderungen oder aber auch komplett andere Ideen. Bitte gebt uns ein Feedback, was wir verbessern oder anders machen können oder sollen/ müssen.
Wir danken euch bereits im Voraus sehr
Viele Grüße und einen schönen Restabend!
Checkliste zur Küchenplanung
Personenkriterien und Ergonomie
Anzahl Personen im Haushalt: 2
Davon Kinder: keine
Körpergrößen aller Hauptbenutzer in cm (wegen Arbeitshöhe ): 178, 168
Welche Arbeitshöhe ist angedacht (in cm)?: 94
Gebäudekriterien
Art des Gebäudes: Neu-/Umbau > Planänderungen möglich
Brüstungshöhe des Fensters (in cm): noch nicht bekannt
Fensterhöhe (in cm): noch nicht bekannt, eventuell Unterlicht
Raumhöhe in cm: 250-270
Heizung: Fußbodenheizung
Sanitäranschlüsse: vollkommen variabel
Einbaugerätekriterien
Ausführung Kühlgerät: Stand-Alone bis 60cm Breite
Einbaukühlgerät Größe: N. a.
Ausführung Tiefkühl (TK)-Gerät: N. a.
Dunstabzugshaube: N. a.
Hochgebauter Backofen : ja
Geplante Heißgeräte: Einbaumikrowelle, Backofen
Hochgebauter Geschirrspüler : nein
Art des Kochfeldes: Induktion
Kochfeldbreite (ca. in cm): 60
Sitzmöglichkeiten
Sitzmöglichkeit in der Küche / im Küchenbereich: Keine
Sitzmöglichkeit: Für wieviel Personen?: nein
Sitzmöglichkeit: Tisch - wenn gesonderter Tisch oder offene Küche: Keiner
Gewünschte oder vorhandene Tischgröße:
Wofür soll der Sitzplatz in der Küche genutzt werden und wie häufig:
Stauraumplanung
Was steht auf der Arbeitsplatte oder soll dort stehen?: Kaffeemaschine, Wasserkocher, Messerblock, Küchenmaschine, Toaster, Obstschale
Welche weiteren Küchenmaschinen müssen in der Küche untergebracht werden: Allesschneider (z.B. in Schublade), Handrührgerät, Mixer, Pürierstab
Was soll in der Küche außer den Standards untergebracht werden: Geschirr komplett (nichts in Ess-/Wohnzimmer)
Welchen Stauraum gibt es sonst noch: Keller
Kochgewohnheiten
Was/wie wird gekocht? (Alltagsküche, Menüs, Snacks usw): Alltagsküche, Mittags frisch
Wie häufig wird gekocht: (fast) täglich 1x warm
Wird alleine gekocht? Oder auch gemeinsam? Mit und für Gäste?: Oft auch zu zweit
Spülen und Müll
Spülenform: Noch nicht festgelegt
Welche Mülltrennung soll in der Küche vorgehalten werden: Biomüll, Gelber Sack Müll, Restmüll
Sonstiges
Steht schon ein Küchenhersteller fest oder wird bevorzugt: Nobilia / Schüller wg. der No Fingerprint Fronten
Steht schon ein Gerätehersteller fest oder wird bevorzugt:
Küchenstil: Grifflose Küche
Was stört an der bisherigen Küche und was soll die neue Küche unbedingt können? Warum?:
Preisvorstellung (Budget): 10000
---------------------------
Im Threadverlauf hinzugekommen:
EG-Grundriss als JPG aus PDF-Datei
Angehängte Dateien
Anhänge
Zuletzt bearbeitet von einem Moderator:
