Janda
Mitglied
- Beiträge
- 26
Hallo liebe Forumsmitglieder,
ich bin froh dieses Forum gefunden zu haben und habe schon einige Anregungen für die Küchenplanung bekommen.
Da wir zur Zeit noch ca 500 km von unserem neuen Wohnort in NRW entfernt wohnen, möchten wir schon so weit wie möglich vorplanen.
Wir werden wahrscheinlich eine Alma-Küche kaufen. Meine Schwester hat eine und ist auch schon damit umgezogen und hat erweitert. Sie ist sehr zufrieden mit der Küche und dem Service.
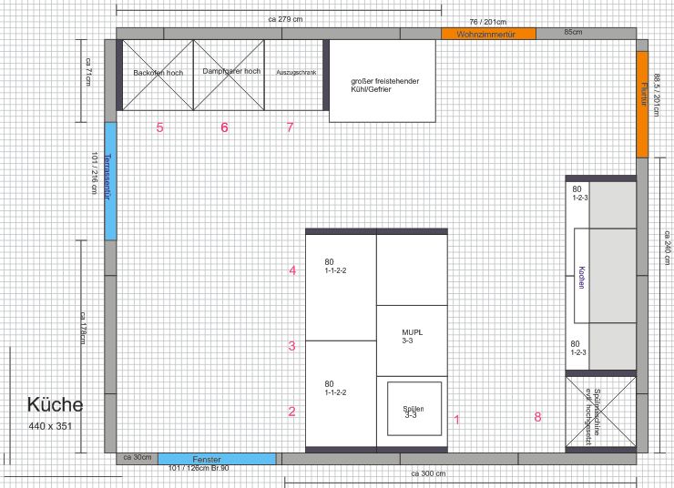
Da ich zunächst Schwierigkeiten mit dem Alno Planer hatte, habe ich den Grundriß und die Planung zunächst in Corel Draw gemacht, habe mich aber inzwischen mit dem Alno Planer angefreundet und auch ein paar Screenshots zustande gebracht.
Die Maße sind dem Grundriss entnommen. Wir werden aber Ende April dort sein und die genauen Maße nehmen können.
Die Küche ist eine geschlossene Küche mit Tür zum Wohnzimmer, in dem es einen Essplatz gibt. (Die Tür geht im Alno Planer in die Küche auf in der Realität, geht die Tür aber ins Wohnzimmer auf). Trotzdem möchten wir auch einen Essplatz für zwei Personen in der Küche habe, den wir hauptsächlich nutzen, wenn wir alleine sind.
Anschluss für den Herd ist Plan-rechts, da wo ich das Kochen geplant habe. Der Wasseranschluss ist Plan-unten an der Wand und müsste dann wohl in den Raum gelegt werden.
Die Fronten werden wahrscheinlich Schichtstoff werden und als Arbeitsplatte hätte ich gerne Granit. Hinter dem Herd eine Glasnischenverkleidung.
Als Dunstabzugshaube möchte ich auf keinen Falle eine Edelstahlhaube (ist meiner Meinung nach nur Schmutzfänger), sondern eine DAH im Schrank.
Der Stellplan, den ich mir ausgedacht habe gefällt mir eigentlich ganz gut. Aber sicherlich habt Ihr Verbesserungsvorschläge.
Viele Grüße
Janda
Checkliste zur Küchenplanung von Janda
Anzahl Personen im Haushalt : 2
Davon Kinder? : keine
Körpergrössen aller Hauptbenutzer (wegen Arbeitshöhe ) in cm : 175
Art des Gebäudes? : Bestandsbau, (kleinere) Umbauten möglich
Brüstungshöhe des Fensters (in cm) : 90
Fensterhöhe (in cm) : 126
Raumhöhe in cm: : 250?
Heizung : Fussbodenheizung
Sanitäranschlüsse : variabel an aktueller Wand
Ausführung Kühlgerät? : Side by Side ca. 90cm breit
Kühlgerät Größe : bis 175 cm Höhe
Ausführung Tiefkühl (TK)-Gerät : Nicht erforderlich bzw. steht woanders
Dunstabzugshaube? : Abluft
Backofen etc. hochgebaut? : Ja
Hochgebauter Geschirrspüler ? : nein
Kochfeldart? : Ceran (herkömmlich)
Kochfeldbreite ca. (in cm)? : 80
Spülenform: : 1 Becken ohne Abtropffläche
Weitere geplante Heißgeräte : Dampfgarer ohne Wasseranschluß
Küchenstil? : modern
Sitzmöglichkeit in der Küche / im Küchenbereich als : Gesonderter Tisch
Sitzmöglichkeit: Für wieviel Personen? : für 2 Personen
Sitzmöglichkeit: Tisch - wenn gesonderter Tisch oder offene Küche : Wird nach Bedarf neu gekauft
Gewünschte o. vorhandene Tischgröße : 80 x 80
Wofür soll der Sitzplatz in der Küche genutzt werden? Wie häufig? : zum Essen, täglich
Welche Arbeitshöhe ist angedacht (in cm)? : ca 95-98
Was steht auf der Arbeitsplatte oder soll dort stehen? : Wasserkocher, Küchenmaschine, Toaster, Brotbehälter, Obstschale
Welche weiteren Küchenmaschinen müssen in der Küche untergebracht werden? : Schneidemaschine (z. B. in Schublade), Handrührgerät, Mixer, Pürierstab
Was soll in der Küche außer den Standards untergebracht werden? : Sonstiges (evtl. im Beitragstext benennen)
Welchen Stauraum gibt es sonst noch? : Geschirr/Gläserschrank im Wohn-/Esszimmer, Speisekammer, Keller
Was/wie wird gekocht? (Alltagsküche, Menüs, Snacks usw) : Alles mögliche
Wie häufig wird gekocht? : (fast) täglich 1x warm
Wird alleine gekocht? Oder auch gemeinsam? Mit und für Gäste? : es wird hauptsächlich alleine gekocht. Ab und zu auch für Gäste
Was stört an der bisherigen Küche und was soll die neue Küche unbedingt können? Warum? : an der neuen Küche stört mich, dass der Backofen nicht hochgestellt ist und dass wir eine Edelstahl Dunstabzugshaube haben. Die neue Küche ist notwendig, weil wir umziehen.
Steht schon ein Küchenhersteller fest oder wird bevorzugt? : evtl. Alma Küchen
Steht schon ein Gerätehersteller fest oder wird bevorzugt? :
Preisvorstellung (Budget) : bis 3.000,-
ich bin froh dieses Forum gefunden zu haben und habe schon einige Anregungen für die Küchenplanung bekommen.
Da wir zur Zeit noch ca 500 km von unserem neuen Wohnort in NRW entfernt wohnen, möchten wir schon so weit wie möglich vorplanen.
Wir werden wahrscheinlich eine Alma-Küche kaufen. Meine Schwester hat eine und ist auch schon damit umgezogen und hat erweitert. Sie ist sehr zufrieden mit der Küche und dem Service.
Da ich zunächst Schwierigkeiten mit dem Alno Planer hatte, habe ich den Grundriß und die Planung zunächst in Corel Draw gemacht, habe mich aber inzwischen mit dem Alno Planer angefreundet und auch ein paar Screenshots zustande gebracht.
Die Maße sind dem Grundriss entnommen. Wir werden aber Ende April dort sein und die genauen Maße nehmen können.
Die Küche ist eine geschlossene Küche mit Tür zum Wohnzimmer, in dem es einen Essplatz gibt. (Die Tür geht im Alno Planer in die Küche auf in der Realität, geht die Tür aber ins Wohnzimmer auf). Trotzdem möchten wir auch einen Essplatz für zwei Personen in der Küche habe, den wir hauptsächlich nutzen, wenn wir alleine sind.
Anschluss für den Herd ist Plan-rechts, da wo ich das Kochen geplant habe. Der Wasseranschluss ist Plan-unten an der Wand und müsste dann wohl in den Raum gelegt werden.
Die Fronten werden wahrscheinlich Schichtstoff werden und als Arbeitsplatte hätte ich gerne Granit. Hinter dem Herd eine Glasnischenverkleidung.
Als Dunstabzugshaube möchte ich auf keinen Falle eine Edelstahlhaube (ist meiner Meinung nach nur Schmutzfänger), sondern eine DAH im Schrank.
Der Stellplan, den ich mir ausgedacht habe gefällt mir eigentlich ganz gut. Aber sicherlich habt Ihr Verbesserungsvorschläge.
Viele Grüße
Janda
Checkliste zur Küchenplanung von Janda
Anzahl Personen im Haushalt : 2
Davon Kinder? : keine
Körpergrössen aller Hauptbenutzer (wegen Arbeitshöhe ) in cm : 175
Art des Gebäudes? : Bestandsbau, (kleinere) Umbauten möglich
Brüstungshöhe des Fensters (in cm) : 90
Fensterhöhe (in cm) : 126
Raumhöhe in cm: : 250?
Heizung : Fussbodenheizung
Sanitäranschlüsse : variabel an aktueller Wand
Ausführung Kühlgerät? : Side by Side ca. 90cm breit
Kühlgerät Größe : bis 175 cm Höhe
Ausführung Tiefkühl (TK)-Gerät : Nicht erforderlich bzw. steht woanders
Dunstabzugshaube? : Abluft
Backofen etc. hochgebaut? : Ja
Hochgebauter Geschirrspüler ? : nein
Kochfeldart? : Ceran (herkömmlich)
Kochfeldbreite ca. (in cm)? : 80
Spülenform: : 1 Becken ohne Abtropffläche
Weitere geplante Heißgeräte : Dampfgarer ohne Wasseranschluß
Küchenstil? : modern
Sitzmöglichkeit in der Küche / im Küchenbereich als : Gesonderter Tisch
Sitzmöglichkeit: Für wieviel Personen? : für 2 Personen
Sitzmöglichkeit: Tisch - wenn gesonderter Tisch oder offene Küche : Wird nach Bedarf neu gekauft
Gewünschte o. vorhandene Tischgröße : 80 x 80
Wofür soll der Sitzplatz in der Küche genutzt werden? Wie häufig? : zum Essen, täglich
Welche Arbeitshöhe ist angedacht (in cm)? : ca 95-98
Was steht auf der Arbeitsplatte oder soll dort stehen? : Wasserkocher, Küchenmaschine, Toaster, Brotbehälter, Obstschale
Welche weiteren Küchenmaschinen müssen in der Küche untergebracht werden? : Schneidemaschine (z. B. in Schublade), Handrührgerät, Mixer, Pürierstab
Was soll in der Küche außer den Standards untergebracht werden? : Sonstiges (evtl. im Beitragstext benennen)
Welchen Stauraum gibt es sonst noch? : Geschirr/Gläserschrank im Wohn-/Esszimmer, Speisekammer, Keller
Was/wie wird gekocht? (Alltagsküche, Menüs, Snacks usw) : Alles mögliche
Wie häufig wird gekocht? : (fast) täglich 1x warm
Wird alleine gekocht? Oder auch gemeinsam? Mit und für Gäste? : es wird hauptsächlich alleine gekocht. Ab und zu auch für Gäste
Was stört an der bisherigen Küche und was soll die neue Küche unbedingt können? Warum? : an der neuen Küche stört mich, dass der Backofen nicht hochgestellt ist und dass wir eine Edelstahl Dunstabzugshaube haben. Die neue Küche ist notwendig, weil wir umziehen.
Steht schon ein Küchenhersteller fest oder wird bevorzugt? : evtl. Alma Küchen
Steht schon ein Gerätehersteller fest oder wird bevorzugt? :
Preisvorstellung (Budget) : bis 3.000,-
Anhänge
-
JandaKüche4.JPG34,8 KB · Aufrufe: 231 -
JandaKücheCDGrundriss.jpg96,6 KB · Aufrufe: 228 -
JandaKücheAlnoGrundriss.JPG21,2 KB · Aufrufe: 212 -
JandaKüche1.JPG34,3 KB · Aufrufe: 229 -
JandaKüche2.JPG22,2 KB · Aufrufe: 250 -
JandaKüche3.JPG31,6 KB · Aufrufe: 223 -
JandaPLAN1.KPL4,1 KB · Aufrufe: 172
-
JandaPLAN1.POS7,5 KB · Aufrufe: 184
