4erKette
Mitglied
- Beiträge
- 5
Guten Morgen,
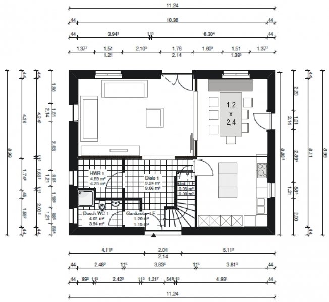
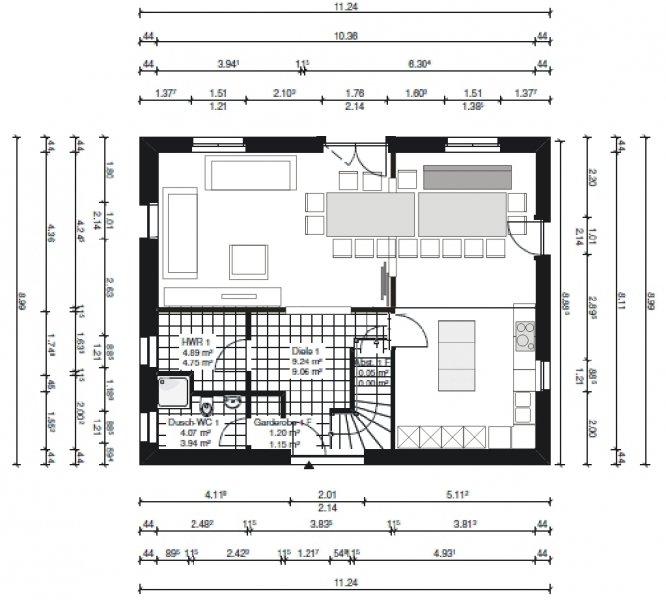
wir werden dieses Jahr bauen. Bis vor zwei Wochen haben wir uns (leider) noch keine Gedanken über die Küchenaufteilung gemacht, da andere Sachen Priorität hatten. Seitdem bin ich hier aber fleißig am mitlesen und habe bestimmt 15 verschieden Küchenpläne mit Alno gemacht.
Nachdem ich letzte Nacht gefühlte 3 Stunden nicht schlafen konnte, weil mir die Aufteilung der Küche nicht aus dem Kopf ging (1h davon saß ich vorm Alno Küchenplaner), hoffe ich, dass ihr mir helfen könnt, die für uns beste Küchenlösung zu finden. Ich hätte am liebsten den ganzen Grundriss über den Haufen geworfen.
Die Türen und Fenster planoben im Grundriss können nur bedingt verschoben werden, da sie momentan genau unter den Fenstern im 1. OG liegen. Die Terassentür planlinks ist variabel. In meinem Plan habe ich sie weiter nach unten verschoben.
Wir möchten gerne eine Küche mit Essplatz, wo 2 Erwachsene und 4 Kinder täglich essen können. Dazu soll es einen Durchgang mit Schiebetüren zum Wohnzimmer geben, der geöffnet werden kann, wenn wir viele Gäste erwarten (mind. 6x im Jahr zu den Geburtstagen, Ostern, Weihnachten ...). Im Wohnzimmer soll auch ein Esstisch für solche Ereignisse stehen. Im Alltag wird dieser Tisch dann als Spieletisch, Hausaufgabentisch, Basteltisch ... genutzt.
Mein Mann hätte gerne eine U-Form mit Essecke. Ich sehe jedoch nicht, dass wir genügend Platz dafür eingeplant haben.
Die Innenaufteilung der Schränke bin ich noch nicht angegangen, da es mir momentan auf den groben Grundriss ankommt, damit wir dem Häuslebauer demnächst den endgültigen Grundriss mitteilen können.
Jetzt dürft ihr meinen Plan zerfetzen
Schöne Grüße
4erKette
Checkliste zur Küchenplanung von 4erKette
Anzahl Personen im Haushalt : 2
Davon Kinder? : 4
Körpergrössen aller Hauptbenutzer (wegen Arbeitshöhe ) in cm : 165, 178
Art des Gebäudes? : Neu-/Umbau, Planänderungen möglich
Brüstungshöhe des Fensters (in cm) : 93
Fensterhöhe (in cm) : 121
Raumhöhe in cm: : 250
Heizung : Fussbodenheizung
Sanitäranschlüsse : vollkommen variabel
Ausführung Kühlgerät? : Integriert im Hochschrank (60cm)
Kühlgerät Größe : bis 175 cm Höhe
Ausführung Tiefkühl (TK)-Gerät : Im Kühlschrank bis 2 Schubladen unten
Dunstabzugshaube? : Abluft
Hochgebauter Backofen ? : Ja
Hochgebauter Geschirrspüler ? : wenn möglich
Kochfeldart? : Induktion
Kochfeldbreite ca. (in cm)? : 60
Spülenform: : 1,5 Becken mit Abtropffläche
Weitere geplante Heißgeräte : Standmikrowelle
Küchenstil? : modern
Sitzmöglichkeit in der Küche / im Küchenbereich als : Gesonderter Tisch
Sitzmöglichkeit: Für wieviel Personen? : für 6 Personen
Sitzmöglichkeit: Tisch - wenn gesonderter Tisch oder offene Küche : Wird nach Bedarf neu gekauft
Gewünschte o. vorhandene Tischgröße : 140 x 80
Wofür soll der Sitzplatz in der Küche genutzt werden? Wie häufig? : täglich 3 Mahlzeiten mit allen Kindern
Welche Arbeitshöhe ist angedacht (in cm)? : 91
Was steht auf der Arbeitsplatte oder soll dort stehen? : Kaffeemaschine, Wasserkocher, Allesschneider, Toaster, Obstschale
Welche weiteren Küchenmaschinen müssen in der Küche untergebracht werden? : Handrührgerät, Pürierstab
Was soll in der Küche außer den Standards untergebracht werden? : Geschirr komplett (nichts in Ess-/Wohnzimmer)
Welchen Stauraum gibt es sonst noch? : Hauswirtschaftsraum, Keller
Was/wie wird gekocht? (Alltagsküche, Menüs, Snacks usw) : Alltagsküche
Wie häufig wird gekocht? : (fast) täglich 1x warm
Wird alleine gekocht? Oder auch gemeinsam? Mit und für Gäste? : meist alleine
Was stört an der bisherigen Küche und was soll die neue Küche unbedingt können? Warum? : Mehr Stauraum, mehr freie Arbeitsflächen, Essplatz
Steht schon ein Küchenhersteller fest oder wird bevorzugt? : nein
Steht schon ein Gerätehersteller fest oder wird bevorzugt? : nein
Preisvorstellung (Budget) : bis 10.000,-
wir werden dieses Jahr bauen. Bis vor zwei Wochen haben wir uns (leider) noch keine Gedanken über die Küchenaufteilung gemacht, da andere Sachen Priorität hatten. Seitdem bin ich hier aber fleißig am mitlesen und habe bestimmt 15 verschieden Küchenpläne mit Alno gemacht.
Nachdem ich letzte Nacht gefühlte 3 Stunden nicht schlafen konnte, weil mir die Aufteilung der Küche nicht aus dem Kopf ging (1h davon saß ich vorm Alno Küchenplaner), hoffe ich, dass ihr mir helfen könnt, die für uns beste Küchenlösung zu finden. Ich hätte am liebsten den ganzen Grundriss über den Haufen geworfen.
Die Türen und Fenster planoben im Grundriss können nur bedingt verschoben werden, da sie momentan genau unter den Fenstern im 1. OG liegen. Die Terassentür planlinks ist variabel. In meinem Plan habe ich sie weiter nach unten verschoben.
Wir möchten gerne eine Küche mit Essplatz, wo 2 Erwachsene und 4 Kinder täglich essen können. Dazu soll es einen Durchgang mit Schiebetüren zum Wohnzimmer geben, der geöffnet werden kann, wenn wir viele Gäste erwarten (mind. 6x im Jahr zu den Geburtstagen, Ostern, Weihnachten ...). Im Wohnzimmer soll auch ein Esstisch für solche Ereignisse stehen. Im Alltag wird dieser Tisch dann als Spieletisch, Hausaufgabentisch, Basteltisch ... genutzt.
Mein Mann hätte gerne eine U-Form mit Essecke. Ich sehe jedoch nicht, dass wir genügend Platz dafür eingeplant haben.
Die Innenaufteilung der Schränke bin ich noch nicht angegangen, da es mir momentan auf den groben Grundriss ankommt, damit wir dem Häuslebauer demnächst den endgültigen Grundriss mitteilen können.
Jetzt dürft ihr meinen Plan zerfetzen
Schöne Grüße
4erKette
Checkliste zur Küchenplanung von 4erKette
Anzahl Personen im Haushalt : 2
Davon Kinder? : 4
Körpergrössen aller Hauptbenutzer (wegen Arbeitshöhe ) in cm : 165, 178
Art des Gebäudes? : Neu-/Umbau, Planänderungen möglich
Brüstungshöhe des Fensters (in cm) : 93
Fensterhöhe (in cm) : 121
Raumhöhe in cm: : 250
Heizung : Fussbodenheizung
Sanitäranschlüsse : vollkommen variabel
Ausführung Kühlgerät? : Integriert im Hochschrank (60cm)
Kühlgerät Größe : bis 175 cm Höhe
Ausführung Tiefkühl (TK)-Gerät : Im Kühlschrank bis 2 Schubladen unten
Dunstabzugshaube? : Abluft
Hochgebauter Backofen ? : Ja
Hochgebauter Geschirrspüler ? : wenn möglich
Kochfeldart? : Induktion
Kochfeldbreite ca. (in cm)? : 60
Spülenform: : 1,5 Becken mit Abtropffläche
Weitere geplante Heißgeräte : Standmikrowelle
Küchenstil? : modern
Sitzmöglichkeit in der Küche / im Küchenbereich als : Gesonderter Tisch
Sitzmöglichkeit: Für wieviel Personen? : für 6 Personen
Sitzmöglichkeit: Tisch - wenn gesonderter Tisch oder offene Küche : Wird nach Bedarf neu gekauft
Gewünschte o. vorhandene Tischgröße : 140 x 80
Wofür soll der Sitzplatz in der Küche genutzt werden? Wie häufig? : täglich 3 Mahlzeiten mit allen Kindern
Welche Arbeitshöhe ist angedacht (in cm)? : 91
Was steht auf der Arbeitsplatte oder soll dort stehen? : Kaffeemaschine, Wasserkocher, Allesschneider, Toaster, Obstschale
Welche weiteren Küchenmaschinen müssen in der Küche untergebracht werden? : Handrührgerät, Pürierstab
Was soll in der Küche außer den Standards untergebracht werden? : Geschirr komplett (nichts in Ess-/Wohnzimmer)
Welchen Stauraum gibt es sonst noch? : Hauswirtschaftsraum, Keller
Was/wie wird gekocht? (Alltagsküche, Menüs, Snacks usw) : Alltagsküche
Wie häufig wird gekocht? : (fast) täglich 1x warm
Wird alleine gekocht? Oder auch gemeinsam? Mit und für Gäste? : meist alleine
Was stört an der bisherigen Küche und was soll die neue Küche unbedingt können? Warum? : Mehr Stauraum, mehr freie Arbeitsflächen, Essplatz
Steht schon ein Küchenhersteller fest oder wird bevorzugt? : nein
Steht schon ein Gerätehersteller fest oder wird bevorzugt? : nein
Preisvorstellung (Budget) : bis 10.000,-
Anhänge
-
Grundriss EG.jpg98,8 KB · Aufrufe: 273 -
Grundriss Küche.jpg26,8 KB · Aufrufe: 233 -
Plan_2013-04-07.jpg32,8 KB · Aufrufe: 219 -
Fenster-Blick.jpg65,6 KB · Aufrufe: 230 -
Flur-Blick.jpg69,7 KB · Aufrufe: 226 -
Terassen-Blick.jpg66,3 KB · Aufrufe: 210 -
WZ-Blick.jpg64,5 KB · Aufrufe: 206 -
Alno 07.04.2013.KPL3,9 KB · Aufrufe: 194
-
Alno 07.04.2013.POS14,2 KB · Aufrufe: 197
