DinnerAtEight
Mitglied
- Beiträge
- 1
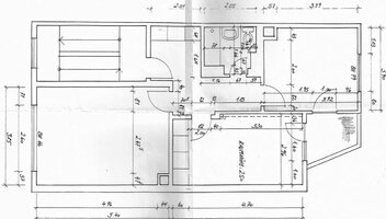
Minimalküchenzeile mit Waschmaschine und hoher Arbeitsplatte
Liebe Fachleute,
Im Voraus schon mal Vielen Dank für's Lesen und ggf. ein paar gute Gedanken zu meinem "Problemfall":
In diesen Wohnraum will ich eine kleine, möglichst unauffällige Küchenzeile stellen, ohne Oberschränke, ohne Herd (sondern mit mobiler Kochplatte), ohne Geschirrspüler , dafür aber mit Kühlschrank und Waschmaschine. Des Weiteren soll ein einzelnes Spülbecken mit Abtropffläche dazukommen und ein wenig Stauraum (die Geschirrmenge ist etwa eine große Einkaufstasche voll).
Die Zeile muss wohl in der Ecke neben dem Schacht beginnen und würde dann ca. 2 - 2,5m nach rechts reichen (ja nach Breite von Spüle, KS und WaMa), also nicht die gesamte Wandbreite abdecken. Das ist so gewollt, vor die restliche Wandfläche kommt dann ein Sofa hin.
Jetzt die Challenges:
1. Die Arbeitshöhe soll etwa 100 cm hoch sein.
2. Der Wasserhahn soll über der Spüle so weit hoch reichen, dass man darunter den Kopf waschen kann.
Blöderweise hängt aber direkt über den Wasseranschlüssen der Boiler, da ist also keine Kopffreiheit für einen hohen Wasserhahn. Deshalb überlege ich, ob ich die Spüle besser nach rechts neben den Boiler verziehe, oder aber nach vorne, so dass ich eine tiefere Arbeitsplatte bekomme. Aber dann bekomme ich bei Verwendung von Unterschränken mit Standardtiefe am rechten Ende der Küchenzeile das Problem, dass hinten eine Lücke bleibt. Oder komme ich hier mit Standardschränken (z.B. von IKEA ) sowieso nicht weiter wegen der höheren Arbeitshöhe? Würdet Ihr eine Einbauwaschmaschine empfehlen oder eine normale und die dann hinter eine Tür stellen? Sollte, wenn ich wegen der gewünschten Arbeitshöhe einen Sockel bauen muss, die Waschmaschine auch auf dem Sockel stehen oder davon entkoppelt auf dem Boden? In welcher Reihenfolge würdet Ihr die Geräte platzieren, von der linken Ecke aus? Spüle - Waschmaschine - Stauraum - Kühlschrank?
Ich hoffe, das war verständlich.
Viele Grüße, Peter
Checkliste zur Küchenplanung
Personenkriterien und Ergonomie
Anzahl Personen im Haushalt: 2
Davon Kinder: keine
Körpergrößen aller Hauptbenutzer in cm (wegen Arbeitshöhe): 178 und 184
Welche Arbeitshöhe ist angedacht (in cm)?: 100
Gebäudekriterien
Art des Gebäudes: Bestandsbau > Umbauten ausgeschlossen, Miete
Brüstungshöhe des Fensters (in cm): 75
Fensterhöhe (in cm): 150
Raumhöhe in cm: 250
Heizung: Heizkörper wie im Grundriss
Sanitäranschlüsse: fix
Einbaugerätekriterien
Ausführung Kühlgerät: Integriert im Hochschrank (60cm)
Einbaukühlgerät Größe: Noch unbekannt
Ausführung Tiefkühl (TK)-Gerät: Im Kühlschrank als kleines Fach oben
Dunstabzugshaube: keine
Hochgebauter Backofen : nein
Geplante Heißgeräte: N. a.
Hochgebauter Geschirrspüler : nein
Art des Kochfeldes: N. a.
Kochfeldbreite (ca. in cm):
Sitzmöglichkeiten
Sitzmöglichkeit in der Küche / im Küchenbereich: Separater Tisch
Sitzmöglichkeit: Für wieviel Personen?: Für 4 Personen
Sitzmöglichkeit: Tisch - wenn gesonderter Tisch oder offene Küche: Wird nach Bedarf neu gekauft
Gewünschte oder vorhandene Tischgröße:
Wofür soll der Sitzplatz in der Küche genutzt werden und wie häufig: Wohnküche
Stauraumplanung
Was steht auf der Arbeitsplatte oder soll dort stehen?: Wasserkocher, Brotbehälter, Obstschale, Sonstiges (evtl. im Beitragstext benennen)
Welche weiteren Küchenmaschinen müssen in der Küche untergebracht werden: Sonstiges (evtl. im Beitragstext benennen)
Was soll in der Küche außer den Standards untergebracht werden: ALLE Vorräte, Geschirr komplett (nichts in Ess-/Wohnzimmer)
Welchen Stauraum gibt es sonst noch: N. a.
Kochgewohnheiten
Was/wie wird gekocht? (Alltagsküche, Menüs, Snacks usw): Alltagsküche
Wie häufig wird gekocht: Ab und zu
Wird alleine gekocht? Oder auch gemeinsam? Mit und für Gäste?: allein
Spülen und Müll
Spülenform: 1 Becken mit Abtropffläche
Welche Mülltrennung soll in der Küche vorgehalten werden: Altglas, Altpapier, Biomüll, Gelber Sack Müll, Restmüll
Sonstiges
Steht schon ein Küchenhersteller fest oder wird bevorzugt: offen
Steht schon ein Gerätehersteller fest oder wird bevorzugt: offen
Küchenstil: N. a.
Was stört an der bisherigen Küche und was soll die neue Küche unbedingt können? Warum?: Die Küchenzeile soll minimal und unauffällig sein, der Wohnaspekt steht in diesem Raum im Vordergrund.
Preisvorstellung (Budget):
Angehängte Dateien
Liebe Fachleute,
Im Voraus schon mal Vielen Dank für's Lesen und ggf. ein paar gute Gedanken zu meinem "Problemfall":
In diesen Wohnraum will ich eine kleine, möglichst unauffällige Küchenzeile stellen, ohne Oberschränke, ohne Herd (sondern mit mobiler Kochplatte), ohne Geschirrspüler , dafür aber mit Kühlschrank und Waschmaschine. Des Weiteren soll ein einzelnes Spülbecken mit Abtropffläche dazukommen und ein wenig Stauraum (die Geschirrmenge ist etwa eine große Einkaufstasche voll).
Die Zeile muss wohl in der Ecke neben dem Schacht beginnen und würde dann ca. 2 - 2,5m nach rechts reichen (ja nach Breite von Spüle, KS und WaMa), also nicht die gesamte Wandbreite abdecken. Das ist so gewollt, vor die restliche Wandfläche kommt dann ein Sofa hin.
Jetzt die Challenges:
1. Die Arbeitshöhe soll etwa 100 cm hoch sein.
2. Der Wasserhahn soll über der Spüle so weit hoch reichen, dass man darunter den Kopf waschen kann.
Blöderweise hängt aber direkt über den Wasseranschlüssen der Boiler, da ist also keine Kopffreiheit für einen hohen Wasserhahn. Deshalb überlege ich, ob ich die Spüle besser nach rechts neben den Boiler verziehe, oder aber nach vorne, so dass ich eine tiefere Arbeitsplatte bekomme. Aber dann bekomme ich bei Verwendung von Unterschränken mit Standardtiefe am rechten Ende der Küchenzeile das Problem, dass hinten eine Lücke bleibt. Oder komme ich hier mit Standardschränken (z.B. von IKEA ) sowieso nicht weiter wegen der höheren Arbeitshöhe? Würdet Ihr eine Einbauwaschmaschine empfehlen oder eine normale und die dann hinter eine Tür stellen? Sollte, wenn ich wegen der gewünschten Arbeitshöhe einen Sockel bauen muss, die Waschmaschine auch auf dem Sockel stehen oder davon entkoppelt auf dem Boden? In welcher Reihenfolge würdet Ihr die Geräte platzieren, von der linken Ecke aus? Spüle - Waschmaschine - Stauraum - Kühlschrank?
Ich hoffe, das war verständlich.
Viele Grüße, Peter
Checkliste zur Küchenplanung
Personenkriterien und Ergonomie
Anzahl Personen im Haushalt: 2
Davon Kinder: keine
Körpergrößen aller Hauptbenutzer in cm (wegen Arbeitshöhe): 178 und 184
Welche Arbeitshöhe ist angedacht (in cm)?: 100
Gebäudekriterien
Art des Gebäudes: Bestandsbau > Umbauten ausgeschlossen, Miete
Brüstungshöhe des Fensters (in cm): 75
Fensterhöhe (in cm): 150
Raumhöhe in cm: 250
Heizung: Heizkörper wie im Grundriss
Sanitäranschlüsse: fix
Einbaugerätekriterien
Ausführung Kühlgerät: Integriert im Hochschrank (60cm)
Einbaukühlgerät Größe: Noch unbekannt
Ausführung Tiefkühl (TK)-Gerät: Im Kühlschrank als kleines Fach oben
Dunstabzugshaube: keine
Hochgebauter Backofen : nein
Geplante Heißgeräte: N. a.
Hochgebauter Geschirrspüler : nein
Art des Kochfeldes: N. a.
Kochfeldbreite (ca. in cm):
Sitzmöglichkeiten
Sitzmöglichkeit in der Küche / im Küchenbereich: Separater Tisch
Sitzmöglichkeit: Für wieviel Personen?: Für 4 Personen
Sitzmöglichkeit: Tisch - wenn gesonderter Tisch oder offene Küche: Wird nach Bedarf neu gekauft
Gewünschte oder vorhandene Tischgröße:
Wofür soll der Sitzplatz in der Küche genutzt werden und wie häufig: Wohnküche
Stauraumplanung
Was steht auf der Arbeitsplatte oder soll dort stehen?: Wasserkocher, Brotbehälter, Obstschale, Sonstiges (evtl. im Beitragstext benennen)
Welche weiteren Küchenmaschinen müssen in der Küche untergebracht werden: Sonstiges (evtl. im Beitragstext benennen)
Was soll in der Küche außer den Standards untergebracht werden: ALLE Vorräte, Geschirr komplett (nichts in Ess-/Wohnzimmer)
Welchen Stauraum gibt es sonst noch: N. a.
Kochgewohnheiten
Was/wie wird gekocht? (Alltagsküche, Menüs, Snacks usw): Alltagsküche
Wie häufig wird gekocht: Ab und zu
Wird alleine gekocht? Oder auch gemeinsam? Mit und für Gäste?: allein
Spülen und Müll
Spülenform: 1 Becken mit Abtropffläche
Welche Mülltrennung soll in der Küche vorgehalten werden: Altglas, Altpapier, Biomüll, Gelber Sack Müll, Restmüll
Sonstiges
Steht schon ein Küchenhersteller fest oder wird bevorzugt: offen
Steht schon ein Gerätehersteller fest oder wird bevorzugt: offen
Küchenstil: N. a.
Was stört an der bisherigen Küche und was soll die neue Küche unbedingt können? Warum?: Die Küchenzeile soll minimal und unauffällig sein, der Wohnaspekt steht in diesem Raum im Vordergrund.
Preisvorstellung (Budget):
Angehängte Dateien
Anhänge
