Unbeendet L-Küche in Altbau

Guybrush T

Mitglied
Beiträge
1

L-Küche in Altbau

Hallo zusammen,

ich habe sehr fleißig das Forum studiert, habe innerlich die Küche hoch eskaliert und nach Gesprächen mit Küchenplanern und deren Preisvorstellungen hier im Bodenseekreis mich (mit meiner Partnerin zusammen) wieder Richtung Ikea -Küche runtergedacht. Zusätzlich kam noch der reichliche Input von Freunden mit der IKEA Metod Küche, die alle sehr happy sind. Es gibt aber natürlich noch einige offene Fragen und bevor wir Fehler in der Planung machen, die wir in einem Jahr bereuen, wollte ich hier gerne einmal bei den Profis nachfragen.

Ich habe jetzt leider nur die Küchenplanung aus dem Ikea Küchenplaner, und ein Foto der bisherigen Küchen, ich hoffe, das reicht, für einen Überblick und ersten Input Eurerseits.

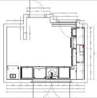
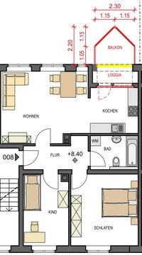
Wir sind frische Besitzer der Wohnung, siehe Anhang und wollen Böden, Wände und Küche neumachen. D.h. eventuell kann man Steckdosen noch verlegen.

Bei verschiedenen Ausprobierphasen im Ikea Küchenplaner kam im Endeffekt immer eine ähnliches Layout wie in der vorhandenen Küche heraus. Der Kühlschrank macht zum Ess/Wohnraum hin wohl einfach am meisten Sinn. Der Spülenanschluss sitzt ungefähr dort an der Wand und dann ist für Herd und Ofen noch die andere Wand frei.

Die Küche ist aber nicht besonders groß, deswegen scheinen wir da auch wenig Spielraum zu haben.

Zu den einzelnen Fragen.

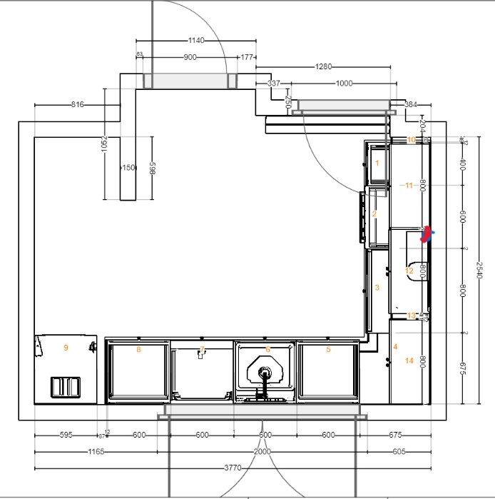
Im Anhang sind 2 Möglichkeiten die Kochplatte zu orientieren, einmal an der Wand und einmal nah an der Ecke. Macht das Sinn eine Kochplatte an einer Hauswand zu haben, bzgl Feuchtigkeit und Arbeitsplatz? Einen Abzug nach draussen ist wohl nicht sehr einfach zu implementieren, deswegen müssen wir auf Umluft zurückgreifen. In der Mitte der Arbeitsplatte sitzen die Steckdosen momentan, 1m über Boden und 0,9cm von der linken seitlichen Wand und 1,6m von der rechten Wand. Sollte man die verlegen oder ist die Herdplatte so ausreichen funktionell?

Wir dachten als Ecke einfach einen Schrank ohne Schnickschnack zu benutzen, aber Ikea hat leider nur Eckschränke mit 60cm Tür, gäbe es da noch eine andere Lösung außer tote Ecke oder Karussell?

Über die Dunstabzugshauben von Ikea habe ich nur schlechtes gelesen und würde daher auf ein besseres Modell zurückgreifen wollen. Braucht man da noch diesen zusätzlichen Aufsatz oben, oder reicht eine normale Haube?

Wir würden als Arbeitsplatte gerne Holzfurnier nehmen, die Ikea-Bewertungen sprechen aber Bände über die Qualität, dass sich das Furnier löst. Weiß jemand genaueres, ob das Holz einfach nicht gepflegt/geölt war, oder wirklich die Qualität so schlecht ist?

Zum Spülbecken hätten wir gerne eines, in das ein Backblech reinpasst. Das würde man ja aber meistens nicht ganz benutzen, würde dann als Abtropfgitter so ein Reinhängesieb reichen, oder braucht man noch eine Abtropffläche - gerade bei dem Holzfurniert (oder reicht dort ein trockenes Handtuch als Unterlage)

Gibt es Spülarmaturen, die in der Platte verschraubt werden, aber nicht auf die Arbeitsplatte tropfen beim An und Ausschalten am Hebel?

Für die Heizung am Fenster haben wir leider keine gute Lösung, so ist sie sehr hässlich. Ich fürchte ohne Heizung ist dort das Einfallstor für Schimmel durch die schlechte Dämmung im Altbau. Wir hatten überlegt eine halb so hohe Heizung einzubauen und mit einer groben Holzverschalung als Sitzbank und Treppe zur Fensterbank für die Kinder zu verwenden. Würde da die Heizleistung noch reichen, oder gibt es bessere Methoden?

Vielen dank schon einmal im Voraus!

Checkliste zur Kuechenplanung

Personenkriterien und Ergonomie
Anzahl Personen im Haushalt: 4
Davon Kinder: 2
Körpergrößen aller Hauptbenutzer in cm (wegen Arbeitshoehe): 190, 183
Welche Arbeitshöhe ist angedacht (in cm)?: 95

Gebäudekriterien
Art des Gebäudes: Bestandsbau > (kleinere) Umbauten möglich, Eigentum
Bruestungshöhe des Fensters (in cm): Platz vor Fenster auf 80 cm
Fensterhöhe (in cm): Fenster auf 100cm
Raumhöhe in cm: 243
Heizung: Heizkörper wie im Grundriss
Sanitäranschlüsse: variabel an aktueller Wand

Einbaugerätekriterien
Ausführung Kühlgerät: Stand-Alone bis 60cm Breite
Einbaukühlgerät Größe: Noch unbekannt
Ausführung Tiefkühl (TK)-Gerät: Nicht erforderlich bzw. steht woanders
Dunstabzugshaube: Umluft
Hochgebauter Backofen : nein
Geplante Heißgeräte: Backofen
Hochgebauter Geschirrspüler : wenn möglich
Art des Kochfeldes: Induktionskochfeld
Kochfeldbreite (ca. in cm): >70

Sitzmöglichkeiten
Sitzmöglichkeit in der Küche / im Küchenbereich: Überstehende Arbeitsplatte
Sitzmöglichkeit: Für wieviel Personen?: Für 2 Personen
Sitzmöglichkeit: Tisch - wenn gesonderter Tisch oder offene Küche: Wird nach Bedarf neu gekauft
Gewünschte oder vorhandene Tischgröße:
Wofür soll der Sitzplatz in der Küche genutzt werden und wie häufig: Für die Kinder zum snacken, während man was in der Küche macht.

Stauraum-Planung
Was steht auf der Arbeitsplatte oder soll dort stehen?: Kaffeemaschine, Wasserkocher, Reiskocher, Küchenmaschine, Brotbehälter, Obstschale
Welche weiteren Küchenmaschinen müssen in der Küche untergebracht werden: Handrührgerät, Pürierstab
Was soll in der Küche außer den Standards untergebracht werden: ALLE Vorräte, Geschirr komplett (nichts in Ess-/Wohnzimmer)
Welchen Stauraum gibt es sonst noch: Keller

Kochgewohnheiten
Was/wie wird gekocht? (Alltagsküche, Menüs, Snacks usw): Porridge zum Frühstück und eine vegetarische Hauptmahlzeit warm. Ansonsten Snacks und Brotzeit.
Wie häufig wird gekocht: (fast) täglich 1x warm
Wird alleine gekocht? Oder auch gemeinsam? Mit und für Gäste?: Alleine mit den Kindern, 4 und 2, Stehhocker für Kinder vorhanden.

Spülen und Müll
Spülenform: 1 Becken ohne Abtropffläche
Welche Mülltrennung soll in der Küche vorgehalten werden: Altglas, Altpapier, Biomüll, Gelber Sack Müll, Restmüll

Sonstiges
Steht schon ein Küchenhersteller fest oder wird bevorzugt: Ikea
Steht schon ein Gerätehersteller fest oder wird bevorzugt: Bis auf Abzugshaube Ikea?
Küchenstil: Klassisch
Was stört an der bisherigen Küche und was soll die neue Küche unbedingt können? Warum?: Wir haben die Küche so noch nicht benutzt - benötigen aber eine schönere Küche mit viel Stauraum.
Preisvorstellung (Budget): 14000

Angehängte Dateien
 

Anhänge

  • Grundriss Küche Tote Ecke.jpg
    Grundriss Küche Tote Ecke.jpg
    52,1 KB · Aufrufe: 148
  • Grundriss Wohnung.jpg
    Grundriss Wohnung.jpg
    58,4 KB · Aufrufe: 130
  • Ikea_Tote_Ecke.jpg
    Ikea_Tote_Ecke.jpg
    64,3 KB · Aufrufe: 237
  • Ikea_Tote_Ecke_HerdamRand.jpg
    Ikea_Tote_Ecke_HerdamRand.jpg
    67,3 KB · Aufrufe: 138
  • PXL_20240605_143422983.jpg
    PXL_20240605_143422983.jpg
    228 KB · Aufrufe: 143
@Guybrush T .. da bist du wohl durchs Raster gefallen.

Mal zu deinen Fragen, vom Grundsatz her finde ich diese Planung besser:
ikea_tote_ecke-jpg.394405


Würde aber wohl links der Spüle einen 80er Unterschrank planen und rechts der GSP einen 40er. Sollte das nicht 100%ig mit dem Wasseranschluß passen, könnte man überlegen die Spülenzeile 5 bis 10 cm vorzuziehen und den Wasseranschluß passend Aufputz zu verlegen.

Eine Furnierarbeitsplatte würde ich gar nicht wählen. Wenn Holz dann tatsächlich Vollholz.

Gut eingesetzt sollte eine Spüle wie die ETAGON mit Einhängesieb zum Abtropfen auch von abgewaschenem Gemüse/Obst gut funktionieren.

Steckdosen würde ich nachdem die Planung dann endgültig feststeht verplanen. Dabei sollte weder direkt hinter der Spüle noch direkt hinter dem Kochfeld eine Dose sitzen.

Ich würde dann planen, wo feste Installationen stehen (Kaffee-/Küchenmaschine etc.), dort Steckdosen in Anzahl Geräte plus mind. eine weitere freie Steckdose. Dann auf jeden Fall mind. 1 Steckdose rechts oder links vom Kochfeld um z. B. einen Pürierstab anszuschließen. In die Ecke auf jeden Fall 1 oder 2 und neben den Kühlschrank.

Zum Eckschrank ...* Tote Ecken - gute Ecken *, denn die Ikea -Alternativen taugen nicht wirklich.
 

Ähnliche Beiträge

Neff Hausgeräte Ballerina Küchen Blum Bewegungstechnologie Weibel - Intelligente Küchenlüftung

Neff Spezial

Blum Zonenplaner

Weibel Abluft-Tuning

Weibel Abluft-Tuning
Zurück
Oben