L- Küche für Wohn-Küche

Tinchen

Mitglied
Beiträge
16
Hallo, wir brauchen eine neue Küche, sind uns aber nicht sicher, welche Höhe die Arbeitsfläche haben soll. Mein Freund ist sehr groß (1,95m), ich hingegen eher klein (1,65m). Dennoch kochen wir oft zusammen. Man kann also nicht sagen, dass einer mehr Zeit in der Küche verbringt als der andere. Was sagt ihr dazu? ICh stelle mal eine Grobplanung ein, für Veränderungswünsche sind wir sehr offen...
 

Anhänge

  • KÜche 1PLAN1.POS
    4 KB · Aufrufe: 191
AW: L- Küche für Wohn-Küche

Hallo Tinchen
Willkommen im Forum. Bitte stelle von Deiner Planung doch noch den Alno -Grundriss und ein paar Ansichten ein.

Um die Planung überarbeiten zu können braucht es die Dateien *.pos & *.kpl

Arbeitshöhe ist (mit Schuhen) Ellenbogen minus 15cm bzw. die Höhe vom Beckenknochen (laut Ergotherapheuten). Für Kochfeld kann nochmal 10cm abgezogen werden.

Bei so unterschiedlichen Grössen bieten sich zwei unterschiedlich hohe Arbeitsflächen an.
 
AW: L- Küche für Wohn-Küche

Bei so unterschiedlichen Grössen bieten sich zwei unterschiedlich hohe Arbeitsflächen an.

Ja, das ist eine Variante. Aber da zwei unterschiedliche Höhen in einer Küche nicht immer gut aussehen:

...oder man einigt sich auf eine Kompromisshöhe
...oder man richtet sie nach dem Hauptnutzer aus.

Arbeitsplatte in Beckenhöhe als Empfehlung, habe ich letztens gelesen. Ich bin 170 cm und unsere Arbeitshöhe ist 94 cm. Höher möchte ich es nicht haben (es ist mir fast ein wenig zu hoch), aber für meinen größeren Mann ist es ideal. Es war bei uns ein Kompromiss, der funktioniert.

6000 Euro als Budget, stimmt das? Es kommt mir eher wenig für eine neue Küche mit Geräten, Arbeitsplatte, Lieferung und Montage vor. Ist das mit oder ohne Geräte? Mit oder ohne Arbeitsplatte?

Herzlich willkommen noch!
 
AW: L- Küche für Wohn-Küche

nachdem ich es verstanden habe, stelle ich nun auch den grundriss und eine ansicht ein;-)
 

Anhänge

  • Küche 1.jpg
    Küche 1.jpg
    36,7 KB · Aufrufe: 198
  • Küche 1 Grundriss.JPG
    Küche 1 Grundriss.JPG
    33,2 KB · Aufrufe: 201
AW: L- Küche für Wohn-Küche

ach so, um noch auf die Frage zu antworten wegen des Preises, sollte der Preis ohne Geräte sein. Geräte bekommen wir über ein Familienmitglied...
Meint ihr, dass das zu wenig ist? Unser Budget (ich bin Referendarin, mein Freund noch Student) lässt momentan nicht mehr zu... :(
 
AW: L- Küche für Wohn-Küche

Das Budget nur für Möbel ist für gute Mittelklasse sicherlich ausreichend, sogar mit dem Jalousieschrank (auf den ich allerdings verzichten würde

Was mir auffällt: Die Arbeitsfläche ist sehr zerstückelt. Ich würde den Herd weiter links anordnen.
 
AW: L- Küche für Wohn-Küche

der Jalousieschrank ist sehr teuer und macht Dir das einzige grössere zusammenhängende Stück APL kaputt.

Das Budget wird für Möbel bestimmt reichen, da lässt sich was gutes mit realisieren.

Es fehlt immer noch *.kpl .. so kann man noch nichts mit der Datei anfangen.

Wo sitzt genau der Wasseranschluss? Wo ist die Herddose

Gibt es den Esstisch schon? Grösse?

Was soll alles in der Küche untergebracht werden? Was wird bei euch auf der APL rumstehen?
 
AW: L- Küche für Wohn-Küche

sorry, aber ich bekomm das irgendwie nicht hin mit dem einstellen, wie funktioniert das??? :-[

der wasseranschluss sitzt 90cm von links auf der längeren Seite, die Herddose ca. 90 cm rechts von der Tür.

Den Esstisch gibt es noch nicht... Es ist so, dass an die Küche noch ein Raum mit gleicher Größe (mit Durchbrucht) angehängt wurde. Man kann also quasi vom WOhnzimmer in die KÜche schauen. Der Tisch könnte zwischen Wohnzimmer und Küche stehen, genauere Pläne sind allerdings noch nicht gemacht.

Auf der APL wird ein Kaffeevollautomat stehen, Wasserfilter, Toaster. Außerdem müsste ne Mikrowelle noch untergebracht werden, deshalb dachten wir an den Jalousieschrank, damit man da mal etwas "verstecken" kann...
 
AW: L- Küche für Wohn-Küche

In einen Jalousieschrank passt eine Mikrowelle aber nur, wenn er tiefer als "normal" ist.
 
AW: L- Küche für Wohn-Küche

;-) es fehlt immer noch die *.kpl; es geht genauso wie Du es schon mit der *.pos gemacht hast ...


In die Lücke am Zeilenende soll der Standalone? gibts den schon? Welcher?
 
AW: L- Küche für Wohn-Küche

ah ok, wenn das so ist, "frisst" also der tiefe jalousieschrank, in den eine mikrowelle passen würde, noch mehr APL auf, doof... also fällt der wohl eher weg :(

den standalone gibt es noch nicht, vorschläge??? wie gesagt, nicht zu teuer;-)

oh man, ich bekomm das nicht hin, irgendwie sagt er, dass die datei unbekannt ist...:(
 
AW: L- Küche für Wohn-Küche

juhu, funzt es?? :clap:
 

Anhänge

  • KÜche 1PLAN1.KPL
    4,1 KB · Aufrufe: 180
AW: L- Küche für Wohn-Küche

na, das ist doch schonmal was *gg*

Jalousie-Schrank: genau so ist es, er ist besonders teuer, er klaut Dir Arbeitsfläche, ne Micro passt auch nicht rein (es gibt aber die Möglichkeit Micros unter einen Oberschrank zu hängen.. )
 
AW: L- Küche für Wohn-Küche

ich bin noch jung und lernfähig:cool:

d.h. man kann auch eine einbau micro kaufen (die ja viiiiiiiiiiiiiiiiiel günstiger ist) und diese dann unter den oberschrank hängen?? das wäre ja wirklich gut
 
AW: L- Küche für Wohn-Küche

wie könnten wir denn die längere Seite mit Oberschränken gestalten, wenn wir den Jalousieschrank weglassen? wir bräuchten schon einiges an Stauraum.
die andere Seite (Herd, Dunstabzugshaube) würde ich ohne Oberschränke gestalten, was haltet ihr davon? finde, dass es sonst zu "überladen" wirkt...
 
AW: L- Küche für Wohn-Küche

.. so das wäre mal mein Vorschlag.
Hinter der Tür ist ein Vorratsschrank; daneben der BO-Hochschrank mit Micro obendrüber ;-)

Ich habe Dir einen Spüleneckschrank verbaut.

Die Sitzgruppe ist als Platzhalter für euer zu verstehen - damit man die Raumverhältnisse besser beurteilen kann.
 

Anhänge

  • Tinchen13.jpg
    Tinchen13.jpg
    32,1 KB · Aufrufe: 180
  • Tinchen12.jpg
    Tinchen12.jpg
    37,5 KB · Aufrufe: 178
  • Tinchen11.jpg
    Tinchen11.jpg
    32 KB · Aufrufe: 185
  • Tinchen10.JPG
    Tinchen10.JPG
    34,3 KB · Aufrufe: 179
  • kf_tinchen_NN_v1.POS
    5,8 KB · Aufrufe: 167
  • kf_tinchen_NN_v1.KPL
    4,1 KB · Aufrufe: 174
  • Tinchen14.jpg
    Tinchen14.jpg
    47,9 KB · Aufrufe: 204
AW: L- Küche für Wohn-Küche

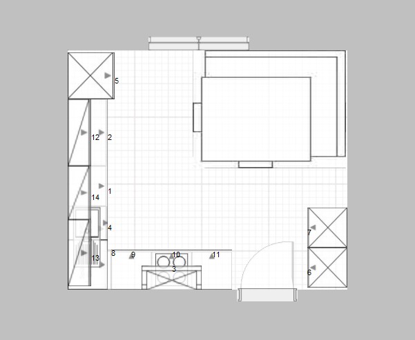
wow, das sieht ja top aus, allerdings gibt es ein problem. die wand, an die du den backofen gestellt hast, ist offen, d.h. wir haben einen durchbruch gemacht. die wand ist nur noch 70cm breit. man könnte in die ecke also einen hochschrank stellen...
 
AW: L- Küche für Wohn-Küche

Ahja, also von Planunten ist die Wand 70cm lang; und dann ist allles offen?

Ein Grundriss vom ganzen Stock würde halt schon immer helfen %
 
AW: L- Küche für Wohn-Küche

sorry... das ist so noch nicht auf einem plan drauf, wurde spontan entschieden, dass wir küche und wohnzimmer zusammenziehen... ;-)
 
AW: L- Küche für Wohn-Küche

naja Tinchen, dann schmeiss halt den Vorratsschrank wieder raus und Du hast immer noch einen Hochschrank mit BO & Microwelle drin ;-) sowie zusätzlichen Stauraum


.. nichts desto trotz würde der WHG-Grundriss helfen ;-)
 

Ähnliche Beiträge

Neff Hausgeräte Ballerina Küchen Blum Bewegungstechnologie Weibel - Intelligente Küchenlüftung

Neff Spezial

Blum Zonenplaner

Weibel Abluft-Tuning

Weibel Abluft-Tuning
Zurück
Oben