BrownyUSA
Mitglied
- Beiträge
- 6
Küche mit Insel in neuem EFH
Hallo,
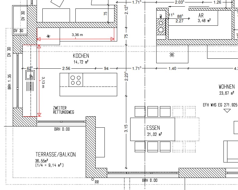
wir sind am Planen unserer neuen Küche für unser EFH. Der Grundriss des EFH steht bereits (siehe Anhang), inklusive der Küche die unser Architekt geplant hat.
Zwei Änderungen gibt es im Plan:
- Brüstungshöhe 1,20m anstatt der eingezeichneten 1,35m
- es wird eine Mauer als Abschluss der Kücheneinbauschränke geben, somit ist die Breite nur 3,36m (rot markiert)
Die Küche habe ich im Alnoplaner etwas umgeplant und macht für mich einen praktischen und ansprechenden Eindruck - aber vielleicht hat jemand doch noch bessere Ideen?
Womit ich noch nicht ganz glücklich bin ist
1. Eine Unterbringung für die benutzten / feuchten Geschirrtücher
2. Aufbewahrung für Getränkeflaschen, ich möchte diese nicht auf der Arbeitsfläche stehen haben - welche Möglichkeiten gibt es dafür?
Eine grobe Stauraumplanung habe ich schon durchgeführt und bekomme alles unter.
Auf der Arbeitsplatte neben dem Backofen möchte ich unseren Kaffeeautomaten und die KitchenAid stehen haben.
Da wir nach oben hin bis ins Dach offen sind, können wir keine Dunstabzugshaube nehmen sondern werden ein Bora (oder ähnliches System) einbauen.
MuPL habe ich aktuell - und ist auch in der neuen Küche eingeplant.
Farbe, Materialien und Elektrogeräte sind wir noch komplett flexibel und werden dies erst in der weiteren Planung auswählen. Sicher ist bislang nur, dass wir einen Fliesenboden haben werden.
Ich bin auf eure Bemerkungen, Kritik,... gespannt und evt. habe ich was Wichtiges übersehen...?
Alle wichtigen Informationen sollten in den Grundrissen bzw. dem Planer und der Checkliste stehen.
Vielen Dank schon mal für eure Hilfe!
BrownyUSA
Checkliste zur Küchenplanung
Personenkriterien und Ergonomie
Anzahl Personen im Haushalt: 4
Davon Kinder: 2
Körpergrößen aller Hauptbenutzer in cm (wegen Arbeitshöhe ): 165 cm und 193 cm
Welche Arbeitshöhe ist angedacht (in cm)?: 94 cm
Gebäudekriterien
Art des Gebäudes: Neu-/Umbau > Planänderungen nicht möglich, Eigentum
Brüstungshöhe des Fensters (in cm): 120
Fensterhöhe (in cm): 90
Raumhöhe in cm: 400-500 cm (nach oben offen bis ins Dach)
Heizung: Fußbodenheizung
Sanitäranschlüsse: variabel an aktueller Wand
Einbaugerätekriterien
Ausführung Kühlgerät: Stand-Alone bis 75cm Breite
Einbaukühlgerät Größe: N. a.
Ausführung Tiefkühl (TK)-Gerät: Im Kühlschrank bis 2 Schubladen unten
Dunstabzugshaube: Abluft
Hochgebauter Backofen : ja
Geplante Heißgeräte: Standmikrowelle, Backofen , Dampfbackofen (DGC) ohne Wasseranschluß
Hochgebauter Geschirrspüler : nein
Art des Kochfeldes: Induktion
Kochfeldbreite (ca. in cm): 90
Sitzmöglichkeiten
Sitzmöglichkeit in der Küche / im Küchenbereich: Keine
Sitzmöglichkeit: Für wieviel Personen?: nein
Sitzmöglichkeit: Tisch - wenn gesonderter Tisch oder offene Küche: Keiner
Gewünschte oder vorhandene Tischgröße:
Wofür soll der Sitzplatz in der Küche genutzt werden und wie häufig:
Stauraumplanung
Was steht auf der Arbeitsplatte oder soll dort stehen?: Kaffeevollautomat, Küchenmaschine, Obstschale
Welche weiteren Küchenmaschinen müssen in der Küche untergebracht werden: Allesschneider (z.B. in Schublade), Handrührgerät, Pürierstab
Was soll in der Küche außer den Standards untergebracht werden: Geschirr komplett (nichts in Ess-/Wohnzimmer)
Welchen Stauraum gibt es sonst noch: Speisekammer, Keller
Kochgewohnheiten
Was/wie wird gekocht? (Alltagsküche, Menüs, Snacks usw): Alltagsküche, hin und wieder auch Menü´s
Wie häufig wird gekocht: (fast) täglich 1x warm
Wird alleine gekocht? Oder auch gemeinsam? Mit und für Gäste?: für Gäste, und auch immer wieder zu zweit bzw. mit Hilfe der Kinder
Spülen und Müll
Spülenform: 1 1/2 Becken mit Abtropffläche
Welche Mülltrennung soll in der Küche vorgehalten werden: Altpapier, Biomüll, Gelber Sack Müll, Restmüll
Sonstiges
Steht schon ein Küchenhersteller fest oder wird bevorzugt: bevorzugt Schüller , habe dies aktuell und bin sehr zufrieden damit
Steht schon ein Gerätehersteller fest oder wird bevorzugt:
Küchenstil: Klassisch
Was stört an der bisherigen Küche und was soll die neue Küche unbedingt können? Warum?: zu wenig Platz auf Arbeitsfläche, mehr Stauraum
Preisvorstellung (Budget): 18.000 EUR
Angehängte Dateien
Hallo,
wir sind am Planen unserer neuen Küche für unser EFH. Der Grundriss des EFH steht bereits (siehe Anhang), inklusive der Küche die unser Architekt geplant hat.
Zwei Änderungen gibt es im Plan:
- Brüstungshöhe 1,20m anstatt der eingezeichneten 1,35m
- es wird eine Mauer als Abschluss der Kücheneinbauschränke geben, somit ist die Breite nur 3,36m (rot markiert)
Die Küche habe ich im Alnoplaner etwas umgeplant und macht für mich einen praktischen und ansprechenden Eindruck - aber vielleicht hat jemand doch noch bessere Ideen?
Womit ich noch nicht ganz glücklich bin ist
1. Eine Unterbringung für die benutzten / feuchten Geschirrtücher
2. Aufbewahrung für Getränkeflaschen, ich möchte diese nicht auf der Arbeitsfläche stehen haben - welche Möglichkeiten gibt es dafür?
Eine grobe Stauraumplanung habe ich schon durchgeführt und bekomme alles unter.
Auf der Arbeitsplatte neben dem Backofen möchte ich unseren Kaffeeautomaten und die KitchenAid stehen haben.
Da wir nach oben hin bis ins Dach offen sind, können wir keine Dunstabzugshaube nehmen sondern werden ein Bora (oder ähnliches System) einbauen.
MuPL habe ich aktuell - und ist auch in der neuen Küche eingeplant.
Farbe, Materialien und Elektrogeräte sind wir noch komplett flexibel und werden dies erst in der weiteren Planung auswählen. Sicher ist bislang nur, dass wir einen Fliesenboden haben werden.
Ich bin auf eure Bemerkungen, Kritik,... gespannt und evt. habe ich was Wichtiges übersehen...?
Alle wichtigen Informationen sollten in den Grundrissen bzw. dem Planer und der Checkliste stehen.
Vielen Dank schon mal für eure Hilfe!
BrownyUSA
Checkliste zur Küchenplanung
Personenkriterien und Ergonomie
Anzahl Personen im Haushalt: 4
Davon Kinder: 2
Körpergrößen aller Hauptbenutzer in cm (wegen Arbeitshöhe ): 165 cm und 193 cm
Welche Arbeitshöhe ist angedacht (in cm)?: 94 cm
Gebäudekriterien
Art des Gebäudes: Neu-/Umbau > Planänderungen nicht möglich, Eigentum
Brüstungshöhe des Fensters (in cm): 120
Fensterhöhe (in cm): 90
Raumhöhe in cm: 400-500 cm (nach oben offen bis ins Dach)
Heizung: Fußbodenheizung
Sanitäranschlüsse: variabel an aktueller Wand
Einbaugerätekriterien
Ausführung Kühlgerät: Stand-Alone bis 75cm Breite
Einbaukühlgerät Größe: N. a.
Ausführung Tiefkühl (TK)-Gerät: Im Kühlschrank bis 2 Schubladen unten
Dunstabzugshaube: Abluft
Hochgebauter Backofen : ja
Geplante Heißgeräte: Standmikrowelle, Backofen , Dampfbackofen (DGC) ohne Wasseranschluß
Hochgebauter Geschirrspüler : nein
Art des Kochfeldes: Induktion
Kochfeldbreite (ca. in cm): 90
Sitzmöglichkeiten
Sitzmöglichkeit in der Küche / im Küchenbereich: Keine
Sitzmöglichkeit: Für wieviel Personen?: nein
Sitzmöglichkeit: Tisch - wenn gesonderter Tisch oder offene Küche: Keiner
Gewünschte oder vorhandene Tischgröße:
Wofür soll der Sitzplatz in der Küche genutzt werden und wie häufig:
Stauraumplanung
Was steht auf der Arbeitsplatte oder soll dort stehen?: Kaffeevollautomat, Küchenmaschine, Obstschale
Welche weiteren Küchenmaschinen müssen in der Küche untergebracht werden: Allesschneider (z.B. in Schublade), Handrührgerät, Pürierstab
Was soll in der Küche außer den Standards untergebracht werden: Geschirr komplett (nichts in Ess-/Wohnzimmer)
Welchen Stauraum gibt es sonst noch: Speisekammer, Keller
Kochgewohnheiten
Was/wie wird gekocht? (Alltagsküche, Menüs, Snacks usw): Alltagsküche, hin und wieder auch Menü´s
Wie häufig wird gekocht: (fast) täglich 1x warm
Wird alleine gekocht? Oder auch gemeinsam? Mit und für Gäste?: für Gäste, und auch immer wieder zu zweit bzw. mit Hilfe der Kinder
Spülen und Müll
Spülenform: 1 1/2 Becken mit Abtropffläche
Welche Mülltrennung soll in der Küche vorgehalten werden: Altpapier, Biomüll, Gelber Sack Müll, Restmüll
Sonstiges
Steht schon ein Küchenhersteller fest oder wird bevorzugt: bevorzugt Schüller , habe dies aktuell und bin sehr zufrieden damit
Steht schon ein Gerätehersteller fest oder wird bevorzugt:
Küchenstil: Klassisch
Was stört an der bisherigen Küche und was soll die neue Küche unbedingt können? Warum?: zu wenig Platz auf Arbeitsfläche, mehr Stauraum
Preisvorstellung (Budget): 18.000 EUR
Angehängte Dateien
Anhänge
-
Grundriss_Küche.jpg78,7 KB · Aufrufe: 227 -
Grundriss_Wohnung.jpg119,5 KB · Aufrufe: 241 -
Küche_Nordansicht_I.JPG50,2 KB · Aufrufe: 236 -
Küche_Westansicht.JPG58,4 KB · Aufrufe: 219 -
Küche_Westansicht_I.JPG49 KB · Aufrufe: 213 -
Kuechenplanung_seitliche_Apl.KPL3,6 KB · Aufrufe: 167
-
Kuechenplanung_seitliche_Apl.POS6,5 KB · Aufrufe: 165
