Jule
Mitglied
- Beiträge
- 491
Hallo ihr lieben.
Vor ein paar Jahren (so etwa 3,5 Jahre her....) habt ihr mir erfolgreich bei der Planung meiner Küche geholfen und ich liebe sie noch heute wie am ersten Tag
Jetzt baut meine Schwester und ich habe ihr ans Herz gelegt, schon in der Planung mit dem Architekten Überlegungen zu machen, wie die Küche aussehen soll, damit sie Fenster, Türen und Wände so platzieren kann, wie sie es möchte. Anschlüsse und Wasser und auch sonst. ist in gewissem Rahmen frei verschiebbar.
Jetzt haben sie einen Entwurf, der ihren Vorstellungen sehr nahe kommt und nun haben wir uns gestern mal an die Küche gewagt.
Anbei hänge ich euch mal die .KPL und .POS Dateien an, sowie ein paar Ansichten und den Plan von EG und OG des Hauses.
Gewünscht ist:
- Mülleimer in Auszug unter der APL (wie bei mir und wir lieben es)
- vollintegr. GSP, Backofen hoch eingebaut
- Klappe für Mikrowelle
- großer Kühlschrank (Gefriertruhe kommt in den HWR )
- Spülenunterschrank mit 2 Schubladen
- Kücheninsel, Tresen oder (wie im Beispiel) 2 Reihen
- Dunstabzug: Ob Abluft oder Umluft ist egal
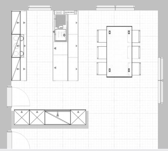
Wir haben wie folgt geplant:
Linke Wand von oben nach unten:
- 90 cm breiter Auszug 1-1-2-2
- Kochfeld 90 cm mit Auszügen darunter 1-1-2-2
- 60 cm breiter Auszug 1-1-2-2
- Hochschrank mit Backofen
- Hochschrank mit Kühlschrank
Rechte Zeile:
- 90 cm brieter Auszug 1-2-3
- 30cm breiter Auszug mit Müll unter der APL 2-2
- 60cm breiter Spülenschrank 2-2
- 60cm vollint. GSP
- 100cm Auszug 1-2-3
Rückseite zum Esstisch:
- 2x mindertiefer Schrank mit Drehtüren in je 100cm Breite
- überstehende APL als Sitzgelegenheit
Die geplante Küche entspricht so den ersten Vorstellungen meiner Schwester und wir sind gespannt was ihr dazu sagt...
LG Jule und Vanessa
Checkliste zur Küchenplanung
Anzahl Personen im Haushalt: 2
Davon Kinder?:
Art des Gebäudes?: Neu-/Umbau, Planänderungen möglich
Körpergrössen aller Hauptbenutzer (wegen Arbeitshöhe ) in cm: 175cm und 185 cm
Brüstungshöhe des Fensters (in cm): frei
Fensterhöhe (in cm): frei
Raumhöhe in cm: 250
Heizung: Fussbodenheizung
Sanitäranschlüsse: vollkommen variabel
Ausführung Kühlgerät: Integriert im Hochschrank (60cm)
Kühlgerät Größe: bis 178 cm Höhe
Ausführung Tiefkühl (TK)-Gerät: Nicht erforderlich bzw. steht woanders
Dunstabzugshaube: Umluft
Backofen etc. hochgebaut?: Ja
Hochgebauter Geschirrspüler ?: Nein
Kochfeldart: Induktion
Kochfeldbreite ca. (in cm)?: 90
Spülenform: 1 Becken mit Abtropffläche
Geplante Heißgeräte: Standmikrowelle, Backofen , Dampfbackofen (DGC) mit Wasseranschluß
Küchenstil: Modern
Sitzmöglichkeit in der Küche / im Küchenbereich: Überstehende Arbeitsplatte
Sitzmöglichkeit: Für wieviel Personen?: für 2 Personen
Sitzmöglichkeit: Tisch - wenn gesonderter Tisch oder offene Küche: Wird nach Bedarf neu gekauft
Gewünschte o. vorhandene Tischgröße:
Wofür soll der Sitzplatz in der Küche genutzt werden? Wie häufig?: Zum Quatschen/ Kaffee trinken. Ist kein Muss.
Welche Arbeitshöhe ist angedacht (in cm)?: 92
Was steht auf der Arbeitsplatte oder soll dort stehen?: Kaffeevollautomat, Wasserkocher, Küchenmaschine
Welche weiteren Küchenmaschinen müssen in der Küche untergebracht werden?: Toaster, Allesschneider (z. B. in Schublade), Handrührgerät, Mixer, Pürierstab, Eierkocher
Was soll in der Küche außer den Standards untergebracht werden?: Geschirr komplett (nichts in Ess-/Wohnzimmer)
Welchen Stauraum gibt es sonst noch?: Speisekammer, Hauswirtschaftsraum
Was/wie wird gekocht? (Alltagsküche, Menüs, Snacks usw): Alles mögliche
Wie häufig wird gekocht?: (fast) täglich 1x warm
Wird alleine gekocht? Oder auch gemeinsam? Mit und für Gäste?: Meist allein, manchmal mit Gästen
Was stört an der bisherigen Küche und was soll die neue Küche unbedingt können? Warum?:
Welche Mülltrennung soll in der Küche vorgehalten werden?: Biomüll, Restmüll
Steht schon ein Küchenhersteller fest oder wird bevorzugt?:
Steht schon ein Gerätehersteller fest oder wird bevorzugt?:
Preisvorstellung (Budget): bis 15.000,-
Vor ein paar Jahren (so etwa 3,5 Jahre her....) habt ihr mir erfolgreich bei der Planung meiner Küche geholfen und ich liebe sie noch heute wie am ersten Tag
Jetzt baut meine Schwester und ich habe ihr ans Herz gelegt, schon in der Planung mit dem Architekten Überlegungen zu machen, wie die Küche aussehen soll, damit sie Fenster, Türen und Wände so platzieren kann, wie sie es möchte. Anschlüsse und Wasser und auch sonst. ist in gewissem Rahmen frei verschiebbar.
Jetzt haben sie einen Entwurf, der ihren Vorstellungen sehr nahe kommt und nun haben wir uns gestern mal an die Küche gewagt.
Anbei hänge ich euch mal die .KPL und .POS Dateien an, sowie ein paar Ansichten und den Plan von EG und OG des Hauses.
Gewünscht ist:
- Mülleimer in Auszug unter der APL (wie bei mir und wir lieben es)
- vollintegr. GSP, Backofen hoch eingebaut
- Klappe für Mikrowelle
- großer Kühlschrank (Gefriertruhe kommt in den HWR )
- Spülenunterschrank mit 2 Schubladen
- Kücheninsel, Tresen oder (wie im Beispiel) 2 Reihen
- Dunstabzug: Ob Abluft oder Umluft ist egal
Wir haben wie folgt geplant:
Linke Wand von oben nach unten:
- 90 cm breiter Auszug 1-1-2-2
- Kochfeld 90 cm mit Auszügen darunter 1-1-2-2
- 60 cm breiter Auszug 1-1-2-2
- Hochschrank mit Backofen
- Hochschrank mit Kühlschrank
Rechte Zeile:
- 90 cm brieter Auszug 1-2-3
- 30cm breiter Auszug mit Müll unter der APL 2-2
- 60cm breiter Spülenschrank 2-2
- 60cm vollint. GSP
- 100cm Auszug 1-2-3
Rückseite zum Esstisch:
- 2x mindertiefer Schrank mit Drehtüren in je 100cm Breite
- überstehende APL als Sitzgelegenheit
Die geplante Küche entspricht so den ersten Vorstellungen meiner Schwester und wir sind gespannt was ihr dazu sagt...
LG Jule und Vanessa
Checkliste zur Küchenplanung
Anzahl Personen im Haushalt: 2
Davon Kinder?:
Art des Gebäudes?: Neu-/Umbau, Planänderungen möglich
Körpergrössen aller Hauptbenutzer (wegen Arbeitshöhe ) in cm: 175cm und 185 cm
Brüstungshöhe des Fensters (in cm): frei
Fensterhöhe (in cm): frei
Raumhöhe in cm: 250
Heizung: Fussbodenheizung
Sanitäranschlüsse: vollkommen variabel
Ausführung Kühlgerät: Integriert im Hochschrank (60cm)
Kühlgerät Größe: bis 178 cm Höhe
Ausführung Tiefkühl (TK)-Gerät: Nicht erforderlich bzw. steht woanders
Dunstabzugshaube: Umluft
Backofen etc. hochgebaut?: Ja
Hochgebauter Geschirrspüler ?: Nein
Kochfeldart: Induktion
Kochfeldbreite ca. (in cm)?: 90
Spülenform: 1 Becken mit Abtropffläche
Geplante Heißgeräte: Standmikrowelle, Backofen , Dampfbackofen (DGC) mit Wasseranschluß
Küchenstil: Modern
Sitzmöglichkeit in der Küche / im Küchenbereich: Überstehende Arbeitsplatte
Sitzmöglichkeit: Für wieviel Personen?: für 2 Personen
Sitzmöglichkeit: Tisch - wenn gesonderter Tisch oder offene Küche: Wird nach Bedarf neu gekauft
Gewünschte o. vorhandene Tischgröße:
Wofür soll der Sitzplatz in der Küche genutzt werden? Wie häufig?: Zum Quatschen/ Kaffee trinken. Ist kein Muss.
Welche Arbeitshöhe ist angedacht (in cm)?: 92
Was steht auf der Arbeitsplatte oder soll dort stehen?: Kaffeevollautomat, Wasserkocher, Küchenmaschine
Welche weiteren Küchenmaschinen müssen in der Küche untergebracht werden?: Toaster, Allesschneider (z. B. in Schublade), Handrührgerät, Mixer, Pürierstab, Eierkocher
Was soll in der Küche außer den Standards untergebracht werden?: Geschirr komplett (nichts in Ess-/Wohnzimmer)
Welchen Stauraum gibt es sonst noch?: Speisekammer, Hauswirtschaftsraum
Was/wie wird gekocht? (Alltagsküche, Menüs, Snacks usw): Alles mögliche
Wie häufig wird gekocht?: (fast) täglich 1x warm
Wird alleine gekocht? Oder auch gemeinsam? Mit und für Gäste?: Meist allein, manchmal mit Gästen
Was stört an der bisherigen Küche und was soll die neue Küche unbedingt können? Warum?:
Welche Mülltrennung soll in der Küche vorgehalten werden?: Biomüll, Restmüll
Steht schon ein Küchenhersteller fest oder wird bevorzugt?:
Steht schon ein Gerätehersteller fest oder wird bevorzugt?:
Preisvorstellung (Budget): bis 15.000,-
Anhänge
-
Ansicht 1.JPG118,3 KB · Aufrufe: 169 -
Ansicht 2.JPG65 KB · Aufrufe: 167 -
Ansicht 3.JPG49,2 KB · Aufrufe: 184 -
Ansicht 4.JPG75,5 KB · Aufrufe: 161 -
Ansicht 5.JPG69,8 KB · Aufrufe: 176 -
Plan Vanessa 1.KPL3,9 KB · Aufrufe: 184
-
Plan Vanessa 1.POS7,1 KB · Aufrufe: 170
-
Grundriss1.jpeg73,7 KB · Aufrufe: 373 -
Haus Grundriss EG.jpeg142,2 KB · Aufrufe: 177 -
Haus Grundriss OG.jpeg145,4 KB · Aufrufe: 165
Zuletzt bearbeitet:





